乐大姐
FM104.8《家在苏州--乐大姐说装修》栏目特邀嘉宾,
赫博别墅设计创始人之一;
多次受邀成为院校家居的授课讲师;
98年至今,
为万千家庭打造幸福家居的同时,也相互成为了好朋友。
任何与装修有关的问题,欢迎您添加乐大姐微信:13382100888,
乐大姐会为您做一对一解答。
每一套作品,都是私人定制
项目地点:科技城幸福未来城(双拼)
项目面积:589㎡
项目风格:新中式
项目性质:别墅整装
项目状态:正在施工
本案这套双拼别墅,地下一层,地上三层,总共四层,有近600㎡的面积,且中间还有一个中庭,一楼南面和负一层还有院子(30平左右),空间十分宽敞。因本案是业主买来养老的,业主对它的功能布局、装修设计有很多自己的想法,并向乐大姐团队提出以下要求:
- 要求 卧室必须够多、够大,这样冬天和夏天可以换着朝向睡,所以本案总共保留了6间卧室;
- 要求 卧室床的朝向必须根据他定的来,二楼主卧的床要求在背靠卧室门的这面墙上;
- 要求 沙发必须靠墙(客厅开间 7.7米),且沙发&电视背景一定要用石材;

设计一个房子是容易的,但设计一个家却绝非易事,因为房子是物质的,而家是精神性的,是情感的载体,带出主人的独特气息,带着每一个家庭的不同氛围与气度。每一个家都是独一无二的,因而每一个家都应量身定做。

本案这套双拼别墅的户型是非常经典的长条形结构,且房子中间有中庭(可室内用),客餐厅又是错层的。一般遇到这种房型,客厅的常规布置是将会客区规划在进门的左手边,这样设计空间会比较饱满,尤其是本案48.5㎡的大客厅。
但,业主不喜欢,要求沙发必须靠墙(寓意有靠山),且沙发&电视背景一定要用石材(显档次),所以设计老师将电视&沙发背景做在了进门后左右两侧的墙上,这样既实现了业主的要求,也不影响日常的家居动线。不过,这样一来两个背景之间的间距太长,整体性欠缺。所以乐大姐团队设计老师在地面和顶面都做了围边以加强联系感,空间虽大但整。
客厅双面背景的材质都采用了新中式的经典搭配,即石材+木饰面,从而奠定了空间大气稳重的氛围。各式各样的摆件柔美雅致,自带高级感,也让整体视觉效果更加丰富多变。中式红木家具与水墨画地毯组合在一起,恰到好处的点缀让人眼前一亮。

如果说,客厅前后主背景是空间的重点存在,那么进门玄关就要以“轻”为主,这样才能主次分明。而“轻”的背景里,一抹跳色的加入,则显得格外清新别致。


裹在淡淡烟火气的日子里,恰是最令人舒心的生活。
位于错层的开放式餐厅,看起来宽敞明亮。一张大圆桌更容易将家人聚集到一起,轻松满足6-8个人的用餐需求。中式的餐椅精致优雅,家的格调就蕴藏在不经意的细节中。

本案餐厅的位置是原来的中庭,改造后餐厅利用结构柱做了一组金属门套,从而将其与客厅的金属门套联系了起来,增强了整体的区域感。
结构柱上木饰面+线条灯的设计,让柱体看起来不死板。

因本案每个房间床的朝向业主都是有要求的,二楼主卧的床业主要求背靠着卧室门的这面墙,那么如何设计才能让床头背景与卧室门完美融合呢?
设计老师利用床头背景护墙板的独特纹理,把门“藏”在木饰面里,从而保证了墙面的完整性。且,这样设计还巧妙地将睡眠空间隐藏了起来,推门而入便是完全私密的自我地盘。
主卧的设计主张清幽淡雅,床头背景上飘落的银杏叶,透露出对自然本真的崇尚与回归,让人不禁放慢脚步享受其间诗意的生活。书卷、花卉、瓷具、金蚂蚱等各类小品摆设其中,相映成趣,空间气质盈盈。

二楼次卧,干净的白色柜体映衬着朗阔的天色,木纹地板与青绿色背景带来大地与山林的气息,脱离都市的繁华,在这里却正好找回属于生活的那份细腻与温情。


本案女儿房的进深7.7米,非常长,而小主人喜欢宽敞的感觉,不喜欢被分割的空间,那么如何设计才能在保证空间感的同时,也兼顾区域的划分以及美感的呈现呢?
乐大姐团队设计老师通过不同材质的运用(木饰面+硬包+墙布)将背景和吊顶划分成三大部分(衣柜+睡眠区+学习区),从而实现了功能的明确化,空间显得饱满而不空旷。
女儿房的设计是在现代的基础上加入了一些法式的感觉,乳白与甜粉的亲密碰触,形成温柔甜蜜的记忆点,温馨又高级。业主女儿现在在上高中,即使将来工作,这间房的风格也能和她匹配。


三楼儿子房位于二楼主卧正上方,房型、面积和楼下完全一致,床的方向也是一样,但却设计成了年轻人更喜欢的现代简约风格,加上顶楼自带的异形顶与灵动变幻的无主灯,整体给人的感觉完全不同,高级感满满。
床头背景采用两种款式木饰面的结合,深色木饰面,沉稳大气,是空间的主背景;乳白色长城板,温暖柔和,宁静致远,两者相互映衬、相互碰撞,丰富了视觉语言和空间层次,让睡眠空间充满舒适从容的轻松氛围。

电视背景同样采用了深浅两色木饰面的碰撞,打造时尚简约的都市风。关键的是,里面还藏着一个隐形的衣帽间,私密性与功能性兼得。

居者对于生活的实用功能需求比较多,在三楼的这个主卫生间里,不仅有双台盆、马桶、淋浴和浴缸功能,还规划出一个家用汗蒸房的区域。
汗蒸房放在家用卫生间里通常会格格不入,为了整体效果考虑,设计老师用砌墙分割功能区,后期汗蒸房款式可定制,实现效果、美观两不误。

地下室原始户型图

地下室改造后户型图

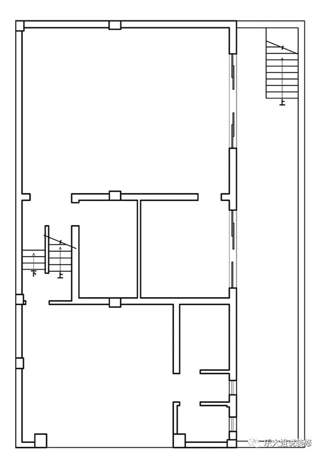
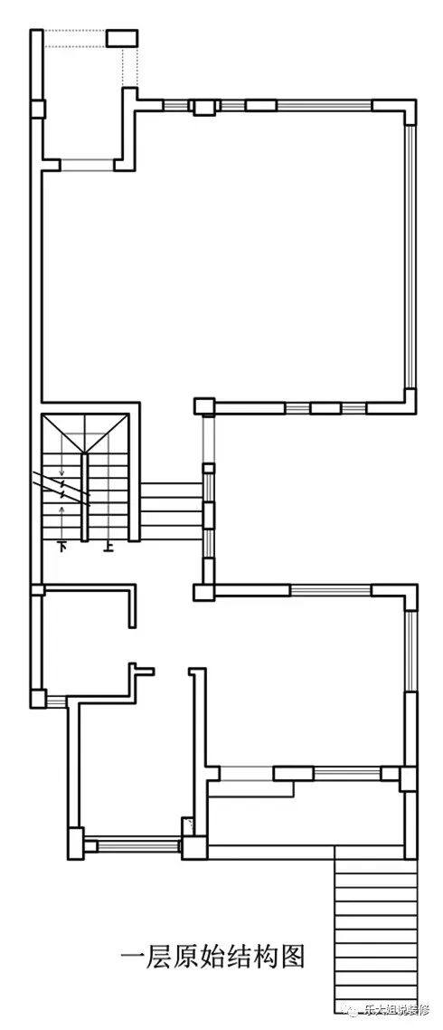
一层原始户型图

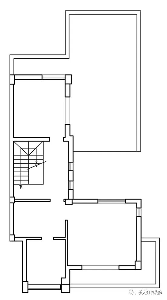
一层改造后户型图

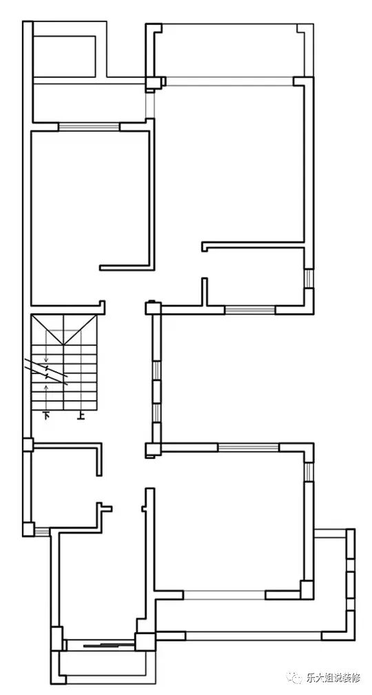
二层原始户型图

二层改造后户型图

三层原始户型图

三层改造后户型图
本案地下室原始结构比较零散,乐大姐团队设计老师根据业主的需求,将原始空间拆分重组,化零为整,规划了休闲区、健身区、台球区等,空间宽敞,功能齐全。
原户型中一楼的厨房十分狭小,为了扩大厨房空间,设计老师将中间的中庭现浇后改造为餐厅,而原来餐厅、厨房、北入户门厅则根据日常空间使用需求进行了重新规划,各得其所。
因业主对卧室的要求是必须够多、够大,所以本案二楼、三楼总共保留了6间卧室,除了儿子房、女儿房以外,其他4个房间都是业主两口子的,方便他们冬天、夏天可以换着朝向睡。
点击下方“https://vr.om.cn/view/279825”,即可在线免费看本案例全景图(360°)。
END
往期案例回顾
设计说·第181期 | 325㎡法式联排,精彩纷呈,韵味无穷!
设计说·第180期 | 257㎡别墅改造,重获新生的魅力!
设计说·第179期 | 310㎡现代简约,以简驭繁,多维生活!
设计说·第178期 | 472㎡中式轻奢别墅,坐拥太湖美景,在家就能感受远方!
设计说·第177期 | 242㎡叠墅实景赏析,给你想要的现代时尚感!
设计说·第176期 | 165㎡精装房大改造,守护生活的仪式感!
设计说·第175期 | 1010㎡江南园林别墅,打造当代“桃花源”!
设计说·第174期 | 370㎡现代叠墅,双客厅设计,颠覆传统居家功能划分!

如果您觉得乐大姐说的内容很有价值
欢迎分享转发至您的朋友圈
让更多的朋友都能轻松装修,自在生活!
当然,您也可以添加乐大姐微信号13382100888
或扫描下方的二维码
说出您的装修难题、让乐大姐为您答疑解惑
不管您是装修完工了
还是即将装修的
或者正在装修的
乐大姐一定知无不言,言无不尽