清水江南别墅整装

设计说·第183期 | 263㎡现代风,美!

发布时间:2022-10-24

图片

乐大姐
FM104.8《家在苏州--乐大姐说装修》栏目特邀嘉宾,
赫博别墅设计创始人之一;
多次受邀成为院校家居的授课讲师;
98年至今,
为万千家庭打造幸福家居的同时,也相互成为了好朋友。
任何与装修有关的问题,欢迎您添加乐大姐微信:13382100888
乐大姐会为您做一对一解答。

项目地点:鲁能公馆

项目面积:173.8㎡+89.32㎡(叠墅)
项目风格:现代简约
项目性质:别墅整装
项目状态:正在施工



每一套作品,都是私人定制


业主需求

The owner needs


本案是业主给儿子准备的婚房,准备装修时孩子还没有女朋友,但业主觉得婚房迟早是要装的,早点装好,儿子如果有合适的对象随时可以派上用场!因此,业主向乐大姐团队提出的装修要求是“经久耐看、不容易过时”!(ps:小伙子现在已经找到女朋友了,女朋友也很喜欢这套设计)

那么,到底什么样的设计才能经得起时间的考验呢?到底什么样的设计才能满足不同年龄层的审美需求呢?



效果呈现

Action rendering


客厅  |  Living room


图片


图片


图片


设计需要有章法,环环相扣,美而悦。

本案开放式的格局将客餐厅一体串联,打破客厅与其他空间交流的屏障,尺度阔绰从容,动线优雅流畅,成为家人互动、情感交流的新场所。聚会、品酒、私享,演绎了人在不同时间、需求下的生活场景。

图片


图片


沙发背景护墙板的竖向线条彰显了理性的轻巧质感,与其上的圆形波浪装饰相呼应,实现动与静、虚与实的和谐统一。


图片


图片

图片


电视背景墙上蘑菇石”材质的加入,给静谧的场景增加了戏剧冲突感,呈现出时尚活泼与成熟稳重兼而有之的层次。

空间主色调——高级灰的平静魅力,向各处角落渐次蔓延,映衬着简明的质地,让点缀的暖色、弧形、光晕表达出自己的浓郁情愫。



餐厅  |  Dining room


图片

图片


本案从入户门进来目之所及首先看到的就是餐厅,所以餐厅的设计尤为关键,特别是餐边柜的设计,实现功能之余更看重装饰性

设计老师在整体灰与白的静谧色彩中,运用自带温度的橙色与雅白奢石台面、清冽的楼梯冷暖互补,中和出舒适的温度。


图片


图片


餐边柜,轻盈通透的玻璃对话着横竖穿插的层板,错落有致地互相咬合,形成艺术的墙面造型,与质感的吊灯交相辉映,散发尊贵与时尚的清雅。



厨房  |  Kitchen


图片


图片


图片


厨房是维系一家人健康的重要场所,也是研究美食之地。暖灰+白色的整体搭配,与嵌入式设备需求相结合,融合无把手的细节设计,打造简约雅致的料理空间。

主卧  |  Master bedroom


图片


图片


图片

主卧精致为基调,搭配轻奢的前调与简约的后调,调和出自由、理想的韵味。皓月白、苍葭灰、鹿皮棕,内敛的色彩搭配,使人沉淀心灵,在光影虚实间,融于这一方寸间,尽情享受心灵息于卧室的缓释与安放。


衣帽间的设计,独立且增加了空间的隐秘性和时尚气息。


图片



卫生间  | Bathroom


图片


图片


在现代简约的统一语境下,主卫与主卧设计基调贯穿统一,内敛温润的木饰,质感清冽的大理石与通透一体的玻璃搭配利落整体,摒弃复杂的装饰与色彩,享受独一无二的奢雅与舒适。


地下室  | Basement


图片


图片


图片


负一层区域集水吧台区、视听室、电竞室、健身区等一体,开放的空间使家人有更多娱乐交流的机会。水吧台区保留下来的天井以及绿植墙,将自然天光和绿色带入地下空间,让沉闷的空间有了灵动。这样的空间就算呆上一天,都不会觉得无聊。


值得一提的是,地下室设计时,前期一定要考虑到设备的引入,可根据现场情况规划新风和除湿功能,有利于提高后期居住的舒适度。


图片


图片


休闲厅后面设计成游戏室+买办展示一体的空间,满足了日常聚会时小朋友们娱乐消遣的需求。



平面方案

Flat Plan


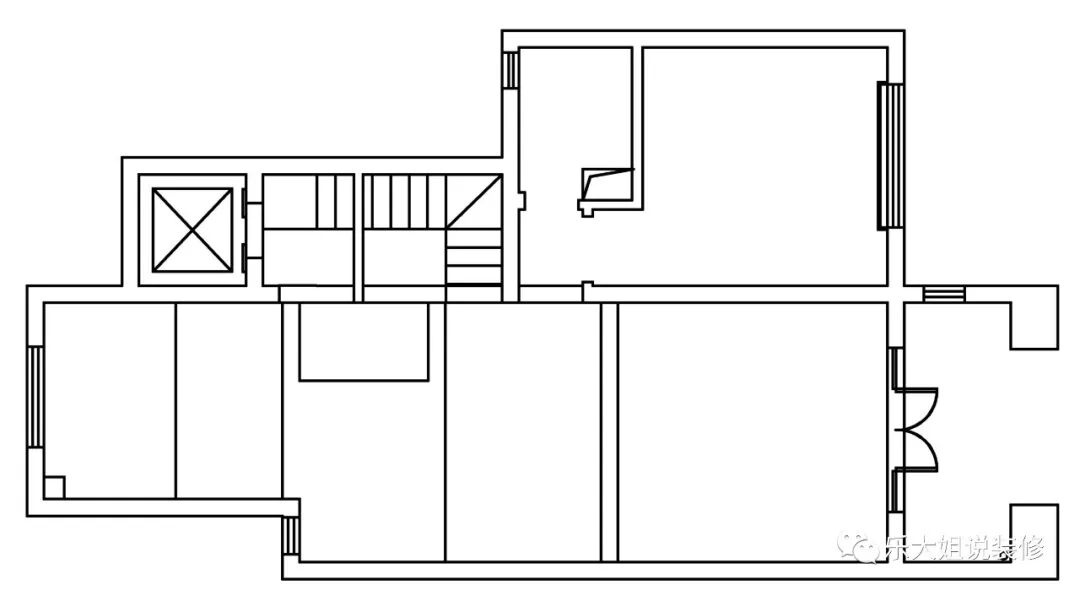
图片

地下室原始户型图

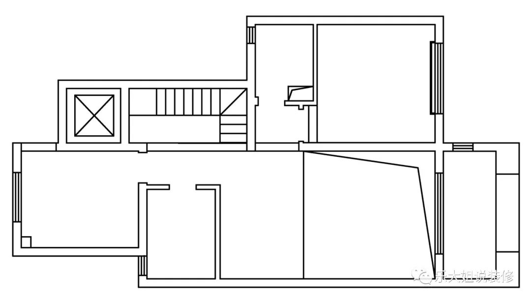
图片

地下室改造后户型图

图片

一楼原始户型图

图片

一楼改造后户型图

图片

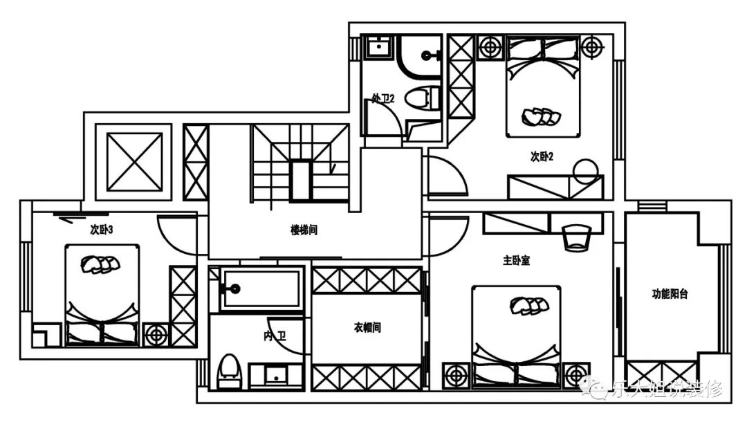
二楼原始户型图

图片

二楼改造后户型图

  • 本案这套下叠墅的负一层功能以休闲娱乐为主,观影、健身、品酒等均可在这里实现;另外,考虑到业主儿子喜欢打电竞,需要一个独立的电竞室,故乐大姐团队设计老师将地下室东侧的房间和卫生间合并后做成电竞室,并将其开门改到楼梯附近,优化动线。

  • 因为业主没有在客厅看电视的习惯,所以一楼方案上规划了休闲会客厅,并把南入户的阳台纳入到客厅,从而拉升了整个一层的空间感、视觉感。

  • 原结构中本案的楼梯是狭长形的,不仅占用空间,采光还不好,设计老师通过调整楼梯尺寸以及把楼梯栏杆上的非承重墙体拆除改用玻璃扶手来改变逼仄沉闷的格局,整个空间显得十分通透敞亮。

  • 本案除了一楼保留的客房外,所有的卧室都规划到了二楼,动静分离,互不干扰。



全景图

Panorama


图片

点击左下方“https://vr.justeasy.cn/view/1m65ju46083049g8-1657773961.html?_from=jeapp”,即可在线免费看本案例全景图(360°)。


END


往期案例回顾


设计说·第182期 | 589㎡新中式,局限中突破!

图片

设计说·第181期 | 325㎡法式联排,精彩纷呈,韵味无穷!

图片

设计说·第180期 | 257㎡别墅改造,重获新生的魅力!

图片

设计说·第179期 | 310㎡现代简约,以简驭繁,多维生活!

图片

设计说·第178期 | 472㎡中式轻奢别墅,坐拥太湖美景,在家就能感受远方!

图片

设计说·第177期 | 242㎡叠墅实景赏析,给你想要的现代时尚感!

图片

设计说·第176期 | 165㎡精装房大改造,守护生活的仪式感!

图片

设计说·第175期 | 1010㎡江南园林别墅,打造当代“桃花源”!

图片

图片


如果您觉得乐大姐说的内容很有价值

欢迎分享转发至您的朋友圈

让更多的朋友都能轻松装修,自在生活!


当然,您也可以添加乐大姐微信号13382100888

或扫描下方的二维码

说出您的装修难题、让乐大姐为您答疑解惑

不管您是装修完工了

还是即将装修的

或者正在装修的

乐大姐一定知无不言,言无不尽


图片

图片


图片
在看是一种鼓励|分享是最好支持
点击右下角 写留言 发表你的心声
我们期待与您的交流 

长按二维码添加乐大姐微信号

装修不烦 大姐来谈