
乐大姐
FM104.8《家在苏州--乐大姐说装修》栏目特邀嘉宾,
为万千家庭打造幸福家居的同时,也相互成为了好朋友。任何与装修有关的问题,欢迎您添加乐大姐微信:13382100888,
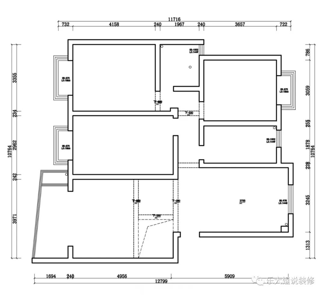
本案这套上叠墅是业主买来准备一家三口长久自住的,所以对装修的效果、品质要求都很高。
最终,乐大姐团队为他们量身定制出了这套现代日式风格,业主夫妻两对效果一见倾心,要求按全景图一比一还原。
摒除繁冗复杂的一切,归回原点,空间传递情感,让生活与艺术不期而遇...
本案业主追求建筑、人、自然的和谐相处。所以设计老师用日式简练的表现形式来满足业主对于空间、环境、感性和理性的需求。用干净利落的线条,使空间变得柔软而有张力。

日式风格重视自然质感,所以本案去除复杂的装饰,用原始的木质色调搭配低调的灰白,颜色过渡自然,弱化了视觉上的冲击,表现出温柔而治愈的力量。
同时,利用原木、棉麻、清新的跳色、留白、结构和光与影的建筑氛围,给业主带来高品质的感受,简洁而克制。

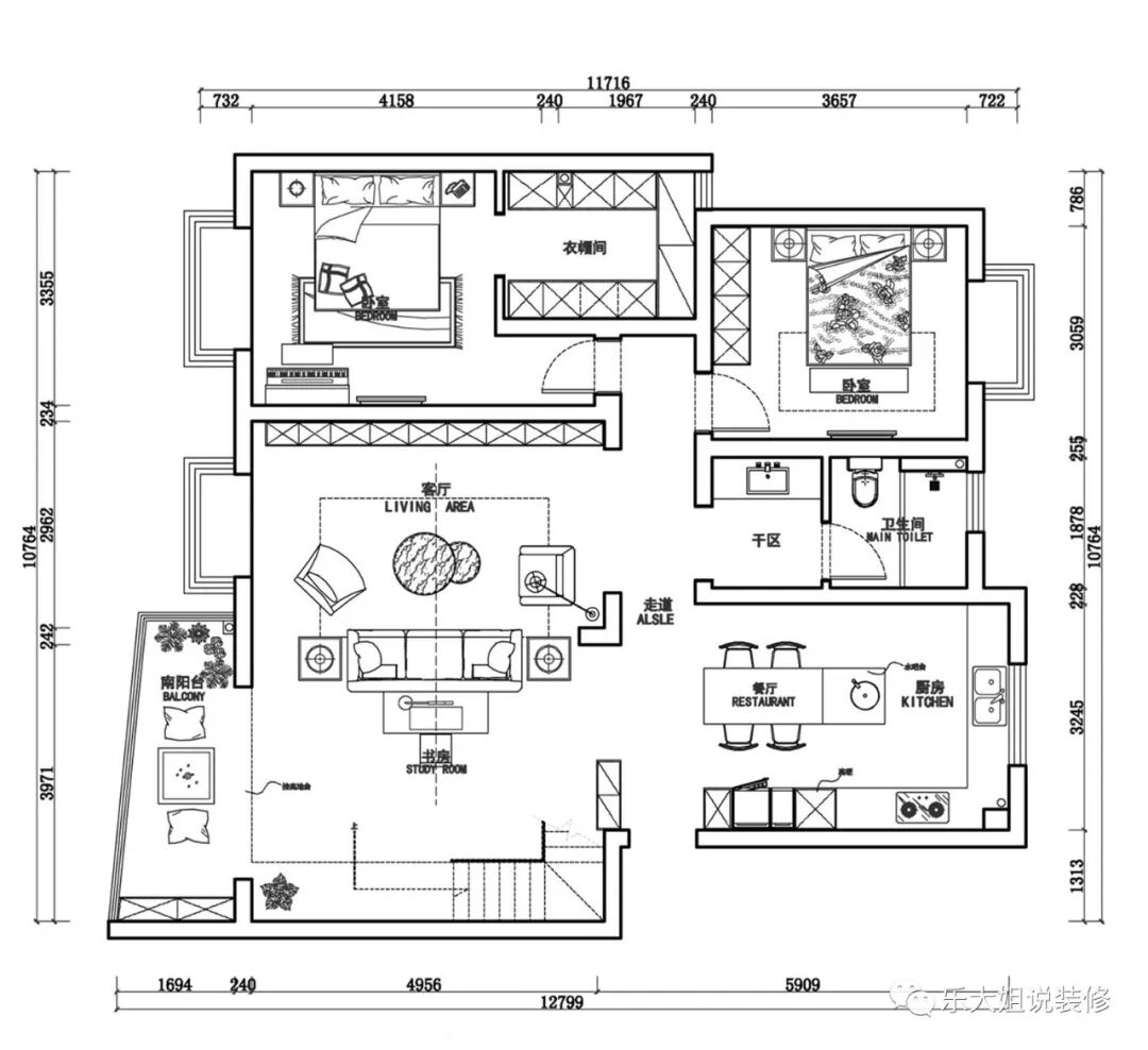
因本案后期常住人口不多(仅2-3人),所以设计时将空间重置,把客厅与一楼东次卧合并后设计成客厅+书房,从而实现流行的大横厅格局,空间十分开阔轩朗。
且,改造后客厅与厨房、餐厅之间形成LDK一体化设计,极大地释放了一层的空间感,给人超200平大平层的既视感。

本案的吊顶设计,独具匠心。客厅打破常规认知的白色吊顶,采取木饰面做侧面围边,加强空间整体感的同时,也为家的温馨感增色不少。书房采用弧形吊顶设计,从而缓和了横梁带给空间的突兀感。餐厨吊顶,采用的是防水石膏板材质,不仅与整体空间相融合,颜值还高,又防潮。

空间自有生命,设计赋予灵魂。阳台&楼梯区域的地台设计,别出心裁,不仅增加了空间层次感,还大大提升了居住的体验感,一股恰到好处的高级风与慵懒风扑面而来。楼梯下面的日式景观设计,一改楼梯底部就是用来做储物的宿命,成为空间里的一道靓丽的风景。
为了让室内设计更加合理,厨房与餐厅之间并没有做区隔,而是采取餐厨一体式的设计,让原本局促的空间更为宽敞舒适。岛台的设计,也增加了空间的使用率。
色彩搭配上,格外运用了亮眼的绿色,在一派温柔中加入一丝惊艳,明亮欢快,活力俏皮。

另外,因空间有限,设计老师将橱柜与餐边柜合二为一,为空间收纳与日常生活便利增加更多的可能性,而高柜紧靠油烟机也方便蒸箱蒸汽的及时排出。



秉承日式风的原汁原味,一楼卧室依然是使用乳白色为基础色,并辅以蜂蜜色的木材。整体造型简约,布艺软装淡雅简洁,突出日式特色,小件软装添加色彩层次。


因本案业主比较忌讳吊灯&吸顶灯正对着床,故所有卧室采用的都是无主灯设计,利用点光源+线形灯带的设计,让空间变得治愈而温暖。

二楼主卧以原木色的木饰面以及亚麻灰的墙布做上下分段的背景,使空间瞬间静下来,辅之以科技感十足的线性灯和柔软而放松的家具,将舒适度做到极致。卧室一角墙上两只慵懒猫咪的挂画,尽显优雅自如。地板、柜门、桌椅都是统一的木色,整屋都散发着清新脱俗的气质。
吊顶的悬浮设计,巧妙地将阁楼斜顶的缺点转化为优势,整个空间灵动中带有一丝趣味!

日式风格的卫生间,通常以白色、黑色、木色为主,空间清爽整齐、大方雅致。马桶上的挂画与仿地板瓷砖背景形成呼应,为空间注入自然的气息。
二楼北面的大露台一分为二,一半是阳光房,作为后期家人活动的区域;另一个打造成开放式的露台花园,还可以作为一家人及朋友BBQ的区域。

开放式露台花园,天然材质与绿植鲜花的叙写,无不体现屋主对于生活的眷恋,淡然、自在、闲适......- 本案位于相城区元和板块,是顶楼复式的结构。原始一楼的格局是常规的三房两厅,乐大姐团队设计老师考虑到本案后期常住人口不多,且还有顶楼可以使用,所以就把一楼的客厅与其相邻的房间打通,做成大横厅的格局,大大提高了家中的空间感。
- 原始餐厅厨房都是很局促的,所以规划布局上做了开放式厨房加上岛台的设计,这样一来增加了餐厨的使用率。
- 一楼主卧卫生间改为衣帽间,增加储物空间,另一个卫生间则采用干湿分离的布局,方便使用。
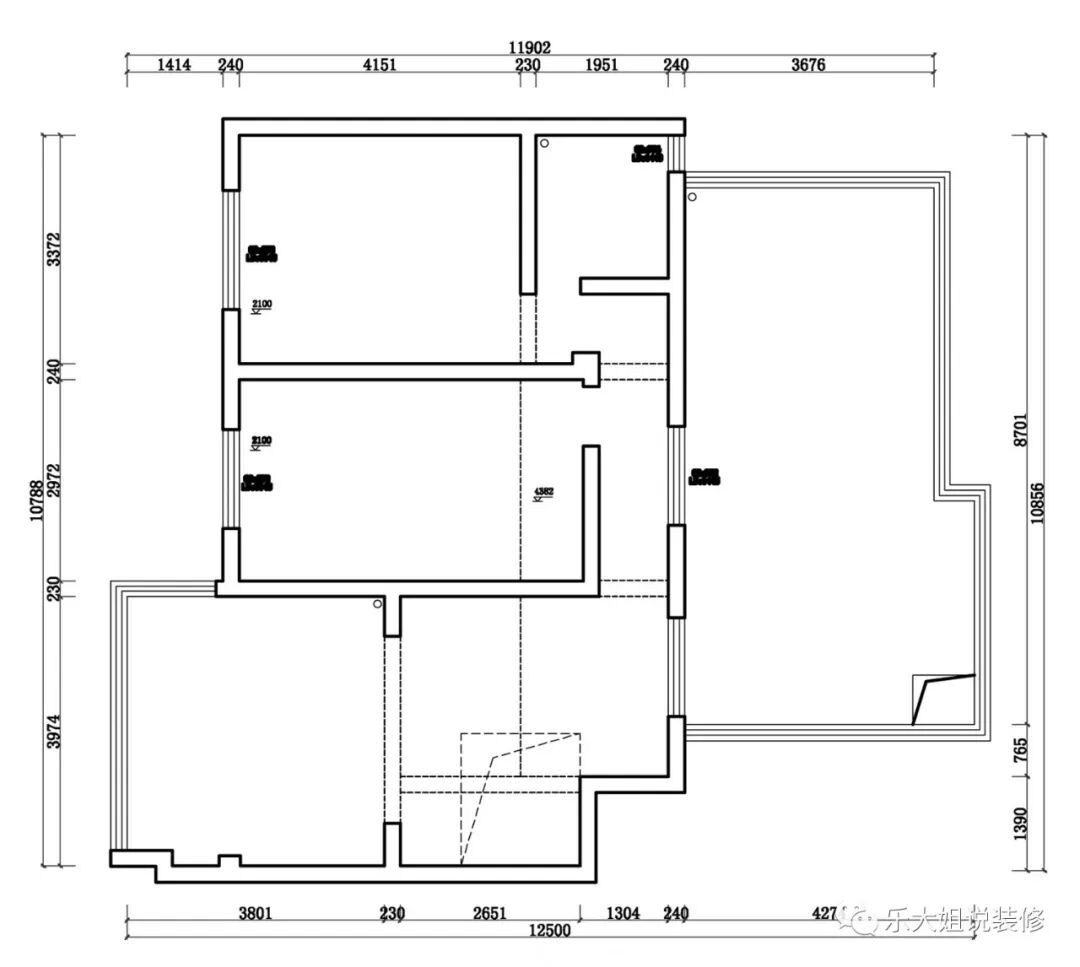
- 二楼将两个卧室合并成一个大的主卧套房,集衣帽间、梳妆台、睡眠区、卫生间等多功能于一体,除了吃饭以外,其他所有事情都可以在这里完成,大大提高了生活品质。

点击左下方“阅读原文”,即可在线免费看本案例全景图(360°)。
END
往期案例回顾
设计说·第183期 | 263㎡现代风,美!

设计说·第182期 | 589㎡新中式,局限中突破!
设计说·第181期 | 325㎡法式联排,精彩纷呈,韵味无穷!

设计说·第180期 | 257㎡别墅改造,重获新生的魅力!

设计说·第179期 | 310㎡现代简约,以简驭繁,多维生活!

设计说·第178期 | 472㎡中式轻奢别墅,坐拥太湖美景,在家就能感受远方!

设计说·第177期 | 242㎡叠墅实景赏析,给你想要的现代时尚感!

设计说·第176期 | 165㎡精装房大改造,守护生活的仪式感!


如果您觉得乐大姐说的内容很有价值
欢迎分享转发至您的朋友圈
让更多的朋友都能轻松装修,自在生活!
当然,您也可以添加乐大姐微信号13382100888
或扫描下方的二维码
说出您的装修难题、让乐大姐为您答疑解惑
不管您是装修完工了
还是即将装修的
或者正在装修的
乐大姐一定知无不言,言无不尽