
乐大姐
FM104.8《家在苏州--乐大姐说装修》栏目特邀嘉宾,
为万千家庭打造幸福家居的同时,也相互成为了好朋友。任何与装修有关的问题,欢迎您添加乐大姐微信:13382100888,
每一套作品,都是私人定制
01
THE CUSTOMER DEMANDS
业主需求
本案这套联排别墅业主已经买了十多年了,一直空关着,现在儿子读大学了,两口子认为可以开始享受生活了!
装修风格上,业主夫妻两中式跟现代都喜欢,考虑到孩子也要一起住,所以乐大姐团队为他们量身定制出了这套年轻人也喜欢的现代中式风格,其中,中式元素仅占比15%左右。那么,这种以现代元素为主的新中式设计会是什么样的一种效果呢?
02
LIVING ROOM
客厅


设计,需要从本能思考,从生活切入,继而认知设计真实的动机。本案延续房屋本体的层高优势,挑高的空间、开放的错层、通透的玻璃幕墙将室内外和各层联系起来,在纵向上不断延伸。现代时尚风格与简洁的线条描绘出精致的生活秩序,深邃沉稳的配色与细腻典雅的中式元素呈现出大气简约与舒适雅致并重的当代美学。

沙发背景“藏”与“露”、“空”与“满”的配比,不同颜色碰撞的处理方式将层高4米多的大空间收拢住,不让挑空格局显得过于空旷,也令客厅更具视焦点。
艺术总在不经意的元素碰撞融合间,迸发出震撼视觉的魅力。一抹蓝色的中国古建筑阙角壁画瞬间点亮了客厅空间的灵魂,给灰调的现代场域带来诗意的气息。

贯穿上下的楼梯始终暗淡,甚至晦涩,尝试在有温度的交互中贯穿冷静,从而在进入另一个场域前,以一种旁白的姿态重新整理出独立的情绪。
-
03
DINING ROOM&KITCHEN
餐厨空间



餐厨区最具人间烟火,也是家庭生活的重要区域,设计老师通过格局改造将餐厅、中厨、西厨之间相互打通,营造出足够的开放性,让人在空间中可以自由栖居。


餐厅空间的气质与美学,借由极富创意的视角铺展开来。转角屏风设计+留白艺术处理,散发阵阵诗意和浓郁的现代人文气息,于形与意、态与势之间展露出优雅风范。大理石岛台与木质餐桌无缝贴合,温润清澈,形成安静且极具张力的空间语境,极简中包含着更深渺空远的“意境”。
-
04
MISTRESS ROOM
女主人卧室


静雅是乐大姐团队设计老师为女主人卧室营造的姿态,布艺的软糯温柔、木质的原生触感、玻璃的轻盈灵动,在温柔与纯净间,打磨出空间的肌理与质感,让生活的细节在岁月静好中散发恰到好处的温度。无主灯设计,将灯光收纳于吊顶内、墙面上,使室内显得更为柔和安适。

阳台休闲区由于是原露台外扩的,边上有根上下贯通的承重柱,不能拆,显得十分扎眼。设计时,就依着这根柱子做了一个环形的书架,让其成为空间独特的装饰。地台上,原木、清茶、花卉交汇在一起,清甜而微香。晨间的日光柔和,夜晚的月色明澈,一杯清茶,共待流年。
-
05
MASTER ROOM
男主人卧室

不同于女主人卧室的软糯温柔,男主人卧室的色调更加深沉。深灰、深木纹的大面积运用,让整个空间气场沉稳、触目饶有韵味的同时,还营造出深邃而静谧的室内氛围,让人不自觉有一种舒适自然的放松感,很是惬意。

二楼原露台被一分为二成两个房间的室内阳台,因为男业主工作了一天回到家最喜欢的就是“葛优躺”,放松放松自己。
-
06
BATHROOM
卫生间

卫生间顺滑的大理石搭配玻璃材质,营造清亮通透的空间氛围。台盆柜以独特的造型,打破空间的沉闷感,时尚而又不缺乏质感。
07
SON'S ROOM
儿子房


顶层作为儿子的私属空间,设计老师根据斜顶高度的变化,合理地规划了学习区、休闲区、睡眠区、卫浴区四大功能,空间有序分割,有效利用各个区域和角落。



床头采用了木饰面、岩板和硬包等多种材质的拼接,细腻地拿捏简与繁之间的平衡,大大提升了空间质感,绅士情怀氤氲而出。


另外,设计老师利用顶楼原有的挑高空间做了“楼中楼”的设计,这样不仅增加了儿子套房的空间层次和视觉延伸感,还让套房与阁楼之间更加地贯穿了起来。阁楼是集书房、休闲区以及影音室于一体的多功能空间,在这里看大片、办公学习、休憩都非常的有感觉。
-
08
COURTYARD
院子
庭院即世界,心中有田园。踩着小石板铺就的小径,踏入防腐木铺就的地台上,感觉仿佛来到了闲适悠然的度假小镇。满眼郁郁葱葱、生机勃勃的花草树木,最是适合茶与书的相伴,氤氲朦胧,偷的浮生半日闲......
-
09
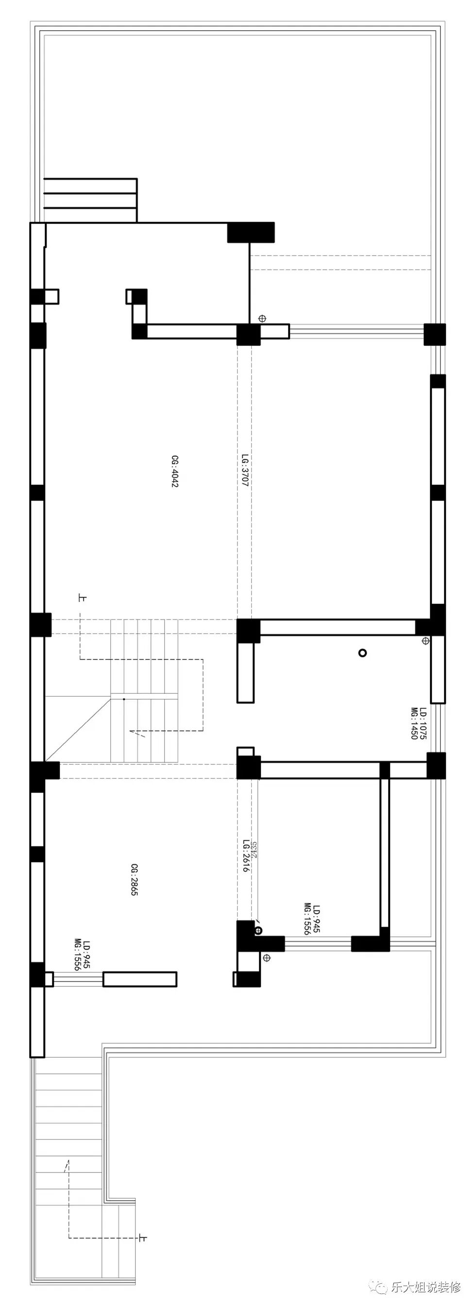
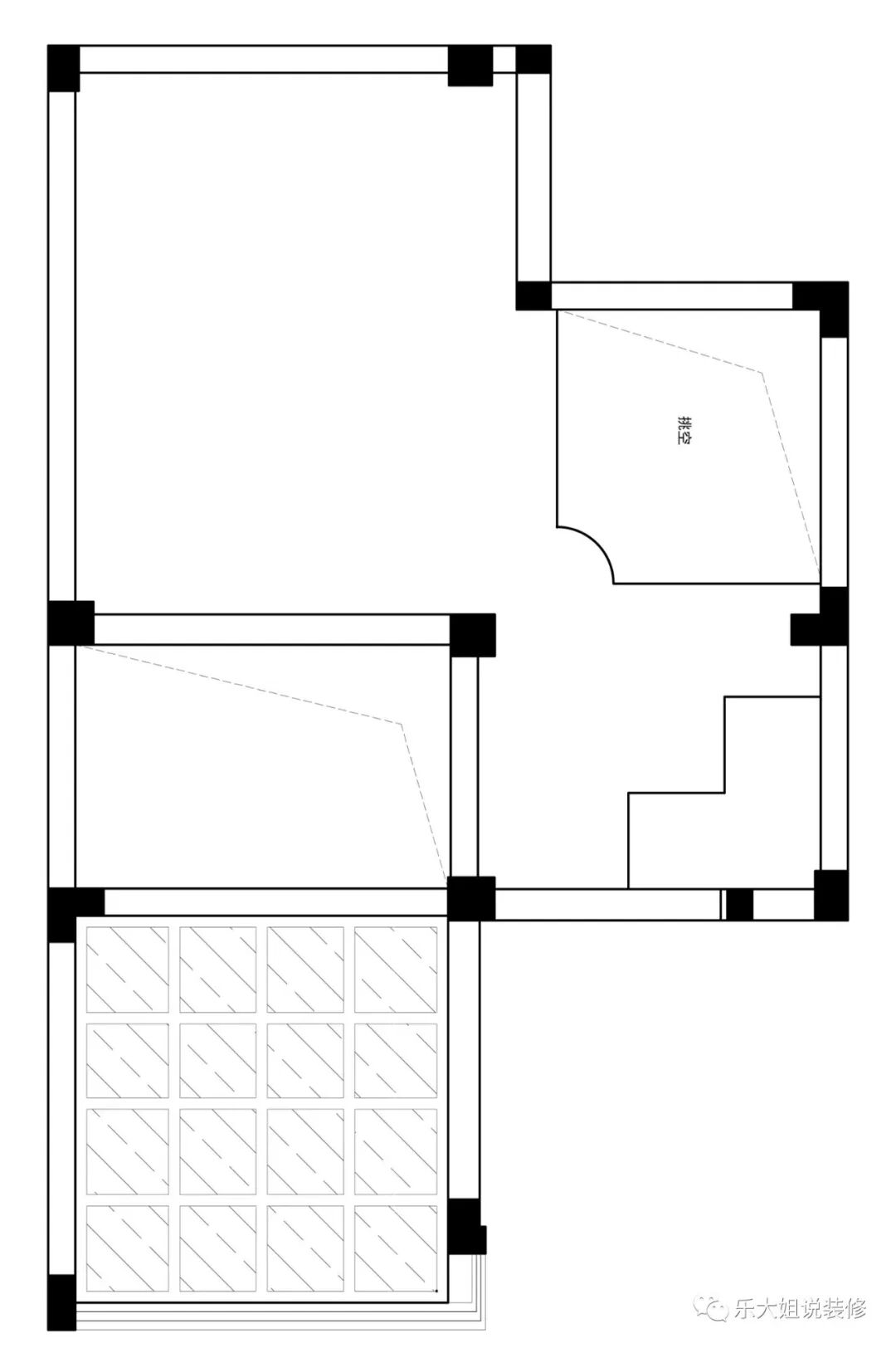
FLAT PLAN
平面方案

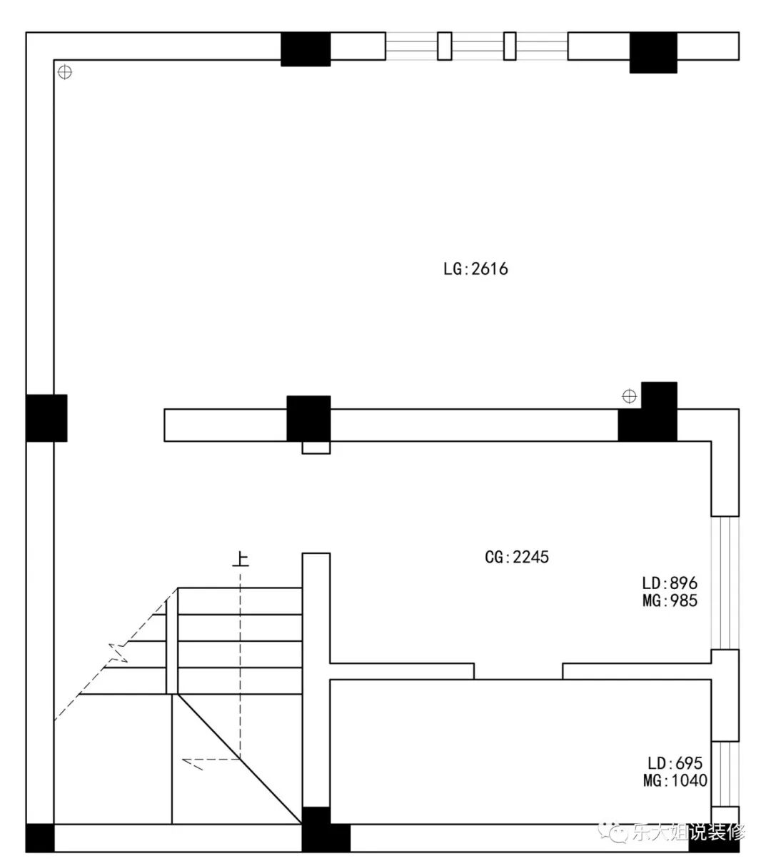
地下室改造后户型图

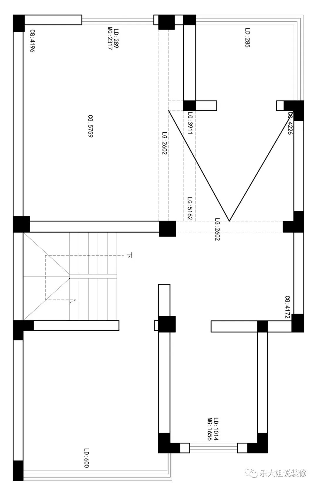
一层原始户型图

一层改造后户型图

二层原始户型图

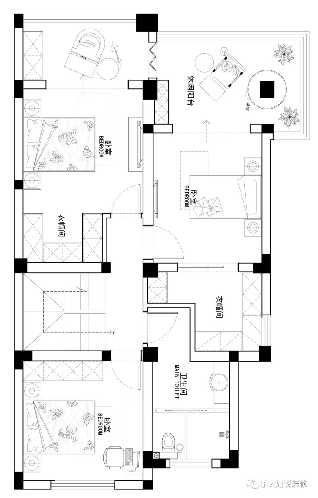
二层改造后户型图

三层原始户型图

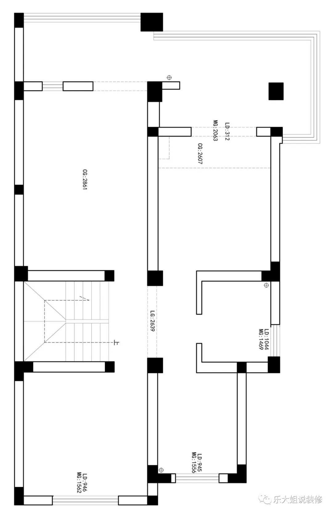
三层改造后户型图

阁楼原始户型图

阁楼改造后户型图
原结构中地下室的小套间,卧室与卫生间之间不仅比例失调,且通风采光也不好,所以设计老师调整了两者的空间比例,并采用玻璃隔断来划分空间,从而使得整个空间既大气又明亮。
一楼将北阳台纳入到北门厅、餐厅和厨房,从而增加各空间的使用面积,且厨房还分离出了中西厨,进而丰富了家居功能性。
原结构中,一楼南进门直对着楼梯且整个动线是向下走向,业主比较忌讳,而楼梯的位置又不好改动,所以就将南大门的位置做了调整。
二楼朝南有一个贯穿东西的大阳台,但日常使用率并不高,而原结构中朝南的两个卧室面积又比较小,所以设计时就将阳台纳入到两个卧室内来扩大了室内空间。
考虑到业主对二楼朝南的两个房间的要求是套房,所以设计时将原来的公卫改成女主人卧室的衣帽间,并将公卫挪至最北边供二楼三个卧室同时使用。
三楼除洗衣房以外,其他空间全部规划为儿子套房,内有睡眠区、休闲区、梳妆区、盥洗区,且设计老师还利用这一块的挑空空间做了楼中楼的设计,极大地丰富了空间的层次与功能。
10
PANORAMA
全景图
点击左下方“阅读原文”,即可在线免费看本案例全景图(360°)。
END
往期案例回顾
设计说·第184期 | 203㎡日式原木风,超治愈!
设计说·第183期 | 263㎡现代风,美!

设计说·第182期 | 589㎡新中式,局限中突破!
设计说·第181期 | 325㎡法式联排,精彩纷呈,韵味无穷!
设计说·第180期 | 257㎡别墅改造,重获新生的魅力!
设计说·第179期 | 310㎡现代简约,以简驭繁,多维生活!
设计说·第178期 | 472㎡中式轻奢别墅,坐拥太湖美景,在家就能感受远方!
设计说·第177期 | 242㎡叠墅实景赏析,给你想要的现代时尚感!

如果您觉得乐大姐说的内容很有价值
欢迎分享转发至您的朋友圈
让更多的朋友都能轻松装修,自在生活!
当然,您也可以添加乐大姐微信号13382100888
或扫描下方的二维码
说出您的装修难题、让乐大姐为您答疑解惑
不管您是装修完工了
还是即将装修的
或者正在装修的
乐大姐一定知无不言,言无不尽