
乐大姐
FM104.8《家在苏州--乐大姐说装修》栏目特邀嘉宾,
赫博别墅设计创始人之一;
多次受邀成为院校家居的授课讲师;
98年至今,
为万千家庭打造幸福家居的同时,也相互成为了好朋友。
任何与装修有关的问题,欢迎您添加乐大姐微信:13382100888,
乐大姐会为您做一对一解答。

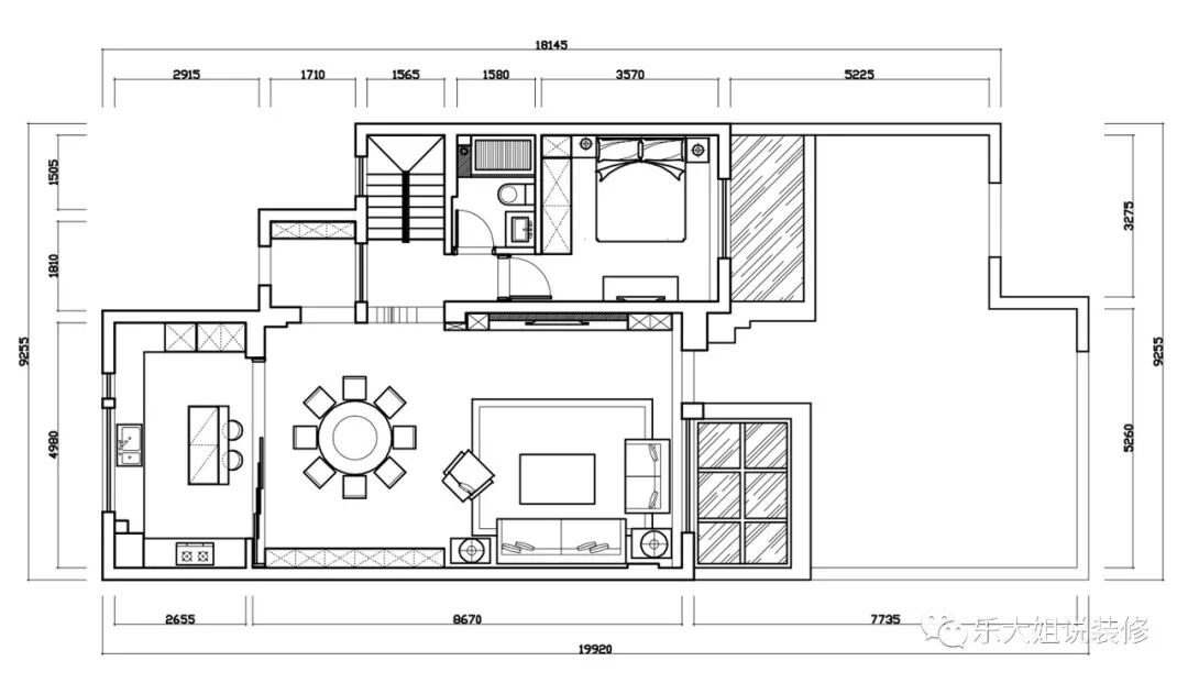
在众多装修风格中,美式拥有独树一帜的个性与内涵,成为很多人心中的选择与爱好。而本案这套下叠墅的设计并没有拘泥于单一的美式风格,还有现代因子,两者相碰撞,形成有别于经典美式的轻盈感。今天就跟乐大姐一起到这套276㎡叠墅里感受下现代美式的魅力吧
~

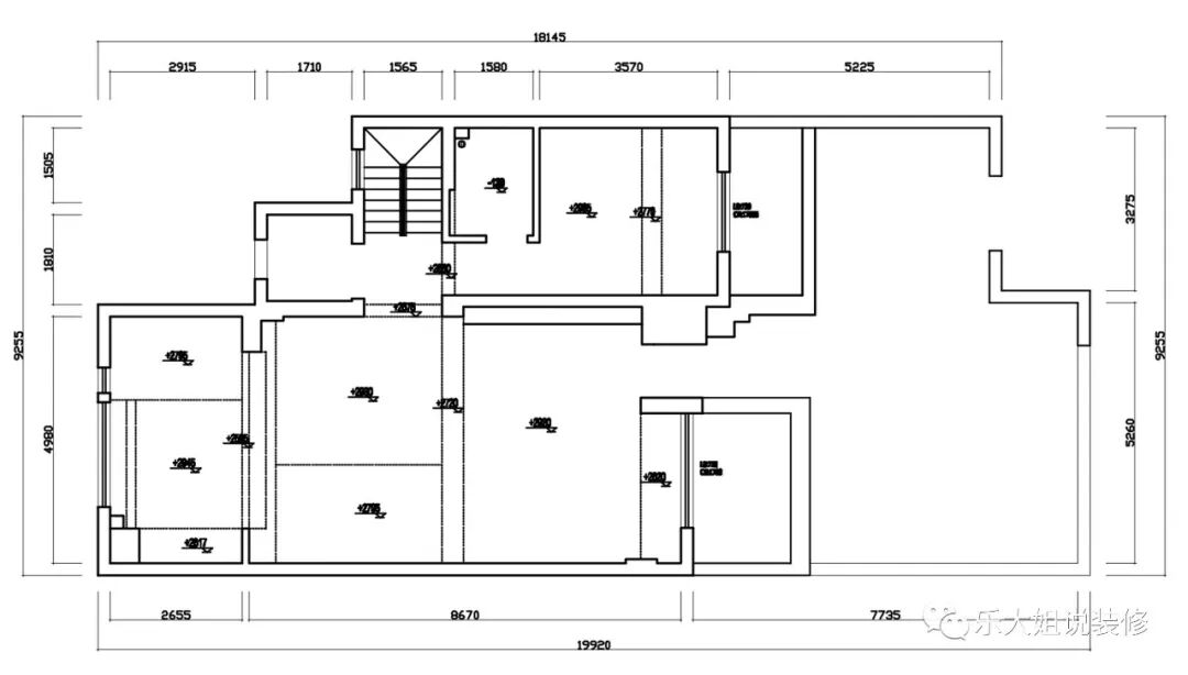
一层原始户型图
点击左下方“阅读原文”,即可在线免费看本案例全景图(360°)。
https://vr.justeasy.cn/view/1zc6a262617d5338-1650790585.html
本案是套下叠墅,总共三层,276㎡,位于姑苏区中心地段,交通十分便利。在装修风格方面,业主希望在家里体现美式浪漫的情结,但绝不要市面上那种“繁复的美式”,要创造出专属于自己的“奢华”生活品位。那么,最终让业主倾心不已的美式的家到底是什么样子的呢?
▲ 乐大姐团队&桐胥雅苑女业主合影留念
拍摄现场,在和乐大姐、苏州电视台《第一时间》拍摄老师等聊天的过程中,业主张女士说“我自己就是从事工装工作的,但是我却选择了把装修托付给了你们乐大姐团队,就是因为你们更专业,做出来的效果很不错,然后我闺蜜也一直跟我推荐你们,最终的结果证明我跟我闺蜜当初的判断和选择是正确的!装修出来的就是我理想中的家!”说到装修风格,女业主接着说道:“其实我老公很喜欢中式风格,但是我不喜欢中式,太深沉了,我们现在住的房子装的就是那种深色系的美式风格,才住了5、6年,我就不喜欢了。不过,我还是钟情于美式风格,你们乐大姐团队为我们量身定制的这套现代美式,我很喜欢!”
▲ 乐大姐正在拍摄苏州电视台《第一时间》解析样板房装修知识点拍摄当天,业主把她的闺蜜沈姐也带到了现场,沈姐楼上楼下看了一圈之后跟乐大姐说“这个房子装修是我推荐我小姐妹去找你们乐大姐团队的,因为我看了你们朋友圈蛮长时间了,我觉得蛮好的,就推荐给她了,现在来看看确实不错,将来我自己的房子装修也一定要找你们乐大姐团队!”女业主和闺蜜沈姐的感情非常好,女业主说:“我闺蜜两口子的感情好的要命,去哪里他俩都要一起,由于我老公从事服务业的,哪哪都去不了,所以我们常常是三个人出行的,我永远都是那个“电灯泡”!”闺蜜老公说:“我就喜欢跟我老婆在一起,她们闺蜜聚会,我就是专用车夫!”

▲ 乐大姐正在拍摄苏州电视台《第一时间》解析样板房装修知识点

当天晚上整个竣工酒进行了3、4个小时,聊了很多话题,比如:装修、二十多年闺蜜的相处过程、夫妻的相处之道、各自的孩子、旅游、买房、工作……最后还是觉得意犹未尽。乐大姐跟业主彼此约定了按照乐大姐团队的服务观点:一次装修,一生朋友!装修虽然刚刚结束了,朋友相处模式才刚刚开始,要处一辈子的!
END
往期案例回顾
设计说·第184期 | 203㎡日式原木风,超治愈!
设计说·第183期 | 263㎡现代风,美!

设计说·第182期 | 589㎡新中式,局限中突破!
设计说·第181期 | 325㎡法式联排,精彩纷呈,韵味无穷!
设计说·第180期 | 257㎡别墅改造,重获新生的魅力!
设计说·第179期 | 310㎡现代简约,以简驭繁,多维生活!
设计说·第178期 | 472㎡中式轻奢别墅,坐拥太湖美景,在家就能感受远方!
设计说·第177期 | 242㎡叠墅实景赏析,给你想要的现代时尚感!

如果您觉得乐大姐说的内容很有价值
欢迎分享转发至您的朋友圈
让更多的朋友都能轻松装修,自在生活!
当然,您也可以添加乐大姐微信号13382100888
或扫描下方的二维码
说出您的装修难题、让乐大姐为您答疑解惑
不管您是装修完工了
还是即将装修的
或者正在装修的
乐大姐一定知无不言,言无不尽