
乐大姐
FM104.8《家在苏州--乐大姐说装修》栏目特邀嘉宾,
为万千家庭打造幸福家居的同时,也相互成为了好朋友。任何与装修有关的问题,欢迎您添加乐大姐微信:13382100888,
每一套作品,都是私人定制
本案这套独栋别墅是业主给大女儿准备的婚房,所以对装修的效果非常看重!但业主一家对设计风格却并没有什么具体的想法,那么怎样才能打造一套不负女孩万分期待的婚房呢?
乐大姐团队根据小区的外观、房子的户型特点以及业主女儿的喜好,为其量身定制了这套现代法式的设计。当整体效果出来后,女儿喜欢度高达98%,仅微调了几个小细节。
整个小区的风格是欧式的;
外观还搭配了拱形的窗户;
顶楼尖顶的最高点(层高)有6米多;
见惯了繁华的堆砌,现代法式的优雅与浪漫,某种意义上更符合当代人的精神追求。
推开南大门,门厅极富代表性的纯白色穹顶,与经典法式立柱的搭配令人眼前一亮。而北入户彰显轻奢质感的玻璃金属隔断,“犹抱琵琶半遮面”,又为室内的景色增添了一丝神秘,仿佛置身于一个法式艺术展览馆。



一致的奶油系色调,赋予整体空间独特的柔和与现代感,治愈感十足。而克莱因蓝&咸菜绿的惊艳跳色,让空间更显灵动,高级又浪漫,营造出别样的法式风情。
软装起承转合着空间的精致格调,柔和的沙发线条、哑光金属与轻盈细腻的绒布,犹如优雅的女士,搭配大理石高低组合茶几,令作为社交属性的客厅更显格调。瓷砖波打线的大面积不规则纹路,凸显出纵深的线条感,丰富了空间的视觉层次。

客厅作为公共区域,设计上却做到了有效而又不积累的优化。电视背景和开放式展示柜,在保证私密性的前提下让公共空间串联成一个整体,通透的设计让光线自然流动、开放、融合,层层展开,呈现静默着的优雅。
“空间无界、感官无界、体验无界”是餐厅设计的核心理念,将居住者的社交舞台进一步扩大。
餐厅布置多以暖色为主,简雅中流淌出对生活品质的细腻追求。品牌餐椅的选用,兼具法式与现代的优雅感,中岛的加入,似对抗着生活的压力,让四季三餐、一蔬一饭在家的外壳下,获得超乎果腹的意义。


角落的法式立柱与水晶吊灯、玻璃金属隔断相呼应,让法式的优雅精致在空间中流动,将本应属于生活的慢节奏,不经意间传达至家中每处。


本案厨房的布局,完美体现了设计与空间的糅合。设计老师保留了原厨房双开窗设计,最大限度地引入室外日光,中间的实墙则用来安置灶台,十分巧妙。而原结构中窗户边的承重柱虽没动,但在其与墙体的空隙之间又做了一组收纳柜,真正意义上做到了空间一点都不浪费。
L型操作台作为视觉界面将中厨与西厨分隔,灵活的布局释放共享空间的同时满足女主人对社交型厨房的向往。

干净整洁的厨房,光线充足,舒心的烹饪环境,远远不止于诉说感官的愉悦,它还可以逐渐融入感情,抵达心灵。

多功能房直观地展示着业主一家的规划需求,也凸显设计老师对于空间尺度与功能的合理把控。有宾客的时候,可以在这里喝茶谈天,打麻将娱乐;平时可以在这里写写画画,将生活的惬意与闲适娓娓道来。而随处可见的储物收纳,体现了实用与美学性的兼具。


为匹配业主夫妻两的生活需求与社交圈层,二楼大半空间被设计为主卧套房。踏入卧室的瞬间,大尺度的空间布局、温暖的色调,带来舒逸的氛围、享受的意趣。
主卧沿用与客厅相同护墙板,维持空间调性的一致性。床头背景上延长的弧形展示面与孔雀蓝的弧形绒面高背床呼应着,在流动的线条中,在强烈的跳色里,展现着独一无二的视觉张力,为空间平添几分柔和与精致。

设计老师利用超大转角异形阳台引景入室,顺延窗体构成地台形态,其上设置舒适的贵妃榻为居住者提供极佳的赏景视角,近距离感受自然,真正实现"长在自然里的家"。


精致生活离不开完善的生活功能空间,衣帽间收纳生活、展现品味。


主卧卫生间采用干湿分离设计,并且设置双台盆和浴缸,这样不仅增加了空间仪式感,功能也更加齐全。自然纹路的白色大理石与黑色地砖,搭配出时尚质感。


女儿的婚房位于三楼,酒店式套房设计给予生活更多便利与享受。乐大姐团队设计老师延续空间轻法风格的调性,在碰撞与融合中加入创新设计。穹顶设计是空间的点睛之笔,拉伸视觉纵深感的同时满满的宫廷感与奢华气派。筒灯四周角花枝蔓缠绕交织,个性与品味兼具。夜幕初临,等待一束柔光亮起,点亮满屋的浪漫。



所有深度的体验都隐藏于细节,女儿主卧典雅高级的明暗色调搭配,护墙板、石膏线条/角花、布艺、石材与金属的材质邂逅,从视觉、触感等知觉获得的审美愉悦,是感受空间最直观的方式。
床头两侧增加的收纳柜,巧妙地化解了因尖顶处承重梁的存在导致的不规则墙面,使空间界面更具艺术整体性。


女儿房主卫台面区域,墙砖采用莫兰迪灰豆绿系列,与定制台盆柜的颜色保持统一,设计上如此与众不同,非常有个性。金属隔断,在清晰划分空间的前提下彰显奢华。
本案茶室设计以简淡为尚,将茶的意蕴与现代生活融合,为心灵留一处理想的休憩之所。



次卧,高级温暖的哑光色、线条明快的家具搭配色泽柔和的床品,营造出一种最适配生活的平衡之美,不多一分矫饰,优雅而从容。

落地窗一角赋予空间更多趣味性,闲暇时坐在地台上,享受阳光下舒适的生活姿态,任时光在空间中流动,自在安宁。
本案超大面积的庭院花园,不仅构建了归家的情怀及日常居住的闲适时光,其尺寸更决定了光的流动性和空间的舒适性。门廊相迎,俯仰天地为伴。




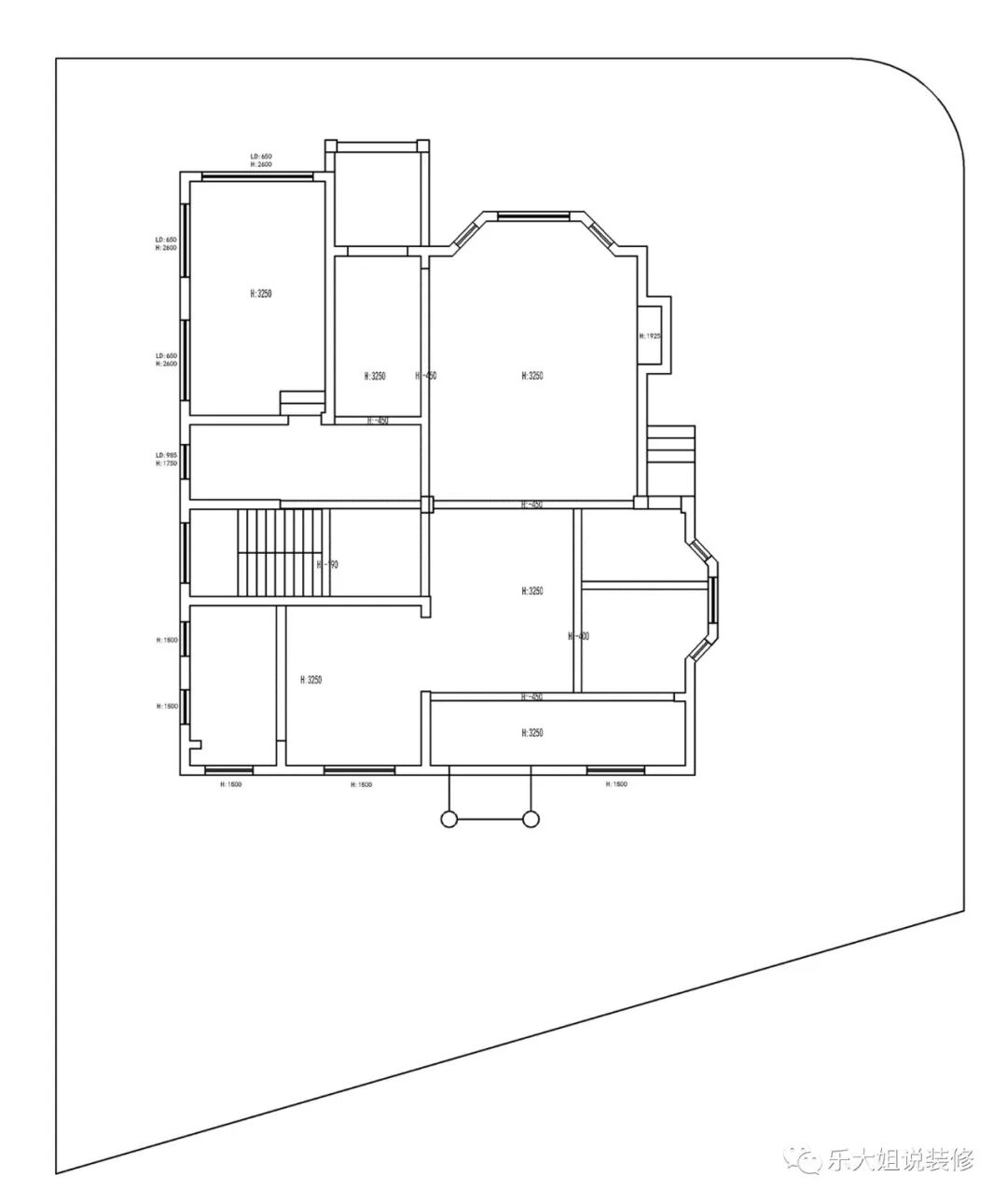
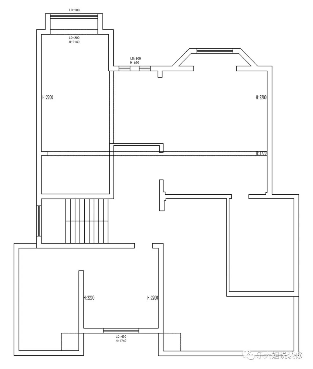
三层原始户型图

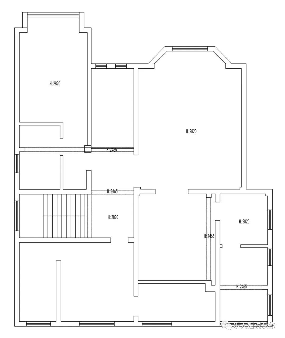
三层改造后户型图
- 本案这套独栋别墅原始结构合理、户型方正、南北通透,所以需要改动的地方并不多;
- 本案一楼重新规划了北入户门厅(包括独立鞋帽柜区域),对厨房区域合并了中西厨房,餐厅区设置了水吧台和冰吧区域,这样后期使用时可彼此借空间又互不干扰;
- 将一楼客厅电视背景规划到东面,坐西朝东,最大化地保证了家的隐私性,且背景采用双门洞设计,双进双出,动线因此更加流畅。
- 二楼规划了三个独立套房,一个主卧套房和两个次卧套房,空间独立又舒适。另外,为了主卧的私密性和仪式感,主卧房门调整为双开门,打开双开门首先看到的是衣帽间,往南是睡眠区,往东是卫生间,而各区域之间玻璃移门的运用,则保证了空间的通透性。
- 本案三楼重新规划后女儿卧室套房是本案面积最大的,同时也是最有特色的一个套房了,房子三楼楼顶是尖顶,层高比较高,所以吊顶做了穹顶的设计,功能上也是最全的,包括卧室独立门厅、起居室、衣帽间,等等。
点击左下方“阅读原文”,即可在线免费看本案例全景图(360°)。
https://vr.justeasy.cn/view/a1866p135211z796-1665550247.html
END
往期案例回顾
设计说·第187期 | 287㎡小联排,如何装出“大宅范”?
设计说·第186期 | 276㎡现代美式,优雅与时尚并存!
设计说·第185期 | 340㎡现代中式,古韵新生!
设计说·第184期 | 203㎡日式原木风,超治愈!
设计说·第183期 | 263㎡现代风,美!

设计说·第182期 | 589㎡新中式,局限中突破!
设计说·第181期 | 325㎡法式联排,精彩纷呈,韵味无穷!
设计说·第180期 | 257㎡别墅改造,重获新生的魅力!

如果您觉得乐大姐说的内容很有价值
欢迎分享转发至您的朋友圈
让更多的朋友都能轻松装修,自在生活!
当然,您也可以添加乐大姐微信号13382100888
或扫描下方的二维码
说出您的装修难题、让乐大姐为您答疑解惑
不管您是装修完工了
还是即将装修的
或者正在装修的
乐大姐一定知无不言,言无不尽