
乐大姐
FM104.8《家在苏州--乐大姐说装修》栏目特邀嘉宾,
赫博别墅设计创始人之一;
多次受邀成为院校家居的授课讲师;
98年至今,
为万千家庭打造幸福家居的同时,也相互成为了好朋友。
任何与装修有关的问题,欢迎您添加乐大姐微信:13382100888,
乐大姐会为您做一对一解答。

优秀的设计,
也要靠优秀的交付来实现。
从设计蓝图到家的最终落成,
从畅想家的样子到纵享家居生活,
离不开的是客户的信任与配合,
离不开的是交付团队的辛勤付出。
完美的交付,
就是最好的自宣!
——by乐大姐团队
每一套作品,都是私人定制
项目地点:晋府水巷(独栋)
项目风格:意式轻奢
设计潮流转变如此之快,这才刚刚普及了北欧风,人们的目光便又转向了具有精英人士审美的意式轻奢,那么到底什么是意式轻奢风格呢?意式轻奢有什么样的特征呢?今天就跟乐大姐一起来看看这套590㎡意式轻奢独栋别墅吧
~

































































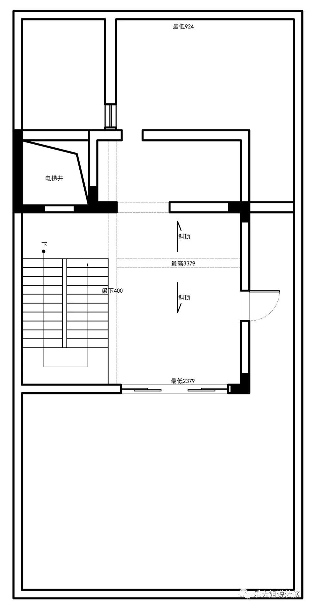
三楼改造后户型图
全景图
点击左下方“阅读原文”,即可在线免费看本案例全景图(360°)。
https://vr.justeasy.cn/view/146h0135o8c8w3l5-1646186533.html
本案位于姑苏区北园路,与苏州著名园林拙政园相邻,属于闹中取静的景区独栋别墅,地下一层,地上三层,室内共590㎡,外加一个40㎡的顶楼露台及45㎡的正南院(边院&后院还有50多平米)。男业主是外地人,当初一个人来苏州开厂创业,娶了苏州媳妇,夫妻两人感情很好,女儿目前在国外读书,在当地也是非常让人羡慕的一对!业主一家现在住在一套140㎡的房子里,所以对这套独栋别墅寄予了非常大的期望。
满意度100%
▲ 乐大姐团队在小区大门处合影留念
本案在设计之初,男业主皮先生提出的第一个要求就是要体现奢华,他们不喜欢现代简约,觉得太过于清汤寡水,也不喜欢欧式、美式,觉得繁琐厚重,所以乐大姐团队为他们量身定制了这套意式轻奢的设计,当看到方案的时候男业主拍着桌子说:“漂亮,这就是我想要的,这才是配得上我家别墅的设计,我要求一比一还原到我家,哪怕是一幅画、一个摆件都要确保还原到现场!”所以,本案的雕塑、挂画及灯具绝大部分都是根据设计让厂家定制的产品,还原度极高!也因此,皮先生说“最终的装修效果我们超级满意,这就是我们想要的家。”
▲ 乐大姐正在拍摄苏州电视台《第一时间》解析样板房装修知识点
现场女业主许女士还特别夸奖了本案设计老师,因为装修快要结束时,女业主临时提出来要增加一个扫拖机器人,而这不仅涉及到电路、水路的排布,还要有地方放,关键不能影响整体的美感,确实伤脑筋,设计老师最终想出了一个非常巧妙的位置,那么到底放在了哪里呢?大家可以在图上找出来哦
!另外,本案的配电箱、智能设备的控制箱也都被隐藏得很好!

▲ 乐大姐正在拍摄苏州电视台《第一时间》解析样板房装修知识点
竣工酒现场,男业主和乐大姐、苏州电视台《第一时间》拍摄老师聊到与乐大姐团队的合作,说道“我们家和乐大姐团队的缘分来自我老婆,她关注乐大姐团队4、5年了,非常喜欢乐大姐团队的服务方式,买完这套房子,她就说一定要到乐大姐团队定装修,一开始我是不开心的,因为其它的装修公司她都不让我看,而我是想多看几家再做选择的!不过,现在我们对于当初的选择可以说一点都不后悔,因为虽说整个别墅装修的周期真的很长,但是我们并没有怎么操心!”

▲ 乐大姐正在拍摄苏州电视台《第一时间》解析样板房装修知识点
说到装修,皮先生还提到:“当初我推荐了一个朋友找你们装修,那个朋友要装太湖边上300多平米的别墅,他准备100万以内拎包入住,到你们团队了解之后嫌贵,后来找了一家半包公司装修的,自己到处买材料,管工地,搞得烦的要命,经常跟我抱怨,到现在装修还没有结束就已经花掉300多万了,还说装修的风格他自己也看不懂
!”竣工酒快结束的时候,男业主发出诚挚的邀请:“我很喜欢乐大姐团队的服务理念,一次装修,一生朋友,我认为要做生生世世的朋友,接下来各位有时间就到我们家打牌、喝茶、吃饭、聊天、K歌!”
“装修对于我们团队来说只是忙活了一阵子,业主一家人却可能要住一辈子,所以任何一套装修项目,我们都要全力以赴,必须对得起业主当初对乐大姐团队义无反顾的选择!”

END
往期案例回顾
设计说·第188期 | 574㎡婚房,法式浪漫!
设计说·第187期 | 287㎡小联排,如何装出“大宅范”?
设计说·第186期 | 276㎡现代美式,优雅与时尚并存!
设计说·第185期 | 340㎡现代中式,古韵新生!
设计说·第184期 | 203㎡日式原木风,超治愈!
设计说·第183期 | 263㎡现代风,美!

设计说·第182期 | 589㎡新中式,局限中突破!
设计说·第181期 | 325㎡法式联排,精彩纷呈,韵味无穷!

如果您觉得乐大姐说的内容很有价值
欢迎分享转发至您的朋友圈
让更多的朋友都能轻松装修,自在生活!
当然,您也可以添加乐大姐微信号13382100888
或扫描下方的二维码
说出您的装修难题、让乐大姐为您答疑解惑
不管您是装修完工了
还是即将装修的
或者正在装修的
乐大姐一定知无不言,言无不尽