清水江南别墅整装

设计说·第193期 | 199㎡顶复新中式,清新雅致!

发布时间:2023-01-05

图片

乐大姐

FM104.8《家在苏州--乐大姐说装修》栏目特邀嘉宾,

赫博别墅设计创始人之一;
多次受邀成为院校家居的授课讲师;
98年至今,
为万千家庭打造幸福家居的同时,也相互成为了好朋友。
任何与装修有关的问题,欢迎您添加乐大姐微信:13382100888
乐大姐会为您做一对一解答。


图片



图片

·



从一间房子变成一个“家”

这过程需要付出很多的心血,

开工仪式还历历在目,

样板房拍摄已如期而至,

这不仅仅代表着一份成果,

更代表着

完成业主梦想中家的承诺,

有始有终才算圆满!



每一套作品,都是私人定制



/

实景赏析

  看别人的家  装自己的生活 


项目地点:新城花园

项目面积:199㎡

项目风格:新中式

项目性质:别墅整装

项目状态:已交付


很多想装新中式的业主都会有这样的困惑,中式家具太大,颜色太厚重,我家面积不大,如果装新中式,会不会闷?会不会压抑?那么,今天乐大姐就要和大家分享一套199㎡顶楼复式新中式实景现场,跟乐大姐一起来看看小空间的新中式是如何设计的吧图片~

图片

图片

图片

图片

图片

图片

图片

图片

图片

图片

图片

图片

图片

图片

图片

图片

图片

图片

图片

图片

图片

图片

图片

图片

图片

图片

图片

图片

图片

图片

图片

图片

图片

图片

图片

图片


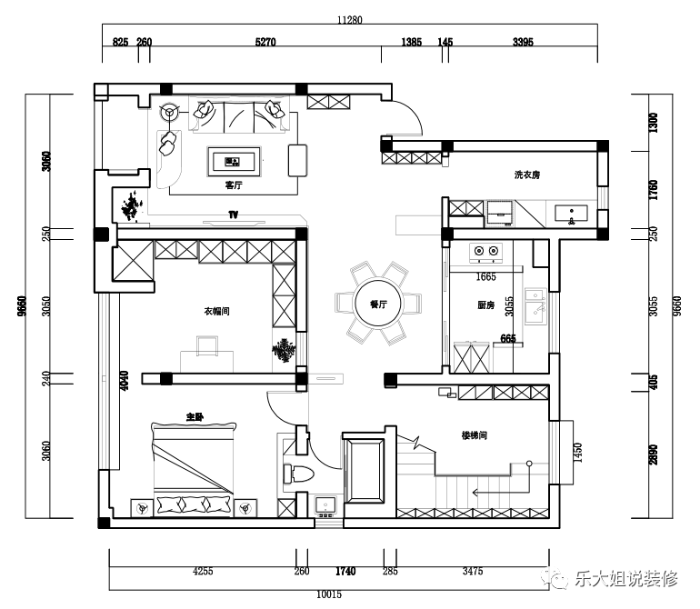
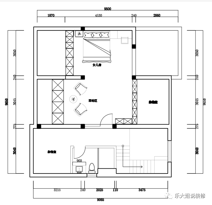
平面方案


图片

一层原始户型图

图片

一层改造后户型图

图片

二层原始户型图

图片

二层改造后户型图


设计全景图


图片
点击文章底部左下方“阅读原文”,即可在线免费看本案例全景图(360°)。


/

业主说

   装修背后的故事   


本案是业主很早之前买的二手房,拿房后没有重新装修,只是添置了点家具就直接搬进去住了,住了大概十年的时间,但是在这个过程中业主觉得之前装修的格局、效果、细节与自己的审美习惯、生活习惯很不符,加上材料的使用寿命到了期限,就想彻底重新装修下!


风格上,本案业主夫妻两比较喜欢中式,且女业主平时有礼佛的习惯,喜欢一些禅意的陈列,所以整体定位为中式风格,不过因本案是顶楼复式户型,一层108平,二层能正常使用的只有51平,还有40平层高都不足1米,如果做传统的中式风格会显得压抑,故乐大姐团队特地为他们量身定制了这套浅色系的雅致新中式风格,业主两口子都非常喜欢。

满意度100%


图片

▲乐大姐团队&新城花园业主夫妇合影留念


拍摄现场,在和乐大姐、苏州电视台《第一时间》拍摄老师等聊天的过程中,女业主苏女士说:“我们这套房子确定要装修的时候,就义无反顾地选择了乐大姐团队,而且我们是第一次见面就直接签约的,因为我们对乐大姐团队早就心有所属,属于直奔而来的,我老公说装修就找乐大姐团队!果不其然,最终结果一点都没有让我们失望,甚至大大超出我们的预期。前两天还有中介把客户带到我们家来看,看房的人说'这套是和我们看的同样户型吗?这个房子改造完也太好了吧!' ”   


男业主接着说道:“这次装修,设计老师跟我老婆的想法简直是灵魂般的契合,默契度特别高,竣工成品可以说是完全还原了我老婆对家的期待!我们非常满意!其实,整个装修我来现场不足五次,基本没操什么心,找你们乐大姐团队确实很省心!


图片

▲ 乐大姐正在拍摄苏州电视台《第一时间》解析样板房装修知识点



竣工酒上,女业主还特别提到“我们有两个朋友跟我们差不多时间装修的,当时我们极力推荐她们一起选择乐大姐团队,她俩都没有听从我们的建议。其中一套是吴江的别墅,目前才在做木工,我朋友自己说装修弄得一塌糊涂;另外一套是两百多平米的复式,装得差不多了,已经来我家看过好几次了,说我家装得真好!然后,我们对门邻居和我们家一样的户型也来我家看过了,邻居表示专业的团队装修的效果就是不一样,漂亮!说要不是因为他俩年纪大了(临近七十的年纪,新城花园是老房子,没有电梯,爬6楼还是很累的),他们也要找乐大姐团队重新装修!” 


图片

▲ 乐大姐正在拍摄苏州电视台《第一时间》解析样板房装修知识点


图片

▲ 竣工验收单上业主的评语


图片

本案这套顶楼复式,面积虽然不是很大,但设计亮点却很多,拍摄当天乐大姐一大早就到现场了,一整天马不停蹄地拍摄,一直忙到晚上六点多才完成。到小区门口拍合影的时候,天都已经漆黑了!一天下来虽然忙,但是幸福感满满!


图片


图片

▲新城花园业主夫妇设宴宴请乐大姐团队贺竣工之喜

竣工酒现场聊的话题实在太多了,气氛十分欢乐,一直到九点多才结束,要不是因为业主家的“二宝”(一只柯基犬)等着他们回家喂食,估计还要聊很久,但是没有关系,来日方长,乐大姐团队一直坚持:一次装修,一生朋友!


再次感恩业主
对乐大姐团队的信赖与认可
您的新家落成
 我们来见证幸福、兑现承诺。
当梦想变成现实,家有了情感,
我们的缘分也有了新的定义,
竣工才是我们服务的开始,
时间是检验我们服务的试金石。
我们一定不会辜负您的这份信任!



END


往期案例回顾


设计说·第192期 | 458㎡法式豪宅,优雅永恒!

图片

设计说·第191期 | 220㎡大平层设计,黑白灰的低调与张扬!

图片

设计说·第190期 | 431㎡现代设计,繁与简的平衡!

图片

设计说·第189期 | 590㎡意式轻奢,高端豪宅!

图片

设计说·第188期 | 574㎡婚房,法式浪漫!

图片

设计说·第187期 | 287㎡小联排,如何装出“大宅范”?

图片

设计说·第186期 | 276㎡现代美式,优雅与时尚并存!

图片

设计说·第185期 | 340㎡现代中式,古韵新生!

图片

图片


如果您觉得乐大姐说的内容很有价值

欢迎分享转发至您的朋友圈

让更多的朋友都能轻松装修,自在生活!


当然,您也可以添加乐大姐微信号13382100888

或扫描下方的二维码

说出您的装修难题、让乐大姐为您答疑解惑

不管您是装修完工了

还是即将装修的

或者正在装修的

乐大姐一定知无不言,言无不尽


图片


图片
在看是一种鼓励|分享是最好支持
点击右下角 写留言 发表你的心声
我们期待与您的交流 

长按二维码添加乐大姐微信号

装修不烦 大姐来谈