清水江南别墅整装

设计说·第191期 | 220㎡大平层设计,黑白灰的低调与张扬!

发布时间:2023-01-06

图片

乐大姐

FM104.8《家在苏州--乐大姐说装修》栏目特邀嘉宾,



赫博别墅设计创始人之一;
多次受邀成为院校家居的授课讲师;
98年至今,
为万千家庭打造幸福家居的同时,也相互成为了好朋友。
任何与装修有关的问题,欢迎您添加乐大姐微信:13382100888
乐大姐会为您做一对一解答。





每一套作品,都是私人定制






|黑白灰的低调与张扬




本案这套220㎡的毛坯湖景大平层,是父母为孩子准备的婚房,所以设计上要求符合年轻人的审美,希望能看到一些比较新颖特别的东西,可以打破风格的界限,那么,最终到底是什么样的设计让小业主夫妻两觉得简直设计到我们心里去了”,认为”这样的家居环境更像是一种精神向导”呢?




门厅
LOBBY
图片

图片


图片

玄关作为入户的第一空间,黑&灰的高级配色,加上质感十足的端景柜以及通而不透的黑玻,一切都显得那么协调均衡,隐隐散发着时尚摩登的气质。


克莱因蓝作为点睛之笔,在视觉上既拥有张扬的既视感,又不乏别样的宁静美感。



客   厅

LIVING ROOM

图片



图片

图片

图片

所有的色彩本身都有自己的情绪和记忆,设计老师如何巧妙地将每一种情绪记忆应用在空间中是非常重要的一件事。

本案以黑&白&灰为基调诠释空间的魅力,黑白灰作为极简风的代表色,虽纯粹单一,却似乎有种魔力,既低调又张扬,仿佛默片中无声无色的长镜头,给人以沉浸式的视觉冲击。




图片
图片
图片
电视背景,通过对木质格栅、大理石与长虹玻璃的百变运用,让客厅与书房互动起来,丰富视觉层次之余亦将家展现的态度与个性表达得淋漓尽致。



图片

图片



图片
在整体简约纯粹的基调中,高级抽象的人脸挂画、墙体空隙间的艺术灯饰、墨绿色的沙发单椅,为空间的角落之处增添了几笔生动有趣的描绘,亦于细节处勾勒着空间的情景美学与艺术格调,令生活的意趣尽藏其间。

书  房
STUDY
图片

图片


图片

女业主说“我们家的软装几乎不需要怎么选,因为我们平时超级喜欢搭乐高,家里有很多乐高和漫威的模型。”

因此,乐大姐团队设计老师特地为他们规划了书房活动区,小夫妻两闲暇时可以在这里一起搭乐高。

图片






餐   厅

DINING ROOM

图片



图片

图片

因本案餐厅结构是长条形的,加上业主又想要圆桌,所以设计老师除了增加水吧台以外,还在餐边柜中间预留了操作台,这样不仅丰富了餐厅的功能,还使空间效果更加简洁平整。




图片



图片




厨   房

KITCHEN

图片



图片

图片



图片
厨房延续了整体风格,黑与灰充斥其中,在视觉上带来干净、利落的居家效果,布局清晰,能够让厨房最大程度地发挥其空间价值。






主   卧

MASTER ROOM

图片



图片

图片

图片

主卧以简净的配色、高级感的家具材质,加之巧妙的空间序列规划,构建通透纯净的开放式布局,令整体空间在理性的架构中传达着主人的独特品味。

理性质感的黑白灰床头背景,仿佛钢琴的琴键,奏响时尚慢生活。床头柜,则告别以往单一的用法,造型十分独特,给空间带来一丝意趣。


图片


次   卧

SECOND ROOM



图片

图片


图片


图片

次卧,是未来孩子的房间,但因业主并不希望太幼稚,又不知道后期会流行什么元素,所以就索性按照常规的房间来设计,以便后期根据孩子的喜好再调整软装。


图片


卫 生 间
SECOND ROOM
图片
图片
卫生间,地面大面积铺贴的哑光砖,让空间看起来非常柔和,又不失高级感;顶面大板吊顶,线条干净简练,给空间带来视觉上的层次感;定制壁挂式台盆柜,形制精致简雅。






平面方案
PANORAMA
图片


图片
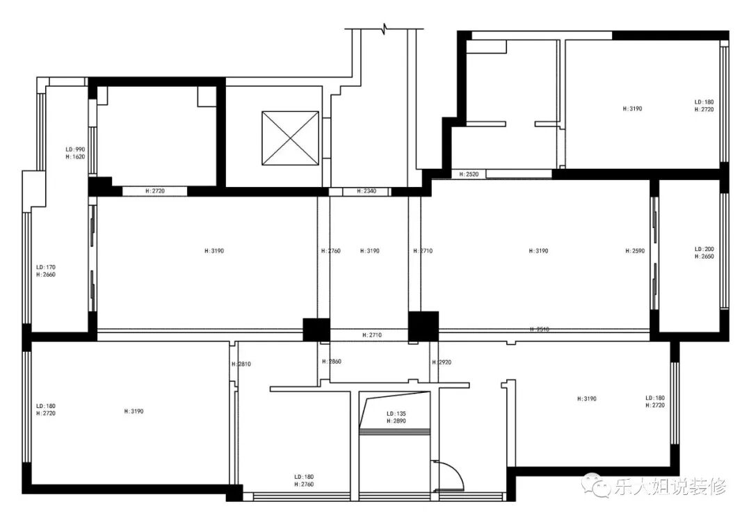
原始户型图
图片
改造后户型图



  • 本案这套大平层,是三室两厅三卫的户型,原结构比较方正,所以设计时尽可能地保留其户型的优点,改动并不大。
  • 原结构中本案的入户门正对着进房间的过道,隐私性不好,再加上两边还有凸起的承重柱,所以乐大姐团队设计老师就将其封掉,然后把这里打造成入户玄关端景,实用的同时还增加了私密感;另外,在确认沙发背景为非承重墙后,将进房间的过道改到这个位置,睡眠空间也因此变得更加隐蔽。
  • 因本案常住人口仅2-3人,只需要两个房间,而业主又想要一个独立书房,故将东南角的房间及其内卫改造成书房。




全景图
PANORAMA
图片
图片



点击左下方“阅读原文”,即可在线免费看本案例全景图(360°)。

https://vr.justeasy.cn/view/166o8pno607u9585-1670505414.html



END


往期案例回顾


设计说·第190期 | 431㎡现代设计,繁与简的平衡!



图片



设计说·第189期 | 590㎡意式轻奢,高端豪宅!



图片



设计说·第188期 | 574㎡婚房,法式浪漫!



图片



设计说·第187期 | 287㎡小联排,如何装出“大宅范”?



图片



设计说·第186期 | 276㎡现代美式,优雅与时尚并存!



图片



设计说·第185期 | 340㎡现代中式,古韵新生!



图片



设计说·第184期 | 203㎡日式原木风,超治愈!



图片



设计说·第183期 | 263㎡现代风,美!

图片






图片






如果您觉得乐大姐说的内容很有价值

欢迎分享转发至您的朋友圈

让更多的朋友都能轻松装修,自在生活!


当然,您也可以添加乐大姐微信号13382100888

或扫描下方的二维码

说出您的装修难题、让乐大姐为您答疑解惑

不管您是装修完工了

还是即将装修的

或者正在装修的

乐大姐一定知无不言,言无不尽




图片


图片
在看是一种鼓励|分享是最好支持
点击右下角 写留言 发表你的心声
我们期待与您的交流


长按二维码添加乐大姐微信号

装修不烦 大姐来谈