
乐大姐
FM104.8《家在苏州--乐大姐说装修》栏目特邀嘉宾,
为万千家庭打造幸福家居的同时,也相互成为了好朋友。任何与装修有关的问题,欢迎您添加乐大姐微信:13382100888,
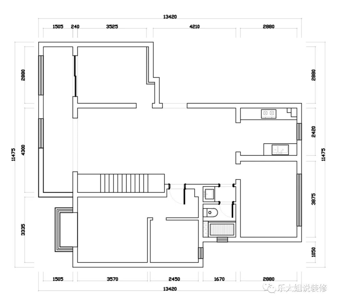
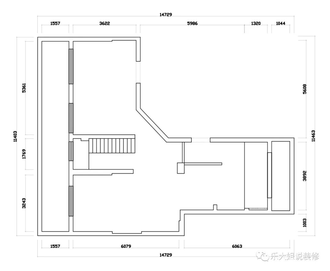
本案这套下叠墅是业主给儿子准备的婚房,其中地下190㎡是毛坯,地上126㎡是精装修,不过业主对于开发商的精装标准很不满意,希望乐大姐团队帮忙全部重新规划并做软装搭配。特别是,①原来的主卧连衣柜都放不下,而业主却要求主卧是套房配置;②楼梯位于沙发背景处,破坏了背景的完整性,十分尴尬;③地下夹层原来是单独的楼梯,太浪费空间;④原精装过于简单,小业主夫妻却对生活品质有很高的要求,所以设计老师为他们量身打造了这套“至奢”的极简风!
地下室 | Basement

在木饰面的包围下,一面高达5m的蘑菇石几何面从底到顶,在静谧的空间中形成磅礴的气势,预示着不断超越的上升姿态。穿插其间的白色大理石和底座层叠的光感,则打破了暗色石材自身的沉闷特质,灵动又极具艺术感。



水吧台在空间布局中,以点、线、面表达强烈的装饰感,金属质感的柜体、流晶幻彩的吊灯与白色空间交织融合,调性十足,让人微醺。
因地下室被现浇成两层后每层只有2.6m左右,不高,故而为了弥补层高上的缺憾,顶面采用的是有一定反射面的不锈钢,空间感和视觉感在纵向上得以无限延伸。


楼梯是空间的连接部位,在垂直空间里除了发挥功能性作用,设计老师更赋予其审美价值,硬朗的线条如几何雕塑,墙体的折角、倾斜的线条、角落的小景,让人凝视它,犹如看一个艺术品,丰富而生动。地下二层楼梯的1/2踏步和过道被设计成一个整体,空间因此有了下沉的感觉,围合感十足。而顶面的线条灯巧妙地与墙面造型相连,不仅完美契合了室内氛围的细节搭建,还起到指引来访者逐次递进的作用。


地下休闲区是本案的重点之作,设计老师创造性地以拱门造型为挑高空间顶面的设计灵感,多个曲面黑白相间、刚柔并济,催生出层层渲染下的场景,延伸出人与空间的交互,于方寸之间带来震撼心灵的观感体验。而与此同时,疏落有致的空间里,每个支点、弧度、材质,都恰到好处地与光影的魅力交织交融,进而为居者勾勒出一个纯粹的感观世界,不为世俗所累,不为生活所扰,简单而自在。
书房 | Study


书房被设计在地下夹层采光井的下面,它的正前方就是地下室的挑高空间,特殊的位置&敞开式的格局使得这个空间奇趣横生,独具个性。

影音室 | Video room


进入沉浸式影音室,也许会带来一场奇幻的冒险;或者,就什么都别想,坠入那片蔚蓝色的池里,尽情地释放。


客厅 | Living room



步入客餐厅,视觉移景,整体空间配色仅以深浅两色作为碰撞,黛绿和橙红穿插点缀,搭配体量丰满优雅的绒布沙发,呈现出一种贯穿的层次和意境。
源于对于自然的热爱,电视背景采用简单的石膏板造型+深色艺术涂料,空间层次因此更加丰富,柔和而有温度。辅以地台上的雾化壁炉和隐形门设计,通透而舒展。


沙发背景的处理,独具匠心。原结构中一楼的楼梯位于沙发背后,严重破坏了背景的完整性,却不好改动,所以设计老师就将沙发背景和玻璃扶手组合在一起设计,这样不仅保证了楼梯的安全性,多重材质之间的相互映衬也增加了空间的层次性。
墙上的圆球造型,宛如一弯明月,传递着生活静谧与美好。
因一楼是精装修,为了最大程度的保留原有装修以及满足设计风格的需求,设计老师在保留原有吊顶的基础上,去除原金属边,中间则采用了悬浮吊顶+无主灯设计,简约又立体。餐厅 | Dining room
厨房与餐厅,看似相依,却自成一体。横向贯通的设计排布,诠释出直线切割的线性严谨。开放式的行为模式,无声诉说着烟火与时光交织的故事。主卧 | Master room


本案主卧空间比较局促,业主所需功能根本无法排开,加上平面上已无空间可用来拓展,所以乐大姐团队设计老师别出心裁地把原内卫改造成旋转楼梯,然后通过旋转楼梯将主卧与地下夹层空间打通,主卧的衣帽间、书房、卫生间全部设计到负一层,空间功能因此在纵向上得以极大扩张。旋转楼梯的隔墙特地选用的灰色玻璃设计,一是增加采光,二也是怕太透,没有安全感。

主卧回归现代设计美学的初衷,凹凸有致的浅色墙面与深色家居橱柜形成对比,线条感极强的吊灯和柜台,碰撞出别致高雅的秩序感,整个空间温柔而静谧。


衣帽间设计在地下夹层南天井的位置,便于其最大程度地采光以及与北采光井形成对流。棕色柜台位于视觉中心,收纳柜占据整个墙面,各司其职。刚硬流畅的线条灯光,提供几丝温馨的暖意,让空间更有多面属性。
次卧 | Second room

家里每一位成员,都值得享受生活的惬意。次卧给人简约干净的感觉,没有过多色彩的运用,也没有繁杂的造型,以简约设计带来一种高级的视觉享受。
儿童房 | Children's room

本案还特地为将来的宝宝设置了一间儿童房,温馨活泼的底色契合孩童纯真的天性,森林小屋般的设计带来探索的奇趣,圆角处理减少磕碰的同时空间更加柔和,在这里孩子可以自由快乐的成长。

- 因本案这套下叠墅,地下空间比地面都大,故而地面主要用来安排日常生活所必备的功能区,而休闲娱乐所需的吧台、棋牌室、影音室等,则全部安排到了地下,功能分区清晰明了。
- 本案设计最大的难点在于原结构中主卧只有20㎡,而小业主夫妻却要求主卧必须是套房设计,衣帽间、卫生间、书房统统要包含在内,设计老师考虑到平面上已无可拓展空间,就把主意打到立面上,通过一组旋转楼梯将主卧与地下夹层打通,主卧的衣帽间、书房、卫生间全部设计到负一层,空间功能因此得以极大扩张。
- 本案设计上还有一大难点就是一楼的楼梯正好位于沙发背景处,且不好更改,十分尴尬,设计老师通过材质的巧妙运用化解了这道难题。
点击左下方“阅读原文”,即可在线免费看本案例全景图(360°)。
https://vr.justeasy.cn/view/16r64cj987899a91-1670811543.html
END
往期案例回顾
设计说·第193期 | 199㎡顶复新中式,清新雅致!

设计说·第192期 | 458㎡法式豪宅,优雅永恒!

设计说·第191期 | 220㎡大平层设计,黑白灰的低调与张扬!

设计说·第190期 | 431㎡现代设计,繁与简的平衡!

设计说·第189期 | 590㎡意式轻奢,高端豪宅!

设计说·第188期 | 574㎡婚房,法式浪漫!

设计说·第187期 | 287㎡小联排,如何装出“大宅范”?

设计说·第186期 | 276㎡现代美式,优雅与时尚并存!


如果您觉得乐大姐说的内容很有价值
欢迎分享转发至您的朋友圈
让更多的朋友都能轻松装修,自在生活!
当然,您也可以添加乐大姐微信号13382100888
或扫描下方的二维码
说出您的装修难题、让乐大姐为您答疑解惑
不管您是装修完工了
还是即将装修的
或者正在装修的
乐大姐一定知无不言,言无不尽