清水江南别墅整装

设计说·第196期 | 485㎡独栋别墅,三代同堂,三种风格!

发布时间:2023-01-13

图片

乐大姐
FM104.8《家在苏州--乐大姐说装修》栏目特邀嘉宾,
赫博别墅设计创始人之一;
多次受邀成为院校家居的授课讲师;
98年至今,
为万千家庭打造幸福家居的同时,也相互成为了好朋友。
任何与装修有关的问题,欢迎您添加乐大姐微信:13382100888
乐大姐会为您做一对一解答。

图片



图片

·


优秀的设计,

也要靠优秀的交付来实现。

从设计蓝图到家的最终落成,

从畅想家的样子到纵享家居生活,

离不开的是客户的信任与配合,

离不开的是交付团队的辛勤付出。

完美的交付,

就是最好的自宣!


  ——乐大姐团队原创


/

实景赏析

  看别人的家  装自己的生活 


项目地点:独墅湾

项目面积:485㎡

项目风格:现代中式

项目性质:别墅整装

项目状态:已交付


对于中国大家庭来说,最期待的莫过于祖孙三代同堂共享天伦之乐,但因年龄不同、生活习惯不同、爱好不同,每个人对家、对个人空间的需求也会各不相同,那么在装修时怎样规划才能满足所有家庭成员的需求呢?怎样设计才能让所有人都实现自己心目中的家呢?今天就跟乐大姐一起来欣赏这套集中式、美式、现代三种风格于一体的独栋别墅竣工现场吧图片~


图片

图片

图片

图片

图片

图片

图片

图片

图片

图片

图片

图片

图片

图片

图片

图片

图片

图片

图片

图片

图片

图片

图片

图片

图片

图片

图片

图片

图片

图片

图片

图片

图片

图片

图片

图片

图片

图片

图片

图片

图片

图片

图片

图片

图片

图片

图片

图片

图片

图片

图片

图片

图片

图片

图片

图片

图片

图片

图片

图片


平面方案


图片

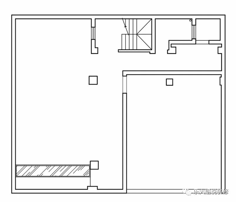
负二楼原始户型图

图片

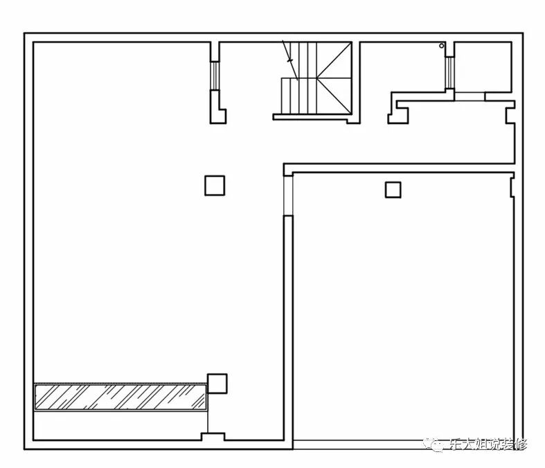
负二楼改造后户型图

图片

负一楼原始户型图

图片

负一楼改造后户型图

图片

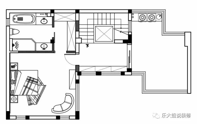
一楼原始户型图

图片

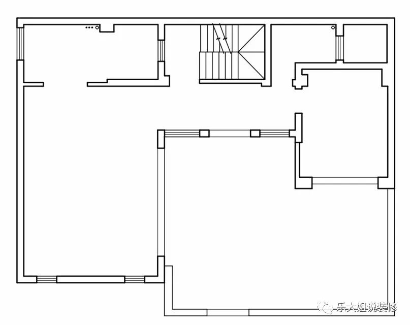
一楼改造后户型图

图片

二楼原始户型

图片

二楼改造后户型图

图片

三楼原始户型图

图片

三楼改造后户型图


设计全景图


图片

点击文章底部左下方“阅读原文”,即可在线免费看本案例全景图(360°)。


/

业主说

   装修背后的故事   


本案是位于苏州市吴中南双湖的内独栋别墅,地下挑高两层,地上三层,总共485平,独门独户,还有独立的小庭院,房子的功能十分齐全,住起来很是舒适。


满意度100%

图片▲ 乐大姐团队&独墅湾业主夫妇合影留念

拍摄现场,在和乐大姐、苏州电视台《第一时间》拍摄老师等聊天的过程中,男业主蒋先生道“说起与你们乐大姐团队的缘分,就不得不提到我的朋友姜总,当时我们这些铁哥们一起总共5户人家都买在了这个小区,他先找的你们乐大姐团队装修的,然后我们家的户型跟他们家一模一样,我在看了他们家的改造、装修风格以及施工服务后就马上找了你们装修,所以可以说他是我们的红娘’!”女业主张女士也同声说“我们家现在装修得这么好,多亏了姜总给我们推荐了你们乐大姐团队!”


其实,这已是乐大姐团队在独墅湾拍摄的第三套别墅样板房了,三套的拍摄时间分别是2020年年底、2021年年底以及本案,本案是2021样板房业主强烈推荐来的,竣工酒当天红娘也早早就到了现场!


图片

图片

▲ 乐大姐正在拍摄苏州电视台《第一时间》解析样板房装修知识点

竣工酒上,女业主还特别提到“我们两口子都是做水产批发的(做了几十年了),工作都是日夜颠倒的,晚上11:30起床去摊子上,一直忙到早上8点多回家睡觉,睡到傍晚起来吃晚饭,然后紧急补一会觉接着上夜班,根本没时间管装修的事情,这次幸亏找了你们乐大姐团队从前期的设计一直到最后的软装搭配、现场布置,我们几乎没怎么参与,没怎么操心,但效果却超出我想象的好!在这里,一定要谢谢设计老师方老师,还有项目经理束经理!谢谢你们乐大姐团队!


图片
▲ 竣工验收单上业主的评语
图片
▲ 乐大姐正在拍摄苏州电视台《第一时间》解析样板房装修知识点

本案最大的特点就是:居住人口很多,而且居住人口的结构也很“特别”,业主两口子、女儿女婿&两个孩子、以及一个17岁的儿子。由于常住人口年龄差距大、观念及需求各不相同,所以每个空间的设计方案都要因人而异,量身定制!其中,地下公共区域做的现代简约风格、地上一层及顶楼做的现代中式风格(业主两口子的空间)、地上第二层是美式轻奢(女儿女婿的套房),那么,怎样设计才能让三种不同风格之间和谐共存呢?大家可以来看一下,本案的设计难度系数还是蛮大的!不过,最终结果是皆大欢喜,大家都很满意!


图片


图片

▲ 独墅湾业主夫妇设宴宴请乐大姐团队贺竣工之喜


本次的竣工酒十分特别,业主叫上了之前推荐他们来装修的'红娘'两口子和几个朋友,再加上乐大姐团队总共二十多人,因此业主特地定了一个大包厢,分开两桌吃!现场两桌之间走马灯式的来回敬酒,气氛非常热烈!


有感:



一次装修,一生朋友!竣工酒既意味着新家的交付,更代表着接下来彼此之间相处才正式开始,一辈子很长,我们来日方长……



——by乐大姐

图片


END


往期案例回顾


设计说·第195期 | 202㎡失败案例改造,化“腐朽”为“神奇”!

图片

设计说·第194期 | 316㎡叠墅,极简至奢!

图片

设计说·第193期 | 199㎡顶复新中式,清新雅致!

图片

设计说·第192期 | 458㎡法式豪宅,优雅永恒!

图片

设计说·第191期 | 220㎡大平层设计,黑白灰的低调与张扬!

图片

设计说·第190期 | 431㎡现代设计,繁与简的平衡!

图片

设计说·第189期 | 590㎡意式轻奢,高端豪宅!

图片

设计说·第188期 | 574㎡婚房,法式浪漫!

图片

图片


如果您觉得乐大姐说的内容很有价值

欢迎分享转发至您的朋友圈

让更多的朋友都能轻松装修,自在生活!


当然,您也可以添加乐大姐微信号13382100888

或扫描下方的二维码

说出您的装修难题、让乐大姐为您答疑解惑

不管您是装修完工了

还是即将装修的

或者正在装修的

乐大姐一定知无不言,言无不尽


图片


图片
在看是一种鼓励|分享是最好支持
点击右下角 写留言 发表你的心声
我们期待与您的交流 


长按二维码添加乐大姐微信号

装修不烦 大姐来谈