清水江南别墅整装

设计说·第197期 | 182㎡现代叠墅,简约又时尚!

发布时间:2023-02-28

图片

乐大姐

FM104.8《家在苏州--乐大姐说装修》栏目特邀嘉宾,


赫博别墅设计创始人之一;
多次受邀成为院校家居的授课讲师;
98年至今,
为万千家庭打造幸福家居的同时,也相互成为了好朋友。
任何与装修有关的问题,欢迎您添加乐大姐微信:13382100888
乐大姐会为您做一对一解答。



项目地点:荷澜庭(叠墅)

项目面积:182㎡
项目风格:现代
项目性质:别墅整装
项目状态:正在施工




每一套作品,都是私人定制


|现代港式的时尚大气

本案这套中叠属于学区房,业主夫妻两计划小朋友上初中后就搬过去住(孩子正在上小学),所以想现在装好了先放放,透透气。因是长期居住的改善型住宅,对装修的效果和品质要求非常高,特别是风格的选定上,一家人更是纠结不已,既想要时尚大气,又想要有档次,同时还不能显得“壕气”,最终乐大姐团队为他们量身定制了这套现代设计,一家人都喜欢的不得了!


门厅
LOBBY
图片

图片

图片

玄关是进门后的第一道风景,设计老师特地将正对着玄关的次卧门改造成入户背景,增加私密性的同时营造归家的仪式感,给人眼前一亮的感觉。

两侧由非承重墙改造而来的玄关小景和收纳空间,赋予空间更灵动的感知。


客 餐 厅

LIVING ROOM&DINING ROOM

图片

图片

图片

生活的环境起源于自我设定的环境,想要达到预设的环境就要对理想的生活态度有明确的格调...

客厅以开放式布局为主,注重家具的设计感和选购,用比较特别的线条设计来展现港式的前卫时尚,精致的软装搭配让整个客厅不会显得单调,反而给人一种大气硬朗的感觉。


图片

图片

从窗边延伸的小吧台,让人愿意早起在这里享用一顿早餐让一整天充满活力,或者与三两好友在这里浅酌闲聊,抑或在这里临时办公,惬意非常!


图片

图片

本案业主非常注重用餐的仪式感,可是餐厅却位于整个一层的中心位置,要承担部分过道的功能,为了使空间更有氛围感,餐厅采用木饰面上顶的设计,这样不仅与客厅背景的木饰面之间形成延展性,整体性更强,且为场域增加了温暖的触感,克制而优雅。


主   卧

MASTER ROOM

图片

图片

图片

不同功能空间的主题打造,只为提升整个设计的品味和韵味。进入卧室,私人领域缓缓展开。

主卧设计上,剔除了繁琐的造形,通过块面化的手法进行塑造。床头大块的木饰面硬包与精致的不锈钢条进行碰撞,使空间安静而不失品质。


图片

图片


次卧
SECOND ROOM
图片

图片


图片


图片
一楼的次卧设计成多功能房,既可以做客房,又是晾晒空间,还可以用来休闲,资源得以最大化的合理利用

儿童房

CHILDREN'S ROOM

图片

图片

男孩房的设计以“仰望星空”主题贯穿整个空间,主题饰品的点缀不仅体现了孩童时代大胆的想象、探索,充满活泼动感的特质,也隐喻了追求生命纯真、美好的愿望。

光线充足的窗口是孩子的学习区,同时兼具收纳和展示的功能,安静又独立。


图片

图片


书  房
STUDY
图片

图片

图片

图片

书房,除却满足功能性需求外,亦是提升修养内涵之地,大面积的原木色,营造出静谧、优雅、宁静的艺术气息。


 卫生间
TOILET
图片
图片
图片

图片

二楼卫生间,利用原结构布局洗、浴、卫三大功能,各自独立使用,互不干扰。

嵌入式壁龛,大大拓展了卫浴空间的收纳功能,就连内衣洗衣机都安排了。高中低多光源设计,提供不同的光照环境,满足不同的使用需求。


图片


平面方案
FLAT PLAN
图片

图片

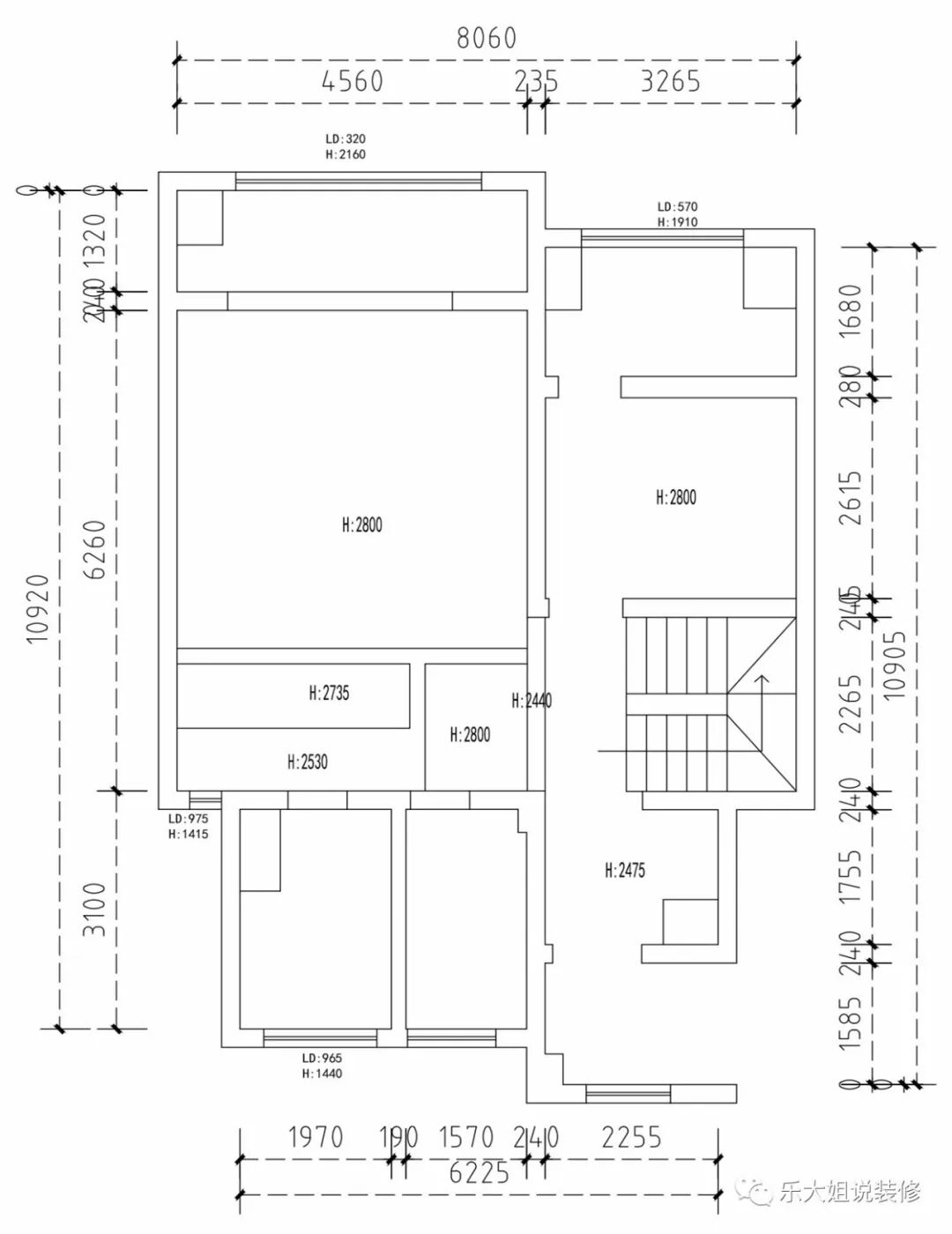
一楼原始户型图

图片

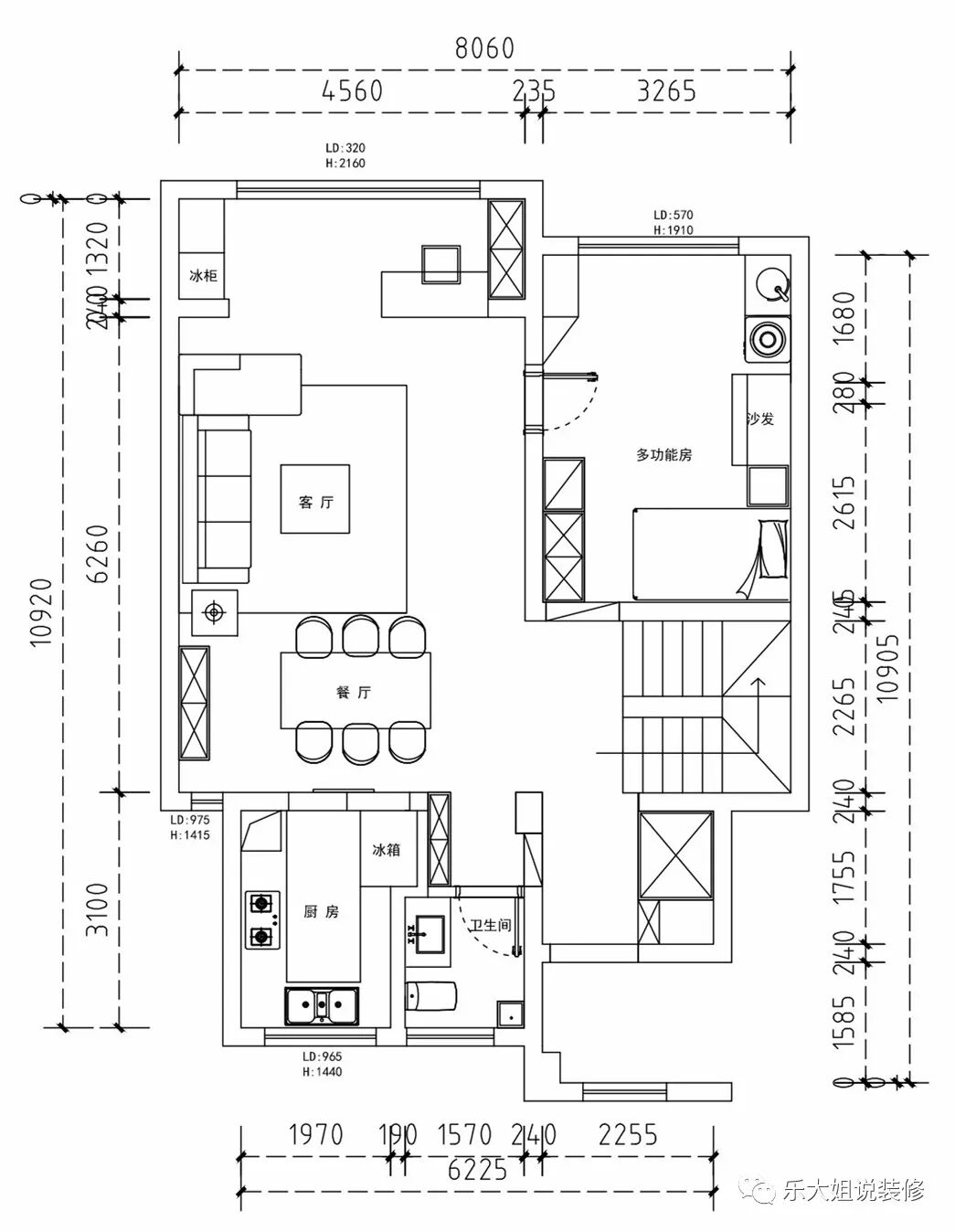
一楼改造后户型图
图片

二楼原始户型图

图片

二楼改造后户型图

  • 原结构中本案有三个阳台,乐大姐团队设计老师将三个阳台全部与室内打通,从而扩大了空间的利用率和整体的视觉感。
  • 原结构中本案一楼次卧门正对着入户门,隐私性差,所以设计老师将次卧门封掉,改造成入户背景,这样既美观,私密性又好。

  • 本案入户两侧都是实墙,比较闷,有点压抑,故将其中的非承重结构敲掉,空间更加通透,互动性也更好。

  • 原结构中本案厨房面积小,双开门冰箱无处放,设计时将卫生间缩小,增大厨房的使用空间。


全景图
PANORAMA
图片


图片

点击左下方“阅读原文”,即可在线免费看本案例全景图(360°)。

https://vr.justeasy.cn/view/5y16864v4078b223-1669857585.html


END


往期案例回顾


设计说·第194期 | 316㎡叠墅,极简至奢!

图片

设计说·第193期 | 199㎡顶复新中式,清新雅致!

图片

设计说·第192期 | 458㎡法式豪宅,优雅永恒!

图片

设计说·第191期 | 220㎡大平层设计,黑白灰的低调与张扬!

图片

设计说·第190期 | 431㎡现代设计,繁与简的平衡!

图片

设计说·第189期 | 590㎡意式轻奢,高端豪宅!

图片

设计说·第188期 | 574㎡婚房,法式浪漫!

图片

设计说·第187期 | 287㎡小联排,如何装出“大宅范”?

图片


图片


如果您觉得乐大姐说的内容很有价值

欢迎分享转发至您的朋友圈

让更多的朋友都能轻松装修,自在生活!


当然,您也可以添加乐大姐微信号13382100888

或扫描下方的二维码

说出您的装修难题、让乐大姐为您答疑解惑

不管您是装修完工了

还是即将装修的

或者正在装修的

乐大姐一定知无不言,言无不尽


图片


图片
在看是一种鼓励|分享是最好支持
点击右下角 写留言 发表你的心声
我们期待与您的交流 

长按二维码添加乐大姐微信号

装修不烦 大姐来谈