
乐大姐
FM104.8《家在苏州--乐大姐说装修》栏目特邀嘉宾,
为万千家庭打造幸福家居的同时,也相互成为了好朋友。任何与装修有关的问题,欢迎您添加乐大姐微信:13382100888,乐大姐会为您做一对一解答。
项目地点:中航樾园(联排)
项目面积:280㎡+地下室70㎡
项目风格:现代中式
项目性质:别墅整装
项目状态:正在施工
01
THE CUSTOMER DEMANDS
业主需求
本案这套350㎡联排别墅,虽是业主买来以后养老住的,但儿子和女儿一家偶尔也会过来住住,所以设计时需要兼顾三代人不同的居住需求,最终乐大姐团队为他们量身定制了这套现代中式的作品,男业主说:“效果超越了我对这套房子的所有想象!过两年我儿子的婚房还要交给乐大姐团队装!”
02
DINING ROOM
餐厅

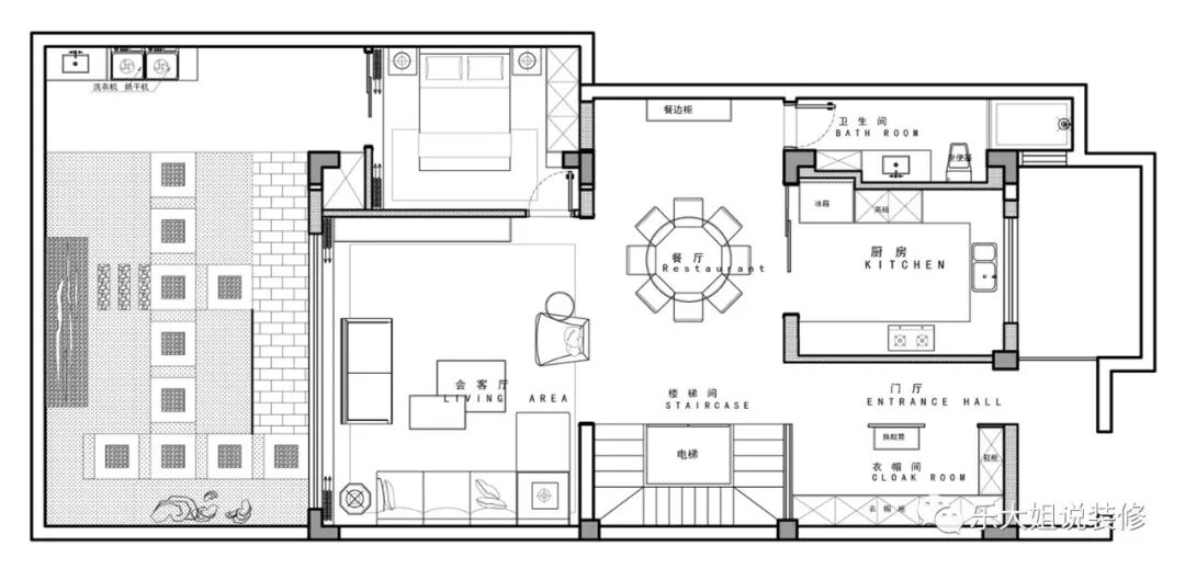
一步入室,一步入景。玄关没有冗杂和多余的造型,设计老师用直线感的开放式空间给予居住者生活更多的可能性,创新出与众不同的清雅,让人感受到空间的意境。



餐厅,强调空间的延续性,木饰面的大面积运用与客厅背景形成一个整体,赋予空间温润的质感和档次。同时,设色独特(草黄色)的中式山水壁画,与环境相融,蕴出一片“一江烟水照晴岚,两岸人家接画檐”的水乡意境。


圆桌圆顶的配置,激活了曲直结构的美感,围合起就餐的温度和礼序。一顿美食,便能与家人汇聚一堂,交流生活。
03
LIVING ROOM
客厅

源起东方,重塑传统。本案通过弱化具象的中国文化符号,转而以更抽象、更现代的表现手法营造空间意境,打造出一个既有东方人文内涵又不失现代时尚简约的美学空间,优雅中自带空间与环境的律动之感,置身其间,回味悠长。



沙发背景取意“山峰耸翠”,清新古雅的山水背景画搭配饱和度低的现代家具,禅意淡雅的氛围感油然而生。电视背景由天然石纹描摹水墨丹青的纹理,浓淡相宜,如文人墨客笔下的婉约缥缈的自然印象。木格栅的运用,则给予空间温暖质感,拉进冰冷材料与人的距离,营造家的归属感。


充分利用场地,引入自然光线,以五感六觉将室内和户外有效融合,让人随时都能感受到自然的绚烂与生机。
04
KITCHEN
厨房



厨房延续了整体的风格,白色与木色充斥其中,在视觉上带来干净、利落、清新的居家效果,布局清晰,能够让厨房最大程度地发挥其空间价值。
-
05
MASTER ROOM
二楼主卧



主卧空间延续了客厅高级感色系,用木饰面+浮雕做背景墙,营造出强烈的绅士格调,给人低调而雅奢的感觉。
电视背景墙双通道的设计,联动了场域气氛,过渡了艺术格调,极大提升了空间与人、空间与空间之间的交互。



卫生间集化妆、沐浴、洗漱、马桶多种功能于一体,最大限度体验精致生活的无限欢愉。
-
06
MASTER ROOM
三楼主卧


三楼是年轻人的世界,设计随之更加的个性化和艺术化。整体运用极简风打造,在灰白的基调中加入了些许蓝色,营造出深邃而静谧的空间氛围。床头背景以硬包做装饰,大面积的竖向线条重叠秩序,增强空间的层次感和立体感。斜面吊顶和无主灯设计,最大程度地保持房屋的原始状态,让设计贴合建筑本身,让空间最大化。


通透的长虹玻璃将书房与睡眠区一分为二,避免空间大而无当的同时,光线还可以在空间里自由穿梭,视线通达。



三楼主卫通铺灰色大理石砖,营造视觉上的整体感,木质台盆柜搭配发光镜面,时尚优雅。
-
07
SECOND ROOM
二楼次卧1

线性灯带犹如画笔,用灵动光影,让墙面形成视域划分,绘摹出睡眠仪式感。抽离都市的喧嚣繁杂,让生活拥有新的闪光。
-
08
SECOND ROOM
二楼次卧2

次卧简单而温柔,低饱和度家具搭配木质地板,温润而舒展。在慢慢时光里,抵达生活的诗意。
-
09
BASEMENT
地下室

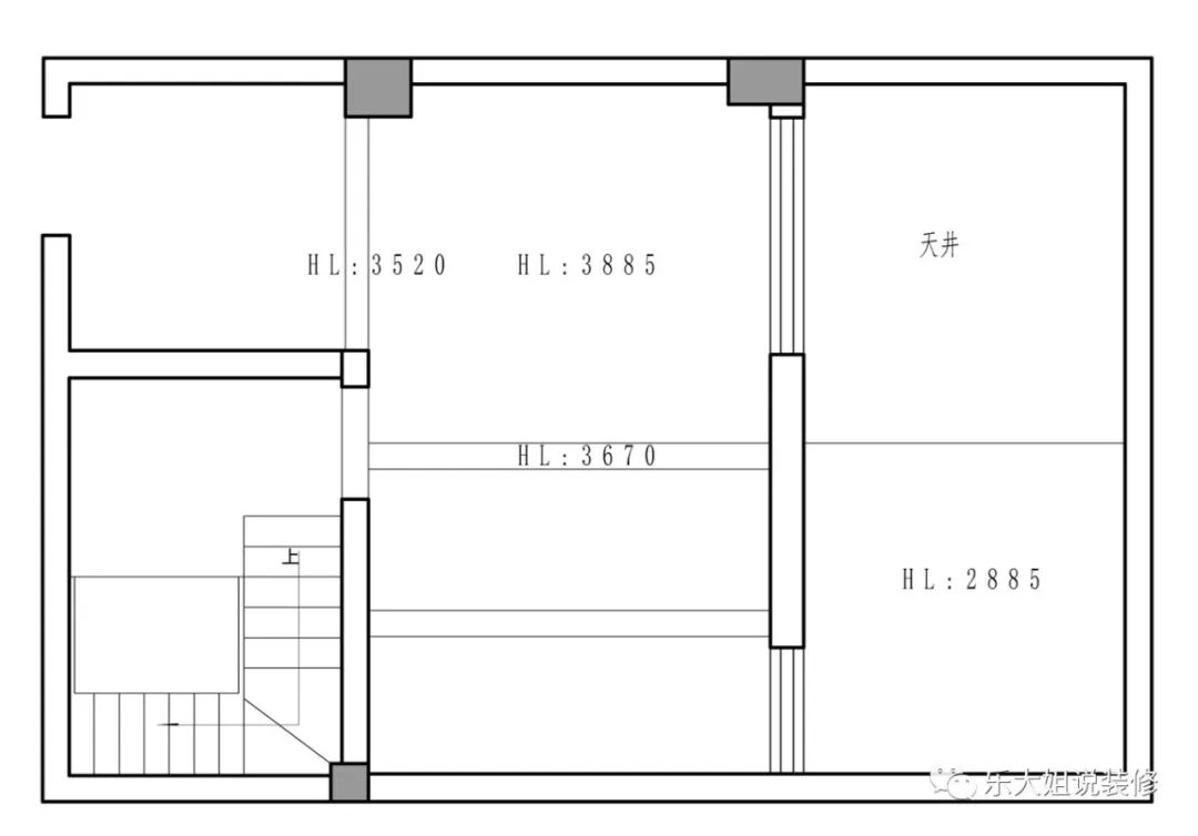
地下室,构建欲扬先抑的设计脉络。步入门厅,如碧玉般的大理石隔断划分内外层次,糅合中间半遮又半掩的玻璃形态,空间的呼吸感、典雅感与趣味感尽显。



乐大姐团队设计老师在地下室公共休闲区的配色极为沉静内敛,白、灰、木、黑的高级色调,干净通透,克制有度。标志性的中国红,跳跃其间,张力十足,成就了空间的东方意蕴。地下休闲厅连通茶室,舒适开阔的视角,隐约呈现出另一种新的人文氛围。笔尖勾勒的字画与绿植相呼应,空闲时约三两好友围坐品茶,恬静平和的生活便是如此。

天井处,不锈钢、大理石、夹丝玻璃等材料的质感与自然光线深浅层叠有致,反而为不算大的区域扩展了更多空间,绿意盎然的景致更是给来客带来诸多感官的体验。
-
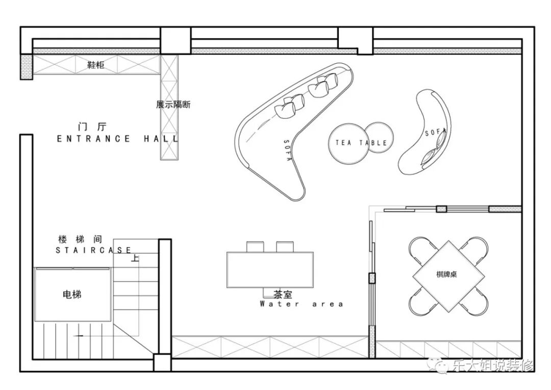
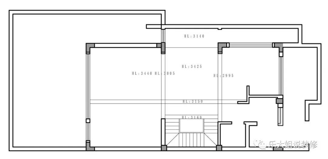
- 原户型中,本案入户动线复杂,结构凌乱,还与卫生间相邻,一点都没有别墅的大气感,所以设计老师将卫生间和非承重墙全部拆除,从而打造了一个既大气又收纳满分的门厅空间。而一楼的公卫则安排在了西侧厨房边上的狭长空间,极大地提高了空间利用率。因为是养老居住,所以在楼梯的中间加装电梯,方便后期入住使用。
- 原结构中,本案一楼南边是一个大通间,考虑到观影的舒适度及业主对客房的功能需求,将大通间的大部分空间规划成客厅,部分空间与院子的狭长形空间一起做成客房,男业主平时有应酬,回来晚了就可以住在一楼,不打扰家人休息。
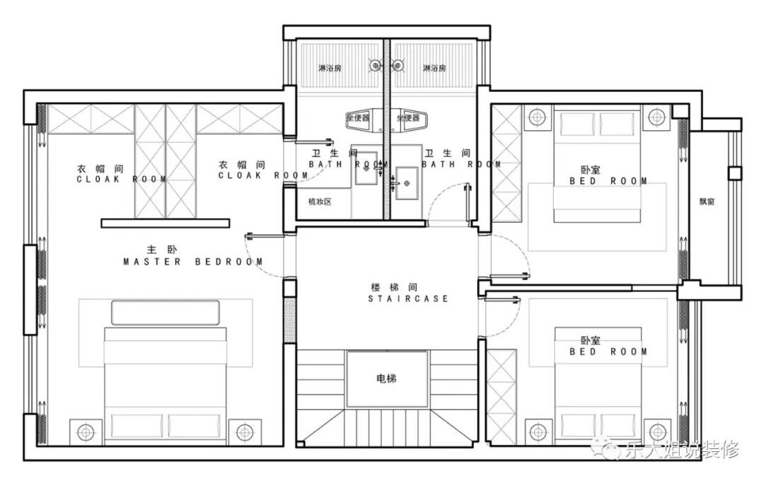
- 二楼以休息为主,南边全部规划成业主夫妻的套房,除了卫生间以外,还配套了男女两个衣帽间,十分便捷舒适;北边则一分为二,做成了两个卧室,方便以后女儿带小孩回来住。
- 考虑到二楼总共有三个卧室,除了主卫以外,还必须配套一个外卫,故设计老师将原始结构中主卫边上的设备阳台纳入到卫生间,然后将主卫一分为二,改横向布局为纵向布局,从而增加了一个外卫。
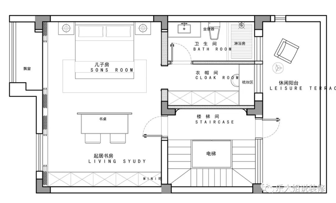
- 三楼一整层是给儿子居住的,大套房的设计后期也可以用来做婚房,所以风格以现代为主,是年轻人的氛围。
11
PANORAMA
全景图
点击左下方“阅读原文”,即可在线免费看本案例全景图(360°)。
https://vr.justeasy.cn/view/1u673r0p85z05430-1673800106.html
END
往期案例回顾
设计说·第197期 | 182㎡现代叠墅,简约又时尚!
设计说·第196期 | 485㎡独栋别墅,三代同堂,三种风格!
设计说·第195期 | 202㎡失败案例改造,化“腐朽”为“神奇”!
设计说·第194期 | 316㎡叠墅,极简至奢!
设计说·第193期 | 199㎡顶复新中式,清新雅致!
设计说·第192期 | 458㎡法式豪宅,优雅永恒!
设计说·第191期 | 220㎡大平层设计,黑白灰的低调与张扬!
设计说·第190期 | 431㎡现代设计,繁与简的平衡!

如果您觉得乐大姐说的内容很有价值
欢迎分享转发至您的朋友圈
让更多的朋友都能轻松装修,自在生活!
当然,您也可以添加乐大姐微信号13382100888
或扫描下方的二维码
说出您的装修难题、让乐大姐为您答疑解惑
不管您是装修完工了
还是即将装修的
或者正在装修的
乐大姐一定知无不言,言无不尽