清水江南别墅整装

设计说·第199期 | 327㎡现代美式,别样优雅!

发布时间:2023-02-28

图片

乐大姐

FM104.8《家在苏州--乐大姐说装修》栏目特邀嘉宾,

赫博别墅设计创始人之一;
多次受邀成为院校家居的授课讲师;
98年至今,
为万千家庭打造幸福家居的同时,也相互成为了好朋友。
任何与装修有关的问题,欢迎您添加乐大姐微信:13382100888
乐大姐会为您做一对一解答。

AMERICAN  STYLE

图片

从一间房子变成一个“家”
这过程需要付出很多的心血,
开工仪式还历历在目,
样板房拍摄已如期而至,
这不仅仅代表着一份成果,
更代表着
完成业主梦想中家的承诺,
有始有终才算圆满!
——乐大姐团队原创



每一套作品,都是私人定制


01
  实景赏析  
 看别人的家  装自己的生活  

项目地点:新希望锦麟府

项目面积:180㎡+147㎡(下叠)

项目风格:现代美式

项目性质:别墅整装

项目状态:已交付


本案的主创设计老师说“这是我最喜欢的设计作品,也是我最想拥有的家”,之所以这么说,是因为本案打破了美式常规给人的豪华厚重感,用“雅致”贯穿全案,十分大气、清新、时尚、耐看,特别是大面积“蓝灰色”的运用,简直绝了!而户型上的调整,更是将缺陷变成优势,让功能及美感并存,那么今天就跟乐大姐一起来欣赏这套327㎡现代美式叠墅的竣工现场吧图片~

图片


图片


图片


图片


图片


图片


图片


图片


图片


图片


图片


图片


图片


图片


图片


图片


图片


图片


图片


图片


图片


图片


图片


图片


图片


图片


图片


图片


图片


图片


图片


图片


图片


图片


图片


图片


图片


图片


图片


图片


图片


图片


图片


图片


图片


图片


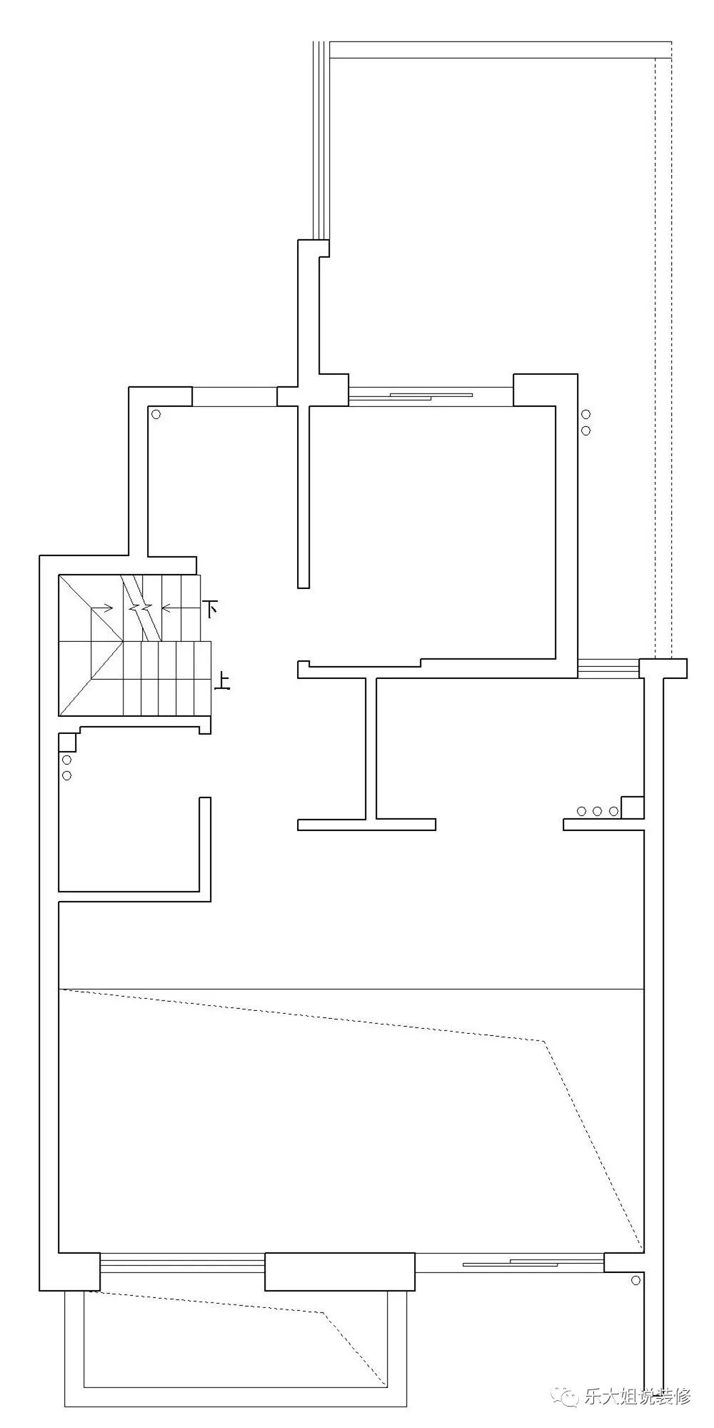
平面方案


图片

负二层原始户型图

图片

负二层改造户型图

图片

负一层改造后户型图

图片

一层原始户型图

图片

一层改造后户型图

图片

二层原始户型图

图片
二层改造后户型图


设计全景图


图片

点击文章底部左下方“阅读原文”,即可在线免费看本案例全景图(360°)。

https://vr.justeasy.cn/view/k1645w11d9671j25-1666496831.html


02
业主说
  装修背后的故事  
本案业主是同里人,一直居住在同里的宅基地自建房,买锦麟府这套房子是准备装好一家四口住,将来则留给大女儿。所以风格上,以现代美式为主,带点轻奢的元素,这样既沉稳又不失时尚靓丽,满足不同年龄层的审美需求。

满意度100%


图片

▲ 乐大姐团队&新希望锦麟府业主夫妇合影留念


拍摄现场,在和乐大姐、苏州电视台《第一时间》拍摄老师等聊天的过程中,男业主说起自己以前的装修经历:“我们现在住的是乡下的自建别墅,十几年前是我父母主要操心装修的,当时建房子花了32万,装修花了100多万呢,那时候的100多万很值钱的,装修我记得是各种整合,瓦工师傅出瓦工师傅的主意,木工师傅出木工师傅的主意,外墙听大理石师傅的建议,父母再到亲戚朋友或者左邻右舍家各种借鉴,家里还挂了很多十字绣,牡丹、芍药都有,说是集思广益,搞出来的是五花八门,我称之为:四不像,一住也住了这么多年了。”

图片

▲ 乐大姐正在拍摄苏州电视台《第一时间》解析样板房装修知识点


男业主接着说道“现在大女儿也长大了,需要有套体面一点的房子,所以这次装修我坚持找专业的团队装修,我吴江的一个朋友之前就是你们乐大姐团队装修的,他极力推荐我找你们,说你们的装修过程很省心,现在工程结束了,我觉得我的选择非常正确,装修这么长时间我老婆前后就来过工地几次,我来的次数也是屈指可数,一点都不操心,效果还这么好!所以这次装修我要给你们打99.99分!等乔迁的时候,再请亲戚朋友过来看看,让他们都来见识下乐大姐团队的作品!



图片

▲ 乐大姐正在拍摄苏州电视台《第一时间》解析样板房装修知识点


乐大姐在样板房拍摄现场发现,确实如业主所说,本案的成品效果很漂亮,而且地上漂亮,地下更漂亮!首先,超大的挑高空间让地下室看起来就像别墅的会客厅一样,气势十足(最高达到4.9米,最低也有4米);其次,多种材料的运用极大地丰富了空间的美感,你会发现每一面、每一个角度都是景,简直让人流连忘返;再者,虽说是地下室但是一点都不闷,这除了层高的原因以外,还得益于三恒新风系统的打造;最后,本案地下室的原始结构有很多缺陷,但经过乐大姐团队调整后,缺陷都变成了优势,从而实现功能及美感的并存!


图片

▲ 乐大姐正在拍摄苏州电视台《第一时间》解析样板房装修知识点



图片

▲ 竣工验收单上业主的评语


图片

▲ 新希望锦麟府业主夫妇设宴宴请乐大姐团队贺竣工之喜

竣工酒桌上的氛围十分欢乐,一直聊到九点多才依依不舍的结束了,散席时大家还意犹未尽,但是没有关系,乐大姐团队每一次因装修结下的缘分都是后会有期的,因为乐大姐团队始终坚持:一次装修,一生朋友


再次感恩业主
对乐大姐团队的信赖与认可
您的新家落成
 我们来见证幸福、兑现承诺。
当梦想变成现实,家有了情感,
我们的缘分也有了新的定义,
竣工才是我们服务的开始,
时间是检验我们服务的试金石。
我们一定不会辜负您的这份信任!

END


往期案例回顾


设计说·第198期 | 350㎡现代中式,风雅自然!

图片

设计说·第197期 | 182㎡现代叠墅,简约又时尚!

图片

设计说·第196期 | 485㎡独栋别墅,三代同堂,三种风格!

图片

设计说·第195期 | 202㎡失败案例改造,化“腐朽”为“神奇”!

图片

设计说·第194期 | 316㎡叠墅,极简至奢!

图片

设计说·第193期 | 199㎡顶复新中式,清新雅致!

图片

设计说·第192期 | 458㎡法式豪宅,优雅永恒!

图片

设计说·第191期 | 220㎡大平层设计,黑白灰的低调与张扬!

图片

图片


如果您觉得乐大姐说的内容很有价值

欢迎分享转发至您的朋友圈

让更多的朋友都能轻松装修,自在生活!


当然,您也可以添加乐大姐微信号13382100888

或扫描下方的二维码

说出您的装修难题、让乐大姐为您答疑解惑

不管您是装修完工了

还是即将装修的

或者正在装修的

乐大姐一定知无不言,言无不尽


图片


图片
在看是一种鼓励|分享是最好支持
点击右下角 写留言 发表你的心声
我们期待与您的交流 

长按二维码添加乐大姐微信号

装修不烦 大姐来谈