清水江南别墅整装

设计说·第200期 | 无锡314㎡叠墅,遇见不凡!

发布时间:2023-03-02

图片

乐大姐

FM104.8《家在苏州--乐大姐说装修》栏目特邀嘉宾,


赫博别墅设计创始人之一;
多次受邀成为院校家居的授课讲师;
98年至今,
为万千家庭打造幸福家居的同时,也相互成为了好朋友。
任何与装修有关的问题,欢迎您添加乐大姐微信:13382100888
乐大姐会为您做一对一解答。



项目地点:无锡时代上河(上叠)

项目面积:271.6㎡+露台42.3㎡

项目风格:现代简约

项目性质:别墅整装

项目状态:正在施工



每一套作品,都是私人定制


业主需求

The owner needs

本案业主夫妻两是无锡本地人,有个女儿,目前一家三口居住。买这套房子除了为了以后养老外,更多的是考虑到未来要三代同堂一起住,所以风格上希望偏年轻化一些。乐大姐团队根据业主及家人的需求及喜好量身定制出了这套方案,业主一家人看了后非常惊喜,尤其意外的是这个弧形艺术楼梯的设计,实在是太特别了!


效果呈现

Action rendering


客厅  |  Living Room

图片

图片

原结构中本案入户没有玄关,进门后一眼见底,隐私性差。设计老师采用分段式玻璃做入户隔断,层层递进,若隐若现,空间因此少了平铺直叙式的直白,别有洞天。

图片

图片

图片

在一层与二层之间的公区部分,设计老师以挑高中空的极简结构和具有延展性流动性的花纹岩板,将上下完全贯通,实现空间通风、采光的自由对流,构建空间的韵律与节奏,营造出无可比拟的大宅气势

这种气势,是物质之外的再铺叙,与家具的线条弧度、装置的艺术蕴涵、灯饰的极简造型,达成美学上的同源呼应 ,消弭体块的笨拙感,极具流动的韵味。


图片

图片

图片

拆解空间结构,洞察居者诉求,进行功能分层与场景化预设,是乐大姐团队做设计的源点。本案原有楼梯位于进门口,十分拥堵,且很笨重,没有任何美观性可言,如何以理性的规划楼梯重新梳理一层与二层空间的平衡关系,成为设计的重点
设计老师结合楼上楼下的功能布局,将楼梯设置在沙发背后,即房子的中心位置,从而使得楼梯不止于作为功能体而存在,更是一种艺术品,矗立在房子的C位


图片

图片
从敦煌飞天飘带演化而来的楼梯,透过蜿蜒的造型、白色大理石的踏步、茶色玻璃的栏杆、温润的质感,仿佛飞天衣裙飘带,随风舒展,上下翻飞,引领人步入美好生活。


餐厅  |  Kitchen
图片
图片

在功能规划上,设计老师结合业主一家的饮食习惯,特别规划了开放式的餐厨空间,与客厅一脉相承,最大化引入窗外盛景,自然与繁华咫尺可见。


图片



书房  |  Study
图片
图片
空间的新生,不仅仅是功能的聚合,更是视觉的更新二楼观景平台原来的结构都是实墙,现将其全部拆掉做成无边框茶色玻璃扶手,既通透开阔,上下还可以互动。
站在二楼俯瞰客厅,挑高的设置搭配大面积景观窗,置身其中,宛如漂浮在云端,开阔清朗的气息从四周涌动而来,磨平了生活的浮躁。


图片

图片

图片

楼梯上来的小小观景平台,仅28㎡,却容纳了五大功能——过道、书房、书架、钢琴曲、休闲区,极大地提高了空间利用率,营造出丰富的生活层次。


卫生间  |  Bathroom
图片

卫生间采用传统的干湿分离格局,灰色大理石与分区域的灯光设计,既可保证卫生间耐脏易清洁,又能兼顾光线视野问题。


一楼卧室  |  Master Room
图片
图片
一楼主卧是父母房,原有空间不大,没有大套间的感觉,所以设计时将大阳台打通纳入进来,地板通铺+休闲椅的设置,瞬间将主卧套房的感觉营造了出来。
现代灰与赭褐色的组合,让温馨感充斥整个空间,在这里身心得以放松。

图片


二楼卧室  |  Master Room
图片
图片
二楼主卧以酒店式设计为参照,黑白灰的深浅对比,低调、简约又耐看,营造出舒适的氛围,有家的的温度。落地玻璃窗的天然景观优势赋予了衣帽间的设计灵感,长虹玻璃的细密纹理交织,令空间既通透开放又精致优雅。


图片

图片

女主人精美的白色梳妆台,打破了床头黑色块面带来的沉闷,时尚而又不缺乏质感。


图片

图片

图片

台盆区墙壁附上白色细条瓷砖,整齐的线条与干净的用色,体现出主人纯粹且高品质的生活追求。


多功能房  |  Multi-function Room
图片

考虑到未来第三代还早,一楼的北次卧目前更多的是业主在使用,故将其设计成多功能房,但水电规划仍以房间的方式预埋好,后期随时可以变动,十分灵活


露台  |  Balcony

图片

本案女业主最喜欢的就是二楼的露台,抬头可仰望天空,领略浩瀚星海;低头可俯瞰大地,对话一座城市的过去与未来,视野绝佳。
所以,设计时摒弃传统的露台做晾晒区的做法,将其打造成屋顶花园,在生活方式之外,拓宽了居者内心的疆界,至此精神愉悦成为优先项。

平面方案

Flat Plan


图片
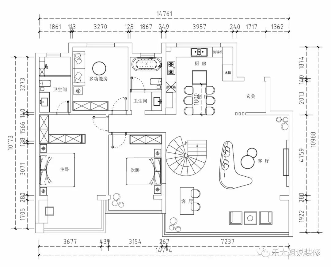
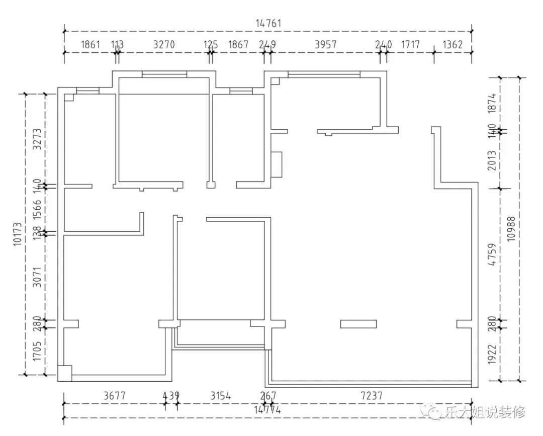
一楼原始户型图
图片

一楼改造后户型图
图片

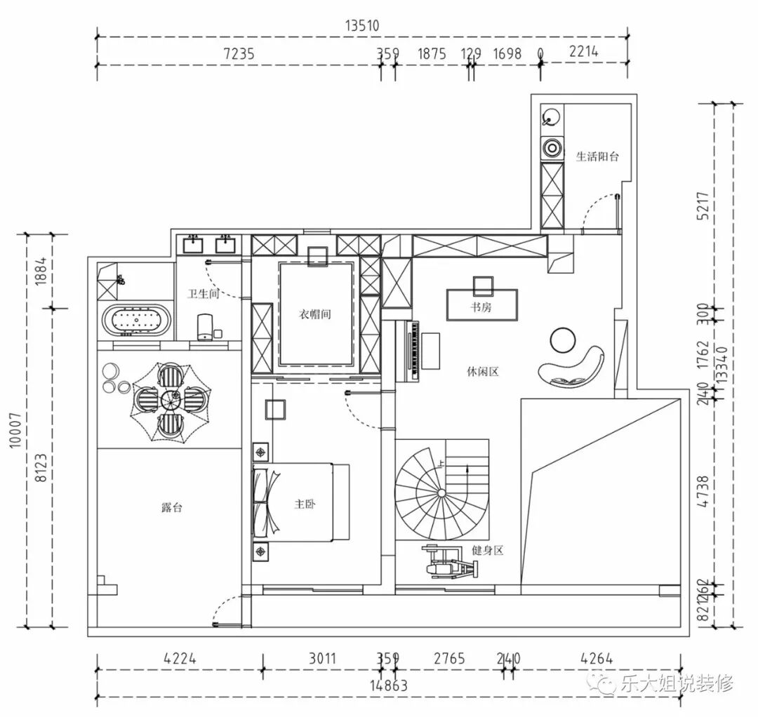
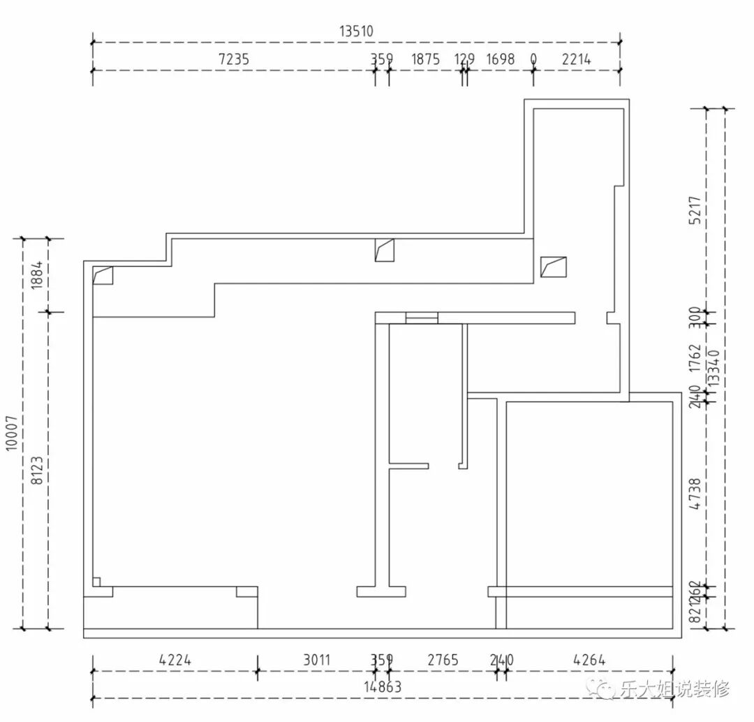
二楼原始户型图
图片

二楼改造后户型图
  • 原户型中本案楼梯的位置在进门处,很是拥堵,所以设计时将楼梯拆除,改造成过道和餐厅,而楼梯则移至客厅沙发背景后方,这样一来,极大地释放了餐厨空间,视野也因此更为开阔。

  • 餐厅原有空间里有根大承重柱,比较突兀,故将厨房橱柜与之连通设计,设置成餐边柜、酒柜,一体化的设计扩大了厨房的空间感,十分敞亮。

  • 本案二楼结构的改动较大,根据业主两代人分层住的要求重新布局,把二楼全部规划成女儿的独立空间。

全景图

Panorama


图片

点击左下方“阅读原文”,即可在线免费看本案例全景图(360°)。

https://vr.justeasy.cn/view/41es666o945a59s9-1672147846.html


END


往期案例回顾


设计说·第199期 | 327㎡现代美式,别样优雅!

图片

设计说·第198期 | 350㎡现代中式,风雅自然!

图片

设计说·第197期 | 182㎡现代叠墅,简约又时尚!

图片

设计说·第196期 | 485㎡独栋别墅,三代同堂,三种风格!

图片

设计说·第195期 | 202㎡失败案例改造,化“腐朽”为“神奇”!

图片

设计说·第194期 | 316㎡叠墅,极简至奢!

图片

设计说·第193期 | 199㎡顶复新中式,清新雅致!

图片

设计说·第192期 | 458㎡法式豪宅,优雅永恒!

图片


图片


如果您觉得乐大姐说的内容很有价值

欢迎分享转发至您的朋友圈

让更多的朋友都能轻松装修,自在生活!


当然,您也可以添加乐大姐微信号13382100888

或扫描下方的二维码

说出您的装修难题、让乐大姐为您答疑解惑

不管您是装修完工了

还是即将装修的

或者正在装修的

乐大姐一定知无不言,言无不尽


图片


图片
在看是一种鼓励|分享是最好支持
点击右下角 写留言 发表你的心声
我们期待与您的交流 

长按二维码添加乐大姐微信号

装修不烦 大姐来谈