
乐大姐
FM104.8《家在苏州--乐大姐说装修》栏目特邀嘉宾,
为万千家庭打造幸福家居的同时,也相互成为了好朋友。任何与装修有关的问题,欢迎您添加乐大姐微信:13382100888,
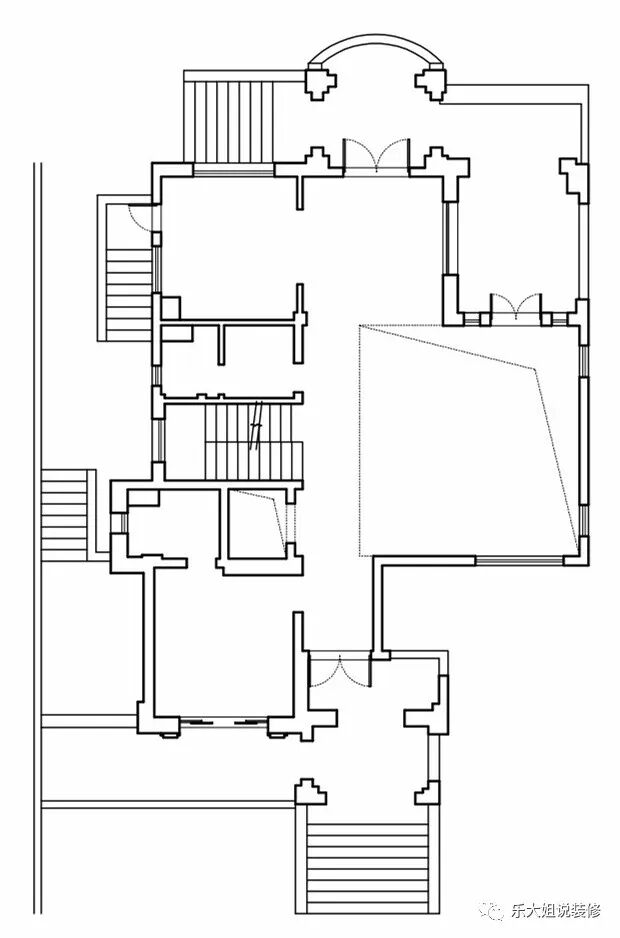
本案这套独栋别墅是标准的湖景房,整个房屋的北面有大片的湖景,视觉体验十分震撼,再加上还有一个360多平的院子,居住舒适度极高!风格上,业主夫妻两喜欢美式风格,但同时要求简单大方,低调奢华,所以乐大姐团队为其量身定制了这套雅奢美式,比之传统美式更加清雅精致,比之现代美式又多了些复古的感觉,效果出来后业主两口子对设计方案一见倾心!



加斯东·巴什拉在《空间诗学》中说:“家宅是一种强大的融合力量,把人的思想、回忆和梦融合在一起。”
步入客厅,6米多的挑空增加了空间的延伸感,弧形穹顶则使空间气场全开,简约的立面造型和色调令空间更加开敞自由,设计老师遵循业主的想法,尽量减少装饰,让人享受低欲望带来的纯粹体验,回归到家庭生活的温馨中来。奶油灰的色调在柔和冷静中烘托出平衡而又永恒的美感,为空间增添了些许时尚气息。
护墙板作为美式经典的装饰元素,并没有采用常规的同色造型,而是运用套色的做法,以线条层次和轮廓的加深、木门与门套颜色的加深来增加空间的层次感,营造美式温厚内敛的复古调性。灰色沙发背后的蓝色壁布和巨幅艺术画恰到好处地平衡了生活与精神需求,为这个家带来生机。



窗户除了采光,也可以很出彩。客厅主背景上原本有四个窗户,为了美观也为了采光最大化,设计老师保留了其中的两扇窗,并做了加高处理,将比例调到最优,这样不仅不会有整面护墙的压抑感,还能透过窗户看外面的景致。最关键的是,窗框里采用了美式复古元素的定制隔断,恰似花窗,若隐若现,雅致复古。
家具的选择和摆放也以舒适为主,灰色和蓝色绒布沙发搭配米色条纹单椅,色彩不断加深,就像是情绪的不断递进,一个圆形茶几将它们包容组合到一起,空间因此更加凝聚。
二楼过道的弧形观景设计,给平铺直叙的空间增添了低奢的韵律,使原本方正的客厅不再显得生闷,气势非凡,宛如空间中的焦点舞台,华贵又精巧,优雅而从容。
厨房的改造相当于把空间扩大了原来的2倍,在这超大的厨房里,不仅有中式的烹饪区,还有西式的西厨区,零食和酒也都得到了收纳与展示。
另外,厨房里还设置了一张长餐桌,一家人平时可以一边用餐,一边欣赏西院的美景,好不惬意!


本案是双餐厅设计,日常用餐一般在厨房里的长条桌上,有客人时则启用仪式感十足的圆桌。圆桌位于厨房与茶室中间,采用的开放式设计,不仅延展了空间的流动性和纵深感,赋予了场景灵活的可能性,也让整个视觉更为开阔明亮。
为了呼应整体美式的复古元素,在餐厅与厨房、茶室的移门选择上也是颇费了一番心思,特地定制了黑色复古花纹的移门款式,让空间别致有情调。

东北角的茶室,是一层观景最好的位置。在这里,可以和朋友们喝茶、打牌、聊天,可以推开窗户走到北院,散步、闲谈、看风景,生活如同诗一般美好!卡座和美式风扇灯的加设,创造出更多休闲生活的可能性。

老人房以经典的暖色作为设计主调,整体低调而富有质感,层次丰富的软装陈设,在营造舒适氛围的同时,也体现沉熟稳重基调下家的温度。
因老人房一定要配置电视,所以在衣柜储物够用的情况下,把电视设计进定制柜里,这样不仅整体性好,还能使储藏空间最大化。

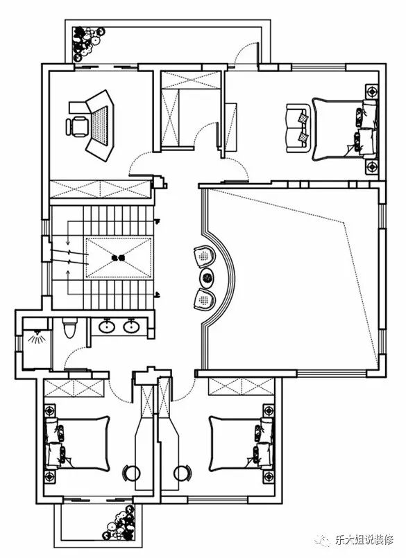
二楼东次卧是哥哥的房间,哥哥已经上初中了,审美越来越趋于成人化,喜欢酷酷的黑白灰现代风,所以床是现代美式的、衣柜是现代的,就连顶面的石膏线条也做了简化。
房间里还定制了书柜及书桌,以满足居者学习的功能需求。


二楼西次卧是弟弟的房间,弟弟正在上小学,审美还没那么成熟,所以风格上偏英伦风,经典的海军蓝与奶油色相碰撞,为室内带来温暖时尚的触感。同样,定制的书柜和书桌,满足了弟弟对学习环境的需求。

客卧,虽在二楼北面,但采光非常好,还有湖景,所以床头背景特意采用了清新复古的绿色,配上美式轻奢的灯具和床,让人既放松又舒适。
三楼主卧,是本案所有套房中面积最大最重要的一间。超大的空间尺度,虽为身体休憩放松带来强烈体验,却也因此少了些安全感,所以设计老师特地在卧室门正对面的床头背景处设置了一个端景作过渡,既让空间有了主次之分,又塑造了视觉的停顿与节奏感。
端景是如梦似幻的蓝,花朵的形态美而不冶,大面积窗纱柔美了自然光,遥想自己置身于最安静的湖边、草原或森林,在清澈微风的吹拂下,优雅地舒展开,惬意非常。



米灰色的护墙和平线条的吊顶造型,奠定了空间大气优雅的调性。而灰粉色的贵妃椅、斑马纹的茶几、长虹玻璃的移门,则为空间营造了更轻盈的表达,显露出主人精致的生活态度。
值得一提的是,女主人非常喜欢深色的地板,而深色地板常规直铺的话会显得有年代感,比较板正,故而采用韵律感十足的鱼骨拼,将年代感转换成复古的奢华感。



这里是衣帽间,也是三楼最好的观景位置,临窗就可以享受自然湖景,所以在满足储藏的前提下,在这里设计了一个小小休闲区,一把单椅,几本书,靠窗边坐下,静享漫时光。套房里的书房主要是女主人使用,所以采用的是雅致白与胡桃木的复古搭配,优雅却不失稳重。
三楼套房的卫生间也是星级酒店的存在,独立的马桶和淋浴区、饱满的地面拼花、复古的蓝色台盆柜、长椭圆形的镜面,配上金色线条,妥妥的雅致奢华。



地下室通过创造一个开放、平和、灵动、自然的空间氛围,满足业主一家多元化的生活需求,让情感在其间自由生发。乐大姐团队设计老师用跳色去打破平静,用材质的柔软、冷暖对比化解空间的沉闷,墙面地面的去装饰化让空间回归到生活,承载家人团聚的融洽,在忙碌的都市生活中拉近心与心之间的距离。

尽可能地打开地下空间,引光入室、引景入室,为居者打造一所“会呼吸”的房子,为来访者创造一场生命感的邂逅。







- 本套设计的重点在地上,一层除去老人房,余下则是丰富的功能区,北面更设有茶室、观景区等;二层为次卧区,设有大儿子房、小儿子房、客房等;三层则全部规划为主人套房。
- 原结构中本案的楼梯和电梯是分开的,且楼梯是直上直下的,为了提高居住舒适度和空间利用率,将电梯规划到楼梯中间,采用环抱式设计,而原电梯位置则改造成一楼外卫的干区。
- 因本案是独栋别墅,设计老师在不影响承重结构和外立面的前提下将一楼的厨房、门厅等区域往外扩了部分空间,以优化功能,增加使用面积。
- 本案二楼原本的过道是常规的直边结构,宽度有限,不够气派。设计老师在直过道的中点打造了一个弧形观景台,这样不仅给二楼增加一个休闲区,还大大增加了客厅挑高区域的气势。
- 本案地下室因层高有限,规划时尽可能地打开空间,让各功能区之间相互互通,通透开阔。
点击左下方“阅读原文”,即可在线免费看本案例全景图(360°)。
END
往期案例回顾
设计说·第201期 | 642㎡独栋,用“仙鹤”演绎东方低奢气韵!
设计说·第200期 | 无锡314㎡叠墅,遇见不凡!
设计说·第199期 | 327㎡现代美式,别样优雅!
设计说·第198期 | 350㎡现代中式,风雅自然!
设计说·第197期 | 182㎡现代叠墅,简约又时尚!
设计说·第196期 | 485㎡独栋别墅,三代同堂,三种风格!
设计说·第195期 | 202㎡失败案例改造,化“腐朽”为“神奇”!
设计说·第194期 | 316㎡叠墅,极简至奢!

如果您觉得乐大姐说的内容很有价值
欢迎分享转发至您的朋友圈
让更多的朋友都能轻松装修,自在生活!
当然,您也可以添加乐大姐微信号13382100888
或扫描下方的二维码
说出您的装修难题、让乐大姐为您答疑解惑
不管您是装修完工了
还是即将装修的
或者正在装修的
乐大姐一定知无不言,言无不尽