清水江南别墅整装

设计说·第203期 | 203㎡原木风,清新治愈!

发布时间:2023-03-29

图片

乐大姐

FM104.8《家在苏州--乐大姐说装修》栏目特邀嘉宾,

赫博别墅设计创始人之一;
多次受邀成为院校家居的授课讲师;
98年至今,
为万千家庭打造幸福家居的同时,也相互成为了好朋友。
任何与装修有关的问题,欢迎您添加乐大姐微信:13382100888
乐大姐会为您做一对一解答。


图片


图片
COMPLETION WINE

每一次样板房的拍摄,

每一次竣工酒的举行,

不仅仅是装修成果的一次展示,
更是承诺一次又一次的实力兑现。
圆一个理想家居之梦,
筑一方盛满温情的居所。
这个过程中
乐大姐团队和业主们相识、相知、相交,
一次装修,一生朋友。

——乐大姐团队


01
看别人的家  装自己的生活

项目地点:香城花园
项目面积:203㎡(上叠)
项目风格:现代原木
项目性质:别墅整装
项目状态:已竣工
现代风的简约格调,非常契合当代人的家居体验,而原木的舒适自然也让人觉得十分惬意,那么当现代与原木出现在同一套家居设计中,又会是怎样的一种呈现呢?今天就跟乐大姐一起来看看这套203㎡现代原木的实景现场吧
图片

图片


图片


图片


图片


图片


图片


图片


图片


图片


图片


图片


图片


图片


图片


图片


图片


图片


图片


图片


图片


图片


图片


图片


图片


图片


图片


图片


图片


图片


图片


图片


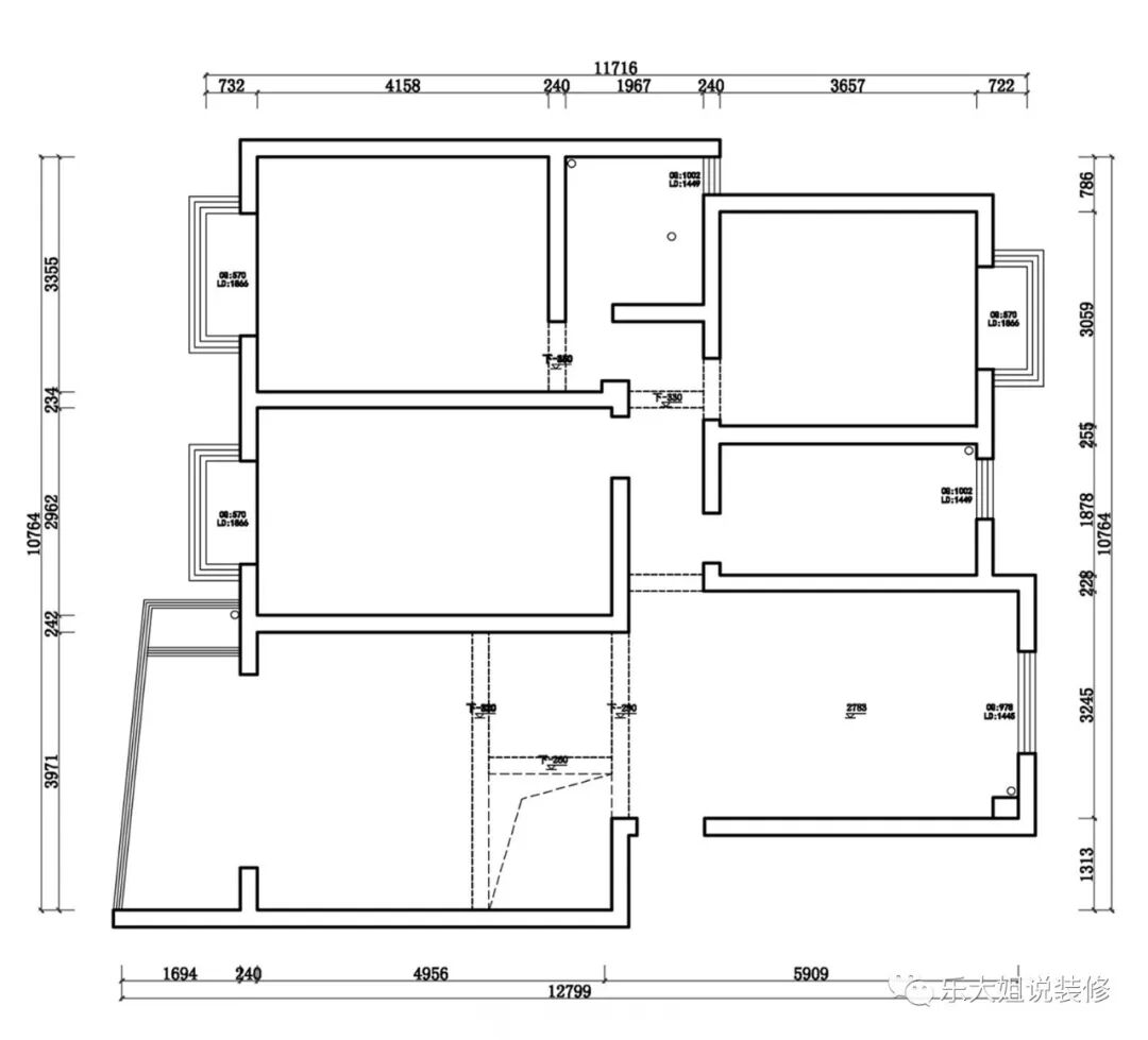
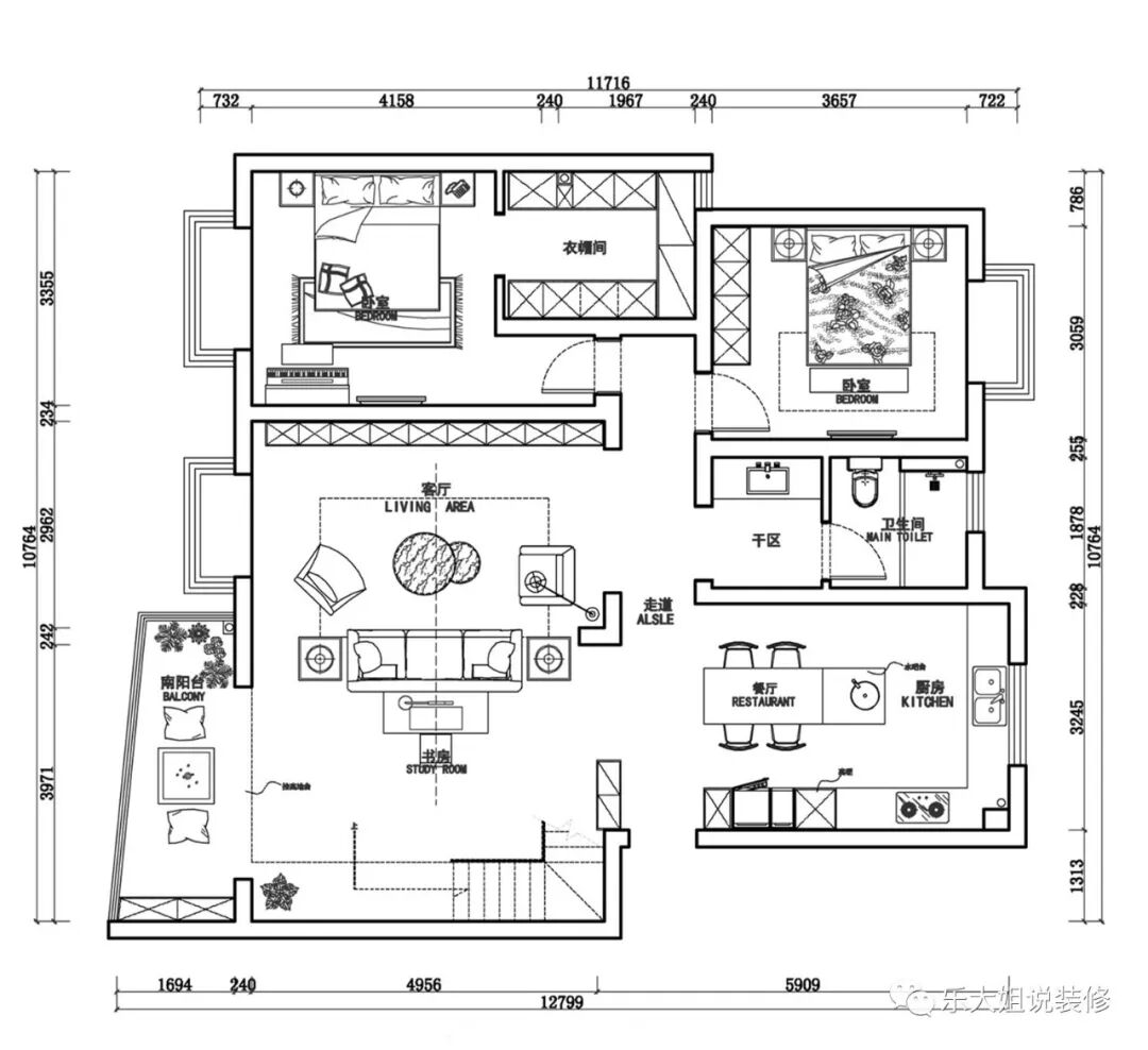
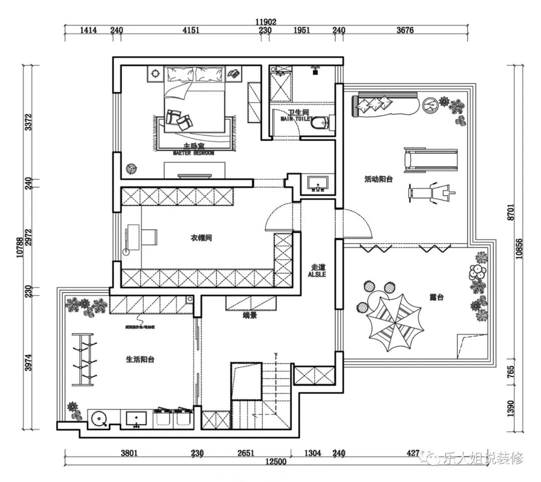
平面方案


图片

一层原始户型图

图片

一层改造后户型图

图片

二层原始户型图


图片

二层改造后户型图


设计全景图

点击左下方“阅读原文”,即可在线免费看本案例全景图(360°)。



02
装修背后的故事


本案是一套203㎡的顶楼复式,还有一个40多平的露台花园,业主买来是准备一家三口长久自住+养老的,所以对装修的要求很高。风格上,乐大姐团队为业主夫妻量身定制了他们喜欢的原木风,同时还大胆地运用了大片的绿色,显得清新又治愈,客餐厨的开放式格局也让空间更加通透敞亮。


满意度100%


图片

▲ 乐大姐团队&香城花园业主夫妇合影留念

拍摄现场,在和乐大姐、苏州电视台《第一时间》拍摄老师等聊天的过程中,男业主说到了自己的装修经历:“我是一个做事情很有计划的人,我们大概是从2019年就开始关注你们乐大姐团队了,看了一年多才置换了这套房子,买好了后就直接找你们装修了。其实,在这之前我们装过两次房子,每次装修最让我头疼的一是控制不住的价格,总是越装越贵;二是无法把控的效果,所以之前的两次装修我们经常要守在工地现场,还要给工人画图,颜色搭配也要自己把握,关键的是最后的效果还不好。这次装修,找你们乐大姐团队,就省了好多心!不仅工地不用我们操心,关键的是高度还原了开工前的效果图,甚至很多细节超过了效果图!


图片
▲ 乐大姐正在拍摄苏州电视台《第一时间》解析样板房装修知识点
女业主接着说:“我们家竣工没多久我们就住进来了,简直是迫不及待,因为这就是我们心目中想要的家,所以就想赶紧搬!然后,我们就一直在家里忙着接待朋友,几乎所有的亲朋好友和同事们都来我家看过了,都很喜欢,有的表示要把自己家砸掉重新装修,也有的要重新换房子,都想装修成我家这种样子,我自己老板知道我们家装好了,也来看过了,说装得很好,老板女儿刚刚买了新房也想装成这样!”

男业主也说:“是的,我们现在只要一下班就想往家里赶,哪都不想去,就想待在家里,周末或者节假日我们没有必要情况肯定都不出门的,天气好的时候,我俩就在二楼顶楼露台上吃水果,泡茶喝,感觉好极了,什么样的咖啡店都比不上我们的露台花园!”


图片

▲ 乐大姐正在拍摄苏州电视台《第一时间》解析样板房装修知识点
“所以,现在身边有亲戚朋友要装修,我都推荐他们找你们乐大姐团队。”竣工酒桌上男业主如是说道:“像我之前有一个同事装修,我也推荐她找你们,不过同事的老公坚持要找熟人,现在同事跟我抱怨说当初'熟人'说的价格,现在费用已经双倍都不止了,活还没有结束,还不知道最后的结果怎样,因为是“熟人”,她是有苦说不出啊!”


图片
▲ 竣工验收单上业主的评语

图片

▲ 香城花园业主夫妇&乐大姐团队在小区门口合影
图片
▲ 香城花园业主夫妇设宴宴请乐大姐团队贺竣工之喜

乐大姐本人跟业主两口子今天是第一次见面,简直是一见如故,聊得不亦乐乎,一天聊下来还觉得没有尽兴,乐大姐团队坚持:一次装修,一生朋友!我们来日方长……


再次感恩业主
对乐大姐团队的信赖与认可
您的新家落成
 我们来见证幸福、兑现承诺。
当梦想变成现实,家有了情感,
我们的缘分也有了新的定义,
竣工才是我们服务的开始,
时间是检验我们服务的试金石。
我们一定不会辜负您的这份信任!

END


往期案例回顾


设计说·第202期 | 704㎡独栋别墅,美式轻奢!

图片


设计说·第201期 | 642㎡独栋,用“仙鹤”演绎东方低奢气韵!

图片


设计说·第200期 | 无锡314㎡叠墅,遇见不凡!

图片


设计说·第199期 | 327㎡现代美式,别样优雅!

图片


设计说·第198期 | 350㎡现代中式,风雅自然!

图片


设计说·第197期 | 182㎡现代叠墅,简约又时尚!

图片


设计说·第196期 | 485㎡独栋别墅,三代同堂,三种风格!

图片


设计说·第195期 | 202㎡失败案例改造,化“腐朽”为“神奇”!

图片



图片


如果您觉得乐大姐说的内容很有价值

欢迎分享转发至您的朋友圈

让更多的朋友都能轻松装修,自在生活!


当然,您也可以添加乐大姐微信号13382100888

或扫描下方的二维码

说出您的装修难题、让乐大姐为您答疑解惑

不管您是装修完工了

还是即将装修的

或者正在装修的

乐大姐一定知无不言,言无不尽


图片


图片
在看是一种鼓励|分享是最好支持
点击右下角 写留言 发表你的心声
我们期待与您的交流 

长按二维码添加乐大姐微信号

装修不烦 大姐来谈