清水江南别墅整装

设计说·第204期 | 360㎡意式轻奢叠墅,解锁无限可能!

发布时间:2023-04-07

图片

乐大姐

FM104.8《家在苏州--乐大姐说装修》栏目特邀嘉宾,

赫博别墅设计创始人之一;
多次受邀成为院校家居的授课讲师;
98年至今,
为万千家庭打造幸福家居的同时,也相互成为了好朋友。
任何与装修有关的问题,欢迎您添加乐大姐微信:13382100888
乐大姐会为您做一对一解答。

项目地点:金地燕风华

项目面积:地上145㎡精装+地下215.1㎡毛坯

项目风格:意式轻奢

项目性质:别墅整装

项目状态:正在施工




每一套作品,都是私人定制


业主需求

The owner needs


本案这套下叠墅,虽说是精装房,但仅一楼是精装,地下两层都是毛坯,而业主买这套房子主要是计划以后养老住的,所以对装修的功能和品质要求非常高,原开发商做的精装根本无法达到他们的标准,所以最终他们找到了乐大姐团队


风格上,本案女业主喜欢轻奢的感觉,可是原精装现场的门和地板颜色都偏深,所以乐大姐团队为业主一家量身定制了这套低调又张扬的意式轻奢风。


效果呈现

Action rendering

地下室  |  Basement


图片


图片

图片
设计是一种感受、一种心态,人为的设计生活方式,努力去创造一种更好的生活状态。
本案的地下室,作为这套下叠墅的最大特色兼具了打球、攀岩、观影、品茗、打牌、跑步等各项休闲度假的居家功能,体现出名副其实的奢华内涵。整个地下空间充满艺术、时尚气息,其本身就是一个精雕细琢的艺术品。


图片

图片

图片
原结构中,负二层到负一层的楼梯闷在夹层下方且两边都是墙体,设计时将其挪至地下挑空区域,视线因此一下子被打开了,沉闷昏暗的空间也有了生命的流动感
以建筑手法造景,楼梯间既有石材的厚重,也有玻璃的轻盈,再添一处由绿植、白色的小石子构成的干景区,小小角落也横生趣致

图片

图片

图片
设计既要有现代生活的简约实用,又要富有温馨的生活气息。
健身区顶面下凸的区域是一楼主卧内卫下沉的部分,高度与其他区域不在同一水平面上,如果直接拉平,负二层的层高就会比较矮,所以设计老师采用灯膜+灯带的灯光设计来弱化突兀感,同时表达设计调性。
墙角的圆弧形&灯带处理,既避免了直角对冲的生硬效果,看起来又更具设计感。

图片

图片

茶室空间位于夹层,层高不高,故顶面运用灰镜从视觉上拉伸了整体空间的层高,而弧形吊顶+灯带的处理,也更加体现了整体空间设计上的精致感。


图片
书房的仪式感,在光影被采光井捕捉的移动轨迹中慢慢聚拢,空间的功能也随之展开。简洁的灯具,用线条感对空间进行简单的划分。黑木白色调,寻求空间的关联性,简约又大气。

客餐厅  |  Living&Dining room


图片


图片


图片

客餐厅以简练的线形和开放式的设计构建空间形态,虚化边界感,从而延展了空间的流动性与纵深感,赋予了空间场景灵活的可能性,也让整个视觉更为开阔明亮。

设计老师以木色作为空间的主色调,材质的天然肌理构成最舒适的感官界面,身心也随之沉静了下来。而绿色与橙色的点缀,则打破了单调的界限,构成强烈的对比,给空间注入朝气与活力。

图片


图片


图片
柔软亲肤的沙发与精致的单人艺术座椅围合,形成会客交流空间。大气干净的沙发背景界面,用一幅黑红褐相间的现代抽象画作点睛,极大丰富了空间的视觉层次。

长城板&大理石的悬浮电视背景设计,打破客厅的沉闷的同时将空间美学和功能做了完美的平衡,且右侧长城板背后还隐藏了父母房,十分巧妙。(ps:将原开发商的房门拆掉换成和背景融为一体的格栅隐形门,空间更加整体)


图片

图片

餐厅,线条简炼的大理石餐桌、充满质感的绒布餐椅、尺寸慷慨的餐边柜与细巧的金属吊灯组合,使得整体视觉效果立体而轻盈,仪式感十足。

主卧  |  Master room


图片


图片


图片

主卧套房,作为主人夫妇的专属空间,大量的布艺,柔软轻盈,搭配少量光泽质感的皮革,空间瞬间多了些低调的奢华。再加上金属、玻璃的点缀,在整体低饱和度的色彩空间中,耀眼夺目。


简单摆放的艺术画,就可以提高空间的质感。最高级的美,往往最简洁。


图片


图片

设计老师利用镂空的金属玻璃隔断巧妙化解卫生间门正对着床的尴尬,同时又不影响卧室的宽敞感,空间反而因与众不同的装置变得更加丰富而通透。


窗帘设在飘窗上是设计老师的小巧思,飘窗也因此与卧室融为一体,空间感被放大。


父母房  |  Parent's room


图片


图片


图片
父母房的设计回归了自然的拙朴,轻松而不浮夸,尊贵而不张扬,同时通过飘窗与户外庭院相连,清新的空气,美丽的景观,养老生活也可以如此惬意而自在。


儿子房  |  Son's room


图片


图片


图片

儿子房,以意式的高级灰色调和几何线条铺卷成整个空间的基调,个性、时尚、自由、趣味的气氛点缀空间的各个角落。靠墙的衣柜设计,不仅增加了收纳空间,更给居者以美的享受。


院子  |  Balcony


图片


图片

一楼的花园景观、休闲景观,配合室内大范围的落地窗,将室内室外有机连接,达到一步一景观、移步换景的效果。


平面方案

Flat Plan


图片
负二层原始户型图
图片
负二层改造后户型图
图片
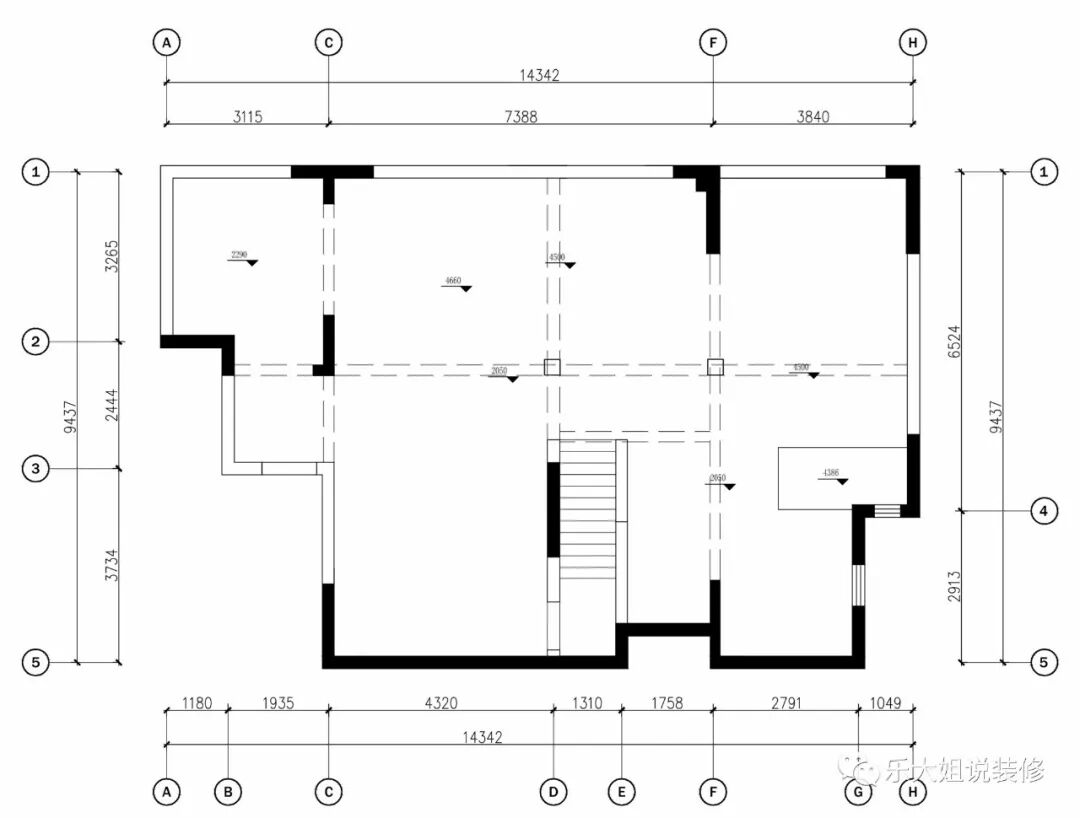
负一层原始户型图
图片
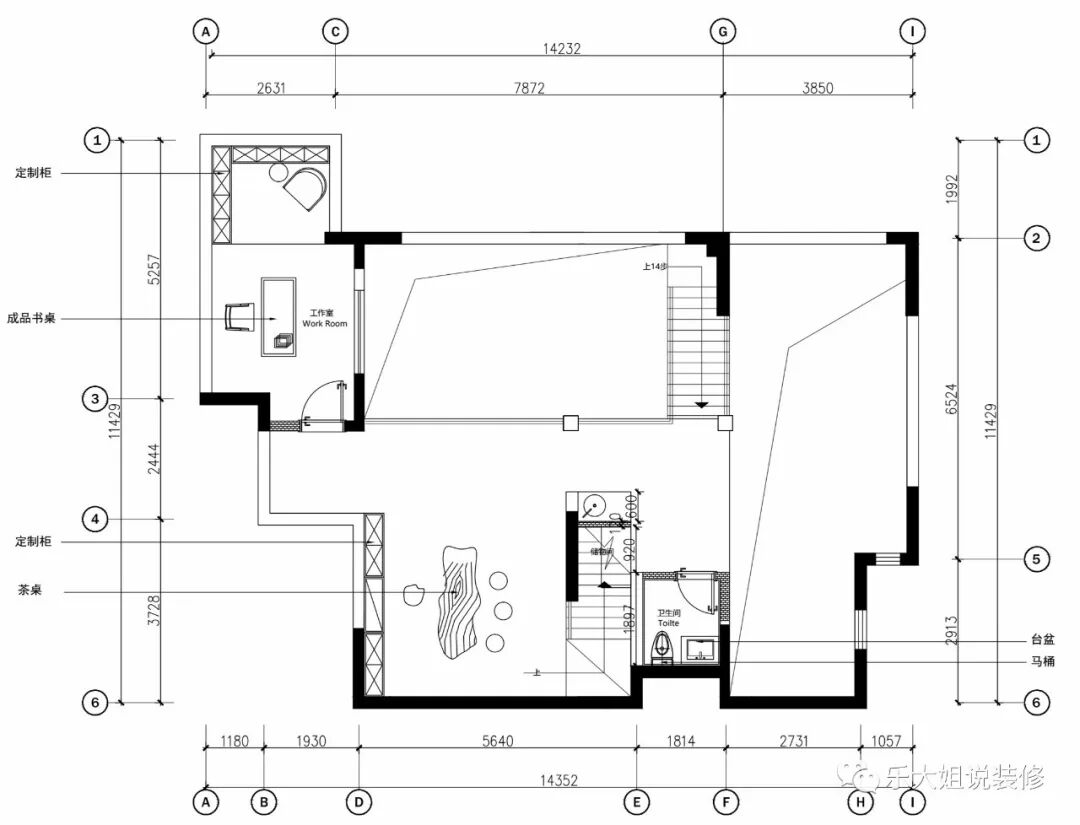
负一层改造后户型图
图片
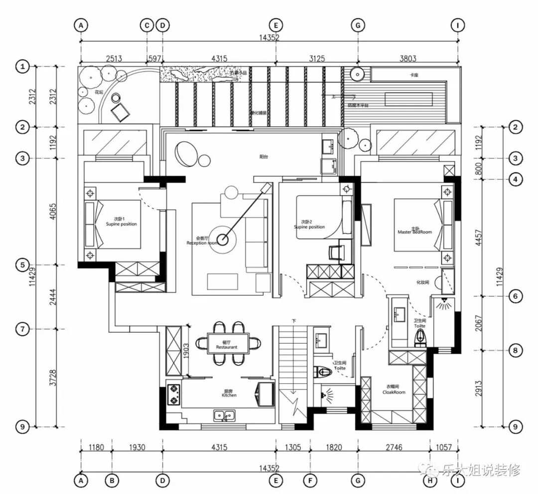
一层原始户型图

图片

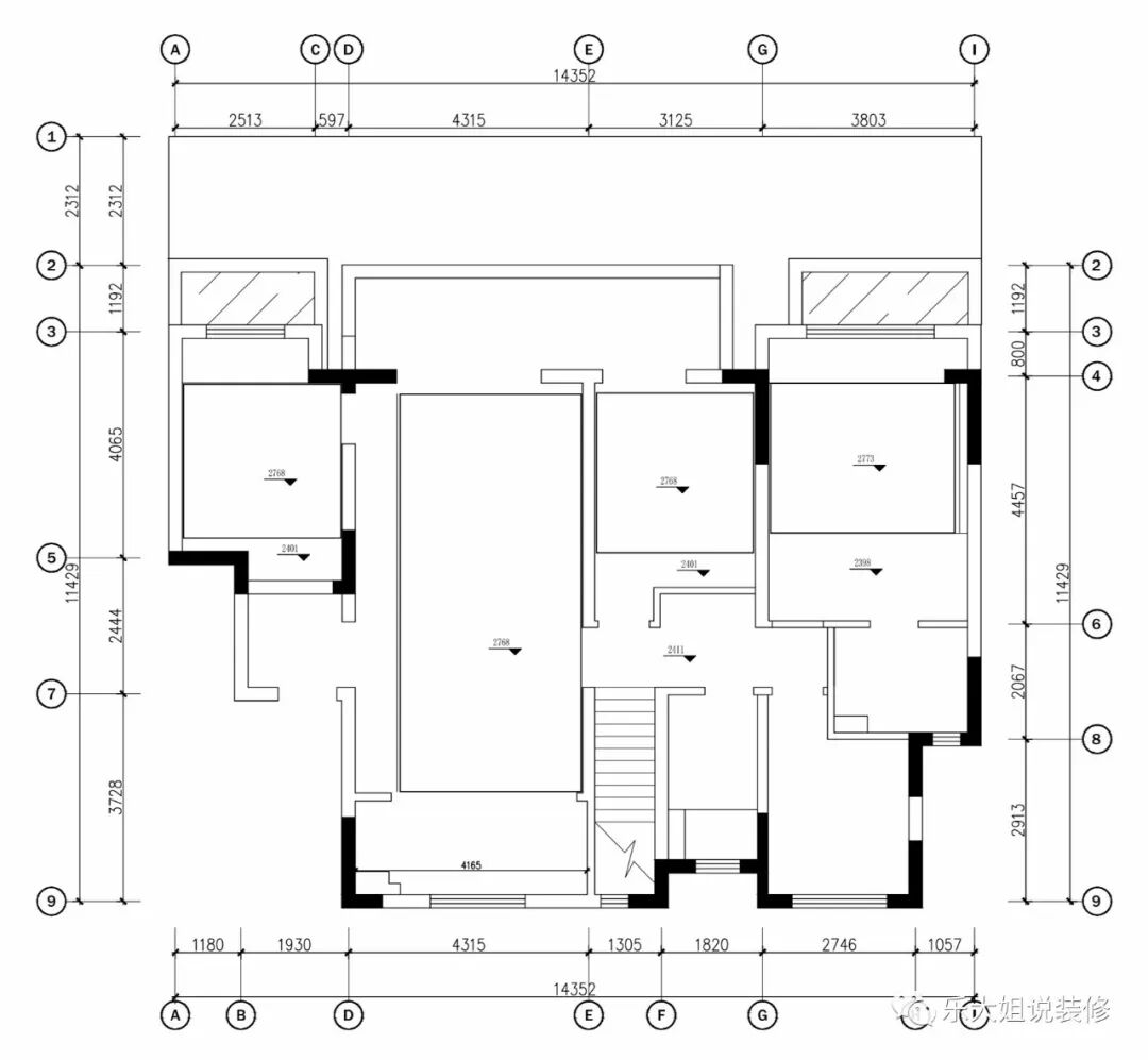
一层改造后户型图

  • 因本案这套下叠墅,地下空间比地面都大,故而地面主要用来安排日常生活所必备的功能区,而休闲娱乐所需的台球区、健身区、棋牌室、影音室、茶室等,则全部安排到了地下,功能分区清晰明了。

  • 本案地下室虽有一个很大的L形挑高区域,空间看上去比较开阔通透,但原结构中地下楼梯却被设置在一个远离挑高的封闭式狭长空间内,显得既昏暗又沉闷,故设计老师将其挪至L形挑高区域的直角位置,这样视线完全被打开的同时楼梯也成为空间中的一道靓丽风景。而原楼梯区域则被设计成了储物空间。

  • 一楼保留原有的精装部分,改动不大。不过,因本案是业主夫妻两未来的养老房,所以乐大姐团队设计老师将北边的小房间与主卧打通,打造成一个集睡眠、洗漱、梳妆、收纳于一体的大套房,舒适度极高。


全景图

Panorama


图片

点击左下方“阅读原文”,即可在线免费看本案例全景图(360°)。


END


往期案例回顾


设计说·第203期 | 203㎡原木风,清新治愈!

图片

设计说·第202期 | 704㎡独栋别墅,美式轻奢!

图片

设计说·第201期 | 642㎡独栋,用“仙鹤”演绎东方低奢气韵!

图片

设计说·第200期 | 无锡314㎡叠墅,遇见不凡!

图片

设计说·第199期 | 327㎡现代美式,别样优雅!

图片

设计说·第198期 | 350㎡现代中式,风雅自然!

图片

设计说·第197期 | 182㎡现代叠墅,简约又时尚!

图片

设计说·第196期 | 485㎡独栋别墅,三代同堂,三种风格!

图片


图片


如果您觉得乐大姐说的内容很有价值

欢迎分享转发至您的朋友圈

让更多的朋友都能轻松装修,自在生活!


当然,您也可以添加乐大姐微信号13382100888

或扫描下方的二维码

说出您的装修难题、让乐大姐为您答疑解惑

不管您是装修完工了

还是即将装修的

或者正在装修的

乐大姐一定知无不言,言无不尽


图片


在看是一种鼓励|分享是最好支持
点击右下角 写留言 发表你的心声
我们期待与您的交流 

长按二维码添加乐大姐微信号

装修不烦 大姐来谈