乐大姐
FM104.8《家在苏州--乐大姐说装修》栏目特邀嘉宾,
为万千家庭打造幸福家居的同时,也相互成为了好朋友。任何与装修有关的问题,欢迎您添加乐大姐微信:13382100888,
每一套作品,都是私人定制
项目地点:姑苏樾(下叠)
项目面积:地上138㎡精装+地下室179㎡毛坯
项目风格:现代简约
项目性质:别墅整装
项目状态:正在施工
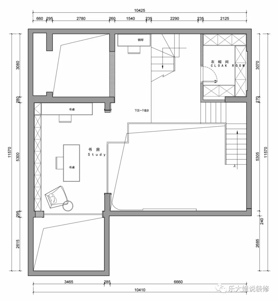
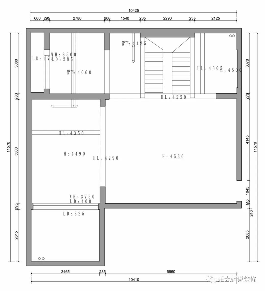
本案这套下叠墅设计上最大的难点就是地下室的面积占了整套房子的一大半(地下179㎡),而地上一层只有138㎡却要规划至少四个房间以及常规的功能区,这样一来连待客休闲的客厅都没地方安排了,那该怎么办呢?乐大姐团队通过设计将通常闲置的地下室打造成集待客、观影、学习、品茗等多功能于一体的休闲娱乐空间,同时4.5m的挑高也让这套下叠墅拥有了别墅才有的大宅感,大大超越了业主一家人对这套房子的期待!


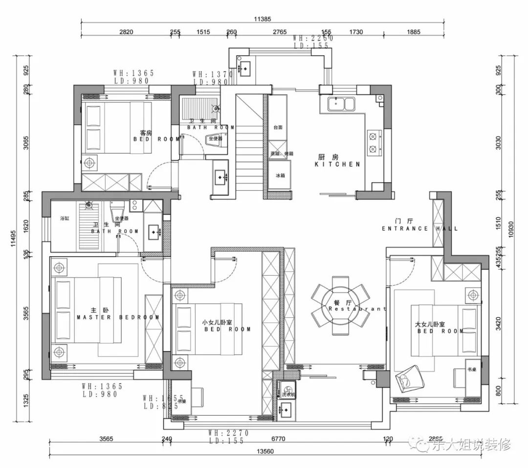
居住空间本质上是生活方式的反映,不一定要“墨守成规”,要敢于打破常规思维,让自己住的舒服安心,才是理想的选择。本案这套下叠墅的地上空间相比于地下更加紧凑,规划完必备的卧室、厨房、餐厅、楼梯和卫生间后,根本没地方安排客厅了,乐大姐团队设计老师打破常规,重新思考空间与生活的关系,采用了“去客厅化设计”。
而,地下休闲厅的设置,则巧妙地弥补了客厅待客、休闲功能的缺失,将客厅功能下沉至地下,可谓别出心裁。



在交互式空间之中,让空间与空间之间产生互动,让人与人、人与空间都因场景而有了几分交流,才是空间本该有的面貌。
本案地下挑高区域的原层高高达4.5米,设计老师根据业主需求及空间布局,将整个挑高空间一分为二,其中,会客厅保留原有层高,一进门就给人一种大宅的气势感;夹层区茶室&书房的开放式设计,不仅不影响整体的空间感,还增加了使用功能和空间之间的交互性。坐姿为主的功能空间,也让人可以忽略层高带给人的压抑感。

设计老师通过家具、灯饰和饰品的陈设,相互贯穿的色系,让地下空间得到稳定的基调。同时,透过点线面的层次递进,使空间得以舒张。木质与木质的加入,少了几分硬度,多了几分温度,让休闲区与茶室、书房有了情感的链接。

地下休闲厅右侧是开放式茶室,采光井充足的光线倾洒而下,让品茗与阅读成为了一场愉快的时间旅行,而茶室上方的书房则是专门为办公、学习而配置的,让人在其中可以自由选择不同的场景方式,阅读、品茶和休息,舒适而惬意。
茶室背景以艺术涂料打底,以水墨画做景,勾勒出禅意的轮廓,赋予空间细腻东方的内在气质。顶面茶色玻璃的运用,从视觉上延伸映照上下景致,从而拉伸了空间的层高,凸显了精致高雅的格调。

位于夹层的书房,因受面积和层高的限制,采取敞开式设计来打破空间的界限,与挑高空间、采光井之间完全没有了视线的阻隔,开阔而明亮。顶面弧形&线性灯的处理,柔化了刚硬的“梁”,舒缓了空间的节奏又增加了层次感,十分独特。倚墙而立的书柜,则一改常规柜门的做法,采用玻璃移门的形式,空间因此更加通透。



负二层影音室,炫酷的暗黑色系和克莱因蓝碰撞出时尚前卫的质感,新潮又有范儿。墙面错落相交的线条灯使空间变得灵动有趣,充满未来科技感。星空顶的植入,则让场地充满浪漫气息且深邃无穷。

餐边柜的组合变化无不透露着设计老师的用心,丰富视觉感官的同时兼顾着空间的起承转合,彰显着仪式感。

移步往内,便是居者的私密空间。主卧延续地下空间的素雅底蕴,再将沉稳低调的金属质感点缀空间中。主卧背景墙,无限阵列的木格栅搭配错落有致的木饰面,强化了几何构成,增加了空间层次感,设计巧思可见一斑。而柔和的木色则唤醒着人们对自然的向往和共鸣,亲切而温馨。

大女儿现在正在读高中,她的审美已经脱离孩童阶段,偏向成人,所以设计上也更加成熟。几何图形的床头背景弥补了素色壁纸的单一,带来不一样的俏皮气息。大方高级的配色与温柔细腻的质感构建出空间的时尚调性,精致而优雅。


小女儿的年纪才3-4岁,所以她的房间规划以童趣为主题。马卡龙色和星星月亮元素带来的甜蜜梦幻氛围,最是独特,成为空间最耀眼的闪光点。柔和的圆弧设计似乎更适合小孩子,利用其勾勒学习区和衣柜,考虑安全问题的同时,兼具美感与舒适,清新、甜腻、温暖的感受直击人心。


- 本案这套下叠墅一楼虽是精装修,但因日常是业主一家四口居住,需要至少四个卧室,所以一楼改动还是比较大的。其中,将原客餐厅的大横厅一分为二,一部分用来做小女儿房,一部分用来做餐厅,以满足业主一家的居住需求。而常规的客厅在一楼被取消了,设计老师将待客、休闲的功能需求下沉至地下休闲厅,设计得可谓十分巧妙。
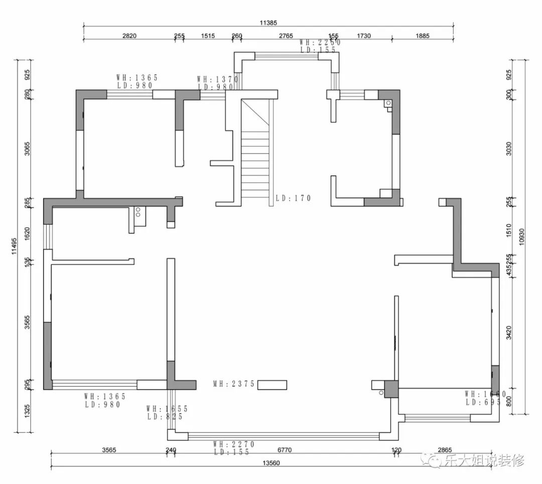
- 原结构中,厨房与楼梯相邻,面积不大,且中间还有一个通往北阳台的过道,十分浪费空间,所以设计老师将过道直接纳入到厨房,并在北阳台与厨房交界处安装了一个移门,从而大大提高了空间利用率。
- 考虑到私密性及空间利用率,乐大姐团队设计老师将主卧的开门往墙体的南侧挪了1.05m,这样不仅避免了进门直接看到主卧,还扩充了卫生间的使用功能,与其他两个房间之间动线上也更加合理。
- 因本案地上空间有限,设计老师将业主需要的待客、休闲、学习、品茗等功能全部在地下室为其实现了,也因此地下设计就显得尤为重要了。首先,为了营造别墅才有的大宅感,保留原结构中的部分挑高空间,用来作地下休闲厅;其次,为了满足业主的功能性需求,将部分挑高空间一分为二,打造成书房和茶室。再者,为了满足业主一家对家庭观影的需求,将原地下楼梯全部拆除,移至入户门右侧靠墙处,而原楼梯空间则改造成影音室。另外,将茶室与南侧的采光井打通,空间更加的开阔敞亮。
点击左下方“阅读原文”,即可在线免费看本案例全景图(360°)。
END
往期案例回顾
设计说·第204期 | 360㎡意式轻奢叠墅,解锁无限可能!

设计说·第203期 | 203㎡原木风,清新治愈!

设计说·第202期 | 704㎡独栋别墅,美式轻奢!

设计说·第201期 | 642㎡独栋,用“仙鹤”演绎东方低奢气韵!

设计说·第200期 | 无锡314㎡叠墅,遇见不凡!

设计说·第199期 | 327㎡现代美式,别样优雅!

设计说·第198期 | 350㎡现代中式,风雅自然!

设计说·第197期 | 182㎡现代叠墅,简约又时尚!


如果您觉得乐大姐说的内容很有价值
欢迎分享转发至您的朋友圈
让更多的朋友都能轻松装修,自在生活!
当然,您也可以添加乐大姐微信号13382100888
或扫描下方的二维码
说出您的装修难题、让乐大姐为您答疑解惑
不管您是装修完工了
还是即将装修的
或者正在装修的
乐大姐一定知无不言,言无不尽