发布时间:2023-04-16
乐大姐
FM104.8《家在苏州--乐大姐说装修》栏目特邀嘉宾,

从一间房子变成一个“家”
这过程需要付出很多的心血,
开工仪式还历历在目,
样板房拍摄已如期而至,
这不仅仅代表着一份成果,
更代表着
完成业主梦想中家的承诺,
有始有终才算圆满!
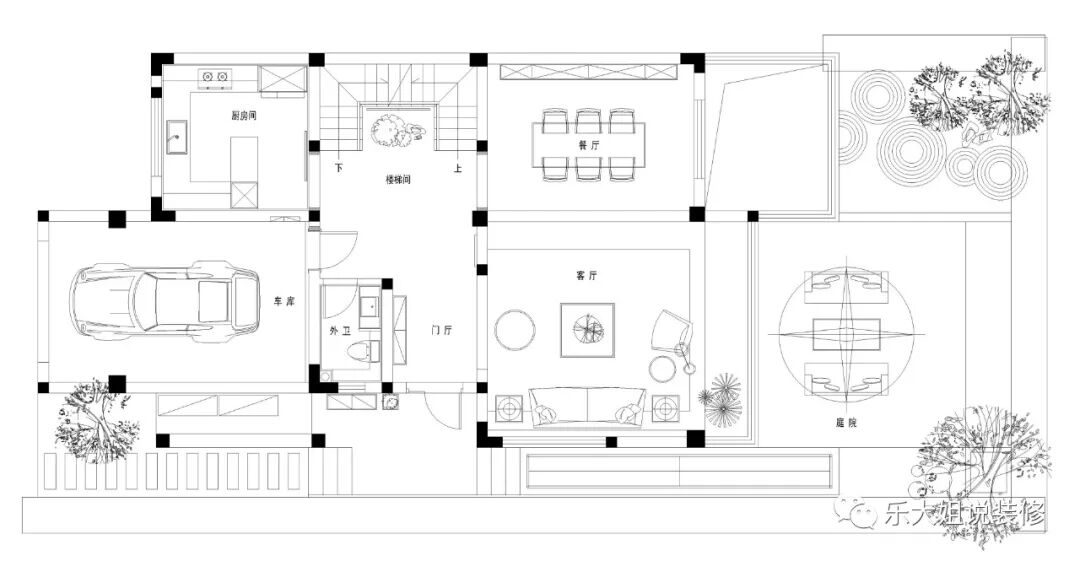
——乐大姐团队原创 每一套作品,都是私人定制 项目地点:苏里人家 项目面积:300㎡+地下室135㎡(双拼) 项目风格:现代度假风 项目性质:别墅整装 项目状态:已交付 每个人的成长环境、生活习惯、个性爱好不一样,造就的家也会各不相同。因此,差异化设计是家居装饰的灵魂,赋予其生命力。本案苏里人家这套双拼别墅的风格很小众,用色特别大胆,许多材质以前都不曾用过,实景现场让人见之忘俗~~ 平面方案 ▲ 乐大姐团队&苏里人家业主夫妇合影留念 拍摄现场,在和乐大姐、苏州电视台《第一时间》拍摄老师等聊天的过程中,女业主说:“我从不在意别人怎么看,我只在意我需要什么样的生活,什么样的环境。对于生活和家,我有很多自己的想法和非常喜欢的元素,我需要设计老师把我喜欢的点变成面,把我的梦想变成现实。所以,当初决定要装修的时候,我虽然看了好几家装修公司,但都不合适,最终还是你们乐大姐团队的设计打动了我,这才是我想要的的生活。” “我老婆跟你们乐大姐团队的这次合作,可以说是一次灵魂的碰撞。因为我老婆想要什么样的效果,跟你们设计老师一说,他就能马上get她的点,并且把它呈现出来(ps:我们家装修的事情都是我老婆对接的,这方面她比较有想法)。”谈起这次装修男业主如是说道,“我想这也是为什么她那么喜欢私密的一个人,一个从来连朋友都不往家里邀请的人,却邀请你们乐大姐团队过来家里拍摄样板房、吃竣工酒的原因吧!”
▲ 乐大姐正在拍摄苏州电视台《第一时间》解析样板房装修知识点
女业主接着说:“是的,我是一个想法很多的人,怎么把这些想法变成现实,就不得不感谢你们乐大姐团队了,比如说,楼梯间的这个棕黄色,当时我跟设计老师说我想要一种夕阳照在沙漠上的感觉,施工现场单调这个色就调了8次,最终调出了我记忆中的感觉(曾去沙漠旅行)。再比如说,壁炉的处理,厨房橱柜的门板……,这些都是,所以乐大姐团队不论是设计老师还是施工人员都非常的耐心、专业。”
▲ 竣工验收单上业主的评语
▲ 苏里人家业主夫妇设宴宴请乐大姐团队贺竣工之喜
有感: “苏里人家这套双拼别墅目前为止是我最想住的房子,走进来很像是一个高端民宿,拍摄工作用了两天,我走到每一处都觉得很漂亮,很有设计感!各花入各眼,每个人的个性都各不相同,所以设计方案都是量身定制。看着自己的房子经过每天的精心“雕琢”,最后变成理想中的家,从过程到结果应该都是美好又幸福的!”
END
往期案例回顾
如果您觉得乐大姐说的内容很有价值
欢迎分享转发至您的朋友圈
让更多的朋友都能轻松装修,自在生活!
当然,您也可以添加乐大姐微信号13382100888
或扫描下方的二维码
说出您的装修难题、让乐大姐为您答疑解惑
不管您是装修完工了
还是即将装修的
或者正在装修的
乐大姐一定知无不言,言无不尽
长按二维码添加乐大姐微信号
装修不烦 大姐来谈