清水江南别墅整装

设计说·第208期 | 248㎡大平层,极简设计!

发布时间:2023-06-11

图片

乐大姐

FM104.8《家在苏州--乐大姐说装修》栏目特邀嘉宾,

赫博别墅设计创始人之一;
多次受邀成为院校家居的授课讲师;
98年至今,
为万千家庭打造幸福家居的同时,也相互成为了好朋友。
任何与装修有关的问题,欢迎您添加乐大姐微信:13382100888
乐大姐会为您做一对一解答。




项目地点:世茂翰河苑

项目面积:248㎡

项目风格:极简

项目性质:全屋整装

项目状态:正在施工






每一套作品,都是私人定制



写在前面的话

The Words Written In Front




谁说“极简风”,是年轻人的专利,现在越来越多的中年人也喜欢这种酷酷的风格。

本案这套大平层的业主就是一对中年夫妻,他们非常喜欢简单时尚的感觉,所以乐大姐团队为其量身定制了一套极简风格的作品,男业主看了后说“如果来得及的话,我们希望立刻开工,今年十月份就住进去;如果实在来不及,最晚年前一定要住进去的,我们想把父母接过来在这套新房子里一起过新年!”女业主也表示:“这就是我想要的效果,我已经迫不及待地想立刻住进去了!”



图片


图片

图片


世间万千,没有任何一种美丽永不凋零,唯有对生活的热爱,永不褪色。


本案所有的设计都以功能和舒适为衡量标准,设计老师在理性与感性间寻找平衡,通过打造全开放的客餐厨动线,让业主一家拥有更加自由的活动范围和互动关系,让空间尺度和纵深感加强,人在空间中才能感受到广阔性。


图片


图片

电视背景采取定制化设计,包括定制柜体、定制岩板墙面、定制下壁挂式电视柜、定制背景可变氛围灯,总体风格简约而时尚,非常符合流行趋势。特别是,中间的电视区域做了伸缩电视挂架,后期如果想在餐厅看电视,把电视直接转向餐厅即可,可谓一举两得。


图片


图片


沙发背景虽采用的是常规的硬包+木饰面组合,非常简约,但简约并不代表简单,极简空间下是近乎较真的细节落地,在设计时推演出最优的空间细分尺度,强调细节的作用和精心挑选的材料,用它们独特的特征定义了整个空间。

图片


图片


图片


灰白作为空间的主色调,一刚一柔,一浅一深,轻重相合,浓淡有致,勾勒出空间的张力和层次。搭配一些暖色和跳跃色的元素,空间的冷暖恰到好处。



图片


图片


图片


餐厅、岛台与开放式厨房整合,以工整有序的布局手法牵系煮食、备餐与用餐的无拘束交流。大面落地窗,为餐厨提供了充足的自然光。空间中器物的意义,在于在其安静的姿态中感受它的温度。


图片


图片



图片

图片


图片


图片


图片


当代人居的归属感,来自于私密空间和素雅格调带来的轻松氛围。

主卧床头背景,定制木饰面与潘多拉岩板的结合使空间的色彩与材质相融合,整体简洁明净,温雅自持,又不失高级感,足以让人卸下重担,回归到轻盈自然的状态。


图片


图片


图片


主卫采用经典的灰白配色 & 600X1200公分的大砖铺贴,空间因此显得大气而宽敞。独立浴缸和浴室专用窗帘,打造出温馨的私人卫浴空间。

洗手台融入的木饰面黑胡桃,则消除了大理石带来的冰冷感,更多的是舒适。


图片


图片


图片


图片


净与静是这间卧室的两个关键词,整个空间没有过多的装饰,仅以黑白为底色,显得干净且平静。



图片


图片


图片


儿童房虽简单,但设计细节感满满。床头南侧光线充足的窗口区域是学习区;北侧则植入一整面乐高落地展示柜来安放孩子的兴趣爱好(ps:柜体层板做了活动设计,方便以后的使用和调整)。


设计老师在有限的空间将所需的生活使用场景最大化地发挥了出来,舒适度与实用性共存。


图片



平面方案

Flat Plan




图片
原始户型图


图片
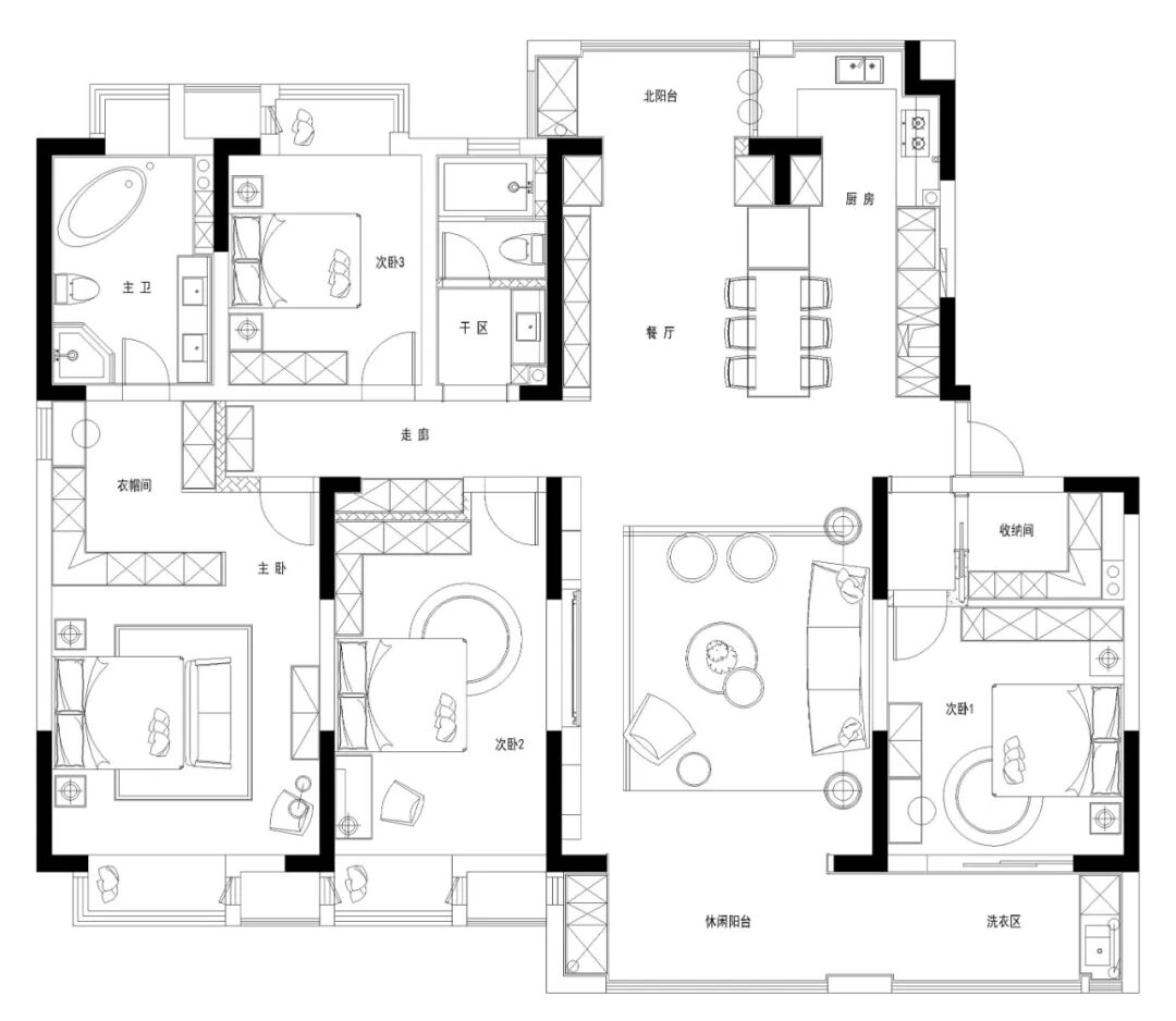
改造后户型图


  • 本案原始户型是四房两厅两卫,南北通透,且南面毗邻两大风景区,十分宜居。不过,户型缺点也很明显,餐厅开间不足,所以乐大姐团队设计老师在确认厨房西南方向墙体并非承重的前提下,对餐厅区域进行了优化,一是把北阳台纳入了进来,二来将不必要的非承重墙体拆除,三则客餐厨采取全开放式布局,改造后无论是视觉、还是动线规划都更加合理,更符合大平层的规划理念。

  • 改造后的餐桌上方有根承重梁(原本是厨房的墙所以上方有承重梁),比较压抑,故设计老师通过吊顶方案优化餐厅顶面,且厨电全部做嵌入处理,简约舒适,符合极简风格。

  • 原结构中本案入户门正对着主卧门,私密性差,所以设计老师通过改变门洞方向来规避,L形衣帽间的设计也避免了主卫正对着床的尴尬。



全景图

Panorama




图片

点击左下方“阅读原文”,即可在线免费看本案例全景图(360°)。

https://vr.justeasy.cn/view/7dt1bx6798329r46-1681394476.html




END


往期案例回顾


设计说·第207期 | 186㎡现代中式,山水画境!

图片

设计说·第206期 | 435㎡双拼别墅,度假风!

图片

设计说·第205期 | 317㎡现代叠墅,“去客厅化”设计!

图片

设计说·第204期 | 360㎡意式轻奢叠墅,解锁无限可能!

图片

设计说·第203期 | 203㎡原木风,清新治愈!

图片

设计说·第202期 | 704㎡独栋别墅,美式轻奢!

图片

设计说·第201期 | 642㎡独栋,用“仙鹤”演绎东方低奢气韵!

图片

设计说·第200期 | 无锡314㎡叠墅,遇见不凡!

图片


图片


如果您觉得乐大姐说的内容很有价值

欢迎分享转发至您的朋友圈

让更多的朋友都能轻松装修,自在生活!


当然,您也可以添加乐大姐微信号13382100888

或扫描下方的二维码

说出您的装修难题、让乐大姐为您答疑解惑

不管您是装修完工了

还是即将装修的

或者正在装修的

乐大姐一定知无不言,言无不尽


图片


图片
在看是一种鼓励|分享是最好支持
点击右下角 写留言 发表你的心声
我们期待与您的交流 

长按二维码添加乐大姐微信号

装修不烦 大姐来谈