清水江南别墅整装

设计说·第210期 | 317㎡联排别墅,以简胜繁!

发布时间:2023-06-11

图片

乐大姐

FM104.8《家在苏州--乐大姐说装修》栏目特邀嘉宾,

赫博别墅设计创始人之一;
多次受邀成为院校家居的授课讲师;
98年至今,
为万千家庭打造幸福家居的同时,也相互成为了好朋友。
任何与装修有关的问题,欢迎您添加乐大姐微信:13382100888
乐大姐会为您做一对一解答。




项目地点:吴江半岛印象(联排)

项目面积:317.2㎡+院子101.8㎡

项目风格:现代简约

项目性质:别墅整装

项目状态:正在施工




每一套作品,都是私人定制





写在前面的话

The Words Written In Front




本案这套联排别墅是套改善型住宅,更是业主夫妻两以后的养老住所(孩子们住在这里的时间比较少,因为现在在外读书,未来又要独立出去),所以设计时乐大姐团队以满足业主夫妻两的需求为主,而后再兼顾孩子们的喜好。

风格上,因女业主喜欢现代简约,男业主喜欢新中式,所以最终整体以简约的现代风为基调,同时软装上带一些中式禅意的调性,从而营造出一种男女业主都爱的悠闲惬意的度假式生活节奏





图片


图片


图片


图片


一个精致的居住空间不应只是视觉的享受,更应体现于心灵上的简约与成熟。

本案以业主及其家人的视角从生活中提取各式元素,在低调的细节中做充分的设计表现,整体空间简洁明净,不囿于风格,不随波逐流,打造一处可观可赏的心灵安放之所。


图片

图片

首先,设计老师借由开放式设计,打破界限,玄关、客厅、书房、餐厅、厨房之间完全没有任何视线阻隔,美学和功能融会贯通。更令人惊喜的是,窗外庭院的美景也得以在空间中流动,有着一气呵成的大宅气派
顶面梁的处理非常巧妙,利用对称结构和木饰面弱化其突兀感,不仔细看根本看不出来。


图片

图片

电视背景虽没有过多的造型和装饰,一切从简出发,但却兼功能与美感于一体。大面积的白色木饰面,轻盈而优雅;中间穿插的黑色展示柜,平衡了空间的冷暖调性;底部电视柜上的中式摆件,却是专属于男业主的小惊喜,给人无止境的遐想。

空间里,软装跳色的增加,恰到好处地为空间平添了几丝灵动。


图片
图片


书房,由黑色、原木色与隐形灯带组成的、从地到顶的嵌入式书架交织出令人着迷的视觉美感,点亮空间的同时点亮生活

面朝庭院的全景落地玻璃,揽景入怀,晨曦薄暮,霞光微星,恍然似梦。


图片


庭院干净硬朗,繁忙的工作之余,在此处让时光与景色慢慢发酵,谱写出闲适而从容的空间旋律,让人倍感舒心愉悦。





图片


图片


图片


图片


圆形大理石餐桌对应圆形吊顶和线性灯,以点与线的层次递进,营造围桌而食的温馨氛围。
岛台的设置不仅加强了厨房与餐区互动的流畅度,还增加了操作台面,厨电也全部采用了嵌入设计,烹饪与用餐场景融为一体。





图片


图片


图片


图片


主卧在内敛的灰色调下保持着舒适简约的观感,冷静中透着优雅的风格被设计老师诠释得恰到好处。黑色定制收边线条与灰色基底的交相呼应,克制而理性。


图片

图片


素雅空间里墙上的一抹朱红,夺人眼球,悄然扬起幽然而古雅的中式气韵。温暖亲肤的床品,精致大方的装饰,在双面自然光线的映照下,秩序井然又不失温度。

图片


主卫整体配色以暖色为主,同时融入浅原木色,看上去非常温馨、舒适,没有一点冰冷感。墙地砖选用600X1200公分大砖铺贴,简约、大气、明了。淋浴房采用窄边框,既简约又高级。





图片


图片


图片


图片


设计老师用现代感十足的灰白色与柔和的浅色平衡空间的动与静,浅色系在视觉上有放大空间的作用,原木色则为休憩区注入温暖的视觉感受,减少压迫感,让人身心得到放松。


图片


最妙的莫过于户型改造时为女儿房留下的这一处小阳台,虽小还窄,但闲暇时,沉浸在下午茶里,抬眼便是一朵云,不用顾忌琐碎杂事,享受此刻便好。





图片


图片


图片


实用,是小儿子房的最大标签。整个空间采用简洁明亮的色调,并辅以简单时尚的软装来提升整体的格调。而阳台的纳入,增加了使用面积,拓展了区域功能,开阔了空间视野。

图片

图片


衣柜与床头背景同为浅灰色系,空间和谐统一。木色的穿插,带来一丝自然的气息。





图片


图片


图片


图片


灰色是生活坚固而温馨的底色,而那些穿插在局部、临界点或动线上的跳色,便是讲述生活故事时的起承转合,诠释情感的厚重和温度。如此,居者便可更加惬意、自由地将多姿多彩的难忘时刻定格在家人相互陪伴的岁月里。

图片

图片


以建筑手法造景,地下休闲区与楼梯之间用金属玻璃屏风作隔断增加空间的层次感,围合出相对独立的休闲场域,放松而私密。

楼梯间的设计是男业主的最爱,既有石材的厚重,也有玻璃的轻盈,再添一个精巧的、颇具禅意的水景,小小角落也妙趣横生。



平面方案

Flat Plan




图片

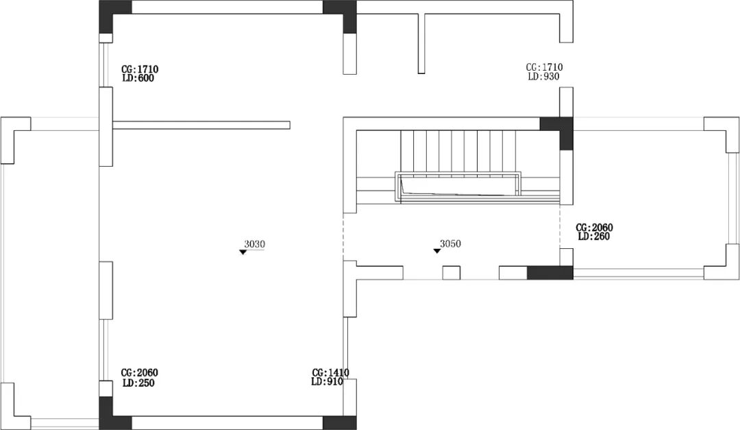
地下一层原始户型图

图片

地下一层改造后户型图

图片

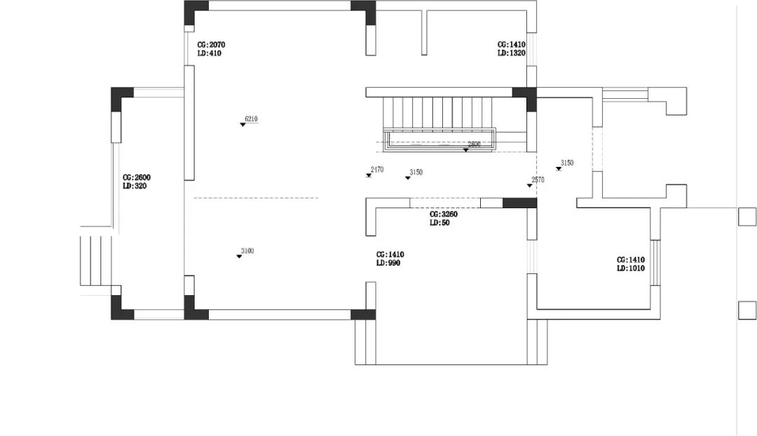
一层原始户型图

图片

一层改造后户型图

图片

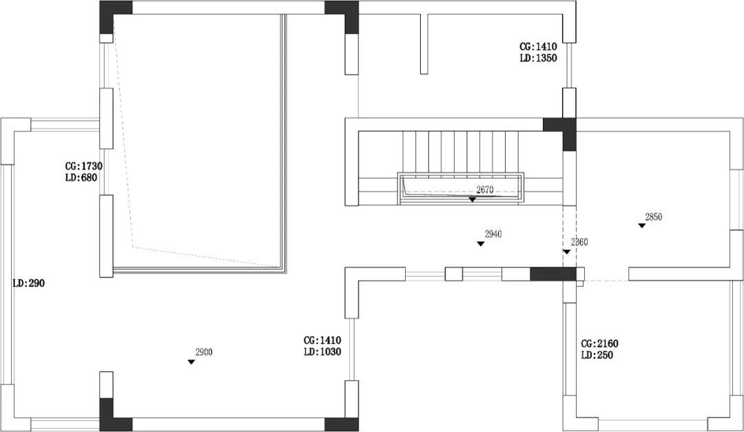
二层原始户型图

图片

二层改造后户型图

图片

三层原始户型图

图片

三层改造后户型图

  • 原结构中本案地下室的楼梯是一个相对封闭的区域,仅留有一个出入口,地下空间也因此显得憋闷、不大气,故将入户门与楼梯之间的非承重墙拆除,然后扩大楼梯第一个踏步的尺寸打造成地台;再把楼梯与休闲区之间的非承重墙也拆除,改造成玻璃隔断,改造后地下室变得通透敞亮又大气。


  • 乐大姐团队设计老师将一楼非必要的非承重墙体拆除,优化整体的空间布局,从而让玄关、厨房、餐厅、客厅、书房之间形成互通有无的格局。厨房与餐厅中间增加西餐吧台,功能更加合理。


  • 本案上下总共四层,考虑到孩子们不常在家住以及业主不要电梯,设计老师把主卧套房规划在二楼以减少上下楼的距离。主卧套房包含了睡眠区、书房、衣帽间、洗衣间,是一个完全独立的空间,十分便利。


  • 三层是两个孩子的卧室,考虑到后期孩子大了,共用一个外卫不方便,设计时在两个房间分别做了独立的卫生间。




全景图

Panorama




图片

点击左下方“阅读原文”,即可在线免费看本案例全景图(360°)。

https://vr.justeasy.cn/view/1m68b0u90021m6l8-1681563738.html?_from=jeapp




END


往期案例回顾


设计说·第209期 | 410㎡美式轻奢,风华尽显!

图片

设计说·第208期 | 248㎡大平层,极简设计!

图片

设计说·第207期 | 186㎡现代中式,山水画境!

图片

设计说·第206期 | 435㎡双拼别墅,度假风!

图片

设计说·第205期 | 317㎡现代叠墅,“去客厅化”设计!

图片

设计说·第204期 | 360㎡意式轻奢叠墅,解锁无限可能!

图片

设计说·第203期 | 203㎡原木风,清新治愈!

图片

设计说·第202期 | 704㎡独栋别墅,美式轻奢!

图片


图片


如果您觉得乐大姐说的内容很有价值

欢迎分享转发至您的朋友圈

让更多的朋友都能轻松装修,自在生活!


当然,您也可以添加乐大姐微信号13382100888

或扫描下方的二维码

说出您的装修难题、让乐大姐为您答疑解惑

不管您是装修完工了

还是即将装修的

或者正在装修的

乐大姐一定知无不言,言无不尽


图片


图片
在看是一种鼓励|分享是最好支持
点击右下角 写留言 发表你的心声
我们期待与您的交流 

长按二维码添加乐大姐微信号

装修不烦 大姐来谈