清水江南别墅整装

设计说·第211期 | 180㎡精装改造,塑造多样空间!

发布时间:2023-06-11


图片

乐大姐

FM104.8《家在苏州--乐大姐说装修》栏目特邀嘉宾,

赫博别墅设计创始人之一;
多次受邀成为院校家居的授课讲师;
98年至今,
为万千家庭打造幸福家居的同时,也相互成为了好朋友。
任何与装修有关的问题,欢迎您添加乐大姐微信:13382100888
乐大姐会为您做一对一解答。



项目地点吴江熙华雅苑(叠墅)

项目面积180㎡
项目风格现代轻奢(混搭)
项目性质精装改造+软装搭配
项目状态已交付


图片


每一套作品,都是私人定制





图片


精装房的时代,很多业主拿到房总有一种“好看的皮囊千篇一律,有趣的灵魂万里挑一”的既视感,打开房门,从顶到地,无限重复,总觉得缺少一味灵魂,那么今天就跟乐大姐一起来这套180p㎡上叠墅看看乐大姐团队如何为精装修的房子注入灵魂吧图片~


图片


图片


图片


图片


图片


图片


图片


图片


图片



图片

图片



图片

图片



图片


图片


图片


图片



图片

图片



图片


图片


图片


图片


图片


图片


图片


图片


图片


图片


图片


图片


图片


图片


图片


图片


图片


图片


图片


图片


图片


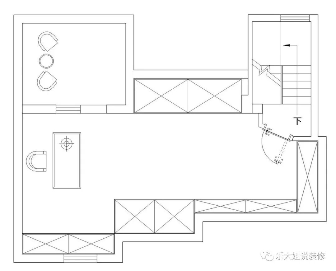
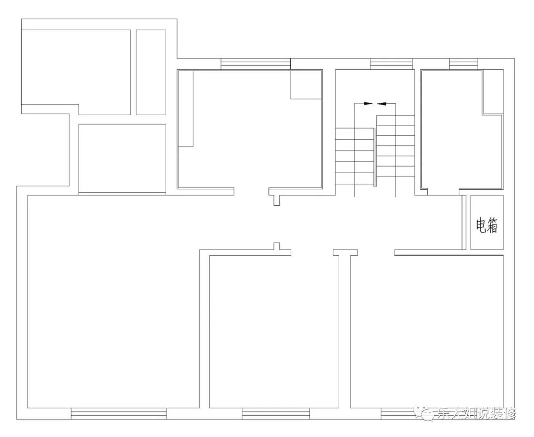
 平面方案 


图片

一层原始户型图

图片

一层改造后户型图

图片

二层原始户型图

图片

二层改造后户型图

图片

阁楼原始户型图

图片
阁楼改造后户型图


 全景图 


图片

点击下方“阅读原文”,即可在线免费看本案例全景图(360°)。

https://vr.justeasy.cn/view/16297r597td34082-1635419800.html




图片


本案是位于吴江的高标准精装修项目,交付时房子就自带三恒系统,但业主一家都觉得精装的效果太普通了,跟自己想要住的环境相差甚远,很不满意,要求乐大姐团队对本案进行大改并搭配全部的软装!


 满意度100% 


图片

▲ 乐大姐团队和吴江熙华雅苑业主夫妇合影留念

拍摄现场,在和乐大姐、苏州电视台《第一时间》拍摄老师等聊天的过程中,男业主说到了自己的装修经历:“我自己是做工程的,所以对装修品质的要求非常高,当初也是在关注乐大姐团队很长时间后,了解到你们不仅管理十分地严格,落地成品的效果也非常出色,才决定找你们装修的!不然,这套房子其实我都可以自己装了,毕竟施工团队我有,材料方面也有认识的,但是自己装的话最终效果无法保证,过程也很操心,过去10年里我装过3次房子,不想再费这个神了。果不其然,你们乐大姐团队一点都没有让我失望,这次装修根本不用我烦,因为是整装,基本上我只要看结果就行了,特别省心。最终的落地效果跟开发商交付时的样子比,也有了天翻地覆的变化。


图片

图片
▲ 乐大姐正在拍摄苏州电视台《第一时间》解析样板房装修知识点


说到为什么买了精装房还要大改的时候,男业主坦言道“其实,我们这不少人家都是买点家具、软装就直接入住的,但是我觉得这个精装风格太固定了,从楼下到楼上都一个样,我一点都不喜欢,家毕竟是要长住的地方,还是要有自己的个性,有设计感些。重新装修后,住在这样的房子里生活档次都不一样了,我现在特别喜欢坐在茶室里喝喝茶,还有楼梯下的小景都是别人家没有的。


▲180㎡精装叠墅改造前VS改造后


本案的主设计师在样板房的拍摄现场说“随着精装房越来越多,很多业主开始面临更多的空间困惑、功能需求、美学设计,因为开发商交付的精装并不等同于真正意义上的“拎包入住”,它就像一张被裱在一个固定框中白色的画布,画面具体的样子还需要以主人的审美趣味为主导进行勾画。所以,在布置空间时,一定要事先规划好!像本案这套上叠里面既有原精装的现代格调,还有业主喜欢的美式、中式、轻奢等元素,那么如何在原精装的基础上脱胎换骨的同时将这些融会贯通呢?这就要具体到每个空间的搭配上,比如说色彩、背景、软装,甚至于踢脚线、顶面走边等细节上。”


图片
▲ 乐大姐正在拍摄苏州电视台《第一时间》解析样板房装修知识点


图片

 竣工验收单上业主的评语


业主两口子还特地给乐大姐团队准备了伴手礼,说是提前就让儿子买好了的,本来儿子也是要一起参加的,但因突发阑尾炎住院了。女业主白天一直在医院里陪护儿子,晚上还特地赶过来参加竣工酒,还约乐大姐一起自驾游。这样的认可,乐大姐团队铭记于心,并以此为动力继续砥砺前行!


图片

图片


图片
▲ 吴江熙华雅苑业主夫妇设宴宴请乐大姐团队贺竣工之喜

有感:


“装修对于我们团队来说只是忙活了一阵子,业主一家人却可能要住一辈子,所以任何一套装修项目,我们都要全力以赴,必须对得起业主当初对乐大姐团队义无反顾的选择!”


——by乐大姐

图片



END


往期案例回顾


设计说·第179期 | 310㎡现代简约,以简驭繁,多维生活!

图片

设计说·第178期 | 472㎡中式轻奢别墅,坐拥太湖美景,在家就能感受远方!

图片

设计说·第177期 | 242㎡叠墅实景赏析,给你想要的现代时尚感!

图片

设计说·第176期 | 165㎡精装房大改造,守护生活的仪式感!

图片

设计说·第175期 | 1010㎡江南园林别墅,打造当代“桃花源”!

图片

设计说·第174期 | 370㎡现代叠墅,双客厅设计,颠覆传统居家功能划分!

图片

设计说·第173期 | 486㎡独栋别墅实景赏析,这样的现代中式你见过吗?

图片

设计说·第172期 | 他们家居然把餐厅“搬”到了地下室,205㎡现代叠墅设计!图片


图片


如果您觉得乐大姐说的内容很有价值

欢迎分享转发至您的朋友圈

让更多的朋友都能轻松装修,自在生活!


当然,您也可以添加乐大姐微信号13382100888

或扫描下方的二维码

说出您的装修难题、让乐大姐为您答疑解惑

不管您是装修完工了

还是即将装修的

或者正在装修的

乐大姐一定知无不言,言无不尽


图片

图片


图片
在看是一种鼓励|分享是最好支持
点击右下角 写留言 发表你的心声
我们期待与您的交流 

长按二维码添加乐大姐微信号

装修不烦 大姐来谈