
乐大姐
FM104.8《家在苏州--乐大姐说装修》栏目特邀嘉宾,
为万千家庭打造幸福家居的同时,也相互成为了好朋友。任何与装修有关的问题,欢迎您添加乐大姐微信:13382100888,
项目地点:吴江盛泽颐和公馆(叠墅)
项目面积:528㎡+院子100㎡
项目风格:法式混搭意式
项目性质:别墅整装
项目状态:正在施工
每一套作品,都是私人定制
写在前面的话
The Words Written In Front
本案这套下叠墅,是业主夫妻为女儿准备的婚房,故而要求比较高,希望能尽善尽美,不留遗憾。风格上,喜欢奢华的感觉,但又不要欧式,觉得太浮夸了,不耐看(之前自建别墅装的就是欧式),经过乐大姐团队的反复讨论,最终打破边界,将法式与意式结合起来为其量身定制了一套气场全开的雅奢之家。整体色调深浅搭配,沉稳与清新并存。
本案地下室是一个层高高达4.9m的敞开空间,乐大姐团队设计老师以夹层+共享的双层布局,完美重构空间,以点带面,以静制动,提升利用率的同时让整个地下大气而不压抑。值得一提的是,夹层区的处理,看上去宛如一架巨型钢琴,透过蜿蜒的造型,纯白的底座、黑色的栏杆、高挑的视觉延伸、音乐的艺术交错,让人仿佛置身于古典乐的起源,欧洲的宫廷之中。


而居于其上的一架黑色三角钢琴,搭配顶面的白色琉璃灯挂件,成为整个地下会所的点睛之笔,恰如在漫天的星光下演奏动人的旋律,点点散落,熠熠生辉,这完全就是一个舞台级别的演奏区。法式雕花,让吊顶更有细节,让空间更加浪漫温馨。


窗是光影的画布,亦成为都市繁华、生活诗意的缩影。设计老师通过结构改造在地下室外墙上方增设了一排窗户,并将庭院引入到地下,从而悄无声息地将地上地下贯通,实现了空间通风、采光的自由对流。朝南墙面上超大的黑镜通过光影映射着整个空间,构成了一幅虚实相映而又浑然一体的有趣画面,视线得以无限延伸。两侧覆盖的大面积丛林壁画,让人仿佛置身于高山丛林间,郁郁葱葱,清新畅快。


奢华与优雅,是地下休闲区凸显的主题气质。步入这里,两组包裹整个空间的弧形沙发,奢华飘逸的大理石背景、温暖灵动的圆形壁炉以及贯穿上下两层的展示柜,营造出空间无可比拟的气质,光与影的浪漫亦呼之欲出。

吧台满足视觉美感的同时配备酒水展示柜等实用功能,结合异形吊顶和艺术吊灯,让品酒与洽谈成为一场浪漫的邂逅。

这是地下通往车库的门厅,也是业主一家人经常进出的地方之一,所以设计老师以整面纹理瑰丽的大理石背景和黑白相间的地面拼花打造入户的视觉焦点,奠定整体空间大气恢弘又不失典雅的基调。一侧的绿植区,给地下带来一丝自然灵动的气息。


夹层的书房,以女儿喜欢的奶油风打造的。进入这个空间宛如踏入一片净土,没有过多复杂的造型,四周墙体及室内陈设皆为自然的浅色调,柔和宁静,让人无端静下来,放慢脚步。



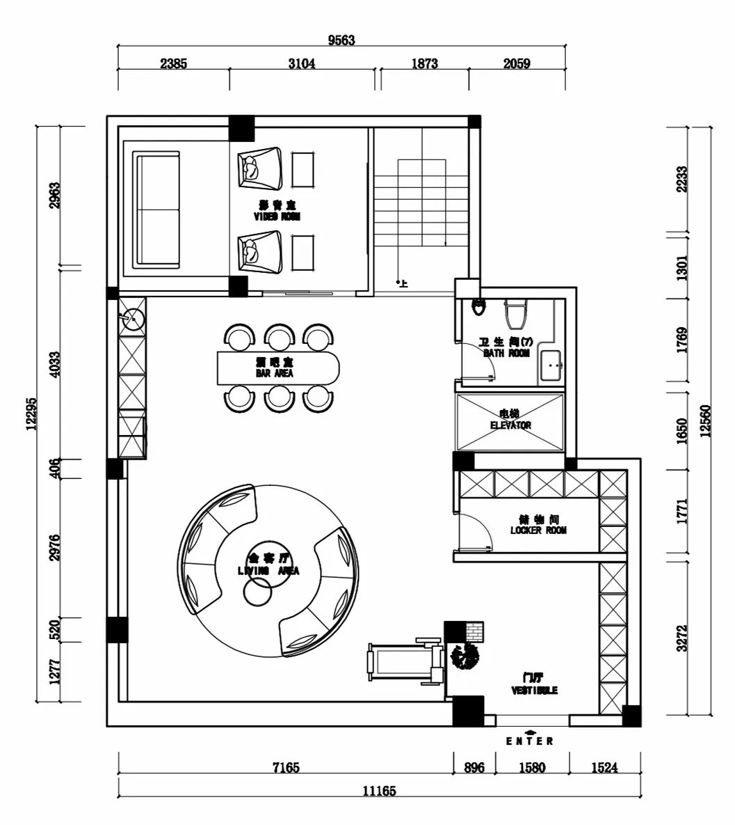
拾阶而上,墙面线灯装饰组成的褶皱仿佛舞者旋开的裙摆。雕塑般的空间品质,聚焦所有到访者的目光,使其成为住宅中最引人注目的“艺术品”之一。利用楼梯边上的空间,设置了一个半敞开式的棋牌室,这个空间不常用,逢年过节亲戚朋友偶尔会来玩一玩。



专业级别的独立影音空间,以大面积的黑灰色、满铺的减噪地面、墙面隔音材料与音响等设备的隐藏式设计集中人们的观感,打造沉浸式影音体验。离开现实,进入充满无限可能的音乐/电影世界。
对于精英阶层而言,越高端的圈层对品质的敏感度越高。本案以匠心将产品品质打磨至极致,既有意式的低奢质感,又有法式的优雅浪漫;既有女性的柔美,也有男士喜欢的线条美,整体呈现出一种气场全开的高级感。


电视背景上,劳伦黑金石材的“冷”与电子壁炉的“热”,电视柜的“刚”与护墙板的“柔”相互碰撞、交融,营造出客厅强烈的艺术氛围。丰富的细节,也将空间的品质感表达地淋漓尽致。



沙发背景采用百看不厌的法式护墙板,没有欧式繁复的花纹,只在角上点缀一些角花,精致而不失格调。顶面的无主灯设计在法式石膏线和角花的加持下,流露出一丝浪漫的情调。红蓝相配的沙发,时髦而复古,透露出一股难以自持的魅力。



餐厅部分是客厅空间的延伸,位置上,相对独立又完全开放,拥有极强的连贯性与包容性;风格上,摒弃墨守成规的枷锁,跳出设计的固化思维,深色的木纹餐边柜、墨绿色的餐椅与顶面的石膏线条角花、墙面的浅色雕花护墙板形成强烈反差,貌似完全不能放在一起的元素搭配起来,更添大气稳重。

外卫,干湿分离的布局,让生活更加便利。纹理丰富的大板砖,让卫生间的层次更加立体。简致的台盆柜将日用品等杂物都收入其中,使得空间美观、整洁。

不同于室内法式的浪漫温情,院子换了一种调性,是依着中式风格设计的,从而居一室而横揽中西,别有一番滋味。院子虽不大,却高低错落,有山、有水、有树、有亭、有雅座、有闲榻,有虚、有实,穿插堆叠间,浓缩了江南水乡的情趣雅韵。
宽敞的U型厨房,功能区各自独立,互不干扰且衔接到位,支持多人共用厨房的体验。


胡桃木色的吊柜与餐边柜相呼应,尽显意式的高级感;而地柜则采用的是法式门板搭配纯白色的台面,两种迥然不同的风格在空间里融会贯通,在奢华品位、气质沉稳与时尚实用间穿梭,slay全场。
二楼女儿房,即女儿的婚房,推开门的那一刻感觉空气都是香香的,线条多而不杂,空间华丽而浪漫。顶面淡粉色的艺术漆,搭配羽毛造型的吊灯&繁复精致的石膏灯盘,少女的浪漫气息显露无疑。背景上通高的护墙板展示出利落而硬朗的空间气质,温柔中带着稳重,丰盈了层次。


衣帽间,延续整体法式的空间氛围,透明的玻璃柜门兼做收纳与展示作用,金色的收边线条增加了奢华感,再加上梳妆台,坐在这画个美美的妆,相信这是每个女孩梦想中的卧室。

女儿房的角落,也被设置成了小小休闲区,让整个家没有一处不成风景。在这里,尽享平和的时光,细品生活的美好。


女儿房卫生间墙面的浅色花纹砖,纯净而优雅,不需要任何拼花,就已足够。黑色的大理石拉槽地面与之形成鲜明的对比,显得高级且浪漫。浴缸,摒弃传统的白色,采用透明的咖色,通透的质感瞬间提升了浴室的整体颜值,成为视觉中心,每一天都是仪式感满满的Home spa。


台盆柜的设计非常特别,采用的是一体焊接式,不仅省去了考虑选择台上盆还是台下盆的烦恼,空间也更加整体统一,大理石的质感花纹行云流水,金色的水龙头精致复古,淡粉色的柜门大气而不失浪漫。
二楼主卧内部也以经典的法式元素点缀着。不过,仔细看,床头背景上的胡桃色木饰面和金属线条又形成了意式轻奢的调性,两者相碰撞,彰显出雅奢气韵,繁华中亦有静谧。



主卫以高质舒适的生活体验为核心,设计老师于干湿分离的洗手间,透过大面积的花纹大理石、通透的玻璃,营造简净的视觉观感。置于角落的壁挂式洗衣机,将寻常的生活功能藏匿在空间的每一隅,与居者生活态度相呼应。
二楼次卧,是给未来孩子精心准备的。床头背景的拼色设计,勾勒出简约时尚的线条美感,而蓝色作为中性色,赋予空间无限活力。角花与石膏线,则将儿童房与其他空间连接了起来,雅致柔和。


考虑到儿童房的开间比较长,有5.3m,设计时特地用长虹玻璃隔出了一个书房,这样不仅不浪费面积,功能上也得以补充,玻璃屏风让两个空间隔而不断。
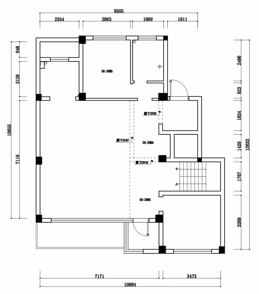
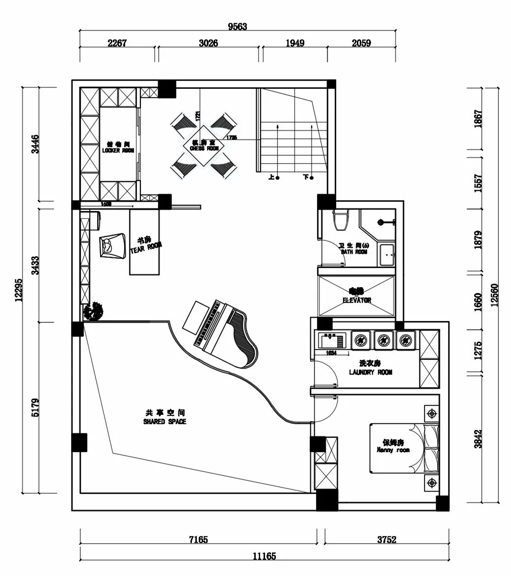
平面方案
Flat Plan
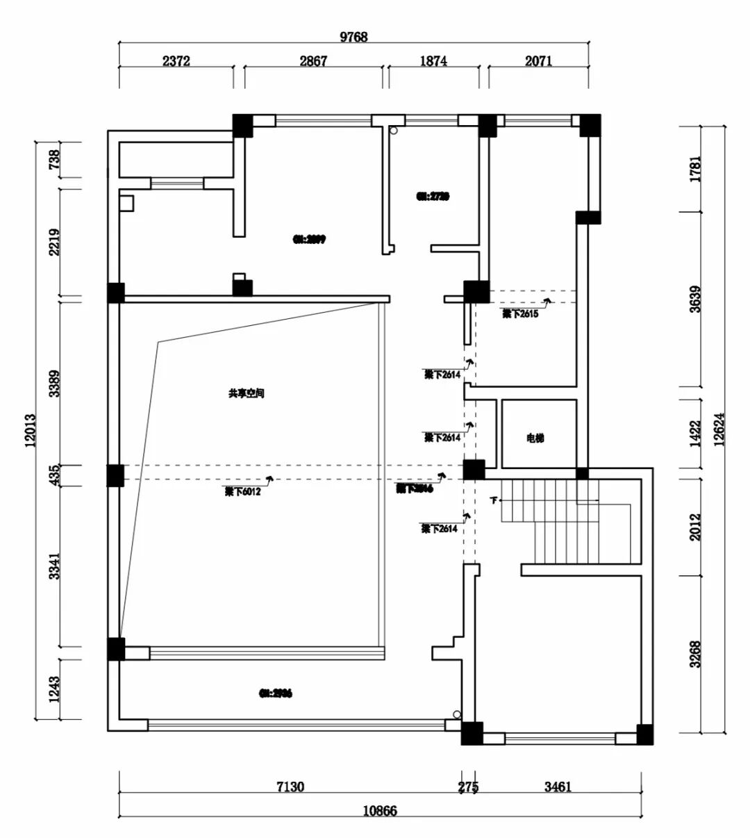
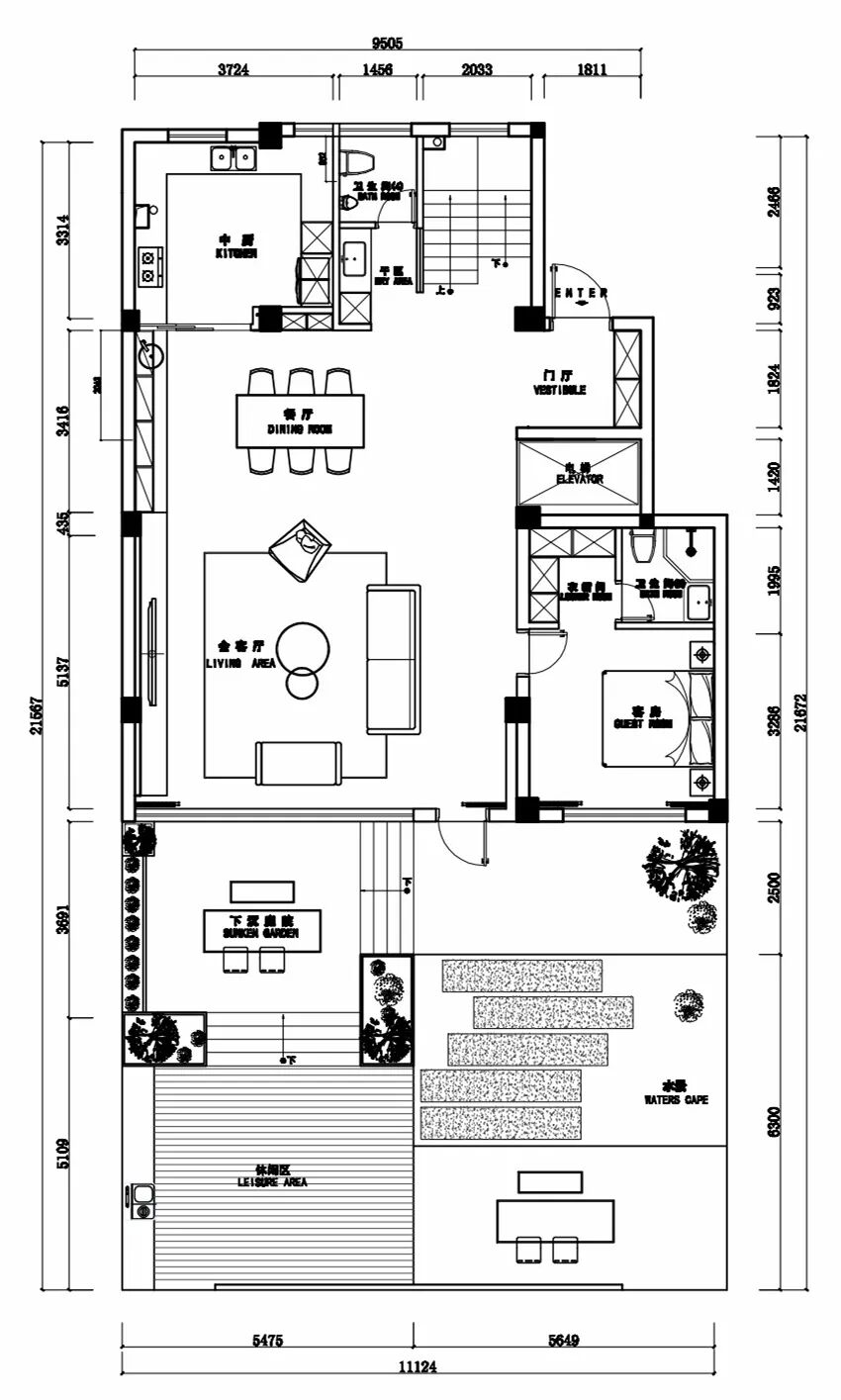
- 本案这套下叠墅的空间比较大,528平,改造后又有四层,所以设计时十分注重上下楼的动线,首先,原有的电梯十分窄小,设计老师通过改造拓宽尺寸,增加使用面积,提升未来的生活品质。其次,将原有的楼梯拆除,改到东北角,以确保地上两层套房的设计。
- 因本案地上两层主要是用来规划日常的居住功能,所以大宅的气场营造更多的是集中在地下,首先,保留了一块高达4.9m的挑高区,空间因此看上去十分开阔通透;其次,部分挑高做了夹层处理以拓展使用功能,而夹层的巨型钢琴造型设计,则将法式浪漫进行到底。另外,设计老师还通过户型改造将室内与室外,地下与地上打通,引自然风景入地下,引光入室,十分巧妙。
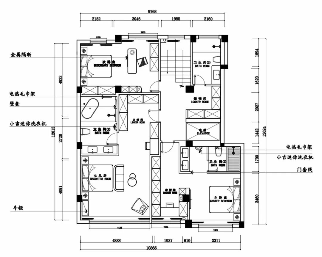
- 原结构中的厨房很小,跟本案的豪宅气场一点都不匹配,再加上二楼有3个卧室、一楼有1个卧室的布局已然满足了业主一家的居住需求,所以乐大姐团队设计老师将一楼的北房间拆除,一分为三,一部分用来扩大厨房面积,一部分用来打造成外卫,一部分用来安置楼梯,改造后整个空间的结构都大气舒朗了起来。
- 原结构中二楼的西南角是一个超大的挑高空间,大概有41㎡,根据居住需要将其现浇掉改造成女儿套房,奢阔的尺寸、丰富的功能,满足了未来小夫妻对品质生活的追求。
点击左下方“阅读原文”,即可在线免费看本案例全景图(360°)。
https://vr.justeasy.cn/view/x16i65e8w010b315-1685099456.html
END
往期案例回顾
设计说·第211期 | 180㎡精装改造,塑造多样空间!

设计说·第210期 | 317㎡联排别墅,以简胜繁!

设计说·第209期 | 410㎡美式轻奢,风华尽显!

设计说·第208期 | 248㎡大平层,极简设计!

设计说·第207期 | 186㎡现代中式,山水画境!

设计说·第206期 | 435㎡双拼别墅,度假风!

设计说·第205期 | 317㎡现代叠墅,“去客厅化”设计!

设计说·第204期 | 360㎡意式轻奢叠墅,解锁无限可能!


如果您觉得乐大姐说的内容很有价值
欢迎分享转发至您的朋友圈
让更多的朋友都能轻松装修,自在生活!
当然,您也可以添加乐大姐微信号13382100888
或扫描下方的二维码
说出您的装修难题、让乐大姐为您答疑解惑
不管您是装修完工了
还是即将装修的
或者正在装修的
乐大姐一定知无不言,言无不尽