乐大姐
FM104.8《家在苏州--乐大姐说装修》栏目特邀嘉宾,
为万千家庭打造幸福家居的同时,也相互成为了好朋友。任何与装修有关的问题,欢迎您添加乐大姐微信:13382100888,
项目地点:吴江萃雅院(联排)
项目面积:326㎡+露台10㎡
项目风格:复古美式
项目性质:别墅整装
项目状态:正在施工
写在前面的话
The Words Written In Front
本案这套联排别墅,业主拿房已经好多年了,中间一直处于出租状态,现在业主夫妻两考虑到孩子渐渐长大了,就想找乐大姐团队重新装修以改善下一家人的生活品质。风格上,业主夫妻有着自己独特的想法和情怀,不喜欢随波逐流,更不喜欢千篇一律,那么到底什么样风格才是他们“心里向往的家”呢?又是什么样的设计让他们觉得“如同住在复古电影里”呢?
对于本案业主而言,空间中的每一处细节都要经得住时间的推敲,百看不厌的设计才能住得舒服,住得长久。
因此,乐大姐团队设计老师从美式复古语境出发,以一种温润的手法讲述着空间故事,不疾不徐,每一笔都在时光的浸润间娓娓道来,把家变成了复古剧场。



整个空间以暖白色为基底,精巧的雕花灯盘、璀璨通透的铁艺灯具、复古制式的家具、质感十足的仿古地砖,在无声的艺术碰撞之后,为空间注入无限优雅的型格。几抹亮眼的跳色,增添了活泼与生气。
恰到好处的圆弧线型消除承重结构的同时柔化了刚硬的块面,与具象的家居陈设之间产生令人惊喜的火花。



沙发的选择摒弃了传统的三人位,用一个矮榻形式的皮质休闲沙发作为主位,三个世尊的单人位,一现代两复古,颜色也是一中性两冷调的搭配,没有固定的形式与位置,根据平时生活状态灵活布置,给业主创造更多休闲的生活角落。精选的文艺复兴艺术元素的装饰组画,不止填补了墙面空白,也使家多了一份艺术气息。



考虑到业主一家人不喜欢看电视,将电视背景规划成壁炉以加强整个空间的美式复古调性,火的元素也让家在冬日多了一丝暖意。楼梯区域是连接南北和各楼层的纽带,故设计时选用镂空的花砖隔断和茶色玻璃栏杆为界,这样不仅梳理了功能分区,还使得空间不显拘束,增强互动性。
临窗而设的餐厨区,将自然美景与光影诗学引入室内,与沉稳典雅的橱柜&餐边柜、细腻精致的花砖相映成趣,于不经意中呈现出复古的腔调,进而为这个质感十足的家带来几丝时光的厚重与静美。在慵懒的午后时光,一本书,一杯茶,一院美景,静雅和美,不失为陶冶情操的一种方式。
主卧空间的设计一反常态,去除美式繁复的装饰与线条,以暖色的基底与黑胡桃的木制品为介质描摹空间的节奏与氛围,美式的高背床、精致的装饰画以及床品、地毯的配色纹理等,都成为了诠释生活的具象注脚,虽简约,却温暖而舒适。


不着痕迹的生活之美最为动人,窗边一隅,坐在专属的椅子上看院子里花开花落,静享慢时光。


柔和的暖调与明亮的焦糖色系,配合美式复古小砖的铺贴,呈现出浓郁的复古氛围,也让卫生间成为整个房子里亮眼的存在。台盆柜柜门上的黑色,则为暖意融融的空间注入一丝冷意,更为沉静大气。点缀其间的古铜色,传达出细节上的精致。


拾级而上,步入三楼,推开仪式感满满的双开门,就进入了儿子套房的第一进——书房。这里从布局到陈设,从色调到材质,都是时尚与复古的融合。结合灯光的点缀,在家也能实现沉浸式学习。


书房背景上拱形门元素的加入,大大增加了空间的层次感、神秘性与趣味性。穿过它,就看到了与书房背景同色的端景柜,空间的联系因此加强。



生机勃发热带雨林式的绿,代表自由与梦想的海蓝,活力的橙,这些最接近自然的颜色,这些象征着生命力、隐喻着成长的色彩,都被设计进了儿子房,其间所寄托的美好期盼不言而喻。

浓郁的绿意由卧室推及卫生间,即使如厕/沐浴也能感受到自然的气息。地面饱满精致的花砖丰富了空间的层次,极具设计感。
老人房沿用了主卧的基调,呈现自然朴素、稳重内敛的气质。线条将精致感悄悄嵌入岁月,在静谧时光中优雅流连。
地下室大通间改造后焕然一新,复古的美式风格,层次分明的功能布局,刚柔并济的材料搭配,以及光线与阴影的巧妙配合,赋予了地下空间全新的生命,同时又满足了业主“休闲+观影+阅读+品茗”的多功能改造需求。



楼梯的设计,颇费了一番功夫。原本的采光难题被拱形门洞&镂空花砖隔断轻易化解了,通透的设计让自然光线可以在空间里自由地穿梭、流动。沙发背景利用整面镜子,形成空间横向上的延续,极富创意性。每一个细节,都以精益求精的实施去呈现生活的美好。


角落的小小采光井,生机盎然。光从天窗漫下,为地下室提供自然光源。绿植的点缀与品茗区的设置,将自然与时光的韵味抒发到极致。
平面方案
Flat Plan

负一层原始户型图

负一层改造后户型图

一层原始户型图

一层改造后户型图

二层原始户型图

二层改造后户型图

三层原始户型图

三层改造后户型图
- 本案这套联排别墅的内部结构与业主一家对居住功能的需求并不是很相符,所以需要改动的地方不少。
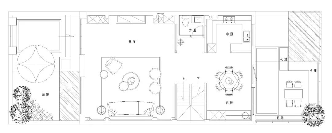
- 首先,一楼尽可能地拆除空间内的非承重墙,并将入户和客厅规划在了朝南的区域,将餐厅从楼梯对面移至朝北区域(即原北门厅),与厨房在同一条线上,原餐厅的位置则改造成外卫,这样调整后不仅动线&功能分区更加清晰明了,空间感也更强,还与院子里的美景形成互动,十分巧妙。
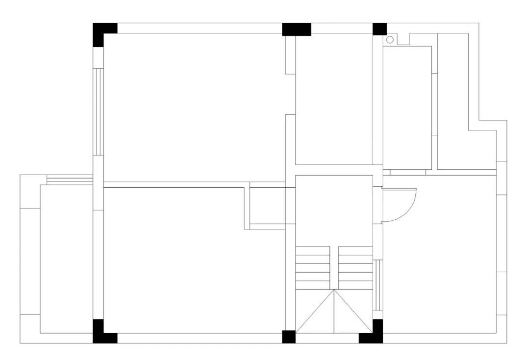
- 其次,二楼的改动不大,按原结构规划了两个房间。其实,业主原本是想要做两个套房的,不过考虑到后期要照顾老人,所以只保留了一个卫生间,多出来的区域则做了衣帽间。
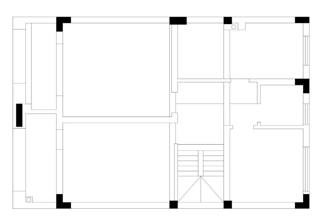
- 三楼区域是业主给儿子准备的空间,所以整个三层基本上都规划成了套房,包括了卧室、休闲阳台、衣帽间、书房、还有卫生间,洗衣区域则规划到了三楼北阳台。
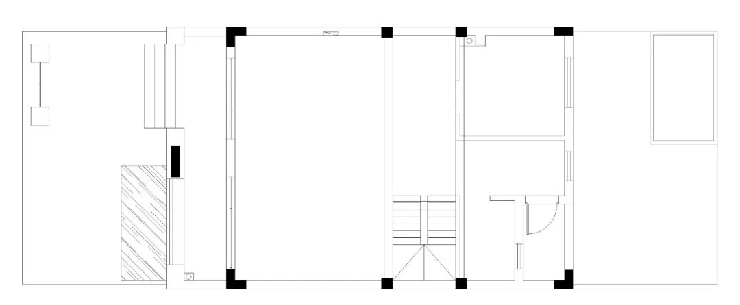
- 地下室对两个区域进行了优化,第一处是开间,开间有些短,利用镜面在视觉上对空间做倍增;第二处是楼梯间有一面实墙遮挡了采光井的光线,确认其是非承重墙后拆除并设计,自然光线就可以折射过来了。
点击左下方“阅读原文”,即可在线免费看本案例全景图(360°)。
https://vr.justeasy.cn/view/16k83xeg431jr783-1685022074.html
END
往期案例回顾
设计说·213期 | 290㎡老房改造,见证蜕变和重生!

设计说·212期 | 528㎡叠墅,打破边界,气场全开!

设计说·第211期 | 180㎡精装改造,塑造多样空间!

设计说·第210期 | 317㎡联排别墅,以简胜繁!

设计说·第209期 | 410㎡美式轻奢,风华尽显!

设计说·第208期 | 248㎡大平层,极简设计!

设计说·第207期 | 186㎡现代中式,山水画境!

设计说·第206期 | 435㎡双拼别墅,度假风!

如果您觉得乐大姐说的内容很有价值
欢迎分享转发至您的朋友圈
让更多的朋友都能轻松装修,自在生活!
当然,您也可以添加乐大姐微信号13382100888
或扫描下方的二维码
说出您的装修难题、让乐大姐为您答疑解惑
不管您是装修完工了
还是即将装修的
或者正在装修的
乐大姐一定知无不言,言无不尽