
乐大姐
FM104.8《家在苏州--乐大姐说装修》栏目特邀嘉宾,
为万千家庭打造幸福家居的同时,也相互成为了好朋友。任何与装修有关的问题,欢迎您添加乐大姐微信:13382100888,
项目地点 / 依云水岸(中叠)
项目面积 / 214㎡
项目风格 / 现代风格
项目性质 / 别墅整装
项目状态/ 已交付

每一套作品,都是私人定制

设计不仅要满足人们的视觉审美,更要完善使用者对于居家享受的追求。今天我们就跟着乐大姐一起来看看这套214㎡现代叠墅是如何做到“从20岁到70岁都喜欢”的
~
































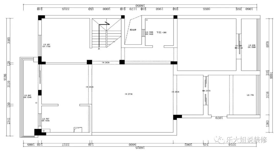
一楼原始户型图

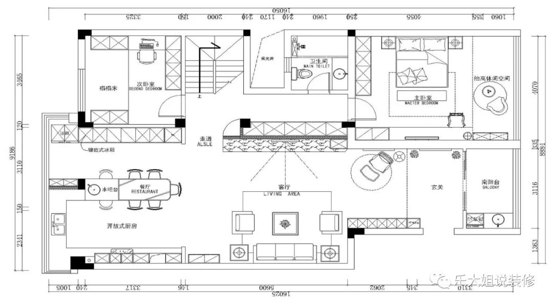
一楼改造后户型图

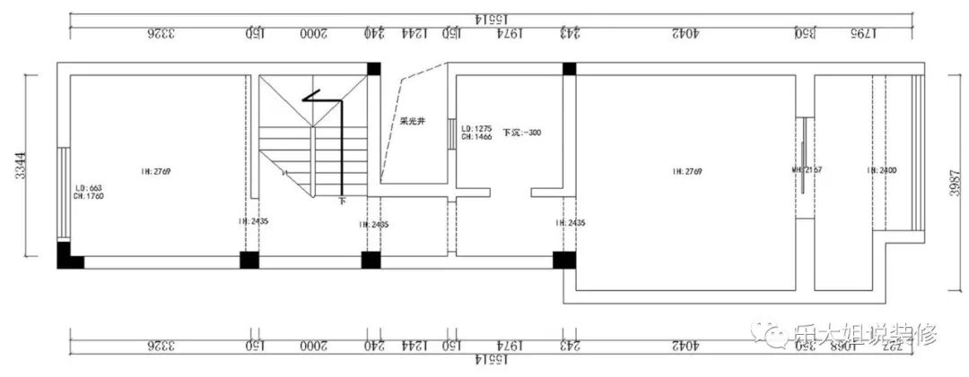
二楼原始户型图

二楼改造后户型图
点击左下方“阅读原文”,即可在线免费看本案例全景图(360°)。
https://vr.justeasy.cn/view/s1tp508903929283-1591162515.html?from=timeline&isappinstalled=0

本案业主一家之前一直住在市区,周边环境相对依云水岸比较闹,业主夫妻俩想晚年有个安逸一些的环境,过上慢节奏的生活,再加上女儿(已经成家了且有宝宝)非常希望父母改善一下居住条件,所以经商量最终决定把依云水岸这套房子好好装修下作养老用。 满意度100%
拍摄现场,在和乐大姐、苏州电视台《第一时间》拍摄老师等聊天的过程中,男业主说起自己的装修经历“这套房子其实是我们十二年前买的,但一直空关着,没有装,之所以迟迟不装是因为装怕了,我们在这之前装修过6套房子,我记得特别清楚的是有一次装修我操心操到生病了都!结果最终的效果却还不如意!所以,这一次经过多方考察,我们最终选择了你们乐大姐团队,因为你们的整装模式真正做到了省心又省力,关键的是效果还好!”▲ 乐大姐正在拍摄苏州电视台《第一时间》解析样板房装修知识点女业主接着说道“这一次装修我们全家上下老的、小的、还有我小孙孙都特别喜欢,十分满意,所以我们一家人对这次的竣工酒非常重视,前一天晚上收拾到很晚才走,今天早上4点多我就起来开着电瓶车从市区精挑细选了好些水果,然后到这里7点还没到。家里的地,也是我老公趴在地上用抹布一点一点地擦得,非常干净!”业主女儿表示“这次装修效果能这么好,要非常感谢你们乐大姐团队的张老师,他真的是随叫随到,好几次我们突然有时间,联系他,正巧碰到他难得休息,不过他却马上赶过来了,我们也过意不去,跟他说可以发图片确认,张老师不同意,他说一定要看到现场的效果他才能放心!特别负责!所以,把家交给你们乐大姐团队我们完全放心!”

▲ 乐大姐正在拍摄苏州电视台《第一时间》解析样板房装修知识点

▲ 竣工验收单上业主的评语
竣工酒桌上男业主表示“今天的竣工酒我的亲家(女儿的公公婆婆)一定要在,因为是我的亲家把你们乐大姐团队推荐给我们的,有了他们才有了我们之间的缘分,才有了现在满意的家!”最后男业主还给乐大姐团队赠送了他自己公司停产前生产的,他珍藏的100%真丝的丝巾,装修项目虽然结束了,彼此之间的关系却来日方长……
乐大姐团队用专业+负责任的态度来服务每一套作品,确保每个项目都是精品交付。因为装修既是为了成全每户业主一家人的美好未来,更是为了成就我们团队自己,因为好的作品才是乐大姐团队真正的面子!
END
往期案例回顾
设计说·214期 | 336㎡复古美式,住进电影里的浪漫!

设计说·213期 | 290㎡老房改造,见证蜕变和重生!

设计说·212期 | 528㎡叠墅,打破边界,气场全开!

设计说·第211期 | 180㎡精装改造,塑造多样空间!

设计说·第210期 | 317㎡联排别墅,以简胜繁!

设计说·第209期 | 410㎡美式轻奢,风华尽显!

设计说·第208期 | 248㎡大平层,极简设计!

设计说·第207期 | 186㎡现代中式,山水画境!


如果您觉得乐大姐说的内容很有价值
欢迎分享转发至您的朋友圈
让更多的朋友都能轻松装修,自在生活!
当然,您也可以添加乐大姐微信号13382100888
或扫描下方的二维码
说出您的装修难题、让乐大姐为您答疑解惑
不管您是装修完工了
还是即将装修的
或者正在装修的
乐大姐一定知无不言,言无不尽