
乐大姐
FM104.8《家在苏州--乐大姐说装修》栏目特邀嘉宾,
为万千家庭打造幸福家居的同时,也相互成为了好朋友。任何与装修有关的问题,欢迎您添加乐大姐微信:13382100888,
项目地点:禧悦(大平层)
项目面积:220㎡
项目风格:新中式
项目性质:局改+软装搭配
项目状态:正在施工
每一套作品,都是私人定制
写在前面的话
The Words Written In Front
本案这套大平层属于失败案例重新改造,之前的装修已经完成到95%了,连窗帘、家具、柜子等都买好了,但现场的设计效果却十分糟糕,业主夫妻两根本无法接受,一直在跟施工方扯皮(熟人帮忙介绍的人装的),因此耽搁了好几年,最终找到乐大姐团队,希望可以化“腐朽”为“神奇”。之前装修的问题如下:
风格不确定、不明晰,木制品、家具、软装之间的色彩搭配不协调;
儿子房没有阅读灯,床的位置也不对,柜子居然用的是明黄色;
女儿房的柜子竟然是十字架造型,位置布置也不合理;
之前装修花费太多(100多万),所以希望在尽可能保留原项目的前提下再优化……
设计的价值绝不是某种风格,而应是一种体验,它可以将日常平淡的环境变成特殊的空间体验,带领人们从某一种心情转变到另一种心情,具有“转变”的力量,而本案更是如此。室内主色调汲取了传统中式的文雅风韵,在空间中铺陈出沉稳内敛又质朴自然的新中式美学,处处透露着对东方清雅生活意境的美好追求。整个空间中,没有任何显著的东方符号堆砌,言有尽,意无声,却自始至终浸透着东方特有的禅思静谧。

原户型中入户门正对着东南次卧的房门,私密性差,重新设计时将其改至沙发背景上,结合木饰面做隐形门处理,这样不仅巧妙化解了结构上的尴尬,还再现了东方的曲径通幽之美。


原装修中,电视背景两侧的定制款木质花格色调偏红,显得非常老气,且与家具的颜色也不匹配,在空间中很是突兀。所以,设计老师将其去除,以暖色调的深咖色硬包代替,同时部分区域采用格栅造型,从而在虚与实、疏与密之间,赋予空间绵绵不尽的诗意想象与层次感。


原吊顶结构简单,没有设计感,与家具风格、室内效果不匹配。故,新方案中采取多层次吊顶+线条灯+轨道灯的设计手法,丰富的顶面结构与新中式家具搭配更加相得益彰。中式情韵以简雅静宁的格调呈现出来,让居者在木作的纹理、阳光的渗透、清茶的幽香中,品味生活的烟火气与安适感。
原装修中,餐边柜颜色偏红,显得很老气,且制作工艺粗糙,与现代审美严重不符,业主要求换掉。不过,考虑到资源浪费与成本问题,重新设计时保留了部分原有柜体做背板,又定制了白色&玻璃柜门,将两者巧妙融合在一起,中式韵味十足,既美观又实用。

餐厅设计,注重家人面对面相聚、情感互通与精神交流,彰显了中国人的餐宴情调与品味。
原装修中,主卧的吊顶和床头背景比较简陋,缺乏品质感,跟现有的家具一点都不匹配,业主夫妻不喜欢,因而重新设计时乐大姐团队将现代东方的元素与现有家具相结合,取其神韵、存其风骨,雅静而又不乏时尚,让人不禁放慢脚步享受诗意生活。


重新调整之后的吊顶采用无主灯设计,使得室内光源更加充分的同时兼具美学内涵,堆叠氛围,带来与众不同的别致美感。



主卫注重功能性,采用兼用型设计,讲究动线合理,个人的洗漱卫生(马桶、台盆柜、淋浴房、浴缸、洗衣房)都在一个空间内完成了。整个空间是由高级灰托底的幅面,空间感更开阔,观感更纯粹简洁。
原装修中,男孩房的定制衣柜采用了大面积的明黄色,十分跳跃、耀眼,不利于孩子日常的学习与睡眠,故重新设计时整体以蓝、灰为主色调,以航空航天元素为设计主题,旨在培养男孩儿活泼且不失沉稳的气质。

床体位置的摆放,也从原来的南北朝向改为东西朝向,不止避免了因户型问题导致的床头位置的虚空,还让柜体与书桌的摆放更为合理。


▲ 本案2018年装修时女儿房的设计
原装修中,女孩房的设计很是老旧,不仅衣柜的空间划分不合理,颜色不协调、不好看,墙面贴画的款式也很老,缺乏童趣。因此,设计老师着重于视觉感受,以「翱翔的热气球」壁画为主题,增添童趣物件,满足孩子对美好世界向往的同时,从工艺上解决贴画脱胶的问题,整个空间更高级耐看。
重新规划衣柜的空间布局,不仅最大化地满足收纳,还通过柜体增加空间的层次感、展示性以及色调的协调感,舒适与时尚并存。
外卫区域贴心地采用了三分离式设计,日常使用更为便捷。玻璃门,造型美观,不仅可以让光线自由穿透,还能够守住小秘密。
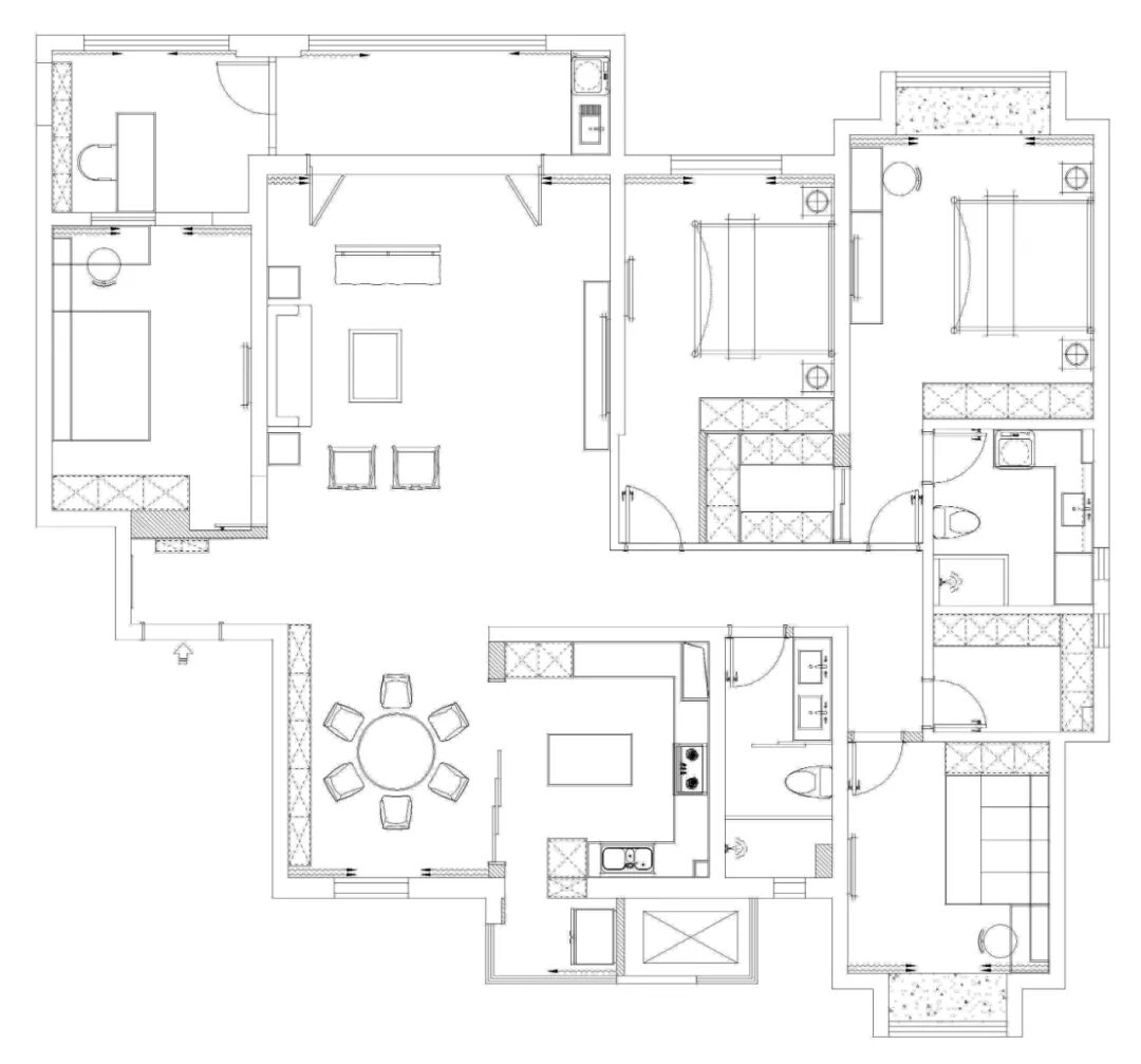
平面方案
Flat Plan
本案原始结构比较合理,户型方正,所以需要改动的地方不多。不过,缺憾的是入户门正对着东南次卧的房门,隐私性差,故将房门调整至沙发背景处,隐形门的设计则保证了沙发背景的完整性。另外,原房门封掉后,在此打造了入户玄关,大大增加了进出家的仪式感。点击左下方“阅读原文”,即可在线免费看本案例全景图(360°)。
END
往期案例回顾
设计说·第220期 | 319㎡叠墅,打造度假酒店既视感!

设计说·第219期 | 186㎡叠墅,同一户型,两种风格,你pick哪个?

设计说·第218期 | 450㎡新中式,幽静雅观,修身养性!

设计说·第217期 | 217㎡大平层设计,现代风的高级感!

设计说·第216期 | 270㎡奶油风叠墅,温暖治愈!

设计说·第215期 | 214㎡现代叠墅,简单大方!

设计说·214期 | 336㎡复古美式,住进电影里的浪漫!

设计说·213期 | 290㎡老房改造,见证蜕变和重生!


如果您觉得乐大姐说的内容很有价值
欢迎分享转发至您的朋友圈
让更多的朋友都能轻松装修,自在生活!
当然,您也可以添加乐大姐微信号13382100888
或扫描下方的二维码
说出您的装修难题、让乐大姐为您答疑解惑
不管您是装修完工了
还是即将装修的
或者正在装修的
乐大姐一定知无不言,言无不尽
我们期待与您的交流