
乐大姐
FM104.8《家在苏州--乐大姐说装修》栏目特邀嘉宾,
为万千家庭打造幸福家居的同时,也相互成为了好朋友。任何与装修有关的问题,欢迎您添加乐大姐微信:13382100888,
项目地点:景山玫瑰园(联排)
项目面积:297.1+地下室108.8㎡
项目风格:现代中式
项目性质:别墅整装
项目状态:正在施工
每一套作品,都是私人定制
写在前面的话
The Words Written In Front
本案这套联排别墅,上下总共四层,是父母给儿子准备的婚房,故设计上以儿子的意见为主,但同时考虑未来三代同堂一起住,所以对功能、审美的需求极为丰富。
风格上,因小业主喜欢中式的意境,但又不希望过于厚重沉闷,所以最终乐大姐团队将其设计成了现代中式。
步入客厅,左右对开的空间布局,蕴含着平衡、稳定之美,传达了中式美学中大气俨然的精神风度。窗外自然景色流转,与室内木色缱绻相融,有限空间由此得以无限延伸,与自然浑然一体。


沙发背景采用流线型的通高柜体设计,极大强化了空间的挺拔与开阔,奠定了时尚与品位的高阶基调。柜体中间敞开为虚,两侧为实,营造出虚实结合的中式建筑美学意境。设色上,中式经典色调红&蓝,融合现代时尚,形成强烈的视觉冲击力和空间层次感,在低调与张扬、奢华与内敛之间,稳稳地把持着平衡,唤醒质感典雅的空间氛围。空间里原本十分突兀的承重柱在木饰面的修饰下,与沙发背景互为对景,各显其韵,焕发出精妙的层次。


电视背景以写意的手法让白色系的山水纹岩板与黑色大理石在空间中交叠,皎然而纯粹,于润物细无声中,将东方意象写入当代肌理。
偏现代风格的家具在整个空间内并不夺目,安静的木白色、简单的线条、没有修饰的造型,还原出静心的室内氛围。搭配垂落的水晶吊饰,大型的宫灯雕塑,物与物之间的高低错落,整个空间显得极富仪式感。
设计老师利用房子本身的错层结构巧妙将客餐厅区分开的同时,丰富了纵向空间的层次感。
餐厅区域有宽敞的窗户、平静的墙面打造丰富的结构,加上大理石餐桌与皮革座椅的组合,“书卷形”吊顶与中式元素吊灯的衔接,文雅明净,静而有质,营造高品质的用餐氛围。

本案的北院面积并不大,只有30㎡左右,地下采光井还占用了不小空间,但设计老师依着北玄关的落地窗打造了一个户外休闲区,不仅将室外阳光、绿植引入到室内,还充分实现居住空间与自然的互通共融,惬意而自由。
厨房以L形吧台为轴形成回字形动线,十分便捷。定制橱柜用色沉稳大气,白色系列墙砖纯净清雅,一深一浅间,更好地丰富了空间的层次。佳肴的香味掺着木的清气、花的淡香萦绕一室,生活变得舒展、惬意,让人沉浸其中。


二楼主卧套房以原木&灰色为主色调,这种高级又安静的配色像极了空间居住者——一个大男孩的气质,他拥有良好的修养和内敛的性格。静素的色调,中式的山水画卷,更适合窗外景色的渗入,形成人与自然共融的空间。


书房设计注重实用性,靠墙设置的一整面多功能书柜,满足了小主人对阅读的需求。装饰画成为视觉焦点,在颜色上与书柜背板相呼应,强调空间氛围的和谐。


室内窗的材质采用富有肌理感的玻璃,不仅实现了从书房“借光”到隔壁梳妆间的想法,同时保证了其本身对私密性的需求。
三楼主卧套房,是业主夫妻的起居空间。床头背景以靛蓝为主色调,通过当代空间构成与传统绘画的融合,以线条裂变勾勒层次,搭配中国传统的亭台楼阁山水画背景,更加细腻流畅地表达了中国传统文化的深厚底蕴。



吊顶采用跌级梯形设计,从而避免了因顶层尖顶落差较大产生的虚空感,并衍生出传统建筑的沉稳风范。四周预留的灯槽,散发出柔和的光线,赋予空间优雅温馨的氛围。


三楼主卧有独立的衣帽间和卫生间,同样以硬朗大气风格布陈,从墙地面到家具再到配饰的装点,都透着居者对空间的细腻诉求,感知生活的温度。


地下室,光影流转,在墙面描绘出漫长时光。金属、皮革、大理石、玻璃......不同材质的使用,配合恰到好处的自然天光,打造优雅的多元化休闲社交新空间。黑色大理石圆形茶几与灰咖色绒布沙发的围合,恰适勾勒出地下休闲区的轮廓,静享无尽惬意时光。



古人所寻之禅意,意在实现精神与物质的内在统一。本案除了在地下室设茶室外,还在天井下造了一个迎客松盆栽小景,茶桌、茶具、展示柜、原石、壁灯等元素的灵活运用,细腻且丰盛,极致的意象点到为止,从细节里透露出东方美学雅韵。
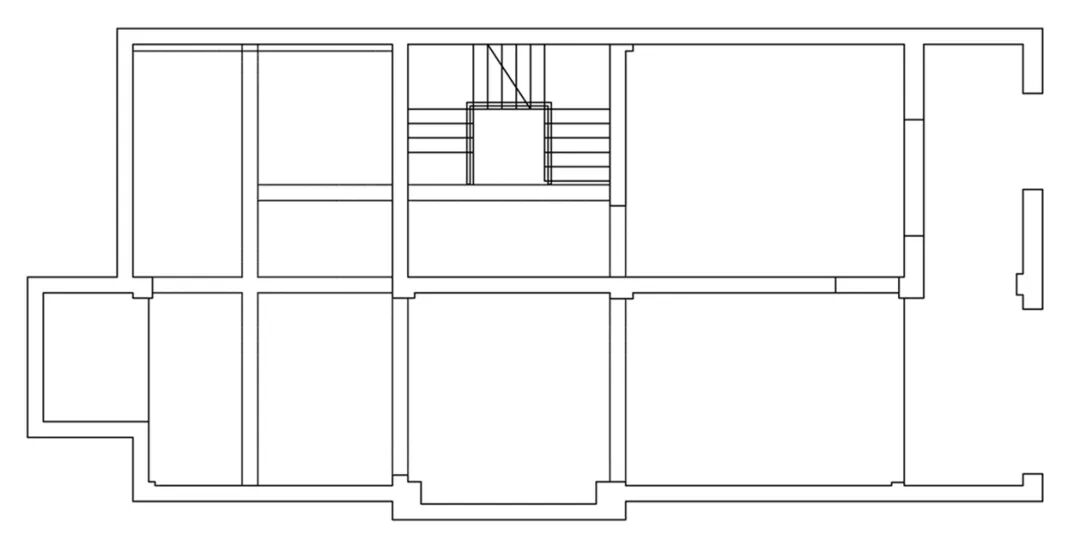
平面方案
Flat Plan
- 本案地下空间比较零散,没有明确的功能划分,乐大姐团队设计老师根据业主的需求将其一分为二,一部分做成休闲品茗区(包括地下景观),一部分设计成车库(包括玄关),因为该小区地面都是零停区,业主平时到家基本没位置了,加上雨天室外停车不方便,所以在负一层规划了停车区。
- 本案做空间规划时采用动静分开的布局方式,所有的公共功能区都安排在了一楼,包括客厅、餐厅、厨房、玄关等,二楼则是小业主的主卧套房(婚房)以及未来的儿童套房,儿童房因现在还不知道未来宝宝的性别,设计的是中性风格;三楼是业主夫妻的主卧套房。休息区每层都单独设有洗衣房,方便后期日常使用。
- 本案一楼南北都有院子,可以直接到室内,所以在南北各规划了一个入户玄关,方便日常进出。
- 本案一楼厨房面积不大,故将北阳台纳入到厨房,增加使用空间。
- 本案餐厅区域原来是一个从一楼到顶楼的天井,考虑到边上有个不小的窗户,采光能充分保障,就将其现浇掉,一层设计成了餐厅,二层做成了儿子套房和儿童套房公用的书房,三层则规划成主卧衣帽间。
- 考虑到客厅边上的南天井地下是车库,对采光的需求不大,将其封掉纳入到客厅打造成休闲区,增加面积的同时丰富功能。
END
往期案例回顾
设计说·第222期 | 610㎡极简风,黑白之间,静谧纯粹!

设计说·第221期 | 220㎡失败案例,涅槃重生!

设计说·第220期 | 319㎡叠墅,打造度假酒店既视感!

设计说·第219期 | 186㎡叠墅,同一户型,两种风格,你pick哪个?

设计说·第218期 | 450㎡新中式,幽静雅观,修身养性!

设计说·第217期 | 217㎡大平层设计,现代风的高级感!

设计说·第216期 | 270㎡奶油风叠墅,温暖治愈!

设计说·第215期 | 214㎡现代叠墅,简单大方!


如果您觉得乐大姐说的内容很有价值
欢迎分享转发至您的朋友圈
让更多的朋友都能轻松装修,自在生活!
当然,您也可以添加乐大姐微信号13382100888
或扫描下方的二维码
说出您的装修难题、让乐大姐为您答疑解惑
不管您是装修完工了
还是即将装修的
或者正在装修的
乐大姐一定知无不言,言无不尽
我们期待与您的交流