清水江南别墅整装

设计说·第224期 | 289㎡休闲度假风,让生活“慢”下来!

发布时间:2023-09-13

图片

乐大姐

FM104.8《家在苏州--乐大姐说装修》栏目特邀嘉宾,

赫博别墅设计创始人之一;
多次受邀成为院校家居的授课讲师;
98年至今,
为万千家庭打造幸福家居的同时,也相互成为了好朋友。
任何与装修有关的问题,欢迎您添加乐大姐微信:13382100888
乐大姐会为您做一对一解答。


项目地点 / 正荣华府(下叠)

项目面积 / 289㎡

项目风格 / 现代度假风

项目性质 / 别墅整装

项目状态/ 已交付

图片


每一套作品,都是私人定制



图片


现代人的快节奏,让“慢生活”几乎成了“奢侈品”般的存在,不过,虽然我们不能左右外面的世界,但家却是我们可以主导的天地,如何通过设计、色彩、空间布局让生活慢下来,让内心沉静,今天乐大姐分享的这套289㎡休闲度假风也许会给大家带来一些灵感图片~~

图片


图片


图片


图片


图片


图片


图片


图片


图片


图片


图片


图片



图片

图片


图片

图片

图片

图片

图片

图片

图片

图片


图片

图片



图片

图片

图片

图片

图片

图片

图片

图片

图片

图片

图片

图片

图片

图片

图片

图片

图片

图片

图片

图片

图片

图片

图片

图片

图片

图片

 平面方案 


图片
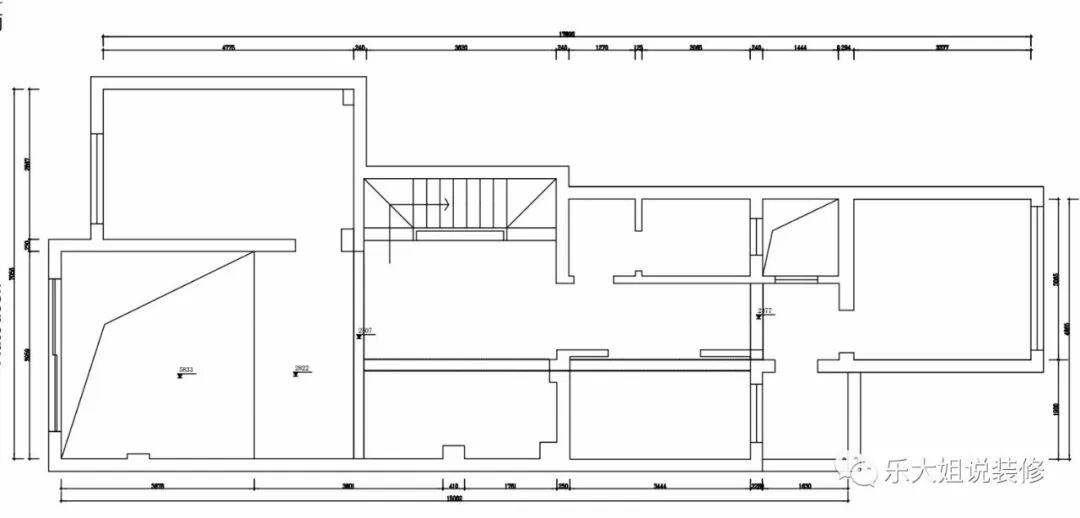
负一楼原始户型图
图片
负一楼改造后户型图
图片
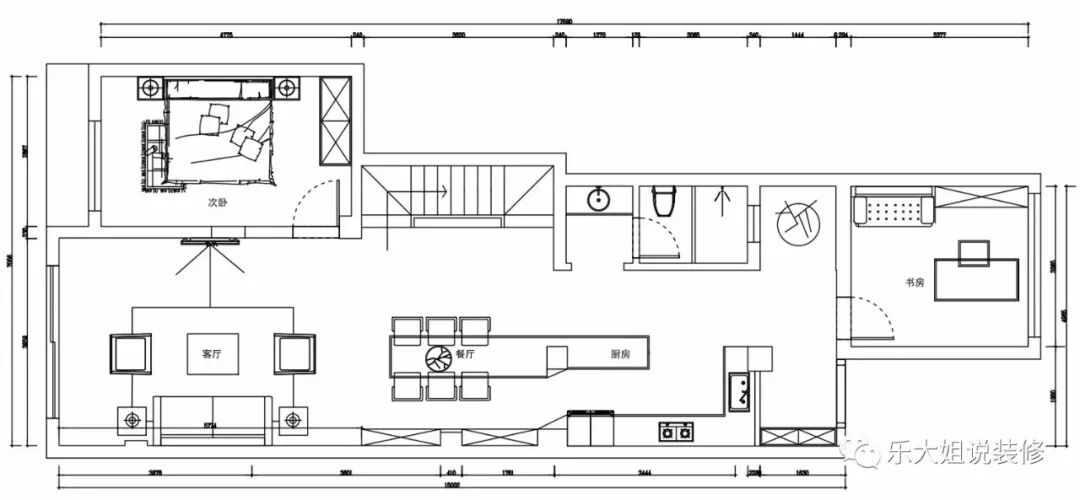
一楼原始户型图
图片
一楼改造后户型图
图片
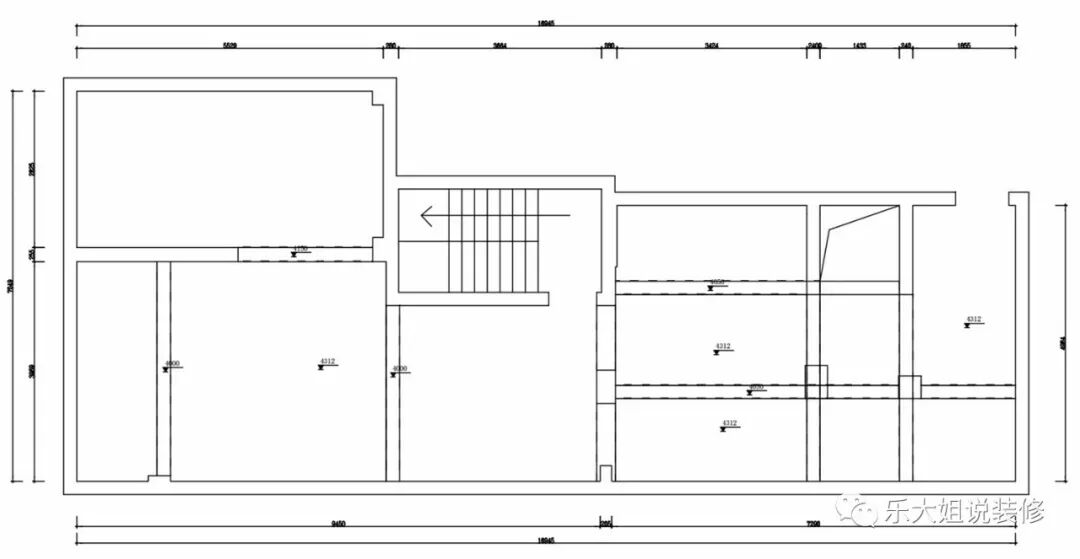
二楼原始户型图

图片

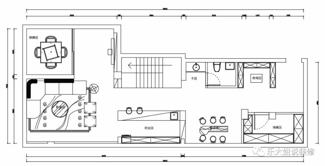
二楼改造后户型图


 全景图 


图片

点击左下方“阅读原文”,即可在线免费看本案例全景图(360°)。



图片


本案这套联排别墅的业主夫妻是一对神仙眷侣,他们每年一半时间在国内工作,一半时间在国外度假,日子过得十分逍遥惬意。也因此,他们对家的需求更多的偏向于休闲、度假、娱乐,喜欢慢生活,和心爱的人、事、物一起,过得简单而纯粹。


因此,乐大姐团队设计老师把生活空间的结构还原为生活的本质,去除多余的、浮夸的装饰图案,用精简的系统来营造生活场景。


 满意度100% 


图片

▲ 乐大姐团队和正荣华府业主夫妇合影留念


拍摄现场,在和乐大姐、苏州电视台《第一时间》拍摄老师等聊天的过程中,女业主说起自己的装修经历“其实,我有个同学就是开装修公司的,而且在苏州算是比较大规模的装修公司,我之前的两套房子都是找他装的,不过,装修的过程跟结果我都不太满意,所以这套下叠墅我和我老公一致决定找你们乐大姐团队,因为我们共同的一个朋友,他姐姐家的一套下叠墅也是找你们装的,我们这个圈子的都知道你们,对你们的工艺和服务信得过!当然,你们也值得我们的这份信任与托付,不论是施工过程还是竣工现场的效果我们都很满意!


图片

▲ 乐大姐正在拍摄苏州电视台《第一时间》解析样板房装修知识点

乐大姐的助理回忆道:“我记得这家业主是第二次见面、第一次沟通就直接签约了的,为什么这么说呢?因为当初他们第一次来乐大姐团队了解装修时没有预约,直接过来的,可是当天所有的客户经理都在接待已约客户,所以他们就留下了联系方式,约好二次见面的时间。然后,第二次见面就直接签约了,他们说我们就是冲着乐大姐团队来的,本来第一次见面就该签的!


图片
▲ 乐大姐正在拍摄苏州电视台《第一时间》解析样板房装修知识点


图片

▲ 竣工验收单上业主的评语


本案的主设计师在竣工现场聊天时说道:“本案业主每年基本上只有半年在家里住,其余时间都在外面,加上平时就业主夫妻两常住,所以我们将整个二楼(100多平)全部规划成主卧套房。从楼梯上去,推开双开门,正对着的是仪式感满满的门厅,接着往右走是睡眠区,往左走是衣帽间、卫生间、休闲晾晒阳台,功能非常齐全,空间十分阔绰,就跟五星级酒店总统套房一样。然后本案地下室,是业主的至交好友最喜欢待的地方,里面有酒吧台、钢琴区、棋牌室、休闲区、健身区……,业主说他们休闲度假的想法统统实现了!”


图片
▲ 乐大姐正在拍摄苏州电视台《第一时间》解析样板房装修知识点


图片


图片

▲ 正荣华府业主夫妇设宴宴请乐大姐团队贺竣工之喜


有感:



“装修对于我们团队来说只是忙活了一阵子,业主一家人却可能要住一辈子,所以任何一套装修项目,我们都要全力以赴,必须对得起业主当初对乐大姐团队义无反顾的选择!”


——by乐大姐


图片


END


往期案例回顾


设计说·第223期 | 406㎡联排别墅,东方典雅!

图片

设计说·第222期 | 610㎡极简风,黑白之间,静谧纯粹!

图片

设计说·第221期 | 220㎡失败案例,涅槃重生!

图片

设计说·第220期 | 319㎡叠墅,打造度假酒店既视感!

图片

设计说·第219期 | 186㎡叠墅,同一户型,两种风格,你pick哪个?

图片

设计说·第218期 | 450㎡新中式,幽静雅观,修身养性!

图片

设计说·第217期 | 217㎡大平层设计,现代风的高级感!

图片

设计说·第216期 | 270㎡奶油风叠墅,温暖治愈!

图片


图片


如果您觉得乐大姐说的内容很有价值

欢迎分享转发至您的朋友圈

让更多的朋友都能轻松装修,自在生活!


当然,您也可以添加乐大姐微信号13382100888

或扫描下方的二维码

说出您的装修难题、让乐大姐为您答疑解惑

不管您是装修完工了

还是即将装修的

或者正在装修的

乐大姐一定知无不言,言无不尽


图片


图片
在看是一种鼓励|分享是最好支持
点击右下角 写留言 发表你的心声

我们期待与您的交流 



长按二维码添加乐大姐微信号

装修不烦 大姐来谈