乐大姐
FM104.8《家在苏州--乐大姐说装修》栏目特邀嘉宾,
为万千家庭打造幸福家居的同时,也相互成为了好朋友。任何与装修有关的问题,欢迎您添加乐大姐微信:13382100888,
项目地点:黄桥花苑(大平层)
项目面积:260㎡
项目风格:新中式
项目性质:全屋整装
项目状态:正在施工
每一套作品,都是私人定制
写在前面的话
The Words Written In Front
本案这套大平层,其实是由两套相邻的130㎡平层打通而来的,所以原始结构上存在很大的弊端,承重墙非常多,区域间也大多被实墙阻隔,且每个空间都不大,那么面对这种情况如何营造大平层的空间感以及功能区之间的互动性是乐大姐团队需要攻克的难题之一。
风格上,本案业主喜欢中式风格,这次装修还要将家中以前的红木家具带过来,不过考虑到家里其他人的需求(不喜欢过于厚重、复杂的家居氛围),最终风格定位为新中式,以浅色为基调,同时辅以深色做点缀,造型简洁,这样不会让居住者感觉到压抑。
“东方,根植于传统文明的土壤,而我们想融入空间产品的,不是以旧怀古的表层意象,而是东方雅韵和现代生活的美学交集、艺术形式。”乐大姐团队设计老师如是说。本案结合了东方风韵与当代艺术的客厅,在设计老师的巧妙演绎下焕然一新,别具一格。设计去除了繁复的形制,以烟波浩渺、山静林空的水墨画铺叙一室的诗情画意,加之制式古典而简洁的红木家具、水纹荡漾状的地毯、生趣盎然的花枝、古朴自然的摆件,空间于东方礼序中摹刻符合现代生活习惯的空间场景。
沙发背景上的那一抹金黄色,显眼跳跃又贵气十足,与奠定整体空间的灰调形成鲜明对比,平衡大面积单一用色的同时,赋予空间优雅轻奢的质感。
男主人对于东方茶文化有着浓厚的兴趣,故将玄关背后的开放式空间打造成茶室,与客厅一起构成更丰富的家庭社交空间。整个茶室以简约为主旨,摒弃繁杂艳丽的色调,大面积的留白背景诉说着风清雅韵,以山、石、树影等自然元素为主题的精心陈列,将舒适宁静呈现的更加生动有层次,搭配甄选的茶桌茶具,映射出茶文化的内核。
海棠花造型的玄关背景,将功能布置与人文气质有机地结合在一起,营造出“画中有景,景中有境”的丰富层次,给人以视觉上的惊喜。
本案餐厨空间的设计,极其罕见。双餐厅&双厨房的设计,加上开放式的空间布局,打破了传统认知,带来强烈的空间感与互动性,让业主一家人在有限的空间结构内也可以拥有奢侈的生活尺度,不论是亲朋好友的聚会还是一家人的简餐都可以轻松实现。
透过简炼线条、朴拙材质与温润肌理,设计老师将中餐厅营造为一个静谧雅澹的场域。邻窗的视野、阳台的纳入,令空间的休闲尺度更加开阔,而云雾空濛、山隐人家的背景设计,于弧形造型中亦丰富了空间的艺术情境。
考虑到日常做饭的油烟问题,中西厨之间采用隐藏式移门,平时将移门推至侧面的柜子里就是一个完全敞开的空间,做饭时将移门从柜子内拉出又可形成封闭式中厨,不仅大大增加了餐厨空间的整体性,还真正实现了时尚与实用的完美结合,独具匠心。
走进业主夫妻的主卧套房,一幅由高山、近水、仙鹤绘成的静谧画卷映入眼帘,烟波浩渺,悠闲雅致,自然的滋养贯通其中,令人心神妥帖,安然入梦。
弧形背景墙提供更为熨帖的包裹感,富有立体感和层次感的同时,为主人构建出一个安心独立的空间。
设计老师运用艺术玻璃替代非承重实墙的处理,不止巧妙解决了内卫采光差的难题,还让空间有了更多的变化与趣味。
父母主卧套房,更加注重舒适度。床头背景采用棉麻纹理硬包+黑色金属线条,呈现出多层次的观感,搭配舒适的床品,充分回应返璞归真的诉求,温暖从容。细节处见真章,即使方寸之地的设计也不能轻易忽视。主卫墙地面应用浅灰色大理石砖,明亮易清洁。柜体迎合整体风格,采用深色木纹和中式线条装饰,使得卫浴空间更沉稳大气。
每个人都有自己的童真时分,在广阔世界之中寻梦,而身心愉悦的休憩之所,亦是庇护纯真梦想的象牙塔。
大女儿房以灰色、绿色将浪漫的粉调稀释,调和出恰到好处的优雅格调,温柔的笔触下,是对童乐之梦的呵护与启蒙。从用色浓度到家具意态,乐大姐团队设计老师深谙轻盈的奥秘,空间处处皆灵动,洋溢着快乐的因子。

相对于大女儿房,小女儿房更多的是软装的堆砌,硬装反而比较简洁,以便留给孩子未来更多自由成长与发挥的空间。小女儿年龄还小,性格天真活泼,故而她的房间采用了上下床的形式,以此增加使用场景的丰富性,下面可以作为睡眠区,上方则是孩子在高处的小小“秘密基地”,童趣满满。
平面方案
Flat Plan

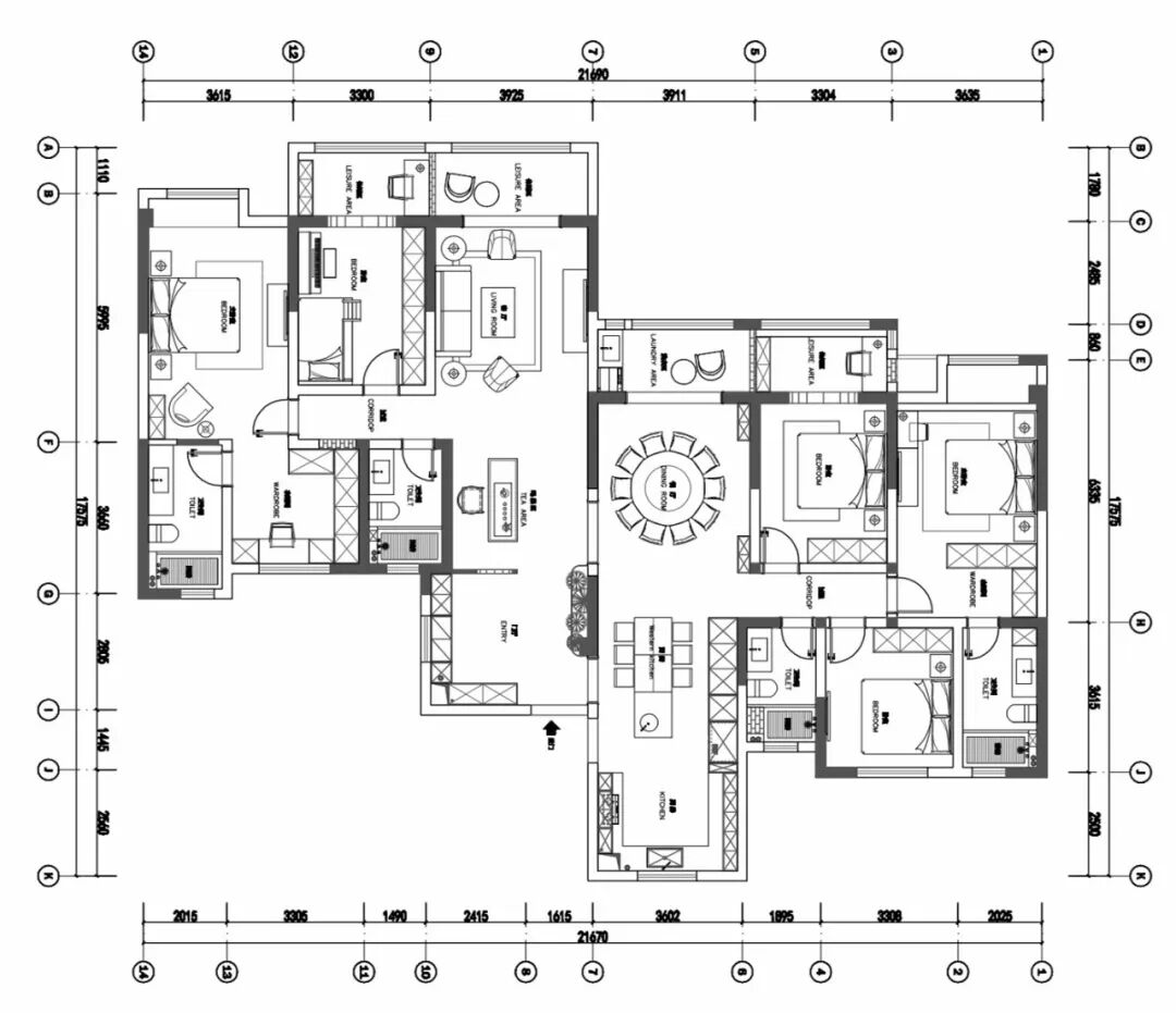
原始户型图

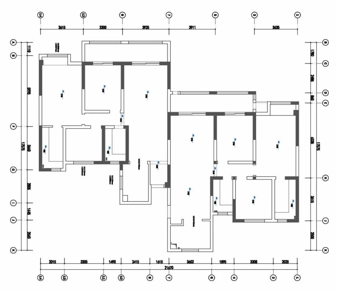
改造后户型图
- 因本案这套大平层,是由两套同样面积的平层打通而来,故原始结构不够通透疏朗,功能分区也不清晰明了,所以户型改造时乐大姐团队设计老师第一步做的就是尽可能地拆除非必要的非承重墙,将空间打开,从而营造出大平层的空间感;其次,将整套房子的中间区域规划成公区,两侧规划成休息区,这样不仅动静分开,每个卧室的私密性也更好,各个空间进出家门的动线也更便捷。
- 原来两套平层的客餐厅,分别被规划成客厅+茶室+玄关以及双餐厅+双厨房,全开放式的格局极大延伸了视觉,空间感极强,功能之间的互补与互动也大大提高了业主一家人生活的丰富性。
- 考虑到本案是三代同堂居住,家中有两个小朋友,所以规划了五个卧室,其中两个还是大套房格局,居住舒适度很好。
点击左下方“阅读原文”,即可在线免费看本案例全景图(360°)。
https://vr.justeasy.cn/view/t16p881t4xw90935-1689959033.html
END
往期案例回顾
设计说·第226期 | 459㎡大美别墅,高贵典雅!
设计说·第225期 | 248㎡奶油风,温馨雅致!
设计说·第224期 | 289㎡休闲度假风,让生活“慢”下来!
设计说·第223期 | 406㎡联排别墅,东方典雅!
设计说·第222期 | 610㎡极简风,黑白之间,静谧纯粹!
设计说·第221期 | 220㎡失败案例,涅槃重生!
设计说·第220期 | 319㎡叠墅,打造度假酒店既视感!
设计说·第219期 | 186㎡叠墅,同一户型,两种风格,你pick哪个?

如果您觉得乐大姐说的内容很有价值
欢迎分享转发至您的朋友圈
让更多的朋友都能轻松装修,自在生活!
当然,您也可以添加乐大姐微信号13382100888
或扫描下方的二维码
说出您的装修难题、让乐大姐为您答疑解惑
不管您是装修完工了
还是即将装修的
或者正在装修的
乐大姐一定知无不言,言无不尽
我们期待与您的交流