清水江南别墅整装

设计说·第228期 | 174㎡现代顶复,空间的新生!

发布时间:2023-10-08

图片

乐大姐

FM104.8《家在苏州--乐大姐说装修》栏目特邀嘉宾,

赫博别墅设计创始人之一;
多次受邀成为院校家居的授课讲师;
98年至今,
为万千家庭打造幸福家居的同时,也相互成为了好朋友。
任何与装修有关的问题,欢迎您添加乐大姐微信:13382100888
乐大姐会为您做一对一解答。

MODERN SIMPLICITY

图片

每一次样板房的拍摄,
每一次竣工酒的举行,
不仅仅是装修成果的一次展示,
更是承诺一次又一次的实力呈现。
圆一个理想家居之梦,
筑一方盛满温情的居所。
这个过程中
乐大姐团队和业主相识、相知、相交,
一次装修,一生朋友。 


——乐大姐团队原创


每一套作品,都是私人定制




01
  实景赏析  
 看别人的家  装自己的生活  

项目地点 / 吴江明珠城(复式)
项目面积 / 144㎡+阁楼30㎡
项目风格 / 现代简约
项目性质 / 别墅整装
项目状态/ 已交付


总所周知,出色的户型改造不仅可以优化整体的居家动线和功能布局,还能为空间的效果加分。比如说这套顶层复式洋房,没走进来之前,你完全想不到里面居然有一个层高高达5.15m的挑高空间,非常的宽敞大气,轩朗开阔,看上去就像是别墅的会客厅一样,颇具意趣,别有洞天。


图片

图片


图片


图片


图片


图片


图片


图片


图片


图片


图片


图片


图片


图片


图片


图片


图片



图片

图片



图片


图片


图片



图片

图片



图片


图片


图片


图片


图片


图片


图片


图片


图片


图片


图片


图片


图片


图片


图片


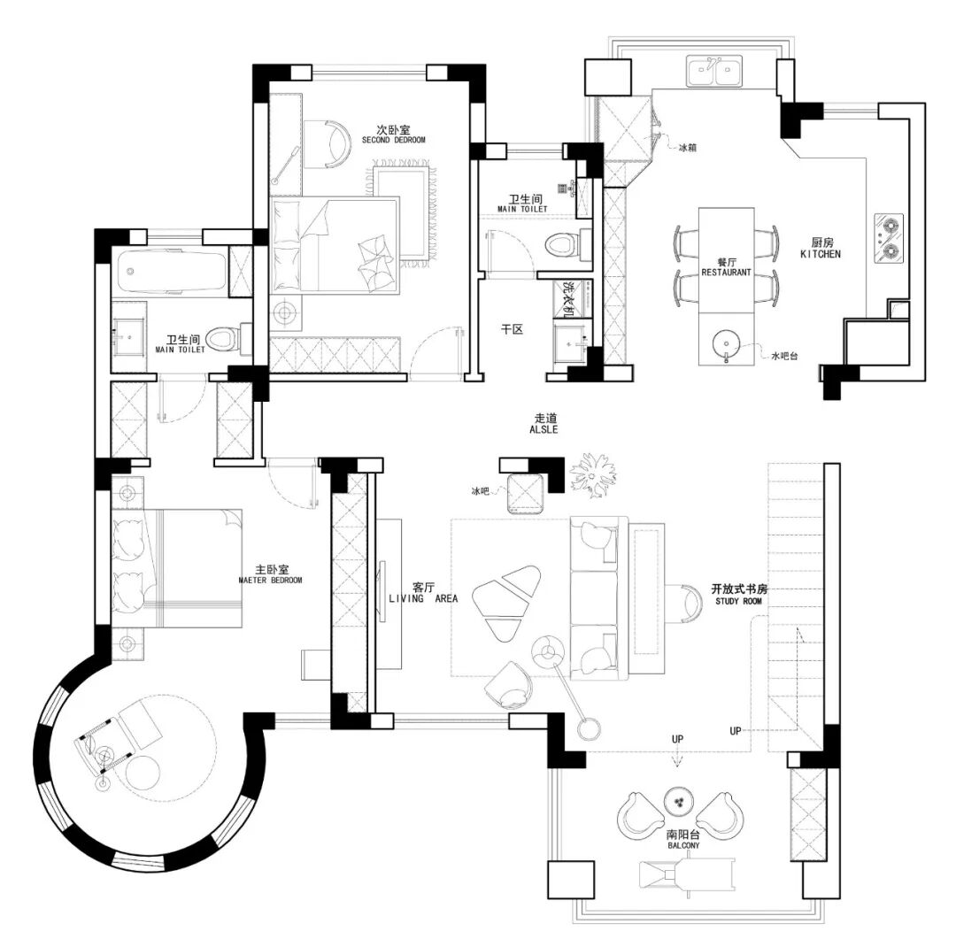
  平面方案  

图片
一楼原始户型图

图片

一楼改造后户型图

图片
阁楼原始户型图
图片
阁楼改造后户型图


  全景图  


图片

点击左下方“阅读原文”,即可在线免费看本案例全景图(360°)。

https://vr.justeasy.cn/view/166s92171x4c1e22-1662222775.html




02
业主说
  装修背后的故事  

本案是业主夫妻为儿子准备的婚房,未来以儿子一家居住为主,因此设计上更注重年轻人的意见。而小业主更看重家的空间感,希望有足够多的功能区可以满足自己的兴趣爱好,因此,如何在有限的空间内营造空间感、实现更多的功能成为本案首要解决的难题。


风格上,本案业主对精致舒适的生活很有追求,喜欢现代风,又不想要很普遍随大流的感觉,故设计老师在现代的基础上增加了一些稳重的胡桃木色和盈盈的绿意。


  满意度100%  

图片▲ 乐大姐团队和吴江明珠城业主合影留念

拍摄现场,在和乐大姐、苏州电视台《第一时间》拍摄老师等聊天过程中,女业主说“其实我是个挺相信缘分的人,既然当初图省心选择了乐大姐团(装修过不止一两次,深刻知道装修很烦琐),那么从头到尾我完全是放手给你们的,几乎不怎么来工地,全然地信任,当然,你们也没有辜负我的信任,不论是设计老师做的这个挑高户型改造,还是现场的施工,都给了我不少惊喜与安心。特别是到后面成品开始进场,我们在项目群里看到效果慢慢出来了,心里的期待也越来越大,耐不住就会跑过来看看,渐渐参与的也就多了起来,看着家一步步落成,我感觉非常有成就感,忍不住地骄傲!这两天,拍了照片发朋友圈,朋友们都说好看,约了来我家看现场,顺便小聚一下。

乐大姐接着说道“刚我们到现场时,你们家对面的邻居带着小孙子过来看,嘴里不停地夸漂亮,还说等着电视上看呢!不过,产证只有144的复式(还有30㎡是阁楼,层高很低,只能冒着腰进出),能做出这样的效果,证明设计确实很有创意,也再次说明乐大姐团队对每一个项目都是一样的重视,把每一套作品都做成了业主圈子里的骄傲!


图片
图片
▲ 乐大姐正在拍摄苏州电视台《第一时间》解析样板房装修知识点
竣工酒桌上,女业主说“我在朋友圈里看你们分享的竣工酒都是在酒店里举行的,但是这一次我想请你们乐大姐团队吃个'与众不同'、'别开生面'的竣工酒,我想把我们家新居的第一次开火和大家一起享用,因为我觉得现在这么出彩的效果离不开团队每一个人的付出,家宴是我想给你们的最高礼遇,也庆祝这次装修的完美收尾!为此,我特意亲手调了几杯饮料,杯底是红色的石榴汁,上面是橙汁,看上去就像日出,这是我们对乐大姐团队的祝愿,希望你们团队如同日出一样,蒸蒸日上!

图片
▲ 竣工验收单上业主的评语
图片
图片

图片

▲ 吴江明珠城业主设家宴宴请乐大姐团队贺竣工之喜

业主新家的第一次开火,从早到晚精心准备了一天(小业主都出手了),特意邀请乐大姐团队一起享用,菜品很是丰盛,味道颜值双在线,现场大家聊着各式各样的话题,气氛非常热烈!



有感:



一次装修,一生朋友!竣工酒既意味着新家的交付,更代表着接下来彼此之间相处才正式开始,一辈子很长,我们来日方长……



——by乐大姐

图片


END


往期案例回顾


设计说·第227期 | 260㎡新中式大平层,静谧雅澹!

图片

设计说·第226期 | 459㎡大美别墅,高贵典雅!

图片

设计说·第225期 | 248㎡奶油风,温馨雅致!

图片

设计说·第224期 | 289㎡休闲度假风,让生活“慢”下来!

图片

设计说·第223期 | 406㎡联排别墅,东方典雅!

图片

设计说·第222期 | 610㎡极简风,黑白之间,静谧纯粹!

图片

设计说·第221期 | 220㎡失败案例,涅槃重生!

图片

设计说·第220期 | 319㎡叠墅,打造度假酒店既视感!

图片


图片


如果您觉得乐大姐说的内容很有价值

欢迎分享转发至您的朋友圈

让更多的朋友都能轻松装修,自在生活!


当然,您也可以添加乐大姐微信号13382100888

或扫描下方的二维码

说出您的装修难题、让乐大姐为您答疑解惑

不管您是装修完工了

还是即将装修的

或者正在装修的

乐大姐一定知无不言,言无不尽


图片


图片
在看是一种鼓励|分享是最好支持
点击右下角 写留言 发表你的心声

我们期待与您的交流 

长按二维码添加乐大姐微信号

装修不烦 大姐来谈