清水江南别墅整装

设计说·第229期 | 210㎡极简别墅,净!

发布时间:2023-10-08

图片

乐大姐

FM104.8《家在苏州--乐大姐说装修》栏目特邀嘉宾,

赫博别墅设计创始人之一;
多次受邀成为院校家居的授课讲师;
98年至今,
为万千家庭打造幸福家居的同时,也相互成为了好朋友。
任何与装修有关的问题,欢迎您添加乐大姐微信:13382100888
乐大姐会为您做一对一解答。



项目地点:吴江中粮本园

项目面积:183㎡+露台27㎡

项目风格:极简

项目性质:别墅整装

项目状态:正在施工



每一套作品,都是私人定制







写在前面的话

The Words Written In Front




这套联排别墅是改善型住宅,日常居住人口不多,因此本案所有设计都是围绕着业主的生活习惯与审美需求展开的。

本案业主是一个非常爱干净、有生活品位的人,喜欢家里每天都一层不染,清清爽爽的,故乐大姐团队为其量身定制了这套以白色为基调的极简风,给人的感觉就一个字“净”





图片


图片


图片


图片


性格使然,本案在设计时,业主的要求只有四个字:明亮干净。于是,房子里没有丁点繁杂的色彩,一切以“白”为底;没有丝毫夸张的造型,一切以“简”为主……
整个空间,纤尘不染,干净利落,影影绰绰的光感,透过梦幻窗帘形成明与暗、透与半透的巧妙叠加,塑造出富有感染力的空间磁场。


图片

图片
图片


黑色的零星介入,形成强烈的视觉张力,静谧、理性、冷静的氛围蔓延开来;橙色的偶然点缀,柔化了极简带来的疏离感,营造出惬意舒适的居家环境。
空间中的材质、颜色、家具、装饰……无一不在调动居者对生活的感知,让美的力量在生活中滋养而生,游走其间,一切烦恼都没了。





图片


图片


图片


开放式的餐厨设计,不仅提高了空间的利用率,还兼顾了动线规划和生活仪式感的营造
大面积的白色延续了客厅的洁净灵动,从视觉角度再一次拉开空间的广阔度。橙色餐椅的加入,点亮用餐氛围,带来一丝家的温馨。


图片
图片
图片

而餐厨设计的精髓却远不止于此。
井井有条的餐厨不浪费一丝“笔墨”,不论是设备还是物件,都被完美地隐藏了起来,竭尽全力地保持干净利落,简洁到一眼望去,只剩下线条,但功能的使用上却“五脏六腑”一应俱全。


图片
图片
图片

本案楼梯如同轻巧的积木般“悬浮”在空中,视觉质感无比轻盈,极具冲击力。扶手也抛弃了常规设计,以钢索串联起上下楼层的互动,减轻体量感。清晰的线面结构以光为媒介,在光影变化间创造出极具艺术气质的写意空间。
角落肆意生长的绿植,散发出丝丝清新灵动的气息,时间仿佛在此停了下来。





图片


图片


图片


空间的新生,不仅仅有视觉的更新,更是功能的聚合。整个二楼被打造成业主的精神空间站(除备用父母房外),在这里可以办公、健身、观影、阅读、品茗,可静可动,生活自律又随性。


图片

图片


书房,因业主不喜过于复杂的色调与造型,设计老师别出心裁地利用隐藏式灯带营造出的光影的明暗变化,来突显背景的凹凸感,弱化整体视觉的平面化,建构起错落有致的层次,为空间增添了鲜明生动的艺术感表达


图片
图片
图片


独具匠心的展示柜自然衔接吧台,一体式设计拥有极大的包容性与自由度。弧形无主灯设计,与沙发相呼应,十分独特,为空间平添了几分情趣。





图片


图片


图片


图片


图片


主卧套房有着高级而细腻的空间质感,素雅的配色,简洁的吊顶,无主灯的设计,悬浮式床头柜,自然而然的细节,让生活美学和艺术空间完美契合,沉淀出闲适空灵的意蕴。

嵌入的黑色线条与柜体,于纯粹空间中凸显色彩及视觉层次。


图片
图片
图片

主卫采用三分离式设计,十分便捷。墙地统一的偏暖色调使得空间简洁、通透的同时,又让人倍感自在轻松。


平面方案

Flat Plan




图片

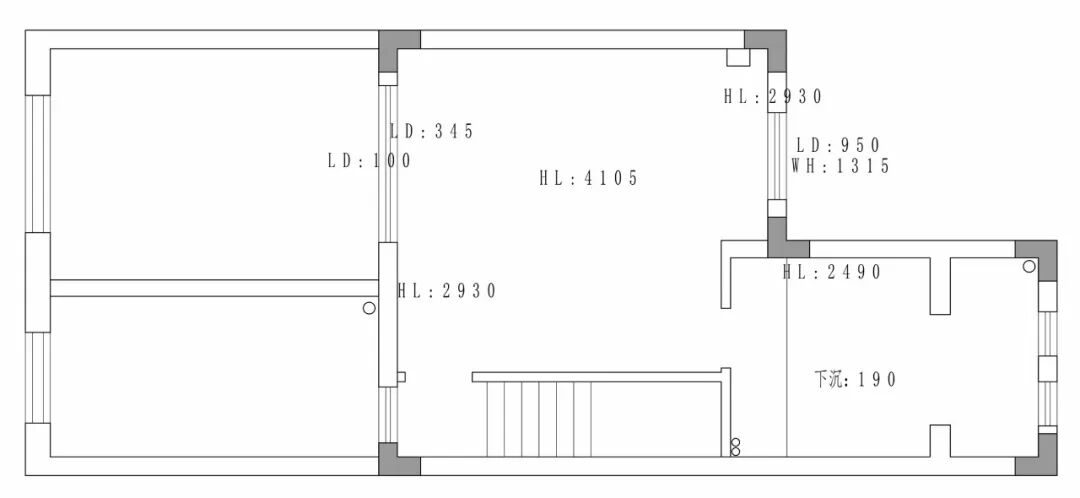
一楼原始户型图

图片

一楼改造后户型图

图片

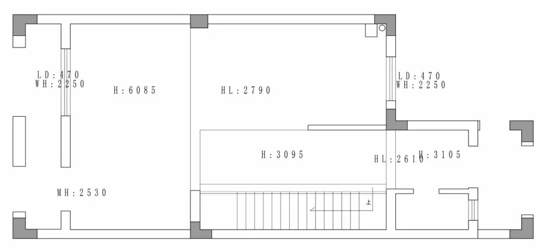
二楼原始户型图

图片

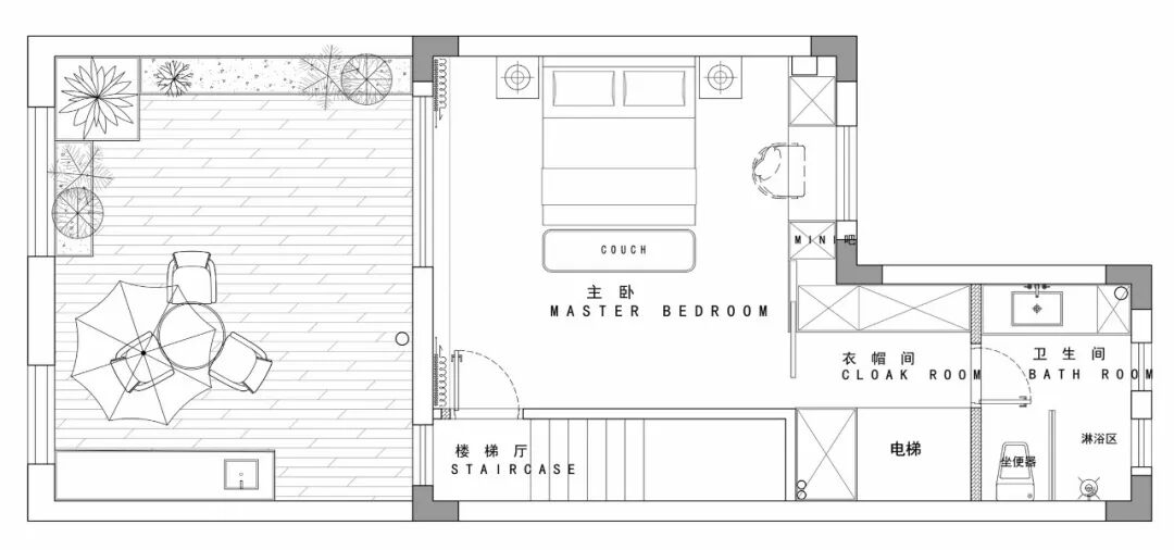
二楼改造后户型图

图片

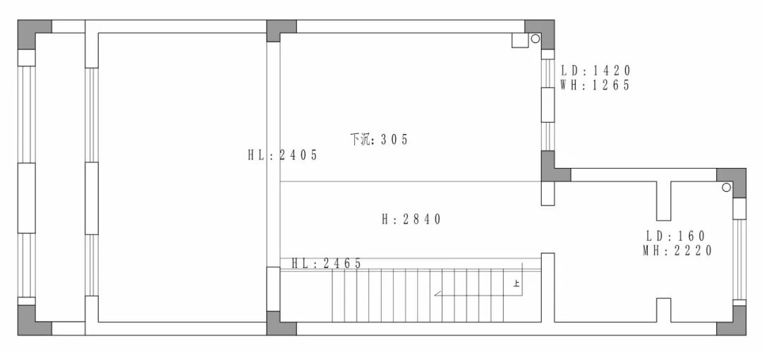
三楼原始户型图

图片

三楼改造后户型图

  • 本案业主对家的要求是“空”和“净”,不喜欢杂乱繁琐,所以乐大姐团队设计老师在做户型规划时尽可能地把空间打开。首先,将原结构中的餐厨空间合二为一,并与客厅一起形成客餐厨一体化格局,从而拉升了一楼公区的空间感。其次,将阳台纳入到客厅,增加使用面积和空间感。另外,原结构中的户外门厅同样也被纳入到室内,然后依着这一块仅8㎡的区域规划了玄关柜、一楼外卫、电梯、过道四大功能,大大提高了空间利用率。

  • 本案这套联排别墅的开间仅5.28m,不是很宽,如规划两个独立的房间,尺寸根本不够,故只能放弃,仅预留了一个独立卧室给业主父母,剩下的空间则全部打造成了业主的办公休闲区。

  • 整个三楼空间全部都是业主自己的,不仅有集睡眠空间、衣帽间、卫生间于一体的大套房,还有一个大露台,平时可以坐在这里喝喝茶、晒晒太阳,舒适度极高。



全景图

Panorama




图片

点击左下方“阅读原文”,即可在线免费看本案例全景图(360°)。

https://vr.justeasy.cn/view/1625i845815wz472-1669721711.html


END


往期案例回顾


设计说·第228期 | 174㎡现代顶复,空间的新生!

图片

设计说·第227期 | 260㎡新中式大平层,静谧雅澹!

图片

设计说·第226期 | 459㎡大美别墅,高贵典雅!

图片

设计说·第225期 | 248㎡奶油风,温馨雅致!

图片

设计说·第224期 | 289㎡休闲度假风,让生活“慢”下来!

图片

设计说·第223期 | 406㎡联排别墅,东方典雅!

图片

设计说·第222期 | 610㎡极简风,黑白之间,静谧纯粹!

图片

设计说·第221期 | 220㎡失败案例,涅槃重生!

图片

图片


如果您觉得乐大姐说的内容很有价值

欢迎分享转发至您的朋友圈

让更多的朋友都能轻松装修,自在生活!


当然,您也可以添加乐大姐微信号13382100888

或扫描下方的二维码

说出您的装修难题、让乐大姐为您答疑解惑

不管您是装修完工了

还是即将装修的

或者正在装修的

乐大姐一定知无不言,言无不尽


图片


图片
在看是一种鼓励|分享是最好支持
点击右下角 写留言 发表你的心声

我们期待与您的交流 

长按二维码添加乐大姐微信号

装修不烦 大姐来谈