清水江南别墅整装

设计说·第231期 | 153㎡现代设计,灰调の优雅!

发布时间:2023-10-25

图片

乐大姐

FM104.8《家在苏州--乐大姐说装修》栏目特邀嘉宾,

赫博别墅设计创始人之一;
多次受邀成为院校家居的授课讲师;
98年至今,
为万千家庭打造幸福家居的同时,也相互成为了好朋友。
任何与装修有关的问题,欢迎您添加乐大姐微信:13382100888

乐大姐会为您做一对一解答。



项目地点:苏州樾府

项目面积:153㎡

项目风格:现代简约

项目性质:精装修软装搭配

项目状态:正在施工



每一套作品,都是私人定制





写在前面的话

The Words Written In Front


本案这套精装房业主买来养老住的,因其地理条件十分优越,朝南正对着寿桃湖景区,在家就可直接看到山景湖景。也因此,业主对室内装修的效果和品质十分看重,不想将就开发商做的精装修,特地找到乐大姐团队做改造。
  • 女业主喜欢现代偏灰调的风格,但精装现场的木色偏黄;
  • 灰调的现代风对空间感的要求很高,但本案的户型是常规的四室两厅;
  • 精装现场客餐厅的顶面是无主灯设计,与现代风相契合,考虑保留;

……





图片


图片


图片


图片


因本案常住人口较少,乐大姐团队打破原有结构重构空间秩序,采取大横厅设计,最大化地释放空间,从而使场景交流更加和谐亲近,让拥有美好窗景的空间能更好地拥抱大自然。


图片

图片


设计上,看不到多余的装饰,仅用“线”与“形”的元素贯穿整个空间,将装饰物的比例降至最低,让设计回归纯粹的本质,淬炼出直抵人心的家居美学。

保留原精装的无主灯设计,不仅节省了改造成本,还与现代空间完美契合,纯净高级。


图片

图片


设计有时候并不是非黑即白,30度灰的融入,营造出灰调空间的写意美学。它,美得并不张扬,却有一种与生俱来的气场,不经意间撩拨着所有人的眼球,将时尚高雅的姿态充分表达,创造出更高品质的生活体验。
米白色布艺单椅,打破沉闷感,平衡空间,提升了整体舒适度。亚克力材质的加入,让可感知的光线在其间灵动穿行,简约又前卫。


图片

图片


书房同样注重细节及比例美感,深浅色阶的巧妙过渡,家具柜体的流畅线条,凸显简单而又不失对于品质的追求。


图片
图片

餐厅,黑白灰的整体搭配,与收纳需求结合,融合细节设计打造雅致的用餐空间。





图片


图片


图片


图片


步入主卧,你会被它独特的魅力所吸引。15°灰的设置给主卧带来柔和的调性,仿佛蕴含着无尽的包容与温柔。

北侧的悬浮床头柜以及背景上的线条变化,在暖光的烘托下,多了立体感和层次感,缓解了审美疲劳。床尾区域将飘窗、展示柜、书桌和电视柜融合在一起,极大拓展了空间的功能。


图片

图片


主卧的飘窗,连接着外面的风景区,坐在这里,不仅可以欣赏满山的风光与朝气,还能静静感受大隐隐于市的田园生活,惬意而美好。





图片


图片


图片


图片


业主女儿一家偶尔会过来住,次卧是为他们准备的。整个空间,将简洁与高级化身为一种低调的优雅,平静不失深刻,简约而不简单。


图片





图片


图片


图片


北次卧原本的空间很小,故设计老师特地采用了榻榻米的设计,将飘窗也纳入了进来,从而大大节省了床铺的占地面积,整体空间的布局也因此更加从容有度。
巨幅的宇航员壁画、太空元素的抱枕、蓝白灰的配色,无一不丰富着小朋友的成长记忆,激发着他创意的宇宙银河。


图片
图片



平面方案

Flat Plan




图片

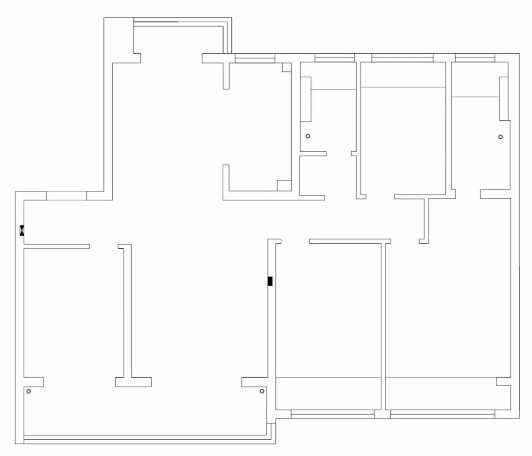
原始户型图

图片

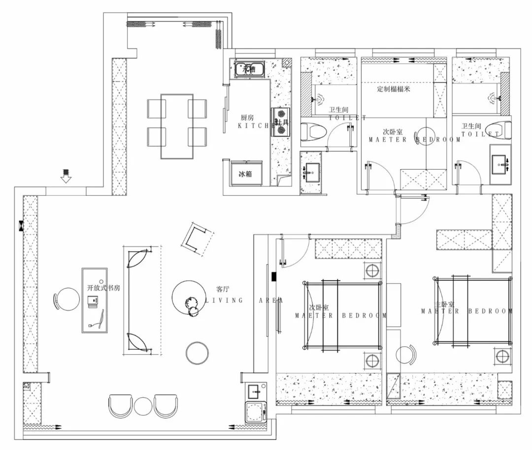
改造后户型图

本案属于精装房软装搭配项目,故涉及的户型改造并不多,仅有3处:

①  考虑业主家中常住人口不多,只需3个房间,故将入户处的次卧拆除,改造成开放式书房,与客厅一起构成大横厅格局,整个空间因此变得宽敞大气;

②  将双阳台纳入到大横厅,进一步拓展公共区域的空间感和使用面积,同时也引光入室、引景入室;

③  调整主卧的开门方向,以优化居住动线,增加主卧套房的使用面积。



全景图

Panorama




图片

点击左下方“阅读原文”,即可在线免费看本案例全景图(360°)。


END


往期案例回顾


设计说·第230期 | 680㎡新中式别墅,大雅风范!

图片

设计说·第229期 | 210㎡极简别墅,净!

图片

设计说·第228期 | 174㎡现代顶复,空间的新生!

图片

设计说·第227期 | 260㎡新中式大平层,静谧雅澹!

图片

设计说·第226期 | 459㎡大美别墅,高贵典雅!

图片

设计说·第225期 | 248㎡奶油风,温馨雅致!

图片

设计说·第224期 | 289㎡休闲度假风,让生活“慢”下来!

图片

设计说·第223期 | 406㎡联排别墅,东方典雅!

图片


图片


如果您觉得乐大姐说的内容很有价值

欢迎分享转发至您的朋友圈

让更多的朋友都能轻松装修,自在生活!


当然,您也可以添加乐大姐微信号13382100888

或扫描下方的二维码

说出您的装修难题、让乐大姐为您答疑解惑

不管您是装修完工了

还是即将装修的

或者正在装修的

乐大姐一定知无不言,言无不尽


图片


图片
在看是一种鼓励|分享是最好支持
点击右下角 写留言 发表你的心声

我们期待与您的交流 

长按二维码添加乐大姐微信号

装修不烦 大姐来谈