清水江南别墅整装

设计说·第232期 | 在418㎡新中式别墅里,诗意栖居!

发布时间:2023-11-21

图片

乐大姐
FM104.8《家在苏州--乐大姐说装修》栏目特邀嘉宾,
赫博别墅设计创始人之一;
多次受邀成为院校家居的授课讲师;
98年至今,
为万千家庭打造幸福家居的同时,也相互成为了好朋友。
任何与装修有关的问题,欢迎您添加乐大姐微信:13382100888
乐大姐会为您做一对一解答。



项目地点:新区泉山39°(双拼)

项目面积:334.8㎡+地下室83.3㎡
项目风格:新中式
项目性质:别墅整装
项目状态:已交付


图片


每一套作品,都是私人定制



图片


“一远山,一溪水,一盏茶,做一闲人”,这是古代雅士的生活态度,亦是很多都市人的心之所向。在自然的风光里感受烟火,在忙碌的间隙里放松身心,繁闹城市里,能够想象的诗意生活大致如此。而泉山39°双拼别墅却将“诗意栖居”写进现实。

图片


图片

图片




图片

图片



图片


图片


图片


图片


图片


图片


图片


图片


图片


图片


图片


图片


图片


图片


图片


图片


图片


图片


图片


图片


图片


图片


图片


图片


图片


图片


图片


图片


图片


图片


图片


图片


图片


图片


图片


图片


图片


图片


图片


图片


图片


图片


图片


图片


图片


图片


图片


图片


图片


图片


图片


 平面方案 


图片

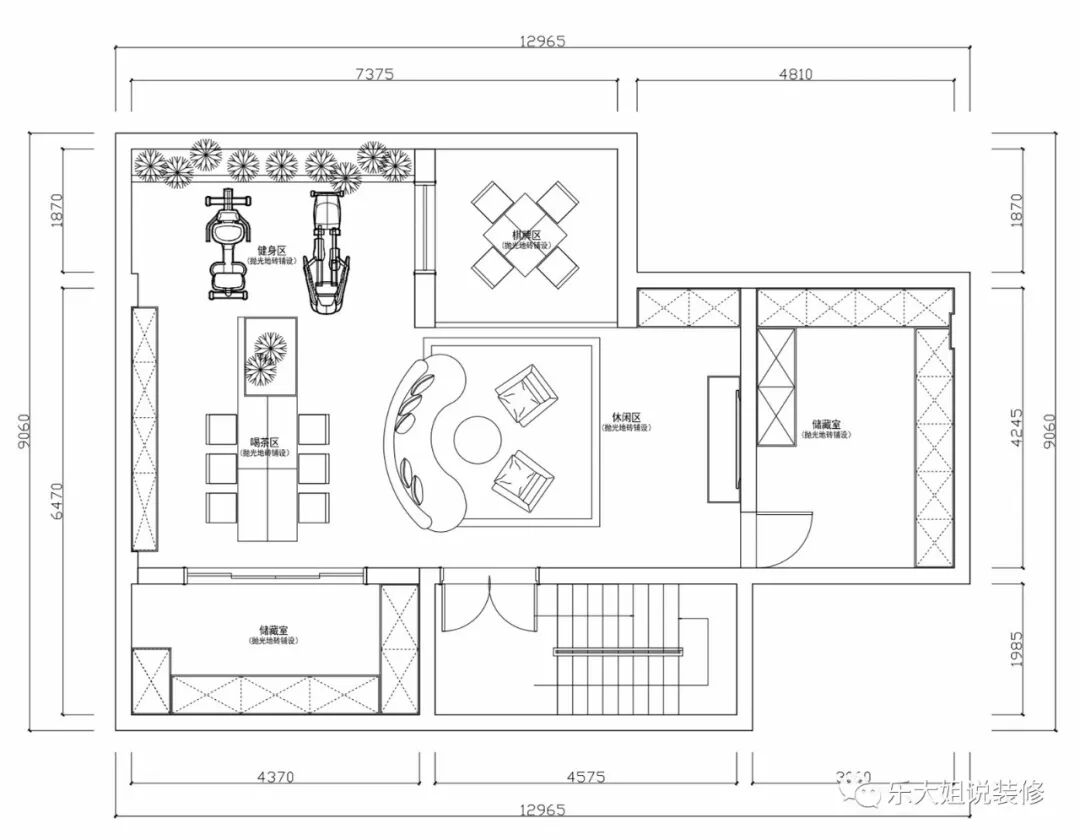
地下室平面方案

图片

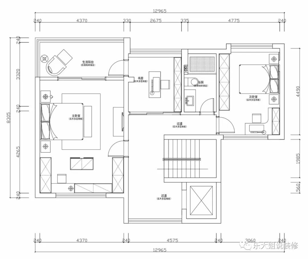
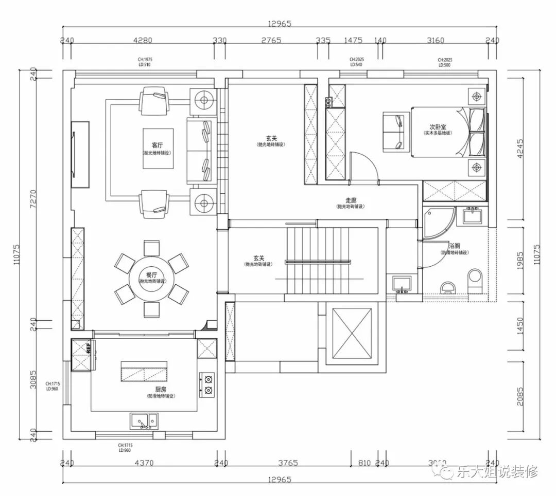
一层平面方案

图片

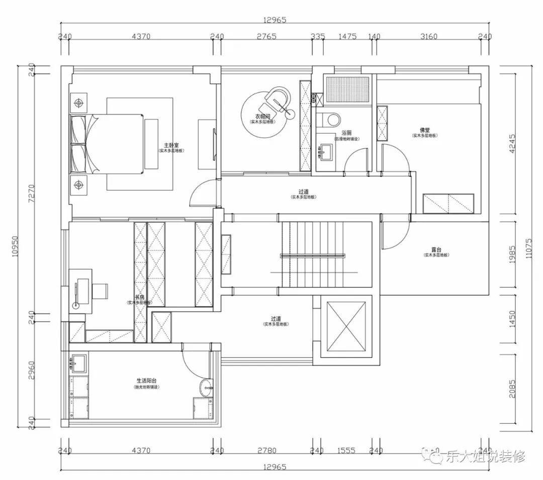
二层平面方案

图片

三层平面方案


 全景图 


图片

点击文章底部左下方“阅读原文”,即可在线免费看本案例全景图(360°)。



图片


本案是套改善型住宅,需要满足业主一家三代同堂5口人居住,所以设计时业主要求既要有他们自己喜欢的中式风格,也要加入年轻人喜欢的现代元素,另外业主还想把之前老房子里的红木家具带过去,那么这样一套双拼别墅乐大姐团队该如何设计才能实现业主所有的需求呢

 满意度100% 

图片
▲ 乐大姐团队&泉山39°业主夫妇合影留念

拍摄现场,在和乐大姐、苏州电视台《第一时间》拍摄老师等聊天的过程中,女业主在装修这套房子之前我们已经经历过两次装修了,但只有这次装修才是真正成功的,不论是装修过程还是结果我们都非常满意。说起来,我这个人做事非常细致,喜欢抠细节,什么事情都会三思而后行,但唯独选择乐大姐团我是毅然决然的因为买这套别墅之前我跟老公观察乐大姐团队好几年了,你们朋友圈的每套作品我都有仔细看,连乐大姐本人每次拍摄样板房穿什么衣服我都很清楚,每家竣工验收单我都会仔细阅读,你们的管理机制、团队合作和每处细节展现出来的匠人精神让我们对乐大姐团队早就心有所属,房子刚交定金,我俩就急匆匆地找了过来,现在装修竣工了,现场的落地效果更是验证了我们的选择!接下来身边的亲戚朋友如果需要装修,我们都会推荐找乐大姐团队!


图片
▲ 乐大姐正在拍摄苏州电视台《第一时间》解析样板房装修知识点

图片

▲ 竣工验收单上业主的评语

男业主接着说道“是的,这次装修我们一家人都特别满意,我现在在家待得最多的地方就是院子了,坐在这里可以看山、看水、看云、看花,还可以享受来自大自然的馈赠(免费的阳光和新鲜空气),实在是太惬意了!我们非常感谢乐大姐团队,助我们实现了梦想中的家,因此我想送一件特别的礼物给你们以表达我们的谢意,想了很久最后去镇湖定制了一套专属清水江南的双面绣屏风(业主夫妻都是苏州人),我想用这件精心准备的礼物来印证乐大姐团队的口碑及实力。

图片

图片

图片

▲ 乐大姐正在拍摄苏州电视台《第一时间》解析样板房装修知识点

本案业主的贴心程度让乐大姐很是感动,不仅早早就准备了水果、饮料,拍摄当天还有美味又精致的糕点,糕点是很早之前就定好的,送过来时非常新鲜。彼此之间更是有聊不完的话题,从童年聊到如今的生活,就像一家人一样……


图片

图片

图片

▲ 泉山39°业主夫妇设宴宴请乐大姐团队贺竣工之喜



有感:



一次装修,一生朋友!竣工酒既意味着新家的交付,更代表着接下来彼此之间相处才正式开始,一辈子很长,我们来日方长……


——by乐大姐

图片


END


往期案例回顾


设计说·第231期 | 153㎡现代设计,灰调の优雅!

图片

设计说·第230期 | 680㎡新中式别墅,大雅风范!

图片

设计说·第229期 | 210㎡极简别墅,净!

图片

设计说·第228期 | 174㎡现代顶复,空间的新生!

图片

设计说·第227期 | 260㎡新中式大平层,静谧雅澹!

图片

设计说·第226期 | 459㎡大美别墅,高贵典雅!

图片

设计说·第225期 | 248㎡奶油风,温馨雅致!

图片

设计说·第224期 | 289㎡休闲度假风,让生活“慢”下来!

图片


图片


如果您觉得乐大姐说的内容很有价值

欢迎分享转发至您的朋友圈

让更多的朋友都能轻松装修,自在生活!


当然,您也可以添加乐大姐微信号13382100888

或扫描下方的二维码

说出您的装修难题、让乐大姐为您答疑解惑

不管您是装修完工了

还是即将装修的

或者正在装修的

乐大姐一定知无不言,言无不尽


图片


图片
在看是一种鼓励|分享是最好支持
点击右下角 写留言 发表你的心声

我们期待与您的交流 

长按二维码添加乐大姐微信号

装修不烦 大姐来谈