
乐大姐
FM104.8《家在苏州--乐大姐说装修》栏目特邀嘉宾,
为万千家庭打造幸福家居的同时,也相互成为了好朋友。任何与装修有关的问题,欢迎您添加乐大姐微信:13382100888,
项目地点:吴中区碧螺湾
项目面积:232.8㎡+露台135.7㎡
项目状态:正在施工
每一套作品,都是私人定制
写在前面的话
The Words Written In Front
本案这套联排别墅的地理条件十分优越,与太湖湿地公园仅有一条马路相隔,风景优美,空气清新,业主说住在这里感觉每天都像是在度假,所以才买了这套房来改善一家人的生活品质,也因此对装修的要求和期待非常高。
风格上,男业主偏向线条简单清爽的极简风,女业主却喜欢法式元素,乐大姐团队将他们的想法进行糅合,最终量身定制了一套现代法式的作品,效果出来后不仅女业主爱不释手,男业主也希望能尽快完工搬过去住!
本案以现代法式风格演绎空间,设计老师减少布局上的莹莹绕绕在精巧处的斟酌与碰撞,将更多的精力集中在对材质、体态与视觉美感的细细慢述上,平衡每个维度的氛围表达。


首先,在洞察业主需求的基础上,进行功能分层与场景化预设。将客厅与餐厅、餐厅与厨房之间的非承重墙拆除,全开放式的布局让空间边界变得模糊,看上去十分宽敞大气,互动性也更好。同时,考虑到做饭的油烟问题,引入隐藏式移门,使得相关联的空间既能相互关照,又彼此分离。


因业主平时不喜欢看电视,客厅打破传统布局,采取去电视化设计,但又选购了复古的花镜电视,以应对临时之需,亦可装饰空间。墙壁上线性元素的运用十分巧妙,不仅让背景有了层次变化,富有立体感,还与通往卫生间的隐形门之间实现无缝过渡。
整个空间以奶油白为底,配以浅灰、焦糖、墨绿等色调创造更多的层次感,恰到好处的色彩饱和度就像初春里的一份法式甜品,甜而不腻,有种不争岁月的温柔美感,每一处都治愈人心,每一帧都像是电影……
顶面,细窄石膏线条的适当点缀,定格住独属这个空间的时间痕迹。

整排的餐边柜,收纳有序。柜面的奶油白与餐椅的焦糖色相搭,显得格外温柔。弧线装饰纹与整个空间的弧形元素相呼应,柔和又雅致。
主卧套房吊顶,运用曲线造型打破三楼斜顶的尖锐感,从进门第一眼开始就成为视觉中心,仪式感十足,仿佛走进了一座古老的欧洲城堡,释放出不容忽视的优雅气场。
业主不喜过于繁琐的背景,觉得越简单越好,故主卧仅用木饰面与艺术漆打造床头背景,家具、摆件的款式也极为简洁,尽显高级感。焦糖色的加入,直接提升了整个空间的温度,带来了浓郁的复古氛围,置身其间恍若瞬间坠入一种错置的时空,随意而慵懒,温暖又静谧……
主卫延续了主卧的暖色调,但同时又大胆采用小花砖做地面,增加空间的复古调性。朝北墙体的后面是屋顶的落水管,不好移动,故在此设置了一个壁龛,壁龛内的瓷砖以与众不同的简笔人物画作图案,令人印象深刻。
儿童房的配色、用材,必须考虑到孩子的个人喜好和生活习惯。乐大姐团队设计老师特地以“魔法钥匙”为创意做了一个浮雕墙饰做背景,加上粉白二色的描绘,法式线条的点缀,令梦幻灵动、清甜温柔的气息溢散在空间各处,构造出一个饱含趣味性的童话世界。

步入式衣帽间的玻璃移门,同样做了隐藏式设计,以提升卧室和衣帽间的空间感。
次卧是为客人或家里老人偶尔过来住准备的,床头背景选用半高的深色饰面板,稳重雅致,搭配素雅的壁布,散发着轻法的优雅调性。
墙壁上挂着日常生活主题的装饰画,取其“时光相伴 静享美好”的寓意。
挑空结构为地下空间提供了更为丰富的功能区域和良好的透光条件,满足业主一家娱乐和接待朋友的需求。沉稳静谧的书房位于夹层,活跃的线条显露在不同材质间,使交互有了艺术的索引。
为了营造更卓越的空间感,地下二层休闲区的顶面和柜体均利用线条的拱形处理制造分离与接续的艺术效果,既丰富了空间流畅的形态,也激发了更多空间探索的艺术性、趣味感。
主材和色调的平衡连贯,提高了空间质感,内在张力抒写其上。天顶垂落的晶莹叶片,在绰影间将地下室引入梦幻之境。

黑白格的花砖、设计感十足的端景,搭配功能齐全的玄关柜,赋予了业主满满的归家仪式感。而从地下玄关看向内厅,曲直结合的视角和倾斜而下的天光,带来强烈的视觉感官,大大增加了空间的艺术美感。
前庭后院,是教养礼序,也是生活仪式。
本案的庭院非常宽敞,有68㎡,且与太湖相望,抬眼就可以看到一片山水湖光,听虫鸣莺飞,赏草长花开,故设计时尽可能地打破建筑立面的隔阂,以藏露有序的布局和内外相连的景致构筑空间,连通“院”、“室”与“自然”,重塑居住关系,还原人与自然最舒适惬意的相处模式。
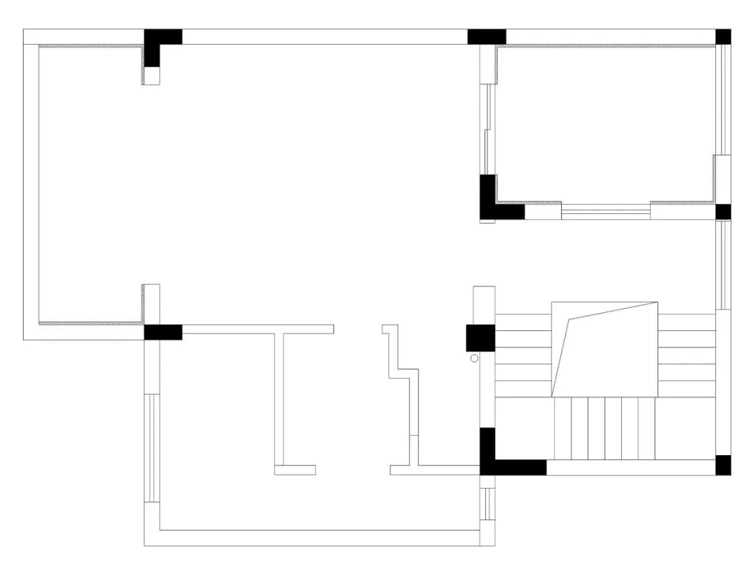
平面方案
Flat Plan
- 原户型中本案地下室的面积不小,有136㎡,上下两层,不过结构却不够正气,功能也不齐全,层高还压抑,故设计时将上下两层打通做成挑高,提高了空间感的同时还优化了采光。其次,重新规划功能布局,将休闲厅、茶室、书房、卫生间、门厅等按各自对空间的需求重新设置,使得空间既宽敞大气又功能齐全,满足了业主一家的生活娱乐需求。
- 原户型中一楼卫生间占据了客厅的部分空间,让整个大横厅看上去很是畸形,不大气,故乐大姐团队将其拆除,改至楼梯背后(仅1.3㎡,不过因一楼没有房间,所以只设置了马桶功能),从而极大改善了一楼公区的视觉空间感。
- 原户型中厨房面积太小,故设计老师将厨房往餐厅方向拓展了部分空间,同时增设吧台功能,改造后不止一楼公区看上去更宽敞,功能之间的互动性也更好。
- 考虑到本案业主一家日常居住至少需要3个房间,设计老师将二楼的挑高空间现浇成女儿房,搭配衣帽间、内卫、阳台,功能十分齐全。
- 原户型中三楼主卧套房的卫生间、衣帽间,结构不方正,空间利用率很低,故把不需要的非承重墙全部拆除,然后将此空间一分为二,一部分做衣帽间、一部分做卫生间,这样不仅提高了空间利用率,还改善了动线。
点击左下方“阅读原文”,即可在线免费看本案例全景图(360°)。
https://vr.justeasy.cn/view/4d1769u41nw04555-1695872918.html
END
往期案例回顾
设计说·第232期 | 在418㎡新中式别墅里,诗意栖居!

设计说·第231期 | 153㎡现代设计,灰调の优雅!

设计说·第230期 | 680㎡新中式别墅,大雅风范!

设计说·第229期 | 210㎡极简别墅,净!

设计说·第228期 | 174㎡现代顶复,空间的新生!

设计说·第227期 | 260㎡新中式大平层,静谧雅澹!

设计说·第226期 | 459㎡大美别墅,高贵典雅!
设计说·第225期 | 248㎡奶油风,温馨雅致!

如果您觉得乐大姐说的内容很有价值
欢迎分享转发至您的朋友圈
让更多的朋友都能轻松装修,自在生活!
当然,您也可以添加乐大姐微信号13382100888
或扫描下方的二维码
说出您的装修难题、让乐大姐为您答疑解惑
不管您是装修完工了
还是即将装修的
或者正在装修的
乐大姐一定知无不言,言无不尽
我们期待与您的交流