清水江南别墅整装

设计说·第237期 | 369㎡二手别墅,改头换面!

发布时间:2023-12-08

图片

乐大姐

FM104.8《家在苏州--乐大姐说装修》栏目特邀嘉宾,

赫博别墅设计创始人之一;
多次受邀成为院校家居的授课讲师;
98年至今,
为万千家庭打造幸福家居的同时,也相互成为了好朋友。
任何与装修有关的问题,欢迎您添加乐大姐微信:13390895455
乐大姐会为您做一对一解答。


项目地点:吴江同里花园(独栋)

项目面积:369㎡

项目风格:新中式

项目性质:别墅局改+软装搭配

项目状态:正在施工



每一套作品,都是私人定制









写在前面的话

The Words Written In Front




本案这套独栋别墅,业主买来是为了一家三代同堂一起居住,未来还计划四代同堂,可原装修过于简陋,毫无美感可言,有些功能还欠缺,根本无法满足业主一家的居住需求,所以就找到了乐大姐团队做局部改造和软装搭配。

风格上,整体以不论老年人还是年轻人都能接受的新中式风格为基调,同时独立空间(儿子房、女儿房)根据个人喜好做了量身定制。




图片


图片


图片


图片


门厅,对任何一套别墅来说都是非常重要的区域,特别是本案的入户只有南大门。因此,设计老师对门厅背景做了全新的改造,摒弃原来的石膏板造型,以木饰面和具有中式意境的岩板来替代,不仅一进门就给人一种恢弘大气的感觉,还对电视背景起到补充、修饰的作用。

客厅电视背景选用的是中式的木质花格,打通门厅与客厅之间界限的同时还可透过花格观门厅的主背景,在光线变化与明暗交接间生发流动质感,通透不压抑。


图片

图片

图片


乐大姐团队设计老师依托下沉式结构(和门厅地面之间有三步台阶的错层,层高有3.4m),以中式的对称手法和清新淡雅的色调,使客厅空间具备典雅的大气感与庄重感,让一切均衡、有序、和谐。
沙发背景采用笔墨浓淡有致的山水壁画,搭配饱和度低的原木色,古雅禅意的氛围感油然而生。


图片

图片

图片


一抹暗色的中国红,不止打破了空间的沉闷,解决了客厅结构不对称的难题,还将传统元素与现代设计完美融合,颇具新意,可谓点睛之笔。





图片


图片


图片


图片


餐厅,通过对隔与透、藏与漏、虚与实恰到好处的掌控,以洗练笔墨传达自然灵动,精准雕刻线条,务实与审美兼备,空间于不事声张中和谐相宜。


图片


储藏是每个家庭的基本需求,尤其本案,当下是三代同堂,未来还有四代同堂的计划,所以楼梯底部空间也没有闲置浪费,而是做了储藏,用来收纳家里的鞋子等物。





图片


图片


图片


图片


二楼儿子套房的设计,不止着眼于当下,还要考虑未来作为婚房使用。所以,整体采用的是更适合年轻人的现代格调,踏实稳重的色系,搭配考究的材料质地,以及各式品质精尚的家具、床品,为居者打造了一个低调雅奢的休憩空间,任由纯粹的质朴丰盈感知与体验。


图片

值得一提的是,因结构问题儿子房的衣柜和背景被规划在了同一面墙上,那么为了避免空间因此显得压抑、沉闷,设计老师将衣柜与床头柜做了穿插式设计抬高的柜体使视线得以延伸,从而大大缓解了因60公分柜体侧面遮挡带来的压抑感。

图片


靠窗的穿插式台面设计,既可当现在儿子一个人的书桌来用,也可做将来另一半的梳妆台,加上舒适的懒人沙发和设计感十足的落地灯,精致渗透于空间的各个细枝末节之中。





图片


图片


图片


图片


女儿的年龄不大,所以房间的搭配要活泼青春。粉色床头壁画&牛油果绿床靠背的经典配色,打造的是纯纯的莫兰迪色少女风,清新又可爱。



图片

图片



衣柜设计,也打破了成人的中规中矩,在柜子的侧面做了展示层板,既增加了角落的乐趣,又正好在卫生间的门口,方便进出随手置物。






图片


图片


图片


图片


图片


主卧酝酿在东方韵律里,感受着最好的时光。木色的温馨镶以深色线条的结合,让人从匆忙的生活节奏中慢下来,简单、自然,不恋浮华,只追求内心的纯净。


值得一提的是,主卧的床头背景,竟然与主卧门、主卫门在同一面墙上?!这是因为主卧西墙的顶面有一根很低的梁,业主比较忌讳将床头背景规划在这里,而且住起来也不舒服,所以设计老师将床头背景放在了东面。刚开始业主对这种退而求其次的做法的期待值并不高,然而看到效果图后,他们觉得甚是惊喜,因为主卧的大气感丝毫不差,床头背景结合内卫的隐形门,既美观又藏拙。



图片


图片


图片


主卧衣帽柜利用层高与柜体的比例打造最佳线条和功能,充分满足了主人日常护肤、观影、收纳、展示所需。其间开放格&玻璃柜门设计,在注重便利性的同时还增加了视觉变化,令层次分明,空间不压抑沉闷。



图片


图片


图片


图片


主卧内卫,经典的黑白灰组合不浮夸、不矫饰,利落地将当代美学风度演绎得淋漓尽致。


另外,进门的台盆柜和淋浴房的尖角相对,不仅影响走动距离,更有安全隐患,故台盆柜做了异形定制,美观且实用。






图片


图片


老人房以淡雅细腻的设计手法,让人感受更意蕴无限的美好,生活的感动与心灵疗愈,在于被触动、被守候的瞬间。小巧别致的艺术饰品,点缀着温馨的空间。


平面方案

Flat Plan




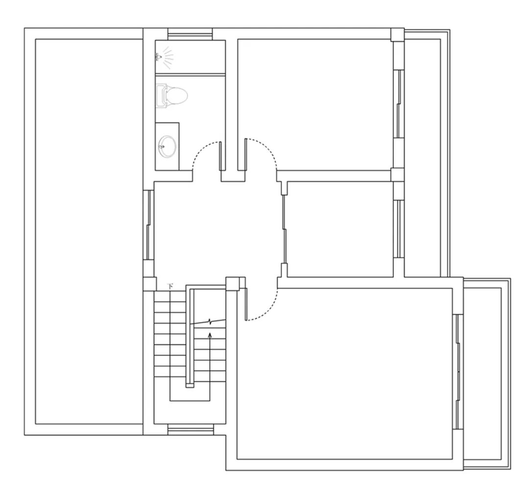
图片
一楼原始户型图

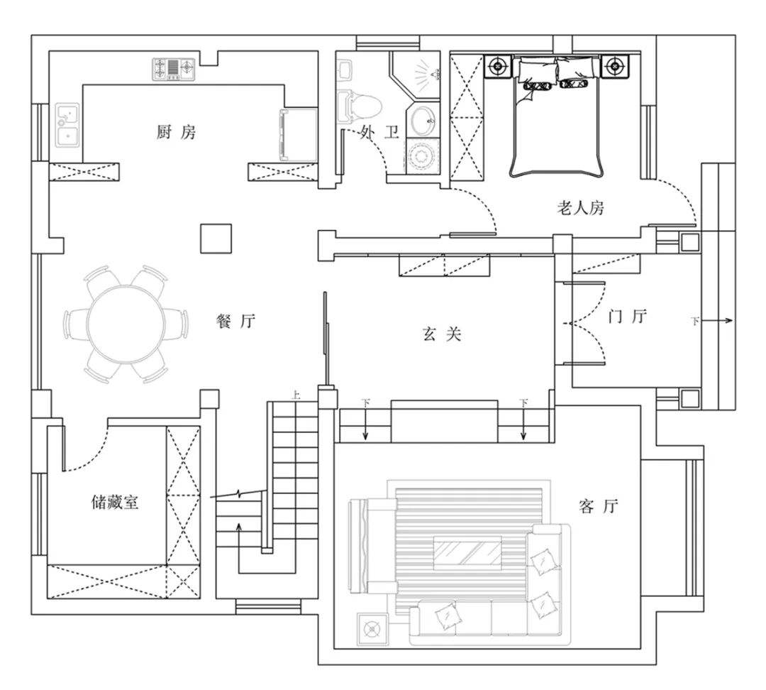
图片

一楼改造后户型图

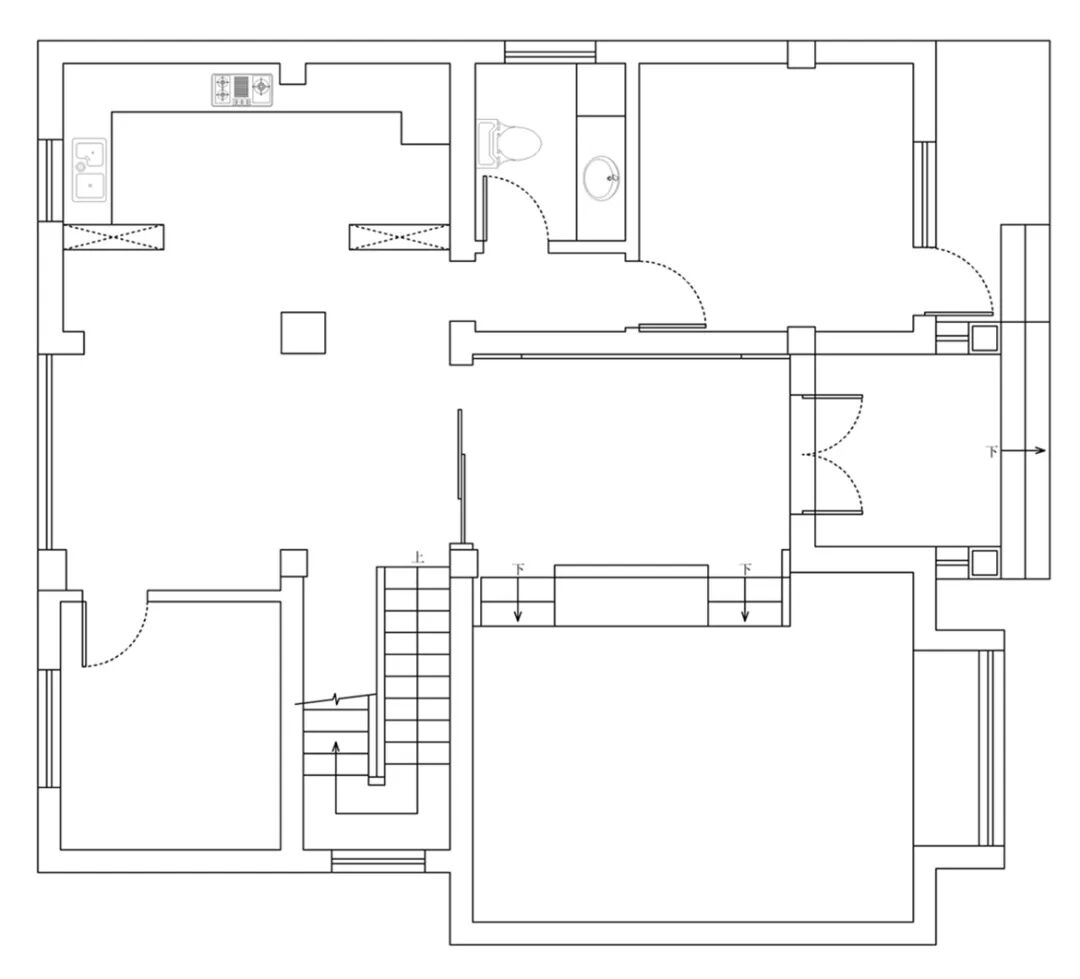
图片

二楼原始户型图

图片

二楼改造后户型图

图片

三楼原始户型图

图片

三楼改造后户型图

本案业主买的是二手现房,由于之前的装修并没有对房子的结构做充分的规划,加之常住人口不同,所以原有的空间布局与业主现在的居住需求并不完全符合。因此乐大姐团队对房子的结构做了局部改造:
①  主卧增加了一个内卫,把原来不受重视的三楼改造成两个舒适的套房。
②  一楼卫生间也增加了淋浴功能,满足一楼老人房的需求。


全景图

Panorama




图片

点击左下方“阅读原文”,即可在线免费看本案例全景图(360°)。



END


往期案例回顾


设计说·第236期 | 214㎡现代轻奢,时尚雅致!

图片

设计说·第235期 | 134㎡中古风,胶片质感的家!

图片

设计说·第234期 | 485㎡独栋别墅,灵动静美!(上)

图片

设计说·第233期 | 369㎡现代法式,轻盈浪漫!

图片

设计说·第232期 | 在418㎡新中式别墅里,诗意栖居!

图片

设计说·第231期 | 153㎡现代设计,灰调の优雅!

图片

设计说·第230期 | 680㎡新中式别墅,大雅风范!

图片

设计说·第229期 | 210㎡极简别墅,净!

图片

设计说·第228期 | 174㎡现代顶复,空间的新生!

图片


图片


如果您觉得乐大姐说的内容很有价值

欢迎分享转发至您的朋友圈

让更多的朋友都能轻松装修,自在生活!


当然,您也可以添加乐大姐微信号13390895455

或扫描下方的二维码

说出您的装修难题、让乐大姐为您答疑解惑

不管您是装修完工了

还是即将装修的

或者正在装修的

乐大姐一定知无不言,言无不尽


图片


图片
在看是一种鼓励|分享是最好支持
点击右下角 写留言 发表你的心声

我们期待与您的交流 

长按二维码添加乐大姐微信号

装修不烦 大姐来谈