乐大姐
FM104.8《家在苏州--乐大姐说装修》栏目特邀嘉宾,
为万千家庭打造幸福家居的同时,也相互成为了好朋友。任何与装修有关的问题,欢迎您添加乐大姐微信:13390895455,

每一套作品,都是私人定制

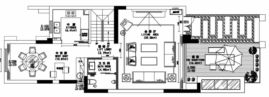
尽管,当下的家居风格层出不穷,极简风、中古风、轻奢风……,但是在这些风格之中一定有法式的一席之地。法式风格的优雅和精致,是其它任何风格也无法代替的存在。飘逸在空间内的法式风情,总是那样的迷人且优雅。今天就跟乐大姐一起来这套316㎡下叠墅感受一下法式风情吧
~
















本案业主一家,因经常出国旅行,对欧式建筑的雕花线条、装饰陈设情有独钟(之前的房子也装的欧式风格),所以这套房子仍然想装欧式。不过,考虑到本案的户型结构(每层仅70平左右,且南北不通),做欧式可能会让人觉得比较压抑、沉闷(色调相对更深、线条更繁复),再三沟通后,乐大姐团队为其量身定制了这套法式风。法式,与欧式虽同属于西方家居风格,但更轻盈、更优雅,也更适合体量不是非常大的空间。

▲ 乐大姐团队和建发泱誉业主合影留念
拍摄现场,在和乐大姐、苏州电视台《第一时间》拍摄老师等聊天的过程中,女业主说“我们家这套房子前前后后装了两年多,现在终于完美收工了。为了感谢乐大姐团队这么长时间以来的辛勤付出和给予的帮助,我很早之前就去定制了一面锦旗,送给你们来表达我的谢意。其实,我们家这次装修并不是一帆风顺的,中间也遇到过一些问题,但是不论出现什么难题,你们乐大姐团队都是以最快的速度发现问题,并用最好的方式解决问题,特别是乐大姐还亲自尽心尽力地对我们家装修方案跟施工的全过程进行推进与把关,让我感到了无比的安心、暖心!这也是为什么,我后来推荐我的朋友找你们装修,包括今天,我还带了我的闺蜜过来现场看看,她一直在纠结他们家的老别墅要不要重新装修下,看完了她对我说心动了!”

▲ 建发泱誉业主给乐大姐团队送锦旗留影


▲ 乐大姐正在拍摄苏州电视台《第一时间》解析样板房装修知识点
在装修即将竣工的一次见面中,女业主跟乐大姐说“我们家隔壁邻居已经装好了,他家的装修费用比我们家低了80万。”乐大姐说“那他们家的效果是你喜欢的吗?”女业主回道“我就喜欢豪华的感觉!邻居家的现代简约风太普通了,如果我家装成那样,我肯定会全部砸掉再重新装的!”

▲ 乐大姐正在拍摄苏州电视台《第一时间》解析样板房装修知识点

▲ 竣工验收单上业主的评语
竣工酒当天,业主带了女儿、闺蜜,还有她已经介绍给乐大姐团队装修的好朋友,还有女业主的弟弟及弟媳,这么多人,现场充满欢声笑语,热闹非凡!一次装修结缘,其实就是一辈子的牵挂……所以乐大姐团队一直坚持:一次装修,一生朋友。


END
往期案例回顾
设计说·第239期 | 142㎡原木风,温馨治愈!

设计说·第238期 | 485㎡独栋别墅,清雅悠然!(下)

设计说·第237期 | 369㎡二手别墅,改头换面!
设计说·第236期 | 214㎡现代轻奢,时尚雅致!

设计说·第235期 | 134㎡中古风,胶片质感的家!
设计说·第234期 | 485㎡独栋别墅,灵动静美!(上)
设计说·第233期 | 369㎡现代法式,轻盈浪漫!
设计说·第232期 | 在418㎡新中式别墅里,诗意栖居!

如果您觉得乐大姐说的内容很有价值
欢迎分享转发至您的朋友圈
让更多的朋友都能轻松装修,自在生活!
当然,您也可以添加乐大姐微信号13390895455
或扫描下方的二维码
说出您的装修难题、让乐大姐为您答疑解惑
不管您是装修完工了
还是即将装修的
或者正在装修的
乐大姐一定知无不言,言无不尽
我们期待与您的交流