清水江南别墅整装

设计说·第243期 | 272㎡现代叠墅,又一套量身定制的婚房!

发布时间:2024-03-22

图片

乐大姐

FM104.8《家在苏州--乐大姐说装修》栏目特邀嘉宾,

赫博别墅设计创始人之一;
多次受邀成为院校家居的授课讲师;
98年至今,
为万千家庭打造幸福家居的同时,也相互成为了好朋友。
任何与装修有关的问题,欢迎您添加乐大姐微信:13390895455
乐大姐会为您做一对一解答。


项目地点 / 吴江丽湾域(下叠)

项目面积 / 272㎡
项目风格 / 现代简约
项目性质 / 别墅整装
项目状态/ 已交付


图片


每一套作品,都是私人定制



图片


随着社会的发展,越来越多的人在装修时选择现代简约风,因为它既跟得上时代的潮流,又经久耐看不过时,还能营造出有品质的生活环境,比如说本案这套现代婚房设计,现场质感满分,不止年轻小夫妻喜欢,双方父母也十分满意,今天就跟乐大姐一起来看看吧图片~

图片
图片
图片
图片
图片
图片
图片
图片
图片
图片
图片
图片
图片
图片
图片
图片
图片
图片
图片
图片
图片
图片
图片
图片
图片
图片
图片
图片
图片
图片
图片
图片
图片
图片
图片
图片
图片
图片
图片
图片
图片
图片
图片
图片
图片
图片
图片
图片
图片

 平面方案 


图片
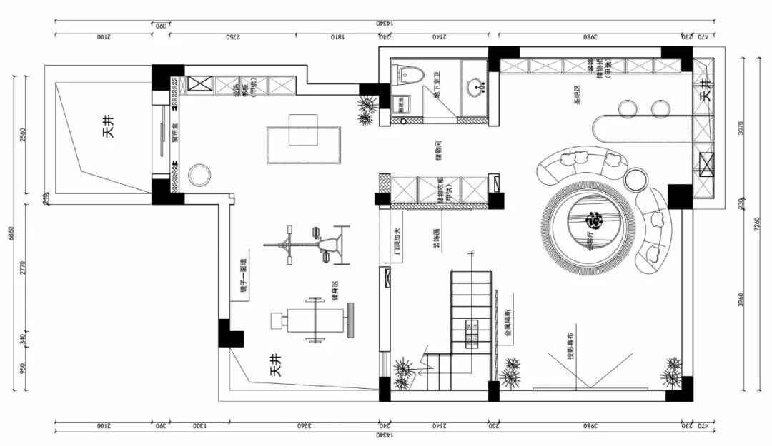
地下室原始户型图
图片
地下室改造后户型图
图片
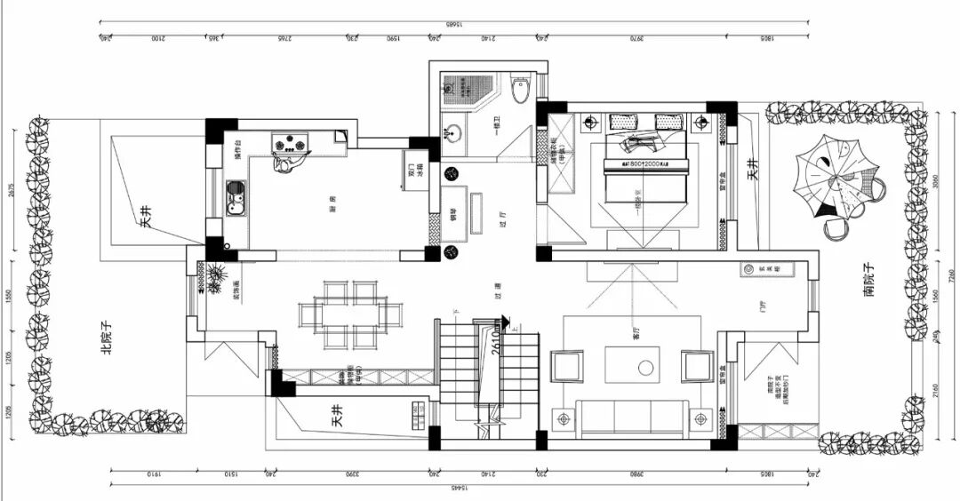
一楼原始户型图
图片
一楼改造后户型图
图片
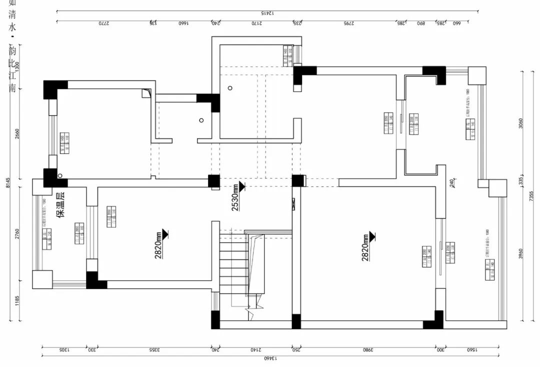
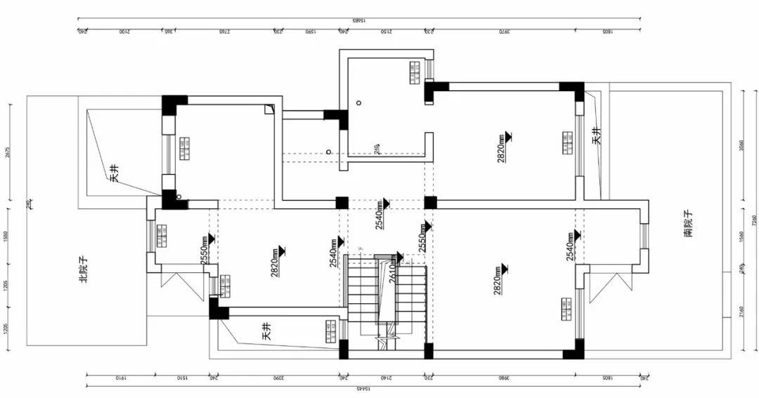
二楼原始户型图
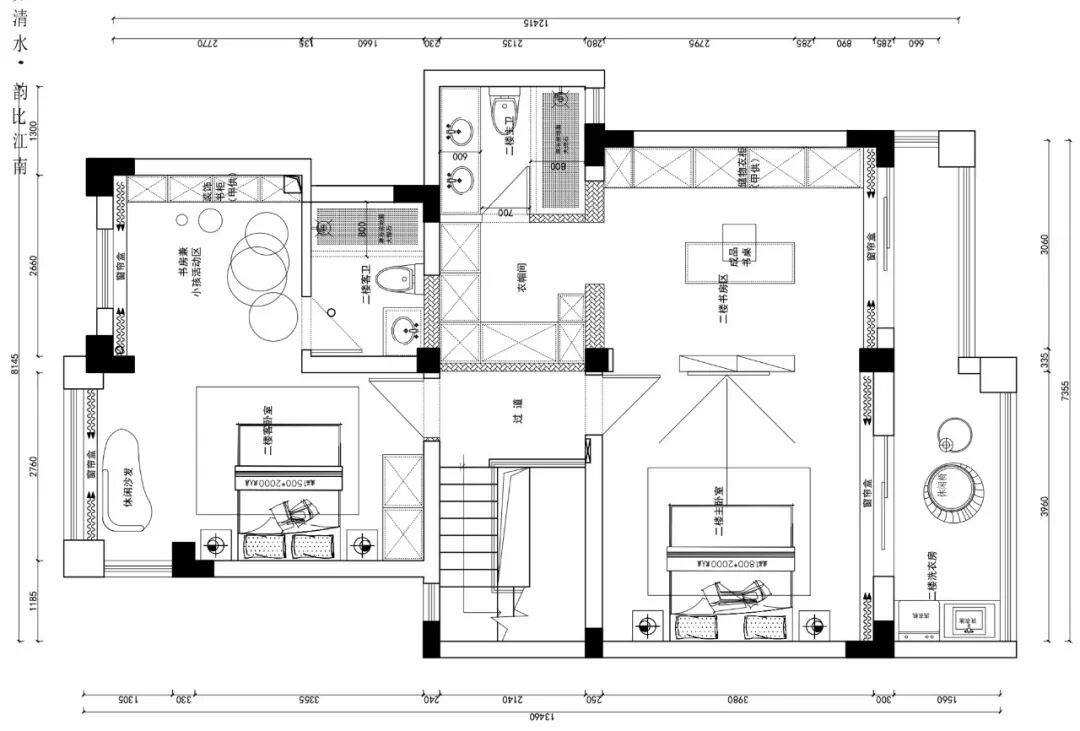
图片
二楼改造后户型图

 全景图 

图片

点击左下方“阅读原文”,即可在线免费看本案例全景图(360°)。

https://vr.justeasy.cn/view/mwu1619y3e646741-1655551817.html



图片


本案这套272㎡的下叠墅是业主给儿子准备的婚房,所以对装修的效果和品质要求很高。也因此,尽管面积不是非常大,但乐大姐团队仍尽可能地根据业主一家的需求为其量身定制了丰富的功能,不仅在地下室规划了6大功能,还打造了两个儿童房(父母希望多子多福),整套房子集生活、娱乐、休闲于一体,舒适度极高。风格上,小业主喜欢比较简洁明了的黑白灰设计,故而整体以现代简约来打造。

 满意度100% 


图片

▲ 乐大姐团队和丽湾域业主夫妇合影留念

拍摄现场,在和乐大姐、苏州电视台《第一时间》拍摄老师等聊天的过程中,女业主说我们家和乐大姐团队的缘分可以说是上天注定好的,刚开始我们想着儿子的婚房早晚都是要准备的,早点装好,要是儿子遇到心仪的对象就可以结婚直接入住了,所以就找到了乐大姐团队装修这套房子。结果,在开工的前两天我儿子和未来儿媳就第一次见面了,现在想来可谓是双喜临门!喜上加喜!然后,整个装修过程,也是十分顺利,不仅没让我们操什么心,事事想在我们前头,落地效果更是让我儿子儿媳,还有亲家都很满意。所以,竣工验收当天,即便我身体很不舒服,也坚持一定要参加,评语都是我提前打好草稿的,让我老公誊写的(当天腰疼得无法写字因为要感谢乐大姐团队的方面太多了,写评语的地方都写不下了,他现场还给精简了很多!


图片
▲ 乐大姐正在拍摄苏州电视台《第一时间》解析样板房装修知识点
竣工酒当天,业主的亲家也出席了,说到女儿女婿婚房的装修,她表示”真的是没有比较就没有伤害,看了女儿女婿的这套婚房,我才知道什么叫专业的装修团队,现场每次我来都是干干净净的,根本不像天天在施工的样子。其实,我们自己的房子也在这个小区,也有二百多平,前几年刚装修的,前后弄了两年多,时间长就不说了,关键工地现场脏兮兮的我都不想去,加上当初没有系统的设计,效果实在不怎么样,特别是在看了这套婚房后,觉得自己家的色彩也太多了,有点杂乱无章的感觉。所以,这套房子,不仅亲家看了喜欢,我看了也很喜欢!

图片

▲ 乐大姐正在拍摄苏州电视台《第一时间》解析样板房装修知识点

图片

▲ 竣工验收单上业主的评语


竣工酒现场,业主夫妻俩,还有亲家和乐大姐相谈甚欢,从装修聊到孩子,从孩子聊到夫妻,从夫妻聊到父母,聊到工作……,畅所欲言,无所不聊。而业主对乐大姐团队发自内心的表扬及所有工作的肯定,让乐大姐团队非常有成就感,觉得所有的付出都是值得的!

图片

图片
▲ 丽湾域业主夫妇设宴宴请乐大姐团队贺竣工之喜

再次感恩业主
对乐大姐团队的信赖与认可
您的新家落成
 我们来见证幸福、兑现承诺。
当梦想变成现实,家有了情感,
我们的缘分也有了新的定义,
竣工才是我们服务的开始,
时间是检验我们服务的试金石。
我们一定不会辜负您的这份信任!

END


往期案例回顾


设计说·第235期 | 134㎡中古风,胶片质感的家!

图片

设计说·第234期 | 485㎡独栋别墅,灵动静美!(上)

图片

设计说·第233期 | 369㎡现代法式,轻盈浪漫!

图片

设计说·第232期 | 在418㎡新中式别墅里,诗意栖居!

图片

设计说·第231期 | 153㎡现代设计,灰调の优雅!

图片

设计说·第230期 | 680㎡新中式别墅,大雅风范!

图片

设计说·第229期 | 210㎡极简别墅,净!

图片

设计说·第228期 | 174㎡现代顶复,空间的新生!

图片


图片


如果您觉得乐大姐说的内容很有价值

欢迎分享转发至您的朋友圈

让更多的朋友都能轻松装修,自在生活!


当然,您也可以添加乐大姐微信号13390895455

或扫描下方的二维码

说出您的装修难题、让乐大姐为您答疑解惑

不管您是装修完工了

还是即将装修的

或者正在装修的

乐大姐一定知无不言,言无不尽


图片


图片
在看是一种鼓励|分享是最好支持
点击右下角 写留言 发表你的心声

我们期待与您的交流 

长按二维码添加乐大姐微信号

装修不烦 大姐来谈