清水江南别墅整装

设计说·第244期 | 240㎡新中式联排,拾韵江南,雅韵东方!

发布时间:2024-03-27

图片

乐大姐

FM104.8《家在苏州--乐大姐说装修》栏目特邀嘉宾,

赫博别墅设计创始人之一;
多次受邀成为院校家居的授课讲师;
98年至今,
为万千家庭打造幸福家居的同时,也相互成为了好朋友。
任何与装修有关的问题,欢迎您添加乐大姐微信:13390895455
乐大姐会为您做一对一解答。


项目地点:兰亭苑(联排)

项目面积:240㎡+院子33㎡

项目风格:新中式

项目性质:别墅整装

项目状态:正在施工


每一套作品,都是私人定制








写在前面的话

The Words Written In Front




本案这套联排别墅,属于老房重装,因为之前的装修时间太长,上去有些过时、简陋,虽说当初是花了大代价装的,但与现在业主一家人对品质生活的追求不符,好多基础设施都老化了,需要重新装修。

风格上,女业主比较喜欢苏式园林的感觉,但又不想太复杂,故乐大姐团队为其量身定制了这套新中式作品。说来,本案是业主和乐大姐团队的再次合作了,三四年前的一套平层业主也是找乐大姐团队装的,因为省心、效果好,这次依然选择了乐大姐团队。





图片


图片


图片


图片


这个家中的每个空间,都有着它相对应的场景,叙述着每日的家常点滴,像一幅逐步展开的卷轴,随着周围景物的递变,可看到家庭成员们在不同空间的互动关系⋯⋯
客厅主背景墙以古代的亭台楼阁为主题概念,采用圆弧环抱式设计,深浅的层次恰如书卷气质的当代表达,将风雅清幽娓娓道来,又似一扇屏风展现了空间的雅致格调。两侧的深色胡桃木,使空间更加沉稳大气。中间的灯光设计,让整个背景更立体,也更富有层次感。

图片

图片


电视背景两侧采用深度10公分的“V”字造型框,从而将正中的中式水墨纹理岩板凸显了出来,空间因此显得更加挺拔大气。

吊顶造型的设计灵感来源于中式屋檐,高低错落的坡形收口,几何化的硬朗线条,融合了现代与古典的气质,诉说着时光交错的高光时刻。值得一提的是,设计老师利用四周的灯光槽做了中央空调的回风口,从而巧妙地将其隐藏了起来,真正做到了见风不见机的效果。


图片

图片


楼梯的改造,破费了番心思。设计老师利用原楼梯与墙之间的错层距离做了第一踏,并直接延伸至楼梯内部,打造了一个景观平台,如此不仅增加了楼梯的观赏性,还化解了墙体阳角对着客厅的尴尬,让人眼前一亮。


图片


这里是车库到客厅的必经之路,但车库与客厅之间有40cm的落差,原楼梯则位于车库中,加上顶面还有根大梁,这就导致从车库到客厅要弯着腰进出,很是不便。故重新设计时,将楼梯做了转向,并将原楼梯留下的空间下挖40cm做成踏步到客厅,原有问题迎刃而解





图片


图片


图片


图片


开放式厨房的设置,打破了原有空间的桎梏,与餐厅连接,自然形成洄游动线,将生活的烟火气、艺术的气韵、自然的丰盈融于空间,从而消弭不同功能区域的疏离感。


图片
图片

餐厅,选用了圆形的大理石餐桌、深色的中式餐桌椅,给人一种大气稳重的质感。搭配暖色的调和,营造出一种温馨的用餐氛围。
餐边柜内部的台面设计,别具一格。松烟晕染的水墨岩板嵌入其中,在灯光的映射下,宛如国古典园林的窗景,描绘出东方的神韵。





图片


图片


图片


主卧总是设计泼墨的重点,简雅意趣的线条和玄墨素朴的勾勒与渲染,将整个休憩空间定格在含蓄恬适的画境中,一点朱红,几株青绿,令人有种享不尽的诗意与安然之感。


图片

图片

图片



每一隅的摆设都颇具特色,始终紧贴着自然与东方的主题,每一处,都给人一种和而不同的感觉。


图片

图片


原主卧虽有内卫,但其同时也是二楼的公卫,使用起来不是很方便。故重新规划时,将原主卫门封掉,并将主卧的大门往内推进65公分,做了一整面墙的嵌入式柜子,这样不止化解了原装修所存在的隐私问题,还解决了储物空间小的难题,一举两得





图片


图片


图片



图片

图片



整个三楼作为儿子的私人空间,更是一份惊喜。设计老师运用素雅的灰色作为基底,为空间注入悠然柔和的情绪,同时也弱化了原有斜顶带来的压抑感。搭配床头背景上中国水墨画的剪影寥寥数笔,却勾勒出无限意象。
顶面的线性灯&轨道磁吸灯,提亮空间的同时,还将传统风韵与现代质感融合在一起,让更多的美学文化元素产生惊喜碰撞。

图片
图片
图片


窗帘错落有致,随风摇动,薄纱材质清新淡雅,不染烟尘,简洁的设计却能带来丰富的空间体验


图片


简洁静谧、干净利落是书房设计的关键词。宽敞明亮的窗户,透过轻盈的折叠窗帘引入自然采光,一整面墙从底到顶的展示柜/书柜,展示着主人所集。靠墙的悬浮式书桌,赋予空间更多的便利与灵气。


图片
图片
图片

三楼主卫以丰富的层次肌理呈现开阔旷达的布局,功能的循序递进则颇具仪式感。中式挂画与木质台盆柜的设色,为空间带来一丝雅致。




图片


图片


本案院子的面积不大,故设计时整合了业主喜爱的苏式园林和现代两种风格,整体看上去既精致有趣又时尚高级。双开的大门,将国人的归家礼制表现得淋漓尽致。右侧的地台,是家人闲暇时的好去处。山石花木的布置,恰似画境深幽的江南庭院,吸引着来访者的视线。



平面方案

Flat Plan




图片
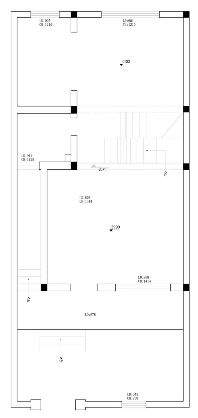
车库原始户型图

图片
车库改造后户型图
图片
一楼原始户型图
图片
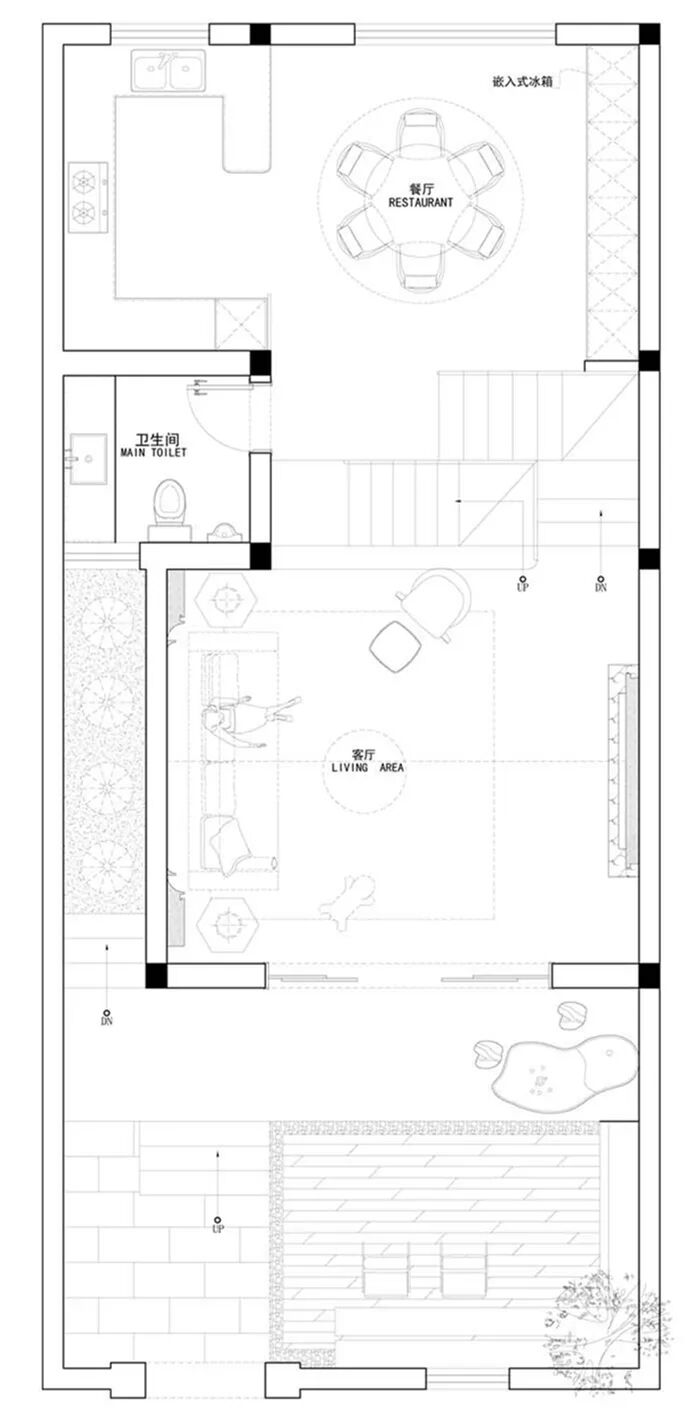
一楼改造后户型图
图片
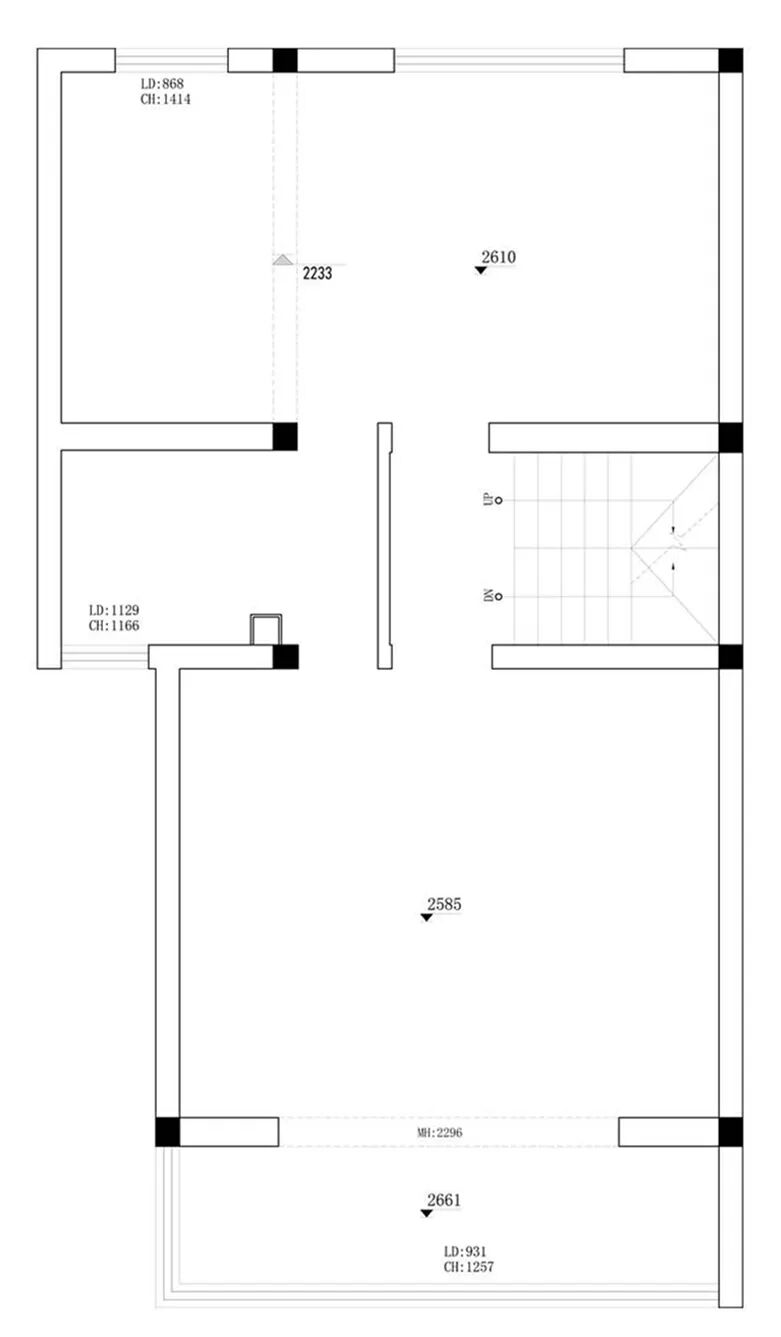
二楼原始户型图
图片
二楼改造后户型图
图片
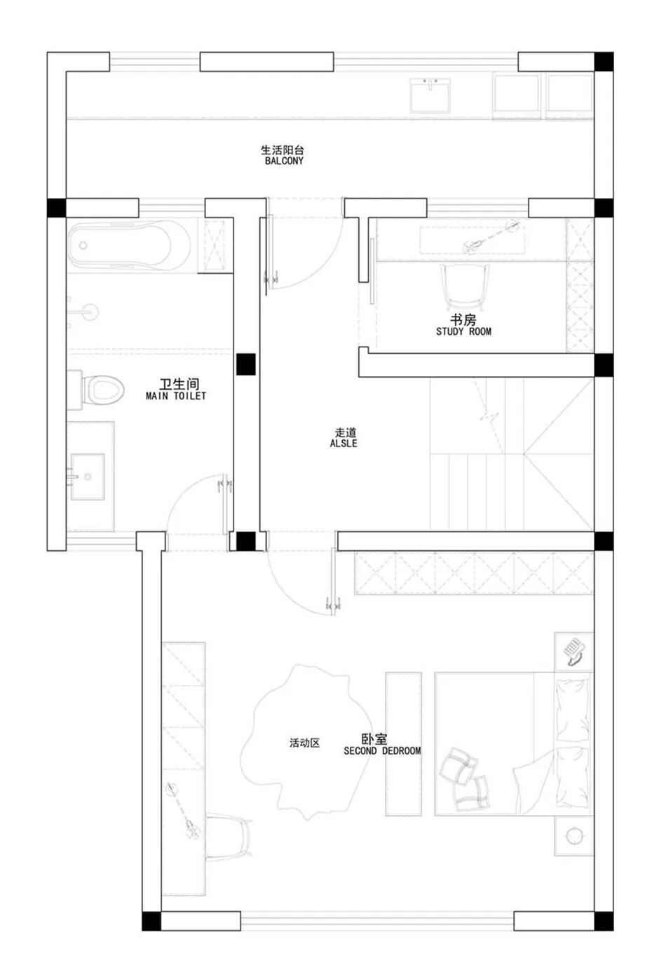
三楼原始户型图
图片
三楼改造后户型图

本案这套联排别墅,是以前经典的错层布局,没有地下室,仅在一楼有个车库,重新规划时保留了车库的功能,同时增设了棋牌室。不过,考虑到空间感,将车库与棋牌室之间的非承重墙做了拆除,这样既扩大了室内的视野,又加大了空间之间的关联性。

 一楼的主要改动在南面大门的格局调整以及车库入户的楼梯改造,把原有的防盗门改为符合现在审美的大型落地移门,从而大大改善了整个客厅的通风、采光。其次,厨房采用了开放式设计,这样不仅使餐厅与厨房之间能更好地相互融合,还增加了餐厨区域的空间感。

③ 业主提出二楼要保留两个房间,一个主卧,一个客房,可这样一来卫生间就显得不太够用了,但业主又不想再增加卫生间。故设计老师把原卫生间做了干湿分离的处理,以增强实用性,而主卧的开门则做了内收,两侧整排的嵌入式衣柜极大增加了主卧室的储物空间。

④ 三楼是给孩子居住的,所以采用了套房设计。同时,乐大姐团队设计老师将原本的小储物间改造为书房以及多功能室,丰富了小业主的生活功能。北面的阳台,则打造成了阳光房,家中所有的换洗全部在此完成。



全景图

Panorama



图片

点击左下方“阅读原文”,即可在线免费看本案例全景图(360°)。

https://vr.justeasy.cn/view/17h0s3677tc338l7-1703917881.html


END


往期案例回顾


设计说·第243期 | 272㎡现代叠墅,又一套量身定制的婚房!

图片

设计说·第242期 | 155㎡老房改造,不将就的家!

图片

设计说·第241期 | 300㎡联排别墅,婚房般的养老房!

图片

设计说·第240期 | 316㎡下叠墅,法式浪漫!

图片

设计说·第239期 | 142㎡原木风,温馨治愈!

图片

设计说·第238期 | 485㎡独栋别墅,清雅悠然!(下)

图片

设计说·第237期 | 369㎡二手别墅,改头换面!

图片
设计说·第236期 | 214㎡现代轻奢,时尚雅致!图片


图片


如果您觉得乐大姐说的内容很有价值

欢迎分享转发至您的朋友圈

让更多的朋友都能轻松装修,自在生活!


当然,您也可以添加乐大姐微信号13390895455

或扫描下方的二维码

说出您的装修难题、让乐大姐为您答疑解惑

不管您是装修完工了

还是即将装修的

或者正在装修的

乐大姐一定知无不言,言无不尽


图片


图片
在看是一种鼓励|分享是最好支持
点击右下角 写留言 发表你的心声

我们期待与您的交流 

长按二维码添加乐大姐微信号

装修不烦 大姐来谈