清水江南别墅整装

设计说·第246期 | 144㎡精装改造,设计不拘一格!

发布时间:2024-03-27

图片

乐大姐

FM104.8《家在苏州--乐大姐说装修》栏目特邀嘉宾,


赫博别墅设计创始人之一;
多次受邀成为院校家居的授课讲师;
98年至今,
为万千家庭打造幸福家居的同时,也相互成为了好朋友。
任何与装修有关的问题,欢迎您添加乐大姐微信:13390895455
乐大姐会为您做一对一解答。



项目地点:璟萃雅园

项目面积:144㎡

项目风格:现代简约

项目性质:精装修软装搭配

项目状态:正在施工



每一套作品,都是私人定制








写在前面的话

The Words Written In Front




本案是套精装房,但是开发商打造的原有格局和风格(中式)业主一家人都不喜欢,加上这套房子是准备长久自主的,所以业主就找到了乐大姐团队进行局部改造+软装搭配,想打造完全代表自己及家人的属性空间。

设计上,业主提出“断舍离”三字,舍弃原有装修,舍弃传统的格局,舍弃多余的柜体。同时,不追求形式上的极致简约,希望在精炼的质感空间中,有让人惊喜的角落。





图片


图片


图片


图片


人是空间的主角,乐大姐团队的设计更加注重围绕人的感受展开,串联空间布局,修饰室内体块,以实现功能与美学的统一,让居者身处其中能够体验到高质量的生活品质。

因家中有个小朋友正是读书的年纪案客厅取消了电视,改成了可双面坐的积木款沙发布置,既放松休闲,空间也更宽敞,不拘一格。原有的大横厅格局,不止消弭了客餐厅的边界,功能空间之间得以自由切换,还加强了家庭成员间的互动交流。


图片

图片


客厅墙面,是空间中最硬朗也最柔情的地方。长城板与艺术漆的组合,配色干净大气,线条简洁利落,展现出线与面的和谐之美。而其间的叠级处理+氛围灯设计,则为空间注入跃动的灵魂,散发着家的温度,也点亮了对于美好生活的期待。

超大面宽的阳台西侧,并没有用柜子将其全部封起来,而是让开了窗户,做了室内景观角处理。这样阳台不止是阳台,还是一个小花园。


图片

图片


因客厅原精装的地板换成了地砖,所以设计时在餐厅增设了岛台功能,增加了电源,这样不论是吃火锅还是用电都很方便,岛平时也可以放放果盘、零食招待客人,一举多得


图片


本案进门的空间虽然比较狭长,但设计老师在这里利用仅0.37㎡的空间打造了一个绿植景观,搭配顶面的软膜灯光倾斜而下,一下子将这小小角落点亮归家的余光处,盛满惊喜。





图片


图片


不同区域之间,用相同的色调唤起空间连贯性的记忆。通透的灰玻,引光入室的同时,还极大改善了空间的通透性与互动性。




图片


图片


图片


图片


对于主卧的理解,业主希望是一个完全纯粹的休憩之所。于是,设计老师以大面积的纯白和平铺直述的线条来表达静谧纯净的氛围,令居者不自觉地放下身心,轻启每一个美好清晨。

图片

图片


结构上,从原始布局介入思考,首先将主卧门正对着的床头背景区打造成梳妆台,既实用又精致。其次,把内卫的门洞改至侧面,从而避免门正对着床的尴尬,而原门洞位置则规划了一整排柜子,以补充梳妆台的收纳展示功能。


图片

本案常住人口仅业主一家三口,不需要那么多的房间,故设计时将北次卧纳入到了主卧,打造成了独立的衣帽间。





图片


图片


图片


现代的优雅质感与梦幻的童趣元素相结合,给孩子带来一种视觉上的唯美,让其陶醉在柔软放松的房间里。

边上的书桌,借助飘窗空间延长桌面,既增加了收纳,也方便孩子学习看书写字。


图片

图片



平面方案

Flat Plan




图片

一楼原始户型图

图片
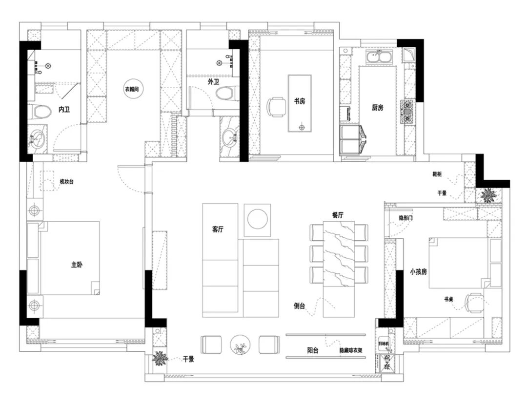
一楼改造后户型图

  • 本案是套精装房,为了避免浪费,乐大姐团队是在原有精装的基础上进行户型改造+软装搭配,所以改动的地方并不多。
  • 考虑到本案常住人口仅业主一家三口,只需两个卧室,将北次卧纳入到了主卧套房,打造成独立衣帽间。而原北次卧的门则封掉,并依此做了一整排的收纳柜。
  • 原户型中主卫的开门是正对着床的,比较尴尬,故设计时将其改至了侧面。



全景图

Panorama




图片

点击左下方“阅读原文”,即可在线免费看本案例全景图(360°)。

https://vr.justeasy.cn/view/17x6k99074l3x310-1703991258.html



END


往期案例回顾


设计说·第245期 | 208㎡昆山大平层,现实版“胡桃夹子和四个国王”!

图片

设计说·第244期 | 240㎡新中式联排,拾韵江南,雅韵东方!

图片

设计说·第243期 | 272㎡现代叠墅,又一套量身定制的婚房!

图片

设计说·第242期 | 155㎡老房改造,不将就的家!

图片

设计说·第241期 | 300㎡联排别墅,婚房般的养老房!

图片

设计说·第240期 | 316㎡下叠墅,法式浪漫!

图片

设计说·第239期 | 142㎡原木风,温馨治愈!

图片

设计说·第238期 | 485㎡独栋别墅,清雅悠然!(下)

图片


图片




如果您觉得乐大姐说的内容很有价值

欢迎分享转发至您的朋友圈

让更多的朋友都能轻松装修,自在生活!


当然,您也可以添加乐大姐微信号13390895455

或扫描下方的二维码

说出您的装修难题、让乐大姐为您答疑解惑

不管您是装修完工了

还是即将装修的

或者正在装修的

乐大姐一定知无不言,言无不尽



图片


图片
在看是一种鼓励|分享是最好支持
点击右下角 写留言 发表你的心声

我们期待与您的交流 


长按二维码添加乐大姐微信号

装修不烦 大姐来谈