清水江南别墅整装

设计说·第248期 | 300㎡老别墅重装,绽放经典魅力!

发布时间:2024-04-16

图片

乐大姐

FM104.8《家在苏州--乐大姐说装修》栏目特邀嘉宾,

赫博别墅设计创始人之一;
多次受邀成为院校家居的授课讲师;
98年至今,
为万千家庭打造幸福家居的同时,也相互成为了好朋友。
任何与装修有关的问题,欢迎您添加乐大姐微信:13390895455
乐大姐会为您做一对一解答。


项目地点:新港名墅花园(联排)

项目面积:300㎡

项目风格:新中式

项目性质:别墅整装

项目状态:正在施工


每一套作品,都是私人定制








写在前面的话

The Words Written In Front



本案属于老别墅改造,之前的装修已经有几十年了,很是老旧,毫无美感可言,布局也十分合理,且一直是出租的状态。业主考虑到现在孩子长大了(正在上大学),就找到关注已久的乐大姐团队,想把这套房子重新装修下给儿子做未来的婚房。


设计上,以儿子的意见为主,打造成了新中式风格。同时,业主提出两点要求,一是要有品质感,二是性价比要高,那么该如何设计才能以最少的费用呈现出业主心中的理想家呢?最终乐大姐团队的设计效果呈现出来,业主一家非常满意,觉得简直是无可挑剔!





图片


图片


图片


图片


别墅空间的布局,最是讲究舒朗开阔,需要精心且有全局观的规划,才能实现各区域间的自然过渡与功能优化,为居者带来宽广视野与自在的生活品质。

而本案原户型中一楼公区被实墙分割成了若干小空间,显得既零碎又局促,所以乐大姐团队设计老师将非结构性的实墙全部拆除,对空间进行重新整合规划,打造了一个开间长达7.4m的大横厅,包含门厅、客厅、开放式书房、钢琴区四大功能,极大地提升了空间的连续性、开放性和实用性,尽显大宅气派。

图片


图片


本案小业主提出想将之前家里自己喜欢的几样东西保留下来,其中之一就是鱼缸,希望可以放在进门口的位置,如此回家后就能看到。


正好一楼公区经改造变成了进门即见厅的格局,隐私性较差,为此我们在门厅与客厅之间增设了一面夹绢玻璃做入户端景,并将缸放在此,这样既可避免户型上一眼望到底的尴尬,又不影响空间的通透性,关键的是坐在沙发上还能透过玻璃隔断欣赏到鱼缸中鱼儿自由自在的游弋,别有一番趣味


图片


图片


小主人提出的第二个点是,自己的钢琴也要有一个专属的位置。设计老师综合考量将其安排在了入户的过道位置,这样的布局不仅让来访者一进门便能感受到家中流淌着的浪漫氛围,还使过道空间有了视觉落脚点,从而弱化了原结构中梁柱的突兀感,十分巧妙。


图片


图片


本案的主打风格虽是新中式,但并没有做过多繁复的造型,仅以干净素雅的线条、精选的东方细节元素,营造出宁静而淡泊的空间氛围,给人一种本真如一、纯净平和的居住体验。




图片


图片


图片


图片


由原厨房改造而来的餐厅,面积并不大,仅15㎡,却位于客厅与厨房大动线的中点,兼具着过道功能,故不论是餐桌还是背景设计,都需精准拿捏尺寸,以“简”为主。


图片


图片


同时,一幅占据整面墙的中国古建筑壁画,以其浓重的色彩和细腻的笔触,为空间注入了浓厚的文化底蕴,使得餐厅不再仅仅是用餐的地方,更是一处可以感受东方韵味与审美情趣的艺术空间。





图片


图片


图片


图片


改造后的厨房,一改原结构的局促,满足了烹饪爱好者的所有想象


18.4㎡的奢侈尺度,中西厨的配置,超长的操作台面,嵌入式电器,单独的储藏室,优越的采光面,配合纹理丰富的釉面砖和高品质的木质橱柜,不止实用性满满,还散发着时尚与优雅。


图片


图片


图片





图片


图片


图片


图片


二楼主卧作为业主夫妻以后长期居住的空间,设计上以他们喜欢的新中式来打造。简约而富有情趣的屏风背景造型,搭配素雅的墨竹渲染,营造出一种静谧而内敛的休憩氛围。

一抹青绿的点缀,打破单一色调的沉闷,赋予空间无尽的活力与诗意。

图片


阳台一隅,是休闲时光的理想之地。手捧一杯清茶,翻阅一本好书,沐浴在温暖的阳光下,享受慵懒而宁静的时刻。




图片


图片


图片


图片


客房精选柔和布艺,通过色彩和质感的巧妙搭配,营造出温馨舒适的氛围,为客人打造了一个理想的憩息之所。





图片


图片


图片


图片


图片


整个三楼除了儿童房,其他空间全部规划为儿子套房,内有静谧的睡眠区、惬意的休闲区、专注的书房、便利的卫生间,超大的空间尺度,齐全的功能配置,确保了未来生活的便捷与极致舒适。


图片

图片


图片


考虑到儿子房是作为婚房来规划的,为了给未来女主人留出足够的个性化空间,硬装以简约为主,这样后期小夫妻可以通过更换软装,轻松给婚生活增添专属他们的甜蜜与温馨。


同时,墙上的宫墙红挂画,巧妙地将儿子的私人领域与一楼公区连接了起来,增强了整体空间的和谐感。


图片

图片

图片


绿色的书桌、红色的开放格,跳色的大胆运用,带来了丰富的视觉层次,也让空间更富有生活情感和时尚活力,不至于单调。


图片


图片


三楼主卫采用现代简洁的设计语言,精选材质与家具,从细节之处彰显居者对精致生活的深刻理解,为日常生活增添舒适与温度。


图片


图片





图片


图片


因父母希望多子多福,加上不知道未来baby的性别,就在二楼和三楼分别设置了一个男孩房&一个女孩房。其中,男孩房以“探索太空”为主题,巧妙融合科技蓝和航天元素,将现实与孩童梦想紧密相连,激发孩子对宇宙的好奇与向往。


图片


女孩房整体的格调,清甜软糯,纯净的白色、温馨的奶白色搭配柔和的淡粉色、清新的淡绿色,恰似春日里和风轻抚过的温柔,让人心都随之融化了,彰显出女孩的灵秀与温柔。



平面方案

Flat Plan




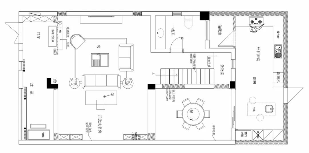
图片
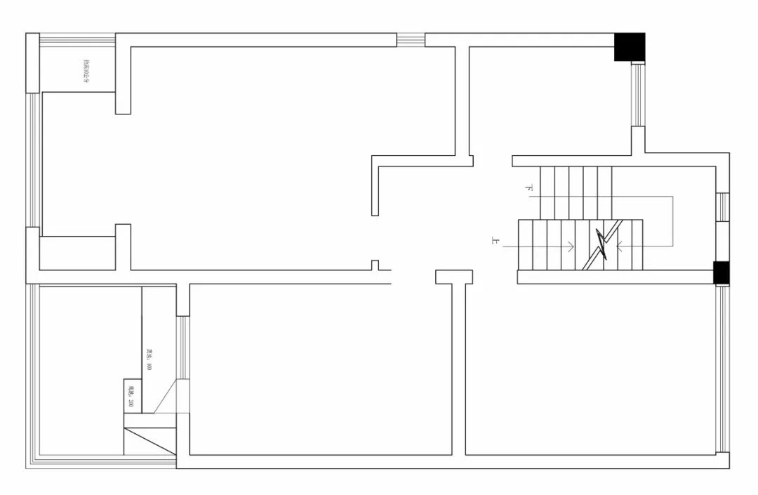
一楼原始户型图
图片
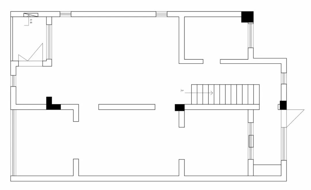
一楼改造后户型图
图片
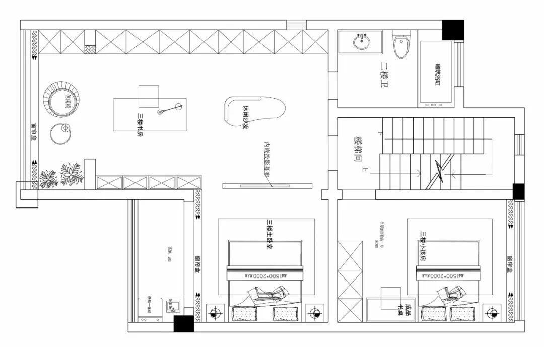
二楼原始户型图
图片
二楼改造后户型图
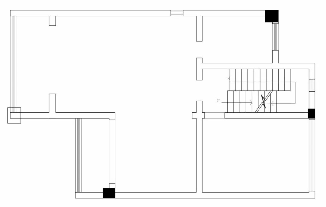
图片
三楼原始户型图
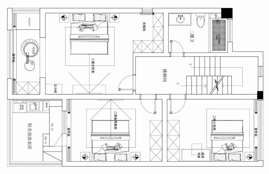
图片
三楼改造后户型图
 本案这套联排老别墅,上下总共三层,其中一楼是公共区域,二楼是业主夫妻的活动空间,三楼则全部是儿子的私人领域,动静分开,功能齐全,十分宜居。
 本案的户型改造主要集中的一楼公区,一楼原户型稍显杂乱缺乏联排别墅的宏伟气势,所以乐大姐团队设计老师对其进行了大胆改造,拆除多余的非承重墙,采用开放式设计,有效拓展并统一空间,大大增强了别墅的宽敞感和气派。


全景图

Panorama




图片

点击左下方“阅读原文”,即可在线免费看本案例全景图(360°)。


END


往期案例回顾


设计说·第247期 | 430㎡联排别墅,暖暖的美式风情!

图片

设计说·第246期 | 144㎡精装改造,设计不拘一格!

图片

设计说·第245期 | 208㎡昆山大平层,现实版“胡桃夹子和四个国王”!

图片

设计说·第244期 | 240㎡新中式联排,拾韵江南,雅韵东方!

图片

设计说·第243期 | 272㎡现代叠墅,又一套量身定制的婚房!

图片

设计说·第242期 | 155㎡老房改造,不将就的家!

图片

设计说·第241期 | 300㎡联排别墅,婚房般的养老房!

图片


图片



如果您觉得乐大姐说的内容很有价值

欢迎分享转发至您的朋友圈

让更多的朋友都能轻松装修,自在生活!


当然,您也可以添加乐大姐微信号13390895455

或扫描下方的二维码

说出您的装修难题、让乐大姐为您答疑解惑

不管您是装修完工了

还是即将装修的

或者正在装修的

乐大姐一定知无不言,言无不尽


图片


图片
在看是一种鼓励|分享是最好支持
点击右下角 写留言 发表你的心声

我们期待与您的交流 

长按二维码添加乐大姐微信号

装修不烦 大姐来谈