清水江南别墅整装

设计说·第250期 | 202㎡叠墅失败案例之“峰回路转”!

发布时间:2024-05-12

图片

乐大姐

FM104.8《家在苏州--乐大姐说装修》栏目特邀嘉宾,

赫博别墅设计创始人之一;
多次受邀成为院校家居的授课讲师;
98年至今,
为万千家庭打造幸福家居的同时,也相互成为了好朋友。
任何与装修有关的问题,欢迎您添加乐大姐微信:13390895455
乐大姐会为您做一对一解答。



项目地点 / 狮山原著(中叠)

项目面积 / 202㎡
项目风格 / 现代简约
项目性质 / 别墅改造+软装搭配
项目状态/ 已交付


图片


每一套作品,都是私人定制



图片


梵高曾经说过“没有不好的色彩,只有不好的搭配”。在家装中,我们搭配的不仅仅是设计造型,还有色彩、材料等,不同的搭配会给人完全不同的感觉。比如说本案这套装修失败案例,乐大姐团队通过设计化腐朽为神奇,让连新家住都不想住的业主,看到落地效果后想立刻马上就搬家,那么今天就跟乐大姐一起来看看它的成品现场吧图片~

图片

图片

图片

图片

图片

图片

图片

图片

图片

图片

图片

图片

图片

图片

图片

图片

图片

图片

图片

图片

图片

图片

图片

图片

图片

图片

图片

图片

图片

图片

图片

图片

图片

图片

图片

图片

图片

图片

图片

图片

图片

图片



 平面方案 


图片
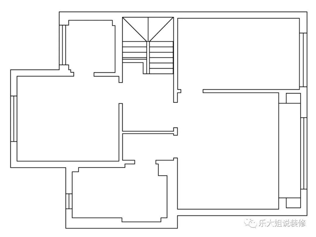
一楼原始户型图
图片
一楼改造后户型图
图片
二楼原始户型图
图片
二楼改造后户型图


 改造前后对比 


 全景图 


图片
点击左下方“阅读原文”,即可在线免费看本案例全景图(360°)。


图片

本案虽是套毛坯房,但并不是第一次装修了,四年前就已经在装了,只不过最终的效果业主小夫妻非常不满意,装好了都不想搬进去。最终,找到乐大姐团队做局部改造+软装搭配,改造后业主觉得乐大姐团队的设计简直是化“腐朽”为“神奇”,这才是他们想要的家!


 满意度100% 


图片

▲ 乐大姐团队和狮山原著业主合影留念

拍摄现场,在和乐大姐等聊天时业主小两口说“我们家这套房子,说起来可能很多人都不敢相信,在短短四、五年的时间里竟然装了两次!而且这两次装修我们的感受大不相同,简直是没有对比就没有伤害!第一次装修是2019年开工的,中间一直拖,一直改,后来好不容易装到了只要买点东西就能入住了,但我们却一点搬进去住的欲望都没有。因为装得太土太刻板了,一点都不适合我们年轻人。可以说第一次装修我们是一路被忽悠过来的,因为我们本来就不懂装修,加上装修的人连设计效果图都没出,给我们选材料更是搞笑,拿着几块小样就让做决定。中间我们几次质疑,他们都说等最后效果出来了我们就喜欢了。可越装我们越讨厌,过程磕磕绊绊,拆拆改改,最后他们跟我们说可以进家具了,我俩傻眼了,想到未来就住在这种环境里,我们坚决不接受!”


图片

▲ 乐大姐正在拍摄苏州电视台《第一时间》解析样板房装修知识点

业主小夫妻俩接着说道“就这样停了三年,最后我们想到找你们乐大姐团队帮忙解决问题,果然不失我们所望,乐大姐团队真正让我们感受到了专业、省心。施工之前就先给我们出了一整套图纸及效果图,确认我们都很喜欢之后才开工改造,过程中我们几乎没怎么到现场,最后落地效果跟设计效果图几乎一模一样,我们看了都非常喜欢。我把竣工现场的视频发给我妈妈看,妈妈也很喜欢,连读幼儿园的儿子也特别喜欢他自己的房间。接下来就准备快乐地搬家啦!”


图片

▲ 乐大姐正在拍摄苏州电视台《第一时间》解析样板房装修知识点

本案设计师说 “是的,我们量房时发现现场确实有很多地方不合理,比如一楼客餐厅不仅地面是黑色的地砖,就连吊顶四周居然都用很粗的黑线条做了围边,压抑感、割裂感特别强,一进门视线全在顶上;主卧的动线也很不合理,必须把主卧门打开后才能开衣帽间的门;虽说业主小夫妻喜欢比较酷的黑色系,但由于之前装修时没有整体的设计规划,所以整套房子的色调没有主次之分,甚至显得很沉闷。重新设计规划后,我们在黑色的主色调基础上,穿插了白色和灰色,从而改变了空间的色彩配比,大大增加了通透性和轻盈感;二楼衣帽间的双门洞设计,使得动线更加合理的同时,空间的美观性也有了翻天覆地的变化。业主小夫妻也从原来的看到房子不想住到现在迫不及待地想要入住。


图片

▲ 竣工验收单上业主的评语

图片

▲ 狮山原著业主夫妇设宴宴请乐大姐团队贺竣工之喜


有感:



装修一定要根据居住人员的实际需求量身定制,才能真正适合,要不然就会走弯路,花冤枉钱。

——by乐大姐

图片


END


往期案例回顾


设计说·第249期 | 150㎡复古美式,终生浪漫的开始!

图片

设计说·第248期 | 300㎡老别墅重装,绽放经典魅力!

图片

设计说·第247期 | 430㎡联排别墅,暖暖的美式风情!

图片

设计说·第246期 | 144㎡精装改造,设计不拘一格!

图片

设计说·第245期 | 208㎡昆山大平层,现实版“胡桃夹子和四个国王”!

图片

设计说·第244期 | 240㎡新中式联排,拾韵江南,雅韵东方!

图片

设计说·第243期 | 272㎡现代叠墅,又一套量身定制的婚房!

图片

设计说·第242期 | 155㎡老房改造,不将就的家!

图片


图片



如果您觉得乐大姐说的内容很有价值

欢迎分享转发至您的朋友圈

让更多的朋友都能轻松装修,自在生活!


当然,您也可以添加乐大姐微信号13390895455

或扫描下方的二维码

说出您的装修难题、让乐大姐为您答疑解惑

不管您是装修完工了

还是即将装修的

或者正在装修的

乐大姐一定知无不言,言无不尽


图片


图片
在看是一种鼓励|分享是最好支持
点击右下角 写留言 发表你的心声

我们期待与您的交流 

长按二维码添加乐大姐微信号

装修不烦 大姐来谈