清水江南别墅整装

设计说·第252期 | 487㎡新中式联排,四季观景,邂逅东方浪漫!

发布时间:2024-05-14

图片

乐大姐

FM104.8《家在苏州--乐大姐说装修》栏目特邀嘉宾,

赫博别墅设计创始人之一;
多次受邀成为院校家居的授课讲师;
98年至今,
为万千家庭打造幸福家居的同时,也相互成为了好朋友。
任何与装修有关的问题,欢迎您添加乐大姐微信:13390895455

乐大姐会为您做一对一解答。



项目地点:科技城绿岛花园(联排)

项目面积:487.3㎡+院子170㎡

项目风格:新中式

项目性质:别墅整装

项目状态:正在施工





每一套作品,都是私人定制








写在前面的话

The Words Written In Front



本案业主是乐大姐团队的老客户了,其办公会所之前就是找乐大姐团队装修的,最终的落地效果业主非常满意。因此,这套联排别墅的装修,业主毫不犹豫地再次选择了乐大姐团队。

风格上,业主喜欢中式,但不希望过于繁琐,加上还有年轻人一起居住,所以乐大姐团队将现代与传统进行糅合,为其量身定制了一套别样的新中式风。值得一提的是,本案中庭没有规划成常规的功能区,而是以“屋中庭院”的形式呈现,营造出一种“四水归堂”的古典意境,令人沉醉其中。




图片


图片


文震亨曾提出“居山水间者为上”寄情山水,归隐田园,曾是无数文人骚客向往的生活境界,亦是今人所渴求的理想居

所。

本案的庭院有170㎡,在寸土寸金的苏州,实属难得,所以院子是设计的重点之一。乐大姐团队精心构思,以模拟自然景观为设计理念,巧妙地运用叠石成山、理水成池的手法,将江南山水的灵韵以简约而凝练的姿态融入这一方庭院之中。





图片


图片


图片


图片


图片


这套联排别墅门厅的北面,正对着入户门,作为进入家中的第一印象,设计上需独树一帜,突破常规,避免深色调的重复使用,以增强整体的视觉冲击力和层次感。
设计老师选用白色系石纹大理石作背景墙,并通过精细的拉槽工艺增加层次感和朦胧美。定制的门厅灯具,以其独特的造型,为空间注入现代时尚的气息。整个门厅,既保留了中式的庄重大气,又融入了现代的简约时尚,呈现出古今交融的独特韵味

图片

图片

图片


本案门厅与客厅紧密相连,因此设计时不能局限于门厅一隅,需统筹考虑。

门厅东侧,作为入户收纳区,同时补充了客厅沙发背景,可谓一景多用,至关重要。为此,设计上,摒弃了传统的中式壁画,转而采用紫色调的简约飞鸟图。紫色,作为中国的传统色彩和皇家象征,不仅提升了空间的气场,还有着“紫气东来”的美好寓意。其上自由翱翔的飞鸟,则为整个空间带来一丝灵动与活力。


图片

图片

图片


在门厅与客厅之间的过渡区域,设计巧妙地在常规门套内融入了两扇中式金属隔断,增强中式韵味的同时,还赋予了整个空间庄严感,给人一种步入大堂的正式感

地面采用的祥云纹水刀拼花,与整体的中式风格完美融合,高雅脱俗,寓意吉祥,进一步提升了整个门厅的艺术气息和文化内涵。





图片


图片


图片


图片


作为地道的苏州人,业主喜欢红木家具,但并不喜欢传统繁琐的中式。他期望的中式既要保留木质的温馨,也要有现代的时尚感。所以,设计时从中国古代建筑中汲取灵感,遵循经典的中轴对称关系,局部运用了透景、借景等手法,并大量使用胡桃色的木饰面,从而赋予空间厚重的文化底蕴,凸显端庄典雅风范。

同时,在元素、纹样、色彩、材质的选择上,有意避免采用繁复的中式元素,如回字纹等,但带给人的韵味仍在,营造出一种既古典又现代、既传统又创新的审美体验。


图片

图片


沙发背后的门套与门厅衣帽柜柜门壁画之间巧妙地形成了框景效果,从而极大拓展了空间的视觉深度和艺术感。

沙发背后大面的木饰面虽厚重大气,但多少有些压抑,设计老师通过内嵌式壁灯和白色系水墨岩板的设计,打破沉闷,给空间带来丰富的层次感和灵动美


图片

图片

图片


本案业主有着深厚的文化素养,对中式“四水归堂”的意境情有独钟,也因此中庭是业主最为重视的空间。为了实现这一意境,设计老师在天井四周精心设计了一圈中式屋檐,而天井中央则种株造型优美的黄杨树黄杨因其树种本身的价值而备受青睐,其独特的气质更是为整个住宅奠定了一种高级而素雅的基调。

随着日升月落,中庭的景色也呈现出不同的光影变化。坐在客厅里,透过大大的落地窗,便可将中庭的美景尽收眼底。而窗外的景致仿佛成了客厅的延伸,弱化了室内外的界限,营造出一种空间的连续性和互动感,让自然的气息与居住空间无缝融合。





图片


图片


图片


图片


图片


餐厅的布局,四面通达,充满巧思。南面与中庭景观相连,用餐时也可尽览美景;东向则与厨房无缝连接,提供了便捷的动线;北面与棋牌室的一体化设计,便于餐后娱乐和日常聚会;西向的移门直通庭院,户外的新鲜空气与庭院美景成为用餐体验的一部分,惬意非常。


图片
图片
图片

餐厅的设计,同样颇具匠心。大面积胡桃木元素的延用,为空间带来温润触感。岩板的加入,不仅打破了木质的单一感,更丰富了空间的视觉层次,使整个空间既大气又充满温馨。

细节之处,中式线条的门框、石榴花图案的组画、中式的餐桌椅……这些精致的软装元素,共同渲染出空间的东方美学韵味,为用餐体验增添了一份优雅与深度。





图片


图片


图片


改造后的厨房,虽然使用面积增加了,还多出了一个独立的食品储藏间,但因承重柱的存在,门洞被一分为二,很是尴尬,那么该如何解决呢?

乐大姐团队设计老师巧妙利用承重柱做了一排从地到顶的壁龛,且层板采用与门套一致的金属材质,这样不仅弱化了承重柱的突兀感,还增加了储物功能,空间整体性也更强,可谓别出心裁。


图片
图片




图片


图片


图片


图片


图片


走进二楼主卧,典雅的色彩基调与优雅的审美气质相契合,勾勒出主卧的优雅弧度。特色墙布、木饰面与仿皮革饰面的材质碰撞,在尺度与品质间,铺陈出怡然自得之感。

设计老师将休憩之地的品位与惬意拉到最大,包容着无限情感。





图片


图片


图片


二楼书房的书架,摒弃常用的博古架式设计,采取仿石材的背板+金属门框+灯光的处理,现代手法和传统红木家具的结合,打破传统,相得益彰,营造出样板间级别的高级效果。


图片

图片





图片


图片


图片

整个二层设有两间卧室,均为业主夫妻的私人休憩之所。他们根据季节变换选择居住,冬季居南,夏季住北,遵循自然养生之道。


图片

图片

图片


北次卧设计的关键,在于空间布局。因为它的进深长达6.36m,远大于开间,是一个通长的结构,一个处理不好会显得沉闷压抑。

故设计老师将其分成三段来设计进门过道区以木色隐形门巧妙过渡,睡眠区采用雅致诗意的中式壁画做主背景,休闲区则以纯色墙布来点缀,三个功能区三种不同材质三种不同颜色主次分明,和谐有致。





图片


图片


图片


二楼外卫是本案面积最大、功能最全的一个卫生间。

三分离式的布局、悬挂式台盆柜、悬挂式马桶、内置的浴缸等等设计细节的处理,不止减少了污垢的产生,减轻了打扫的负担,还提升了空间的美感,让洗漱的时光不显得那么仓促,生活的幸福感油然而生。


图片
图片

黑与白的冷暖对比,干净利落,陶瓷与干枝的搭配,更添典雅韵味。





图片


图片


图片


图片


三楼主卧是儿子的房间,年轻人喜欢日本建筑师隈研吾,所以不同于其它空间,打造的是现代原木风。大面积的原木入室,清雅质朴、舒适恬静,晕染柔和的自然光线,给人一种放松自我、岁月静好的感受。
不过,大面的木质元素也让空间变得有些沉闷,故设计老师不仅在床头背景上加入了小部分岩板和木饰面拉槽工艺,还在衣帽区引入时尚移门做开放式,从而极大地丰富了空间的层次和视觉美感。且,整个卧室的踢脚线都内嵌了灯光,空间因此一下子有了悬浮的效果,高级而轻盈,现代感满满。

图片


绿意盎然,清风骀荡。角落里的牛油果绿单人沙发,让室内充满生机与活力。清凉的色调驱散了烦躁,让人在柔软沙发中享受生活的节奏,休闲时光变得触手可及。


图片
图片

值得一提的是,儿子房虽有双阳台,但设计时却并没有全部纳入到室内来增加套房的大空间既视感,反而是特意留了一个阳台出来,盖因这个小区的楼间距很窄,设置独立阳台可以起到缓冲过渡、增加隐私的作用。

此可见,设计不止于室内,是一个需要全方面统筹考虑的事情。

图片


一花一世界,一叶一菩提。三楼的露台设计,让小业主不用下楼也可以看花开花落,观云卷云舒,品晨昏四季,赏四时之景。居于此,生活自在又惬意。


平面方案

Flat Plan




图片

负一楼原始户型图

图片

负一楼改造后户型图

图片

一楼原始户型图

图片

一楼改造后户型图

图片

二楼原始户型图

图片

二楼改造后户型图

图片

三楼原始户型图
图片
三楼改造后户型图
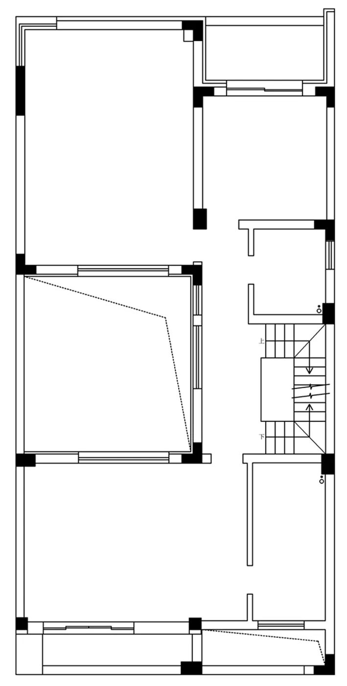
 本案是地下一层地上三层的联排别墅,地下室属于传统型,层高不高,没有采光,业主也不喜欢在地下室活动,故以停车和储藏为主。
 从优化结构和动线上考虑,一楼的改造比较多。首先,将南入户往外拓了1.39m,增加门厅面积的同时,极大地拉伸了别墅门厅的大气感;其次,把门厅与客厅之间的窄小门洞取消,调整成居中的宽大门洞,并依着轴对称来布局,整个空间因此看上去非常的庄重大气。再者,将厨房的开门方向调整成正对着餐厅,并把原北入户区域纳入到厨房,而北入户则改至餐厅北墙上,如此规划除了整个餐厨空间动线更加合理,还增加了厨房的使用面积和功能,一举多得。
 本案虽是套联排别墅,但因常住人口仅业主一家三口,对房间的需求不大,只要保留3个房间即可,加上业主对中式景观很是偏爱,所以本案不仅中庭没有按常规打造成功能区,而是做成了“四水归堂”的中式室内景观,还在三楼开辟了一块露台花园,可谓处处可赏景,时时可观花。
 因业主比较忌讳卫生间的位置在门厅上方,加上居住人口少,所以二楼、三楼都只设置了一个外卫。



全景图

Panorama




图片

点击左下方“阅读原文”,即可在线免费看本案例全景图(360°)。


END


往期案例回顾


设计说·第251期 | 121㎡老房华丽变身,引领中古风潮流!

图片

设计说·第250期 | 202㎡叠墅失败案例之“峰回路转”!

图片

设计说·第249期 | 150㎡复古美式,终生浪漫的开始!

图片

设计说·第248期 | 300㎡老别墅重装,绽放经典魅力!

图片

设计说·第247期 | 430㎡联排别墅,暖暖的美式风情!

图片

设计说·第246期 | 144㎡精装改造,设计不拘一格!

图片

设计说·第245期 | 208㎡昆山大平层,现实版“胡桃夹子和四个国王”!

图片

设计说·第244期 | 240㎡新中式联排,拾韵江南,雅韵东方!

图片


图片



如果您觉得乐大姐说的内容很有价值

欢迎分享转发至您的朋友圈

让更多的朋友都能轻松装修,自在生活!


当然,您也可以添加乐大姐微信号13390895455

或扫描下方的二维码

说出您的装修难题、让乐大姐为您答疑解惑

不管您是装修完工了

还是即将装修的

或者正在装修的

乐大姐一定知无不言,言无不尽


图片


图片
在看是一种鼓励|分享是最好支持
点击右下角 写留言 发表你的心声

我们期待与您的交流 


长按二维码添加乐大姐微信号

装修不烦 大姐来谈