
乐大姐
FM104.8《家在苏州--乐大姐说装修》栏目特邀嘉宾,
为万千家庭打造幸福家居的同时,也相互成为了好朋友。任何与装修有关的问题,欢迎您添加乐大姐微信:13390895455,

每一套作品,都是私人定制
现代风的简约格调,非常契合当代人的家居体验。而原木的舒适自然也让人觉得很惬意,那么当现代与原木相碰撞,再加入一丝中式元素做佐料,又会是怎样的一种呈现呢?今天,就跟随乐大姐一起来欣赏这套371㎡现代原木的实景现场吧~~




平面方案

负二楼原始户型图

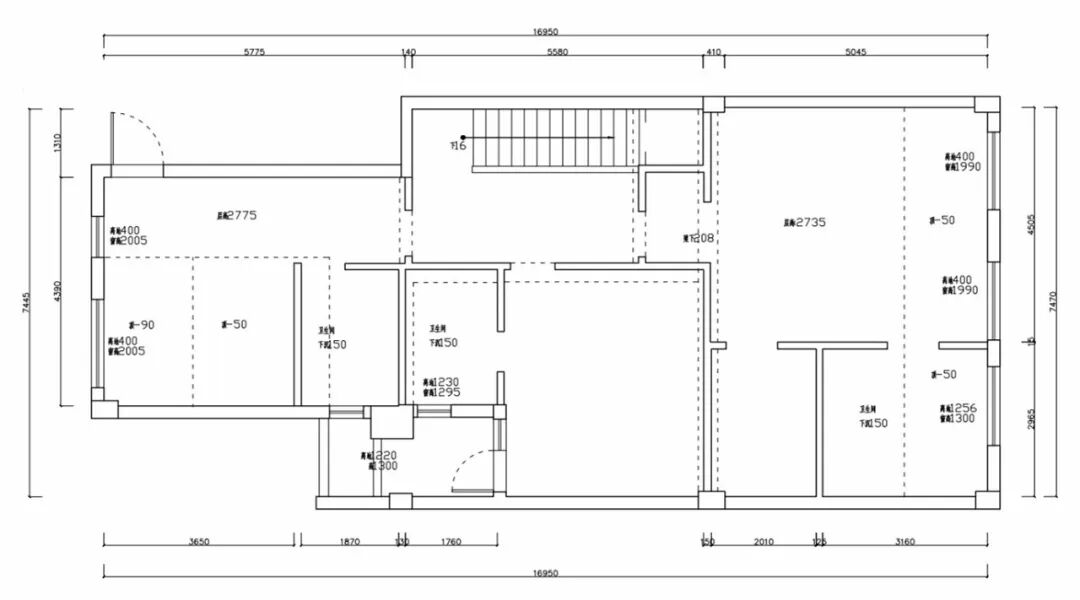
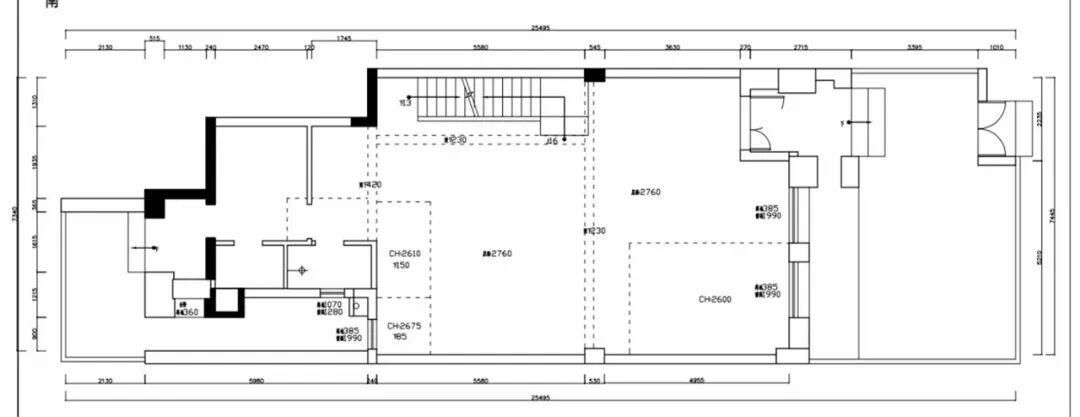
负二改造后户型图

负一楼改造后户型图

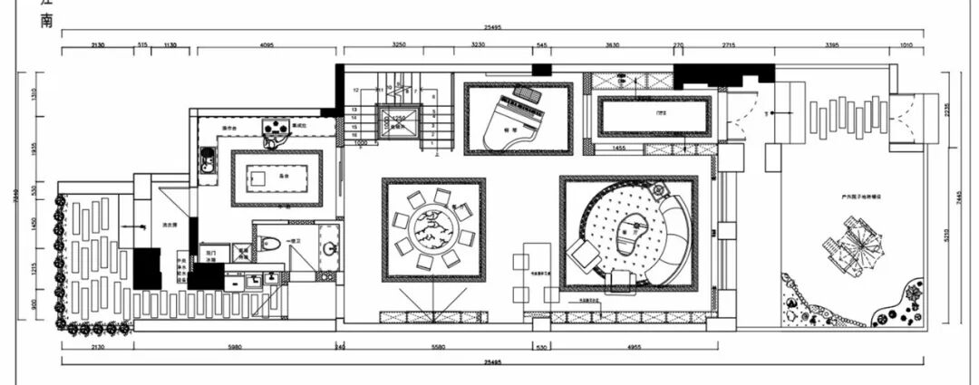
一楼原始户型图

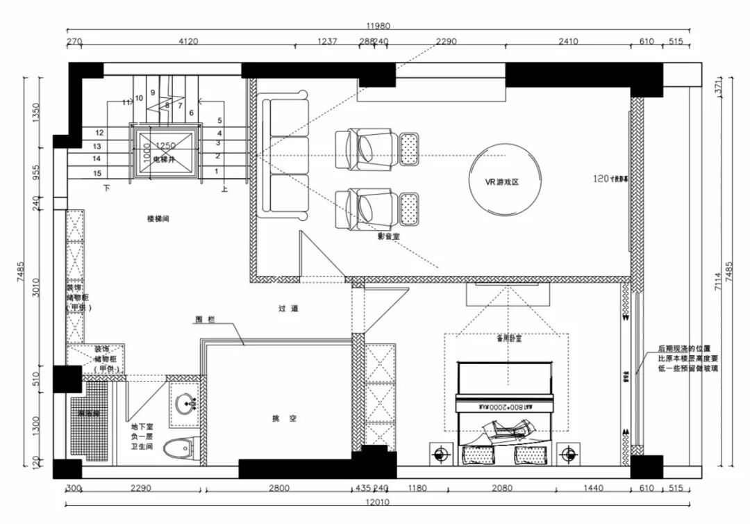
一楼改造后户型图

二楼原始户型图

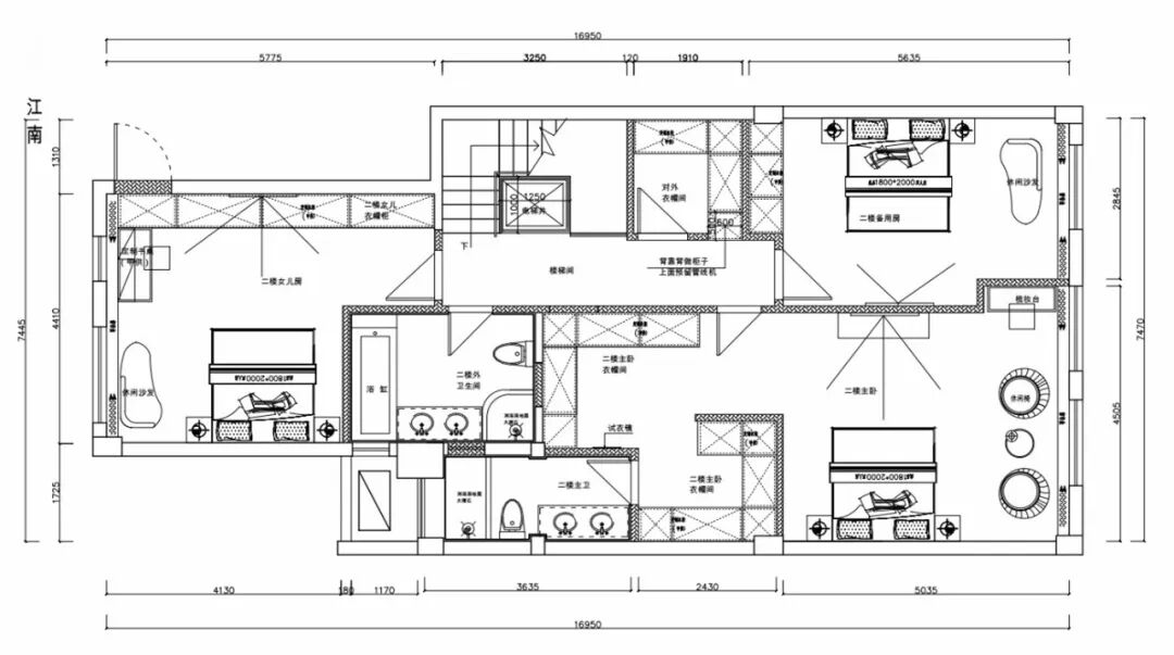
二楼改造后户型图
点击左下方“阅读原文”,即可在线免费看本案例全景图(360°)。
本案业主买这套下叠墅,一是为了未来养老,所以对装修的效果和品质要求很高。二是考虑到女儿长大了,以后要嫁人生子,但作为家中的独生女,父母希望她能常回家来,因此设计时女儿及其未来小家的需求、喜好同样重要。
风格选择上,一家人起初非常纠结,男业主独爱中式,女业主喜欢美式,宝贝女儿喜欢原木风,最终父母让步,按照原木风来规划,同时加入一丝中式元素,满足了男业主的小小心愿。
满意度100%

▲ 乐大姐团队和水岸秀墅业主合影留念
拍摄现场,在和乐大姐、苏州电视台《第一时间》拍摄老师等聊天的过程中,男业主说“我们家这套房子虽说是套下叠墅,地下两层,地上两层,还有个小花园,但开发商交付时的户型却让我们一家人都头疼不已,比如说它的整体层高不高,只有2.76m,还要做地平和地暖,就显得很闷很压抑,空间里还有各种奇怪的承重结构(梁及柱子),甚至有黑房间(无窗)、黑卫生间(无窗),等等,这些都让本来对新家期待满满的我们装修时踌躇不已,不知道该怎么办。后来幸亏找到了乐大姐团队,经过你们的精心设计原始房型的缺陷都完美解决了,现在住在家里我们哪哪都不想去,太舒服了,功能也很齐全,亲朋好友来过都想再来。”
▲ 乐大姐正在拍摄苏州电视台《第一时间》解析样板房装修知识点女业主接着说道“是的,在工程还没完全竣工时,我们看到效果就很兴奋了,所以从那个时候就开始慢慢搬东西过来了,来来回回搬了一百多车。其实,我们并不急等着房子住,是因为喜欢这边的效果才急不可耐地搬家的!工程一结束,没多久我们就住过来了。自从住过来后,我们家每周都要接待来家里参观的朋友,我女儿的朋友也来了三四波了,有些还会在家里住个两三天。我父母和弟弟弟媳也来参观过,他们都说好漂亮,好舒服啊!”

样板房拍摄时,业主一家人已经入住两个多月了,为了配合乐大姐团队的拍摄,他们不仅提前两天就把家里的私人生活用品全部收了起来,还准备了丰盛的点心、零食和饮品,甚至在拍摄当天六点多就起床继续收拾,很是用心,现场一点都看不出来居住的痕迹。

▲ 竣工验收单上业主的评语

▲ 水岸秀墅业主夫妇设宴宴请乐大姐团队贺竣工之喜
END
往期案例回顾
设计说·第254期 | 459㎡复古法式,穿越时光的浪漫!

设计说·第253期 | 137㎡现代美式,都市精英的理想生活!
设计说·第252期 | 487㎡新中式联排,四季观景,邂逅东方浪漫!
设计说·第251期 | 121㎡老房华丽变身,引领中古风潮流!
设计说·第250期 | 202㎡叠墅失败案例之“峰回路转”!
设计说·第249期 | 150㎡复古美式,终生浪漫的开始!
设计说·第248期 | 300㎡老别墅重装,绽放经典魅力!
设计说·第247期 | 430㎡联排别墅,暖暖的美式风情!

如果您觉得乐大姐说的内容很有价值
欢迎分享转发至您的朋友圈
让更多的朋友都能轻松装修,自在生活!
当然,您也可以添加乐大姐微信号13390895455
或扫描下方的二维码
说出您的装修难题、让乐大姐为您答疑解惑
不管您是装修完工了
还是即将装修的
或者正在装修的
乐大姐一定知无不言,言无不尽
我们期待与您的交流