
乐大姐
FM104.8《家在苏州--乐大姐说装修》栏目特邀嘉宾,
为万千家庭打造幸福家居的同时,也相互成为了好朋友。任何与装修有关的问题,欢迎您添加乐大姐微信:13390895455,

每一套作品,都是私人定制
提到“中式风格装修”,很多人都会想到古风沉着的红木、厚重的木器、庄重的色彩搭配,其实中式也可以结合时代特征变得清新淡雅,散发出现代中式装修的魅力。今天,就跟随乐大姐一起来欣赏这套521㎡联排别墅现代中式的实景现场吧~~
平面方案

一楼车库层原始户型图

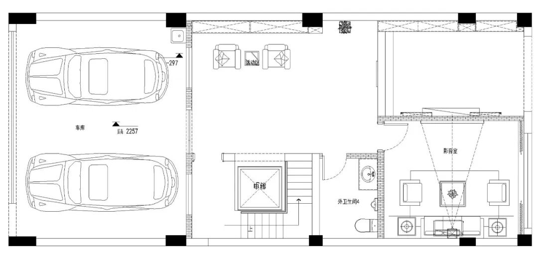
一楼车库层改造后户型图

二楼原始户型图

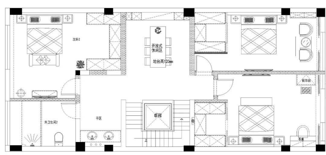
二楼改造后户型图

三楼原始户型图

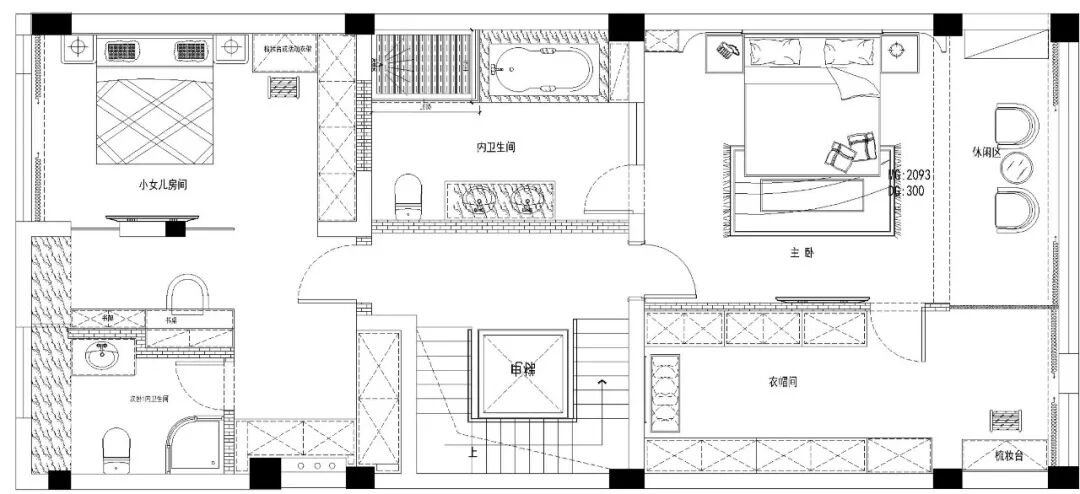
三楼改造后户型图

四楼原始户型图

四楼改造后户型图
点击左下方“阅读原文”,即可在线免费看本案例全景图(360°)。
本案这套联排别墅,总共四层,471㎡,全部在地上,还有一个50㎡的阁楼,可以说面积十分阔绰。但同时,本案还是一个三世同堂之家,常住人口较多,至少需要6个房间(有些还得是套房配置),储藏休闲娱乐功能也不能少,那么该如何规划才能满足业主一家人的居住需求呢?
风格上,以业主夫妻喜欢的中式风格为基调,同时加入了一些现代元素,既时尚又有韵味。孩子们的房间则设计成了他们喜欢的样子。
满意度100%

▲ 乐大姐团队和紫玉花园业主合影留念
拍摄现场,在和乐大姐、苏州电视台《第一时间》拍摄老师等聊天的过程中,男业主说“这套房子最开始我决定要装修的时候我老婆是不同意的,因为我常年在外地工作,她觉得这么大体量的房子装修都要靠她自己一个人的话,想想都怕。我就跟她说,我们找乐大姐团队装修,可以直接拎包入住的。现在装修结束了,我老婆说幸亏找了你们乐大姐团队,不然她得累死。别墅装修跟平层根本没法比,事情太多了,她自己既要照顾家里,还要工作,再弄装修那就要疯了!这次装修你们把所有事情都安排得妥妥的,所以虽然装的是别墅,却比我们之前装小户型还轻松得多!我自己因为关注的时间长,对你们团队足够了解,从前到后几乎是甩手掌柜,最终的装修效果也确实杠杠的,甚至超出我的预期

”▲ 乐大姐正在拍摄苏州电视台《第一时间》解析样板房装修知识点女业主也说道“有个邻居一直来我家参观,对我家装修各种羡慕,她说自己家装修操心得要命,关键自己不懂,用不上力。还有一个已经入住的隔壁邻居,来我家参观后说'不对呀,明明是一样的户型,你们家怎么看上去比我家大很多,装修效果也太好了吧!'然后,前两天我正好在房子里,一楼大门是开着的,好几家邻居一起来参观,都说我家太好看了!那时候其实很多软装还没进场呢,现在她们看了应该会觉得更漂亮了。这套别墅的功能及效果我们很喜欢,想一直住下去。但是,如果我们再买房的话,装修必须还找乐大姐团队!”
本案男业主说想要提前退休,早点回苏州住这套别墅,该享受生活了。业主的两个女儿,也都吵着要立马搬家,这种现象在乐大姐团队是非常常见的,看到乐大姐团队装修完成的效果,本来不急着搬家的,也变得急不可耐了。乐大姐团队一直坚持设计创新,用专业的能力及负责人的态度,让每一家选择乐大姐团队装修业主的家都能成为本身圈子里的骄傲!

END
往期案例回顾
设计说·第258期 | 128㎡老房重装,电影质感般的新家!

设计说·第257期 | 319㎡下叠,感受通透的“呼吸感”!(上)

设计说·第256期 | 448㎡现代中式,勾勒东方淡雅风情!

设计说·第255期 | 371㎡现代原木,享受慢生活的松弛感!

设计说·第254期 | 459㎡复古法式,穿越时光的浪漫!

设计说·第253期 | 137㎡现代美式,都市精英的理想生活!

设计说·第252期 | 487㎡新中式联排,四季观景,邂逅东方浪漫!

设计说·第251期 | 121㎡老房华丽变身,引领中古风潮流!


如果您觉得乐大姐说的内容很有价值
欢迎分享转发至您的朋友圈
让更多的朋友都能轻松装修,自在生活!
当然,您也可以添加乐大姐微信号13390895455
或扫描下方的二维码
说出您的装修难题、让乐大姐为您答疑解惑
不管您是装修完工了
还是即将装修的
或者正在装修的
乐大姐一定知无不言,言无不尽
我们期待与您的交流