
乐大姐
FM104.8《家在苏州--乐大姐说装修》栏目特邀嘉宾,
为万千家庭打造幸福家居的同时,也相互成为了好朋友。任何与装修有关的问题,欢迎您添加乐大姐微信:13390895455,

每一套作品,都是私人定制
你对于家的期待是怎样的?简单而温馨、治愈而温暖,在你满身疲惫想要休息的时候能够接纳你,在你欢欣鼓舞想要诉说的时候能够包容你。那么今天就跟乐大姐一起来这套220㎡现代风下叠墅现场看一看吧,它完全可以实现你对家的梦想
~~

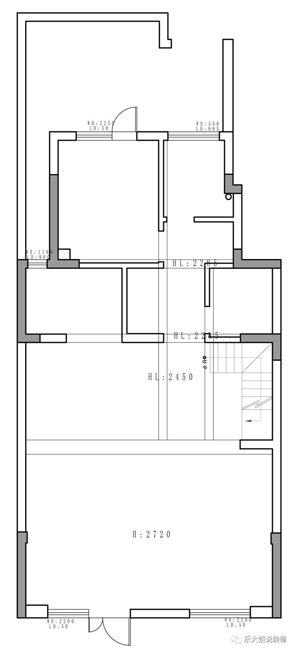
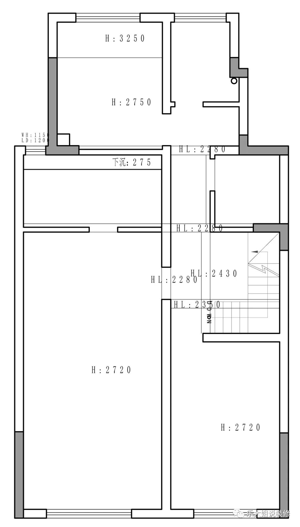
平面方案
点击左下方“阅读原文”,即可在线免费看本案例全景图(360°)。
本案这套下叠墅,是业主买来给女儿当婚房用的。因是给女儿的婚房,所以整体设计按照女儿的喜好来。女儿喜欢现代风格,希望空间能有较高的舒适性,通风采光要充足,同时还要考虑父母和未来小孩的房间(即需要4个卧房),而这些在原户型中都无法实现,所以乐大姐团队在整体结构上做了很大的改动,最终打造出业主一家人心中的理想家。
满意度100%

▲ 乐大姐团队和中航樾园业主一家人合影留念
拍摄现场,在和乐大姐、苏州电视台《第一时间》拍摄老师等聊天的过程中,女业主说“我们家这套房子开发商做的原始户型我非常不喜欢,因为一楼除了客厅比较宽敞以外,厨房和餐厅都很拥挤,空间里还有大量的横梁和柱子,加上原始的楼梯又位于客厅和餐厅的交汇处,周围的空间利用率极低,而且层高还不高,梁下最低点只有2.28m,最高点也才2.7m,很鸡肋,很压抑。但是,没想到的是经过你们乐大姐团队的妙手,我们家居然可以变得这么漂亮、大气、时尚。我老公看到竣工现场后,都想直接搬家了,我一直不让搬,因为这套房子是给女儿准备的婚房,怕现在住进去弄乱了,想把最美好的留给她。不过,说实话看到这样的效果,我自己也熬不住了,也想搬家。所以,最后我们一家人愉快地决定先搬进来住。我们的卧室本来是规划在楼下的,现在我们准备女儿没有结婚之前先住在楼上,因为我家的楼梯太好看了,从来没见过,关节不太好的我也喜欢爬这个楼梯。”
▲ 乐大姐正在拍摄苏州电视台《第一时间》解析样板房装修知识点
男业主接着说道“我有好几个同事都买在中航樾园,其中一个同事家我还去看过,他找的亲戚装修的,面积比我家大,还有地下室,但是效果没我家漂亮,户型也没有改好。所以,这一次装修,不论是服务还是效果我们一家人都非常满意,如果不是我老婆拦着,我早就想搬进来住了!”
女业主也说“我工作中认识了一个朋友,聊天中得知她也住在中航樾园,装修是她们自己弄的,花了不老少钱,结果前一段时间她来我家看了后说‘自家花的钱比我家多,效果跟我家却没法比。’然后,看完我家后没过几天,她眼睛发炎了,就开玩笑说是因为看了我家的装修得的红眼病,哈哈!还有几个朋友约我们这两天来家里打掼蛋,她们都说,要来我家参观'豪宅',这次装修我们一家人实在太开心了,跟乐大姐团队相处得就像亲人一样!”
▲ 乐大姐正在拍摄苏州电视台《第一时间》解析样板房装修知识点
竣工酒现场,乐大姐跟业主一家三口虽是第一次见面,但初见就如同故交,有聊不完的话题,现场欢声笑语不断。而这一切皆源于整个装修过程让他们省心,装修效果令他们欢喜,才会有如今对乐大姐团队的各种感谢之情,才会有如今的“一次装修 一生朋友”。

▲ 中航樾园业主一家人设宴宴请乐大姐团队贺竣工之喜
END
往期案例回顾
设计说·第262期 | 179㎡侘寂风,返璞归真的养老生活!

设计说·第261期 | 319㎡极简,静谧纯粹,久处不厌!(下)

设计说·第260期 | 319㎡美式轻奢,演绎高定生活!

设计说·第259期 | 521㎡现代中式,雅隽清逸!

设计说·第258期 | 128㎡老房重装,电影质感般的新家!

设计说·第257期 | 319㎡下叠,感受通透的“呼吸感”!(上)

设计说·第256期 | 448㎡现代中式,勾勒东方淡雅风情!

设计说·第255期 | 371㎡现代原木,享受慢生活的松弛感!


如果您觉得乐大姐说的内容很有价值
欢迎分享转发至您的朋友圈
让更多的朋友都能轻松装修,自在生活!
当然,您也可以添加乐大姐微信号13390895455
或扫描下方的二维码
说出您的装修难题、让乐大姐为您答疑解惑
不管您是装修完工了
还是即将装修的
或者正在装修的
乐大姐一定知无不言,言无不尽
我们期待与您的交流