清水江南别墅整装

设计说·第264期 | 217㎡极简奶油风,无法抵挡的温柔治愈!

发布时间:2024-08-02

图片

乐大姐

FM104.8《家在苏州--乐大姐说装修》栏目特邀嘉宾


多次受邀成为院校家居授课讲师;
从事单位荣获装修装饰行业协会副会长称号;
98年至今,
为万千家庭打造幸福家居的同时,也相互成为了好朋友。
任何与装修有关的问题,欢迎您添加乐大姐微信:13390895455
乐大姐会为您做一对一解答。


项目地点:中粮本园(联排)

项目面积:217
项目风格:极简奶油混搭
项目性质:别墅整装
项目状态:正在施工



每一套作品,都是私人定制




写在前面的话

The Words Written In Front




本案这套联排别墅,属于改善型住房,业主拿房已经有几年了,现在考虑到家里两个女儿都已经长大了,需要更好更自在的居住环境,而自己和老婆也该好好地享享福了,就决定将这套房子装修下。正好小区里有邻居是找乐大姐团队装修的,效果很好,自己也关注乐大姐团队很久了,就将房子托付给了乐大姐团队!


风格上,业主喜欢简单、时尚的感觉,但同时希望有家的温馨感。乐大姐团为其量身定制了一套极简奶油风的家,整体以现代为主,软装部分融入了一些奶油、复古的元素,业主一家人看了后眼前一亮,爱不释手!





图片


图片


图片


图片


在城市的喧嚣中,有这样一处居之安然的住所,让人卸下心防。


软糯的奶油色系搭配柔和的家具,带来极致的丝滑整洁感,赋予空间疗愈的力量,让居者身心放松。而舒展的布局、流畅的线条与留白的墙面,共同诠释着现代主义的精髓——简约不简单


图片


图片


电视墙的设计打破传统,采取整体背景+可移动电视的组合,看上去既灵活又大气,有效地减轻了空间的厚重感,营造出轻盈而立体的视觉效果。同时,还避免了纯白色墙面带来的单调乏味,与整体的极简风格完美契合。


画境电视和落地式台灯的引入,为室内空间增添了一抹复古的浪漫气息,仿佛将诗意带入生活,让浪漫情怀在居室中流淌。


图片


图片


极简的线条在家中多少有些硬朗,因此设计通过部分弧形实现平衡,椭圆形的茶几,无棱角的沙发、边几,钓鱼灯,以及餐厅区域的餐桌椅和吊灯,圆润的线条柔和了整个空间。


图片


落地窗外即是庭院,光不请自来,空间与自然有了呼应。盎然的绿意与温暖木色交织,犹如喧嚣城市中的一片绿洲,置身其中,生活变得简单而充实。





图片


图片


图片


图片


图片


客餐厨的开放布局,不止释放了空间,极大改善了整体的采光与通风,还模糊了空间的边界感,让功能区之间形成更强的联动关系


特别是,隐藏式吊轨移门的设计,暗藏着视觉魔法。日常使用时,移门完全隐藏在墙体/柜体内,从而使餐厨间保持开阔、连贯,实现空间的无缝连接。而烹饪时只需轻轻一关,移门便能有效隔绝油烟,保持室内空气清新,十分巧妙。


图片


图片


图片


餐厨在色系上和客厅保持一致,满眼的简洁干净,透出优雅恬静的空间魅力。餐边柜将电器尽收其中,提升了空间的整洁与实用性。圆形餐桌与圆形吊顶相映成趣,围合出生活的仪式感。艺术造型餐椅流畅的曲线符合整屋调性,柔美高级。

整个一楼公区无论哪个角度,都呈现出无死角的美感,极简美学迸发无限魅力,不费力的随性松弛感令人震撼。


图片

图片

图片


楼梯是家中艺术品般的存在,大理石与透明玻璃、金属扶手共奏,每一步都是优雅从容,气质不言而喻。楼梯底部的小景,绿意盎然,光影成画,仿佛呼吸中有着抵达心底的治愈





图片


图片


一楼卫生间的设计,延续整体基调,墙地面的奶油色大砖无言但却充满了温柔的力量。简约的布局没有丝毫累赘的线条或陈设,在视觉上呈现出别样的美感。





图片


图片


此间空间,变换自如——书房、休闲区、亲子空间、潮品展示、客房……,功能多元而灵活。无论是独自沉醉于书海,还是与孩子一同玩耍,这里都能让心灵得以释放与滋养





图片


图片


图片


图片


本案业主有两个女儿,考虑到孩子现在都长大了,业主希望给她们更舒适、独立、自在的生活环境,故而两个女儿房都设计成了套房,配备了女孩子喜欢的满满的衣帽柜和梳妆台。其中,南次卧是大女儿房。


图片


图片


图片


大女儿房是由朝南的两个次卧及楼梯正对着的中间卧室合并而形成的酒店式套房空间,十分宽敞舒适。然而,也因此导致空间中存在大量的承重梁柱,无法隐藏,十分突兀。为此,设计老师通过造型小景、弧形设计、定制柜体等手法,不仅将之一一化解,还丰富了空间层次与美感,十分巧妙。


图片


图片


整个空间采用同色系搭配为主,牛奶和咖啡融合般的色调,营造出舒适的入睡氛围。少量深色单品:黑色悬浮床头柜、深木色书桌、黑色花瓶、黑色金属线条,让空间从奶油的温馨感中提炼出现代感的精致时尚





图片


图片


图片


图片


二楼北次卧是小女儿房,小女儿年纪还小,正在上学,故为其精心打造了一个既宽绰又舒适的学习睡眠空间。暖灰色的半墙与奶白色的梳妆台相呼应,不锈钢材质与硬包、长城板相拼的背景造型感十足,亚克力材质的床头柜给人一种简约而不失时尚的质感。


图片


图片


面对房间顶面的承重梁,设计巧妙利用空调位置和弧形设计加以隐藏,看上去既对称和谐又颇具童趣。






图片


图片


图片


图片


二楼卫生间因平时是两个女儿在用,故配备了双台盆,早晚洗漱更便捷。整体以暖灰为基调,简约又不失高级感。台盆柜选用的壁挂式,好看的同时更方便打扫卫生。





图片


图片


图片


图片


整个三楼被规划为业主夫妻的主卧套房,除了常规的睡眠空间、卫生间、衣帽柜、梳妆台外,还有露台和独立洗衣房,功能十分齐全,居住舒适度极高。


图片


图片


因业主不喜欢过于繁琐的环境,所以整个套房以纯净的奶油色为底色,再加入高级灰做对比色处理,配色十分干净利落,就连饰品床品都是中性色,且无过多的材质堆砌,呈现出至简至美的气质。而空间中各种精致的小细节,则体现着设计老师的细腻心思。


图片

图片

图片


主卫设计,利用低饱和度的奶油色肌理做过渡,深灰色台下盆、浅灰台盆柜、白色马桶、玻璃淋浴房,各种材质相互碰撞平衡,形成一种视觉上简洁有序又不单调的搭配,同时兼具质感。



平面方案

Flat Plan




图片
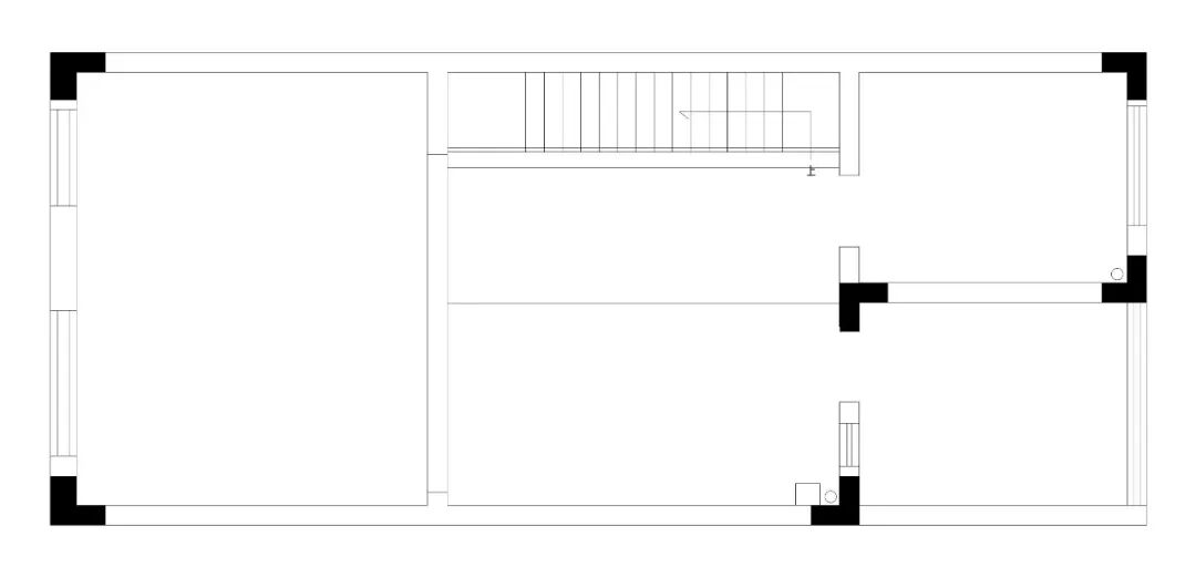
一层原始户型图
图片
一层改造后户型图
图片
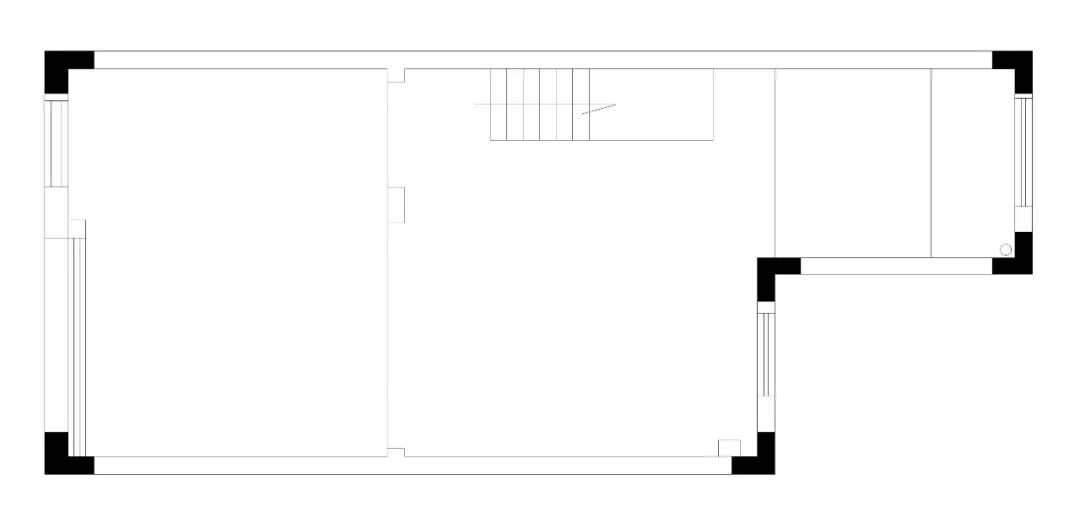
二层原始户型图
图片
二层改造后户型图
图片
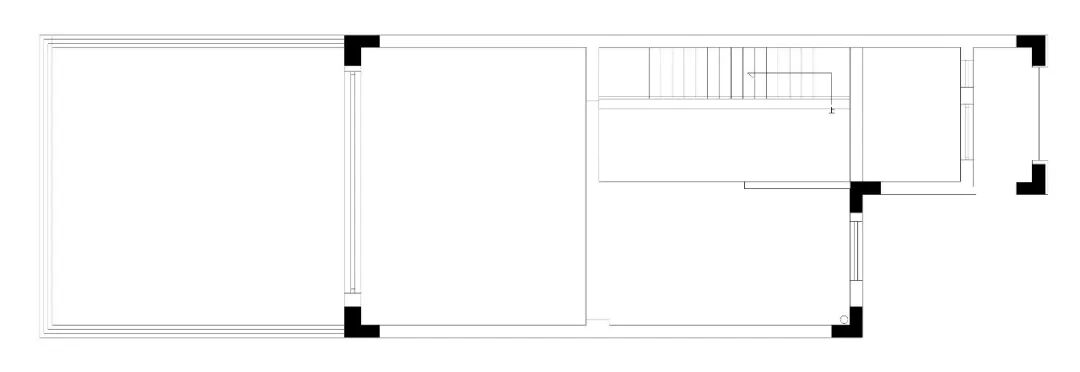
三层原始户型图

图片

三层改造后户型图

① 本案业主对家的要求是宽敞、舒适、大气,不喜欢过于繁琐,所以乐大姐团队设计老师在做户型规划时尽可能地把空间打开。首先,将原结构中的餐厨空间通过隐藏式移门合二为一,并与客厅一起形成客餐厨一体化的格局,从而拉升了一楼公区的空间感。其次,把原结构中的户外门厅纳入到室内,然后依着这一块仅8㎡的区域规划了玄关柜、一楼外卫、过道三大功能,并借用部分空间给楼梯,以缓解楼梯上下的坡度,一举多得,极大提高了空间利用率。
 二楼是两个女儿的休憩空间,业主提出都要规划成宽敞的套房,所以户型改动比较多。首先,将朝南的两个房间+楼梯正对的部分空间打造成了大女儿房;然后,将朝北的房间一分为二,其中东北角的小块区域设计成了二楼的外卫+洗烘区,西北角+楼梯正对着的部分空间则规划成了小女儿房。值得一提的是,设计在有限的空间内,还为两个女孩设置了一个小小的休闲区,在这里可以看书、学习、玩耍、放松自己等,可见设计老师的细心。
 整个三楼都规划成了业主夫妻的主卧套房,在这里不仅有睡眠空间、卫生间、衣帽间,还有梳妆台、露台、独立洗衣房等,居住舒适度极高。



全景图

Panorama




图片

点击左下方“阅读原文”,即可在线免费看本案例全景图(360°)


END



往期案例回顾


设计说·第263期 | 220㎡叠墅,轻简生活,细数温馨!

图片

设计说·第262期 | 179㎡侘寂风,返璞归真的养老生活!

图片

设计说·第261期 | 319㎡极简,静谧纯粹,久处不厌!(下)

图片

设计说·第260期 | 319㎡美式轻奢,演绎高定生活!

图片

设计说·第259期 | 521㎡现代中式,雅隽清逸!

图片

设计说·第258期 | 128㎡老房重装,电影质感般的新家!

图片

设计说·第257期 | 319㎡下叠,感受通透的“呼吸感”!(上)

图片

设计说·第256期 | 448㎡现代中式,勾勒东方淡雅风情!

图片

图片



如果您觉得乐大姐说的内容很有价值

欢迎分享转发至您的朋友圈

让更多的朋友都能轻松装修,自在生活!


当然,您也可以添加乐大姐微信号13390895455

或扫描下方的二维码

说出您的装修难题、让乐大姐为您答疑解惑

不管您是装修完工了

还是即将装修的

或者正在装修的

乐大姐一定知无不言,言无不尽


图片


图片
在看是一种鼓励|分享是最好支持
点击右下角 写留言 发表你的心声

我们期待与您的交流 


长按二维码添加乐大姐微信号

装修不烦 大姐来谈