乐大姐
FM104.8《家在苏州--乐大姐说装修》栏目特邀嘉宾;
为万千家庭打造幸福家居的同时,也相互成为了好朋友。任何与装修有关的问题,欢迎您添加乐大姐微信:13390895455,
项目地点:无锡观山泓郡(联排)
项目面积:349㎡
项目风格:现代
项目性质:别墅整装
项目状态:正在施工
每一套作品,都是私人定制
写在前面的话
The Words Written In Front
本案位于无锡锡山区板块,与映月湖公园、吼山森林公园两大景区毗邻,且靠近无锡高铁东站,周边配套十分优越。业主一家四口是无锡本地人,这套房子是业主夫妻给儿子准备的婚房,不论是效果还是质量要求都很高。儿子目前已经参加工作,所以整体设计与施工以他的意见为主,父母在旁辅助把关,以此培养他的独立性和决策能力。儿子喜欢简约、时尚、有质感的家居氛围,故乐大姐团队为其量身定制了一套现代风的家。同时,充分利用地下室打造了多样化的休闲娱乐区,为其生活增添了更多色彩和乐趣。
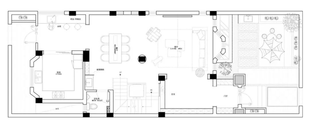
甫一进入室内,门厅的材质与肌理带来的层次感冲击着视觉,水蓝色的装置雕塑成为焦点,寓意吉祥,隐形灯带轻轻延展,不仅在归家之际点亮温馨氛围,更延伸了视觉边界,彰显了别墅大宅气派。然而,原户型中门厅根本没有背景,楼梯更是直对着入户门,业主很是忌讳。为此,设计在门厅增设了一面半透明艺术玻璃作背景,既遮挡了楼梯,又引入光线,增加了空间的明亮度和通透感。而艺术玻璃本身的朦胧美,加上背景的不对称设计以及墙顶相连的黑色色块相互作用,共同提升了空间的美感和整体性。

客厅,家居生活的核心场域,时间在此被赋予了更多的意义。竖向的非传统布局从空间上延展开来,大面积的落地窗引入充沛的自然光,进一步强调视野的开阔性和呼吸感。置身其间,心境也随之变得清爽而明朗。
值得一提的是,客厅的非传统布局,皆因大横厅中间有根承重柱,对空间动线造成了严重干扰,而将电视墙置于东面,不止解决了这一难题,还使整个客餐厅看上去更加宽敞大气。


电视背景,以木饰面和大理石为主,深浅色彩的调剂为空间梳理出秩序井然的体块关系,并使之在层叠衔接中不落窠臼,简练又高雅。不过,原户型中东面墙上有很多窗洞,很是零散杂乱,设计时将若干小窗合并为一扇大大的落地窗,同时电视背景旁的小窗也做了相应提升,用黑色金属板统一高度,从而使整个墙面看上去既整洁统一又开阔大气。


一楼公区的吊顶设计,也破费了一番心思。因其层高有3.2m,设计充分利用这一优势,采取客餐厅一体化的吊顶设计,并巧妙地将空调出风口、回风口隐藏在反光灯槽内,不仅提升了空间的大气感,还通过视觉上的延伸增强了空间的连贯性和深度。

除却空间的视感追求,本案的建构更注重情境与氛围的渲染。材质的色彩、肌理、触感,细节软装的点缀,超越了结构与尺度的基本要求,成为空间感知的点睛之笔,逐步提升空间的情感温度和居住体验。
餐厅与西厨的开放式设计,进一步拓展了空间的延伸感。异形吊灯与定制餐桌的组合,成为空间的另一组视觉焦点,于整体的硬朗气息中起到一定的中和作用。桌面、椅面、墙面,面面呼应,无形之中构成一场和谐且饱含灵动的对话。


在经典黑白配色的映衬下,厨房空间以内嵌式设计巧妙融合了收纳与厨电,既实用又美观。玻璃移门轻启,将中式厨房与西式餐吧/早餐台隔开,为生活增添了无限可能。
二楼次卧套房沿用整体的灰色基调,一体化软硬装空间,通过简约的线条进行空间架构,确保了空间的整体性,也让人倍感舒适。不得不提的是,床头背景上的窗户原本很大,采光极好,但却影响了功能布局。设计时将窗户底部上翻30公分并封死,再用黑色极窄金属框进行装饰,既解决了床头柜、开关等安置问题,又保留了采光,窗户比例也更和谐。

随着四季的变换,这扇窗户如同室内的一幅动态画作,为卧室增添了灵性与美感。
儿童房的设计,采用小山硬包造型和绿色作为空间的点缀,清新而不乏趣味,让孩子在自由的环境中伴随着喜爱的玩偶一同成长。面对阳台因现浇结构存在的返梁问题,设计老师巧妙利用梁的高度延展出一个抬高的休闲区。休闲区内放置了可爱的休闲椅,并配有隐藏式灯带,氛围感十足,自成一方小天地。

因本案小业主喜欢打游戏,且空间足够充裕,故将二楼北次卧设计成电竞房。在这里,线条与灯光相碰撞,科技感十足;而潮玩手办墙、洞洞板及星空顶的加入,进一步加强了空间的活力,让每一次游戏体验都充满动感与激情。
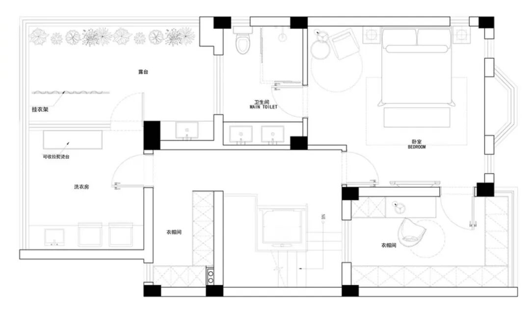
整个三楼都是小业主的私人空间,也是未来的婚房,集睡眠空间、衣帽间、卫生间、洗衣房、露台等多功能于一体,几乎涵盖了日常生活的所有需求。除了用餐外,其他活动均可在此完成,确保了极高的便利性与私密性。设计上延续整体的现代格调,通过简约利落、删繁从简的设计手法,搭配温馨的色调、现代的家具,呈现出理性的质感和舒适的审美体验,颜值与功能兼备。

床头背景采取不对称式设计,装饰与艺术的糅合以及时尚明丽的配色,让人能更好的感受生活的细腻与美好。
挑高,是地下室的空间枢纽和精神内核,极具呼吸感和视觉张力,所有的空间都被“打开”,在有限的空间内也可以拥有奢侈的生活尺度。设计上,体块与材质变化,对应空间的功能划分,彰显几何秩序之美。木、白、灰三色自然过渡,完美平衡了美学感性与空间质感的关系,提升了生活的格调。多元素的碰撞,更增添了一种奢华的质感,充分展现了现代家居空间的高级感。
楼梯旁有根贯穿地下两层的承重柱,很是突兀且碍事,设计老师考虑到因动线优化的需要,楼梯开口的朝向被调整至大厅,故把楼梯的第一踏扩展为地台,巧妙地将承重柱纳入设计之内,与楼梯融为一体,从而极大缓解了视觉上的突兀感,空间因此更加和谐。


负二楼非挑高区的层高仅2.26m,很是压抑。因此,在酒吧区的设计中,摒弃了传统的石膏板吊顶,转而采用了镜面金属板,这样不仅可以利用镜面反射效果扩展空间的视觉高度,减少压抑感,还让空间看上去更精致更有质感。



原户型中地下夹层与天井之间隔着挑高空间,彼此独立,毫无关联。设计老师通过增设一个弧形过道,不仅将两者联系了起来,更打造了一个造型优雅、视觉独特的观景平台。
站在这个平台上俯瞰地下二层,仿佛置身于一幅画中,体验到“你在桥上看风景,看风景的人在看你”的诗意境界,极大丰富了空间的层次与互动性。


夹层的茶室设计也大有讲究,空间的中间位置矗立着一根粗大的承重柱,很是突兀,设计将之与茶台桌面通过穿插式设计巧妙地融为一体,弱化承重柱存在的同时,赋予茶室一种独特的艺术气息。
以简约为主旨的茶室,摒弃繁杂与艳丽的色调,将艺术、文雅的意境外化为空间语言,诉说着风清雅韵。
平面方案
Flat Plan
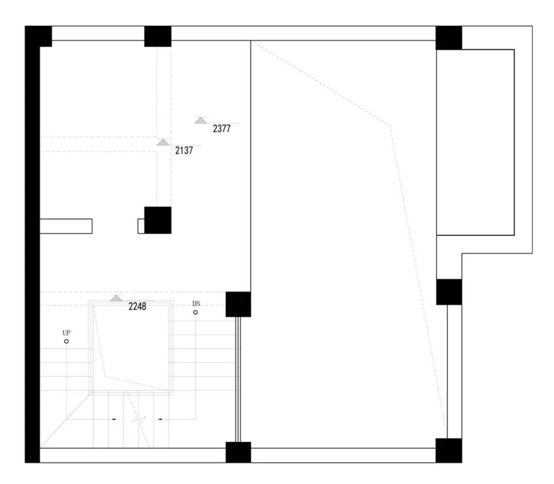
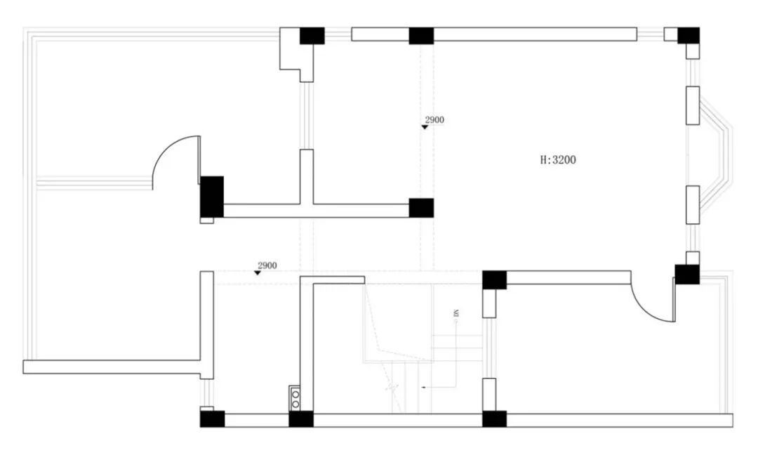
① 本案地下二层的户型改造是楼梯的起始位置做了调整,原先楼梯位于空间最内侧拐角,上下楼动线不是很合理。故设计时将楼梯起始步移至过道,优化了上下楼的动线,使得通行更为便捷。同时,将楼梯第一踏延展成地台,把空间中突兀的承重柱纳入到楼梯设计,巧妙化解了结构上的尴尬。
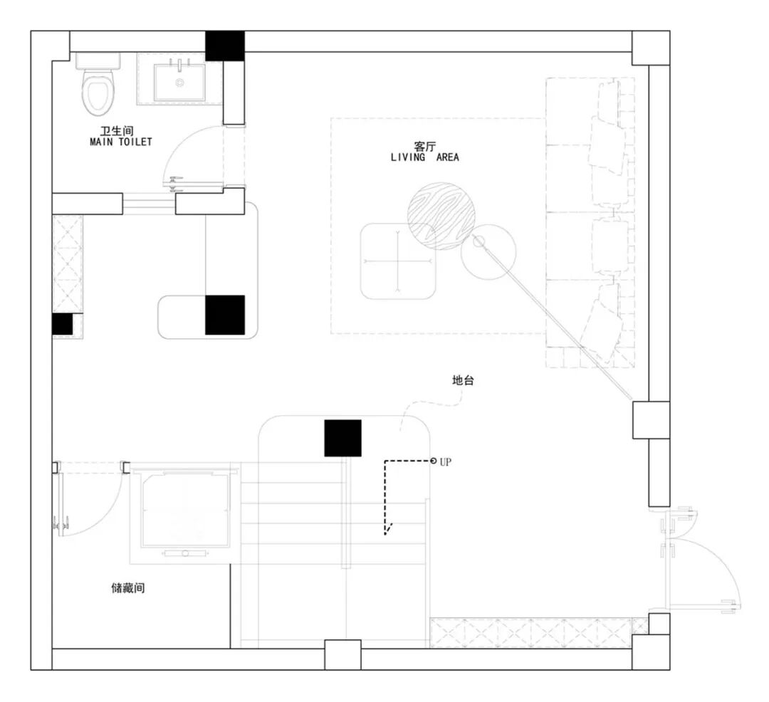
② 原户型中,地下一层的现浇区域与天井是彼此独立的,中间由挑空空间隔开。为了连接这两个空间,设计了一个弧形平台。这个设计既确保了楼下的层高不受影响,又提升了平台的美观度,实现了空间的有效连接。
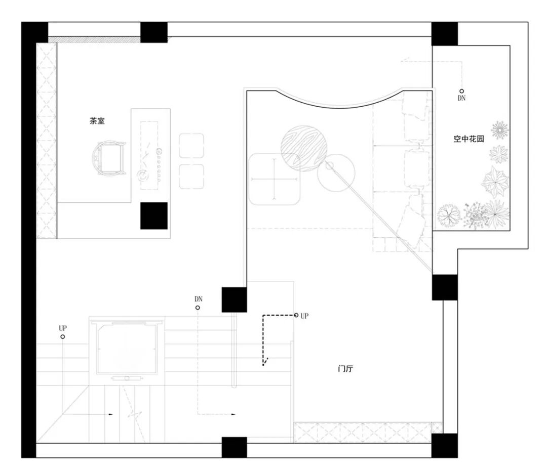
③ 一楼的改造,首先是将南入口向外扩展,以增加了门厅的深度,提高了私密性。其次,把一楼北次卧改造成厨房,而原厨房则调整成西厨,这样既扩大了厨房空间,又满足了现代生活对厨房面积的需求。
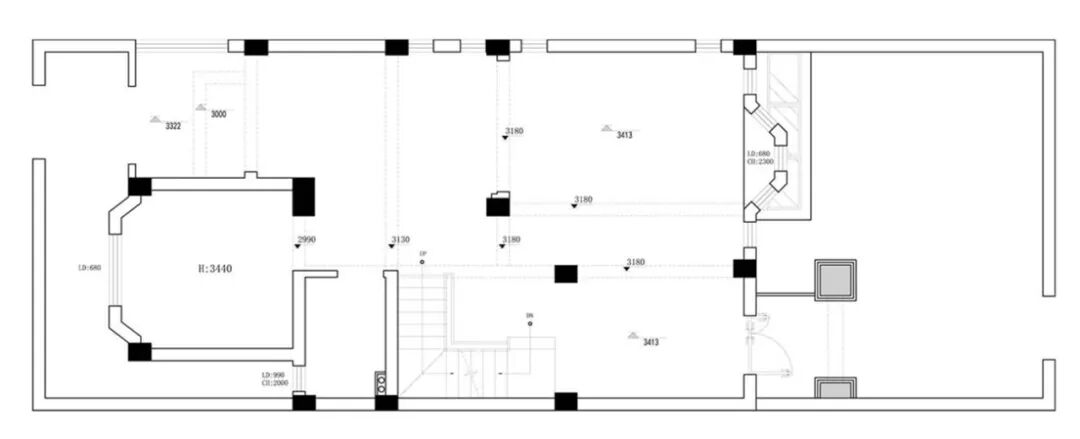
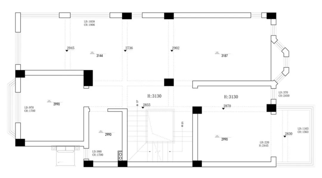
④ 二楼总共有四个卧室,根据业主的需要,分别规划成二楼次卧套房、儿童房、书房、电竞房。同时,考虑到原结构中楼梯电梯正对着卧室的开门,业主比较忌讳,设计时调整了开门方向,避免尴尬。
点击左下方“阅读原文”,即可在线免费看本案例全景图(360°)。
https://vr.justeasy.cn/view/1n69555yf4i95910-1695792291.html
END
往期案例回顾
设计说·第267期 | 503㎡新中式,拾韵江南,雅韵东方!

设计说·第266期 | 149㎡黑白灰大平层,单身贵族的家!

设计说·第265期 | 580㎡复古美式,惊艳时光!(上)

设计说·第264期 | 217㎡极简奶油风,无法抵挡的温柔治愈!

设计说·第263期 | 220㎡叠墅,轻简生活,细数温馨!

设计说·第262期 | 179㎡侘寂风,返璞归真的养老生活!

设计说·第261期 | 319㎡极简,静谧纯粹,久处不厌!(下)

设计说·第260期 | 319㎡美式轻奢,演绎高定生活!


如果您觉得乐大姐说的内容很有价值
欢迎分享转发至您的朋友圈
让更多的朋友都能轻松装修,自在生活!
当然,您也可以添加乐大姐微信号13390895455
或扫描下方的二维码
说出您的装修难题、让乐大姐为您答疑解惑
不管您是装修完工了
还是即将装修的
或者正在装修的
乐大姐一定知无不言,言无不尽
我们期待与您的交流