乐大姐
FM104.8《家在苏州--乐大姐说装修》栏目特邀嘉宾;
为万千家庭打造幸福家居的同时,也相互成为了好朋友。任何与装修有关的问题,欢迎您添加乐大姐微信:13390895455,

每一套作品,都是私人定制
居住空间本质上是生活方式的反映,不一定要“墨守成规”,要敢于打破常规思维,让自己住的舒服安心,才是理想的选择。比如本案这套221㎡下叠墅的客餐厅,竟然被规划在了地下室?!那么,为什么要这样设计呢?为什么装修完成后地下室竟成了业主一家人最爱待的地方呢?今天就跟乐大姐一起到现场看一看吧
~~





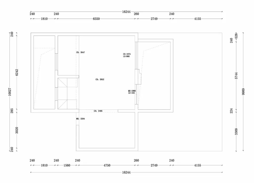
平面方案


点击左下方“阅读原文”,即可在线免费看本案例全景图(360°)。
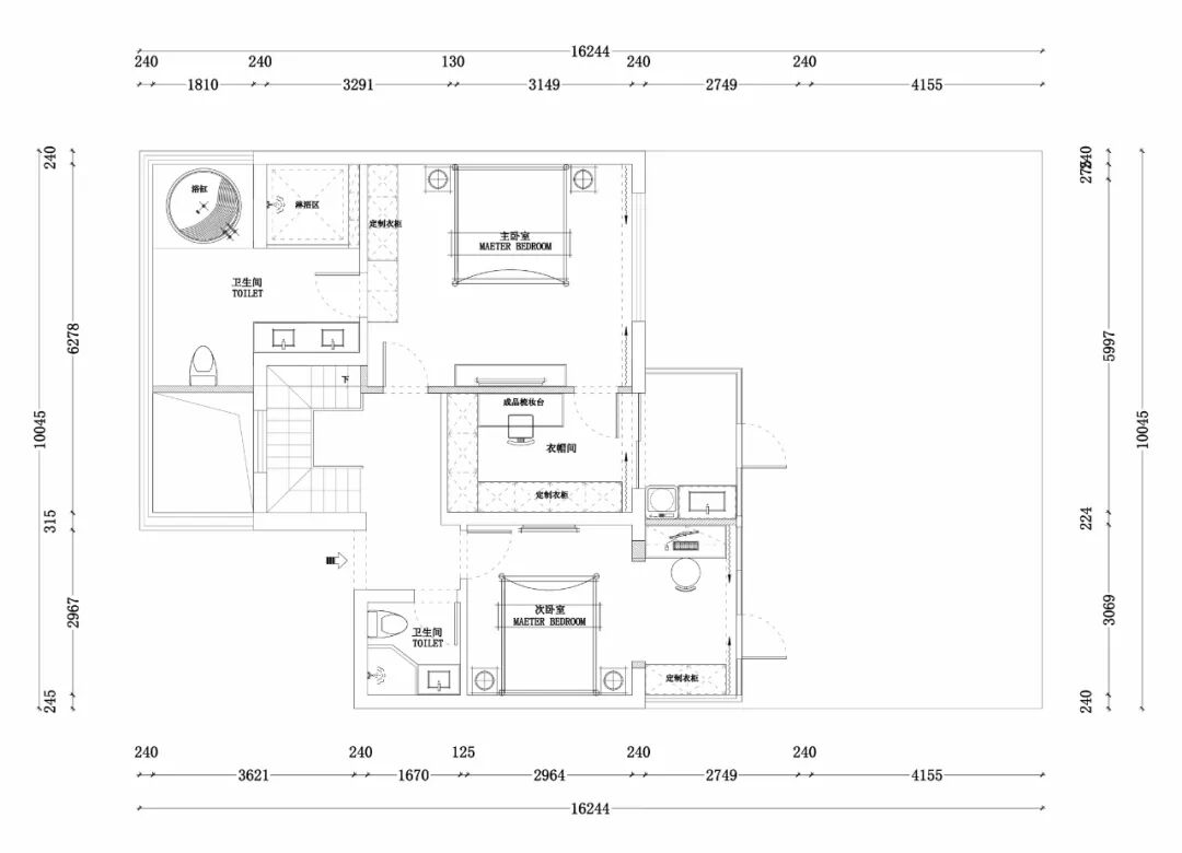
本案这套下叠墅,上下总共两层,且地下面积要比地上大很多,地上只有80多平,连常规的客餐厨卫及卧室都排不开,非常鸡肋,业主还希望主卧做成大套房,那么该如何在有限的空间内实现这些呢?乐大姐团队考虑到地下室有两个超大的采光井,将客餐厅等功能规划在了地下,卧室则全部安排在一楼,这样既功能齐全,又动静分开,十分巧妙。
风格上,选择了经典不容易过时的现代风,同时在黑白灰的基调里,加入蓝色、脏橘色做跳色,空间因此显得既清爽大气又时尚温馨。
满意度100%
竣工酒现场,在和乐大姐、乐大姐团队的小伙伴们等聊天的过程中,女业主说“买房之前我和我老公就关注了乐大姐团队,看了你们朋友圈里分享的好多交付作品,我们都很喜欢,这也给我们买房增加了动力,加快了速度,就想赶紧买套房子找乐大姐团队装修。现在我们家已经竣工了,事实证明我们当初选择乐大姐团队是非常正确的!我有个朋友也刚装修结束,他是自己捣腾的,然后开工之前请了个设计师做了一套设计图,根据设计图施工的。结果装修过程中发现设计师设计的图纸简直是一塌糊涂,没办法我朋友只能放弃了当初的图纸,在网上找各种途径学习装修,现学现用,整个装修过程真是一言难尽,操碎了心。最后由于工期一拖再拖,租的房子都到期了,只能是装修还没有完全结束就直接搬家了,特别糟心!”
▲ 乐大姐正在拍摄苏州电视台《第一时间》解析样板房装修知识点女业主接着说道“相比较我们这次装修就太轻松了,特别是7月份暴风雨天气多,经常半夜突然下大雨,我们家的施工经理不管多晚都会赶过来查看门窗关锁情况,等等这些细节,让我们特别地感动。整个装修过程我老公几乎没来过现场,我也是偶尔才会过来瞧瞧。由于硬装看不出效果,我还蛮期待最终效果的。不过,拍摄样板房那天正好赶上我要回老家处理一些紧急事情,然后从乐大姐的朋友圈里看到了我家最终落地效果,我很是激动。后来一到苏州,我家都没回,直接赶到新房子里一睹为快(因为我走之前还有一些软装细节没有搭好)。在现场我是看了又看,觉得那那都好看,就想立马入住!特别是地下室的设计,我们小区里没有人这么做的,邻居们来看都夸我们家改造得太好了!”
▲ 乐大姐正在拍摄苏州电视台《第一时间》解析样板房装修知识点
量身定制的方案,对于业主来说才是最好的。这套房子虽是业主一家三口长久自主的,不过儿子将来的婚房不在考虑之中,只要为业主两口子做出最大化的舒适度就OK了,所以乐大姐团队打破常规,将地下室的空间潜力发挥到极致,让原来鸡肋的户型装完后却有了别墅般的享受,这就是好的设计方案带来的价值。

设计说·第270期 | 360㎡新中式,老别墅的优雅新生!

设计说·第269期 | 580㎡复古美式,我和你的慢时光!(下)

设计说·第268期 | 349㎡无锡联排别墅,邂逅多维空间!

设计说·第267期 | 503㎡新中式,拾韵江南,雅韵东方!

设计说·第266期 | 149㎡黑白灰大平层,单身贵族的家!

设计说·第265期 | 580㎡复古美式,惊艳时光!(上)

设计说·第264期 | 217㎡极简奶油风,无法抵挡的温柔治愈!

设计说·第263期 | 220㎡叠墅,轻简生活,细数温馨!


如果您觉得乐大姐说的内容很有价值
欢迎分享转发至您的朋友圈
让更多的朋友都能轻松装修,自在生活!
当然,您也可以添加乐大姐微信号13390895455
或扫描下方的二维码
说出您的装修难题、让乐大姐为您答疑解惑
不管您是装修完工了
还是即将装修的
或者正在装修的
乐大姐一定知无不言,言无不尽
我们期待与您的交流