清水江南别墅整装

设计说·第272期 | 263㎡东方之门,欧式极致奢华!

发布时间:2024-10-11

图片

乐大姐

FM104.8《家在苏州--乐大姐说装修》栏目特邀嘉宾


多次受邀成为院校家居授课讲师;
从事单位荣获装修装饰行业协会副会长称号;
98年至今,
为万千家庭打造幸福家居的同时,也相互成为了好朋友。
任何与装修有关的问题,欢迎您添加乐大姐微信:13390895455
乐大姐会为您做一对一解答。



项目地点:东方之门

项目面积:263㎡

项目风格:欧式

项目性质:精装修软装搭配

项目状态:正在施工







每一套作品,都是私人定制





写在前面的话

The Words Written In Front





本案坐落于苏州地标性建筑——东方之门的住宅区,是开发商精装修的房子,只不过原装修不太符合业主的要求,加上业主考虑到未来养老也会在这,对装修的品质与效果要求很高,就想一步到位,找到乐大姐团进行改造。

本案业主非常具有浪漫情怀,对欧式情有独钟,追求极致的奢华享受及视觉美感。所以,整体采取了欧式特有的设计款式和造型,效果图出来后夫妻俩看了都非常满意,爱不释手,觉得这样的装修才配得上东方之门的档次!




图片


图片


入户门厅顶地面相呼应,叠加的石膏线与精美繁复的地面拼花,从一开场便为空间奠定了基调,塑造出大宅才有的归家仪式感

在门厅与室内动线的交汇处,巧设玻璃砖,既可以将光线引至门厅,又拓宽了视觉空间,实现了私密性与通透性的平衡,为空间灌输微妙的浪漫感和高雅感





图片


图片


图片


图片


步入开阔、明亮、大气的餐厅,熠熠生辉的金箔重工圆形吊顶、精致的黄铜水晶吊灯、典雅贵气的欧式实木家具与经典欧式墙壁镶边相映成趣,宛如一场梦幻的视觉盛宴,展现引人驻足的奢华魅力


图片


磨砂质感的四联动水晶印花玻璃移门,不止为餐厨的区域划分创造出更多的可能,还好似一道屏风,画卷般演绎出浪漫与优雅





图片


图片


图片


图片


客厅是整个空间的核心区域,以开放式格局展现出大气与奢华。奶白色的护墙板与素色墙纸的结合,为空间增添了一抹温柔与细腻。而华丽的大花纹岩板电视背景,则以其独特的质感,提升了空间的档次。边上的隐形门处理,让整个空间更加统一。

顶地面的设计,也独具匠心。经典的井字格吊顶、璀璨的吊灯和繁美的拼花,凭借优雅的造型、精美的装饰、精致的细节营造气氛,达到一种雍容华贵的装饰效果。


图片

图片

图片


客厅的家具选用了高品质的皮革和实木材质,辅以鎏金工艺,不止提升了整体的质感,更彰显了奢华与精致。淡黄色与木色的经典搭配,将时光缓缓沉淀,描绘出一幅贵气隽永的空间画卷。


而鲜花与饰品的点缀,则为居室增添了几分优雅舒适的气息。我们深知,欧式居室所追求的不仅仅是豪华与大气,更多的是对生活品质与浪漫情怀的极致追求。因此,我们注重每一个细节的打磨,旨在为业主打造一个舒适而温馨的居住环境,让每一天的生活都充满享受。





图片


图片


向空间内继续探索,由整体到局部,从大概到细节,越是对细微处的处理,越能体现居者的情怀和品味





图片


图片


图片


图片


主卧,超大的空间尺度为身体的休憩放松带来强烈的体验感。背景立柱造型彰显风格,米色的护墙奠定了空间优雅精致的调性。海蓝色的床头软包时尚而又神秘,为卧室增添了一抹宁静与深邃。


一架贵气十足的高背床,构成了整个主卧的精神气场,带来安稳的感觉。优雅的高背单人椅、花纹繁复的地毯、轩阔的衣帽间、超大玻璃开窗的加入,赋予空间更舒适轻盈的氛围。


图片
图片
图片

主卫以6.47㎡奢阔尺度,五大实用功能,赋予居者五星级酒店般的舒适体验感。整体墙地面采用花纹华丽的瓷砖材质,结合繁复的水刀拼花、文化底蕴浓厚的装饰画,仪式感满满,让沐浴变成一次洗涤身心的奢华之旅。




图片


图片


图片


图片


次卧设计,化繁为简,不再追求过多装饰,仅用线条与花纹勾勒空间的精致。加上雅白的基调、淡蓝淡粉的跳色,整个空间充满静谧沉浸感,又温馨舒适。


复古制式的家具、精巧的雕花暗纹、耀眼的水晶灯,无声地艺术碰撞之后,为空间注入无限优雅的型格。




平面方案

Flat Plan




图片
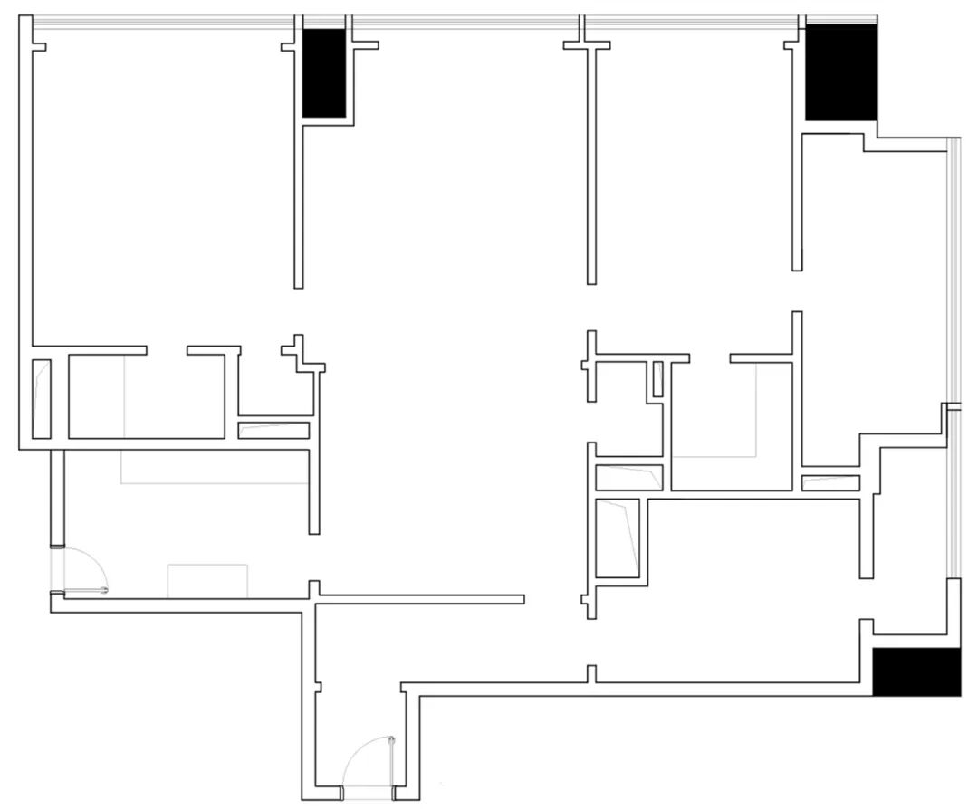
原始户型图

图片

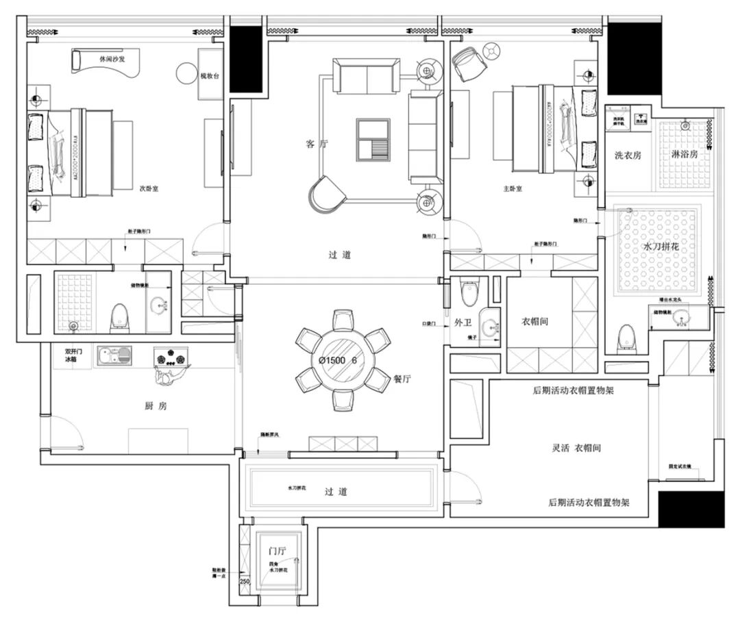
改造后户型图
本案这套大平层因是精装修,以硬装改造和软装搭配为主,户型改造部分并不多,仅有两处:
①将入户门正对着的餐厅背景拆除部分墙体,改为玻璃砖隔断,以改善门厅采光与通透性。
②将原本位于次卧的小储藏间的开门改成朝着餐厅,既保证了次卧的私密性,又优化了收纳动线。



全景图

Panorama




图片

点击左下方“阅读原文”,即可在线免费看本案例全景图(360°)。

https://vr.justeasy.cn/view/n1x71d6917l38413-1717145089.html


END



往期案例回顾

设计说·第271期 | 这套221㎡叠墅的客餐厅,竟然在地下!

图片

设计说·第270期 | 360㎡新中式,老别墅的优雅新生!

图片

设计说·第269期 | 580㎡复古美式,我和你的慢时光!(下)

图片

设计说·第268期 | 349㎡无锡联排别墅,邂逅多维空间!

图片

设计说·第267期 | 503㎡新中式,拾韵江南,雅韵东方!

图片

设计说·第266期 | 149㎡黑白灰大平层,单身贵族的家!

图片

设计说·第265期 | 580㎡复古美式,惊艳时光!(上)

图片

设计说·第264期 | 217㎡极简奶油风,无法抵挡的温柔治愈!

图片


图片



如果您觉得乐大姐说的内容很有价值

欢迎分享转发至您的朋友圈

让更多的朋友都能轻松装修,自在生活!


当然,您也可以添加乐大姐微信号13390895455

或扫描下方的二维码

说出您的装修难题、让乐大姐为您答疑解惑

不管您是装修完工了

还是即将装修的

或者正在装修的

乐大姐一定知无不言,言无不尽


图片


图片
在看是一种鼓励|分享是最好支持
点击右下角 写留言 发表你的心声

我们期待与您的交流 



长按二维码添加乐大姐微信号

装修不烦 大姐来谈